| ||||||||||||||||||||||||||
Скачать Типовые проектные решения 901-07-9.84 Альбом IV. Электротехническая частьДата актуализации: 10.08.2017
|
| Обозначение: | Типовые проектные решения 901-07-9.84 |
| Обозначение англ: | 901-07-9.84 |
| Статус: | cправочные материалы, мп, тпр |
| Название рус.: | Альбом IV. Электротехническая часть |
| Дата добавления в базу: | 01.10.2014 |
| Дата актуализации: | 05.05.2017 |
| Дата введения: | 10.09.1984 |
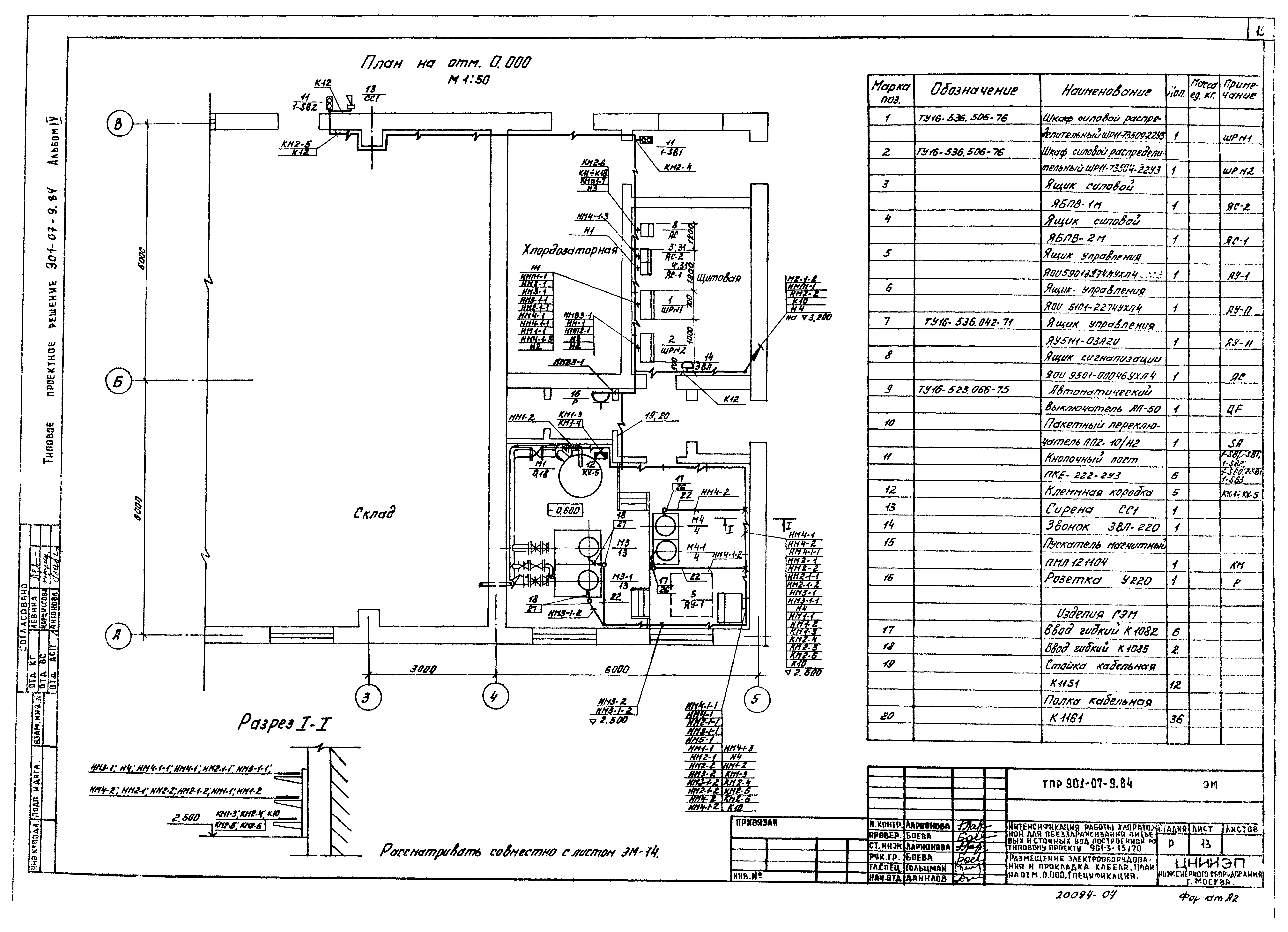
| Оглавление: | Чертежи основного комплекта марки ЭМ Общие данные Схема электрическая принципиальная питания электрооборудования Схема электрическая принципиальная управления задвижкой на затворном баке Схемы электрические принципиальные управления насосами и вентиляторами Схема электрическая принципиальная управления приточной системой П-1, П-2 Схема электрическая принципиальная аварийной сигнализации Схема подключения электрооборудования Кабельный журнал Размещение электрооборудования и прокладка кабеля. План на отм. 0.000. Спецификация Размещение электрооборудования и прокладка кабеля. План на отм. 3.200. Спецификация Чертежи основного комплекта марки АТХ Общие данные Схема функциональная Схема подключения приборов технологического контроля Размещение приборов технологического контроля. План на отм. 3.200; 0.000. Спецификация Чертежи основного комплекта марки СС Общие данные. Фрагмент плана на отм. 0.000 с сетями связи. Экспликация помещений. Спецификация Чертежи основного комплекта марки ЭО Общие данные Электрическое освещение. План на отм. 0.000; 3.200 Электрическое освещение. Фрагмент плана на отм. 0.000. Спецификация Молниезащита. План. Спецификация |
| Разработан: | ЦНИИЭП иженерного оборудования |
| Утверждён: | 14.02.1984 Госгражданстрой (Gosgrazhdanstroy 48) |
| Расположен в: |




























