Информационная система
«Ёшкин Кот»

Скачать базу одним архивом
Скачать обновления
История создания базы
Карта сайта

Скачать Типовой проект 244-1-66.86 Альбом VI. Инженерное оборудование выше отм. 0.000

Дата актуализации: 10.08.2017

Типовой проект 244-1-66.86

Альбом VI. Инженерное оборудование выше отм. 0.000

Обозначение: Типовой проект 244-1-66.86
Обозначение англ: 244-1-66.86
Статус:не определен законодательством
Название рус.:Альбом VI. Инженерное оборудование выше отм. 0.000
Дата добавления в базу:01.10.2014
Дата актуализации:05.05.2017
Дата введения:08.12.1986
Оглавление:Содержание альбома
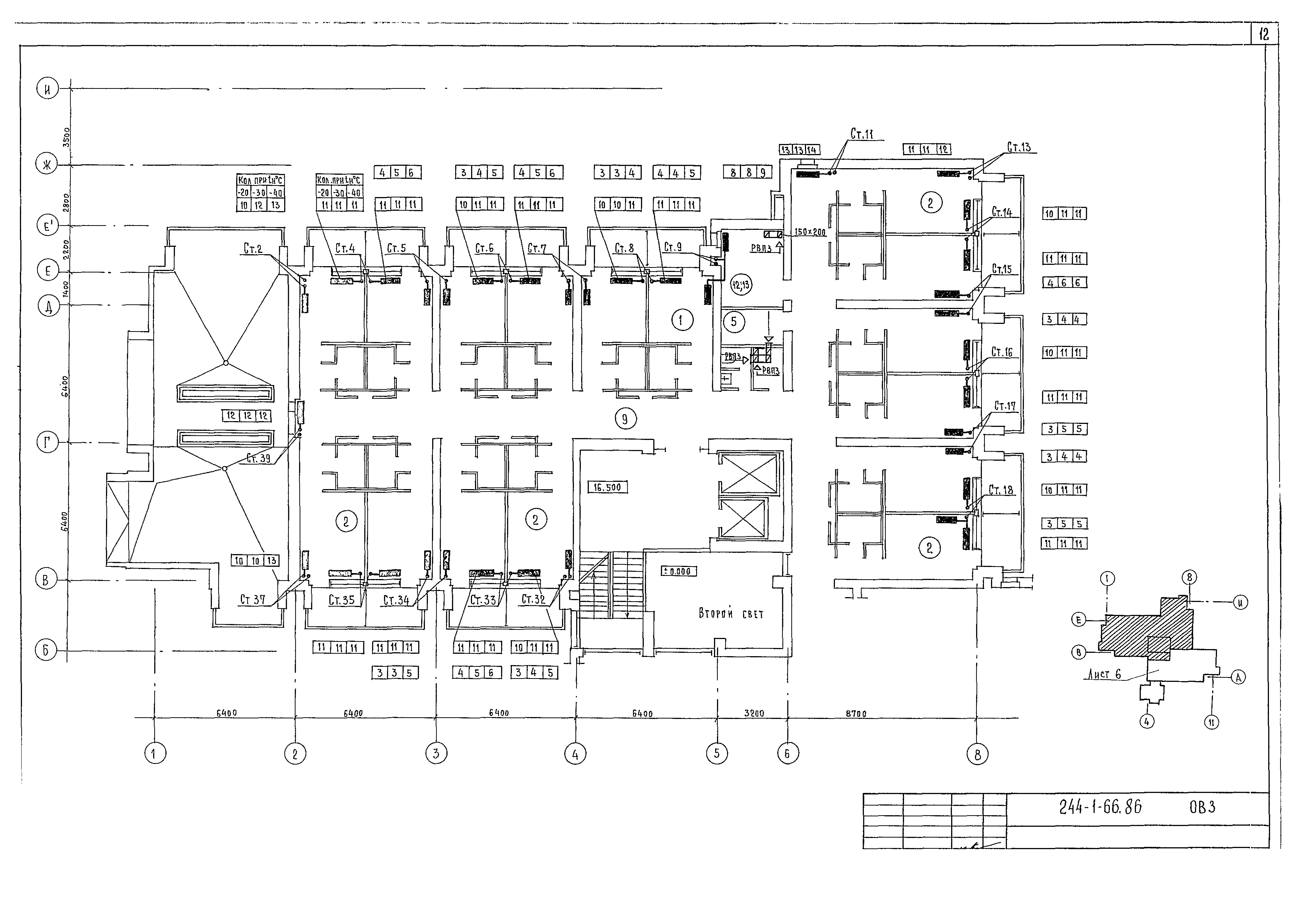
Чертежи основного комплекта марки ОВ3
   Общие данные
   План 1 этажа между осями А - В
   План 2 этажа между осями А - В
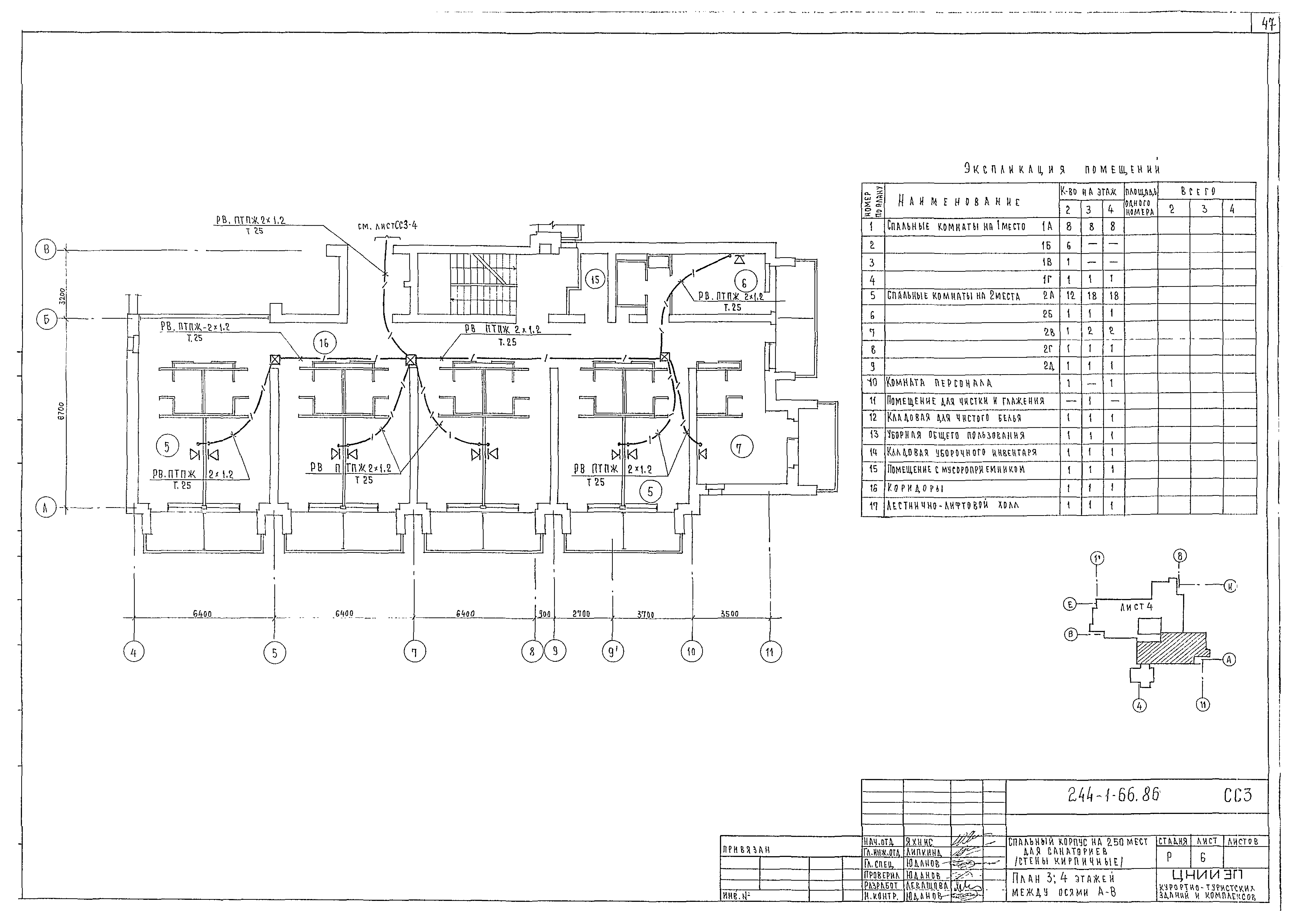
   План 3, 4 этажей между осями А - В
   План 5 этажа между осями А - В
   План 6 этажа между осями А - В
   План 1 этажа между осями В - И
   План 2, 3, 4 этажей между осями В - И
   План 5 этажа между осями В - И
   План 6 этажа между осями В - И
   Схема системы отопления спальных номеров. Стояки
Чертежи основного комплекта марки ВК3
   Общие данные
   План 1 этажа между осями А - В
   План 1 этажа между осями В - И
   План 2 этажа между осями А - В
   План 2, 3, 4 этажей между осями В - И
   План 3, 4 этажей между осями А - В
   План 5, 6 этажей между осями А - В
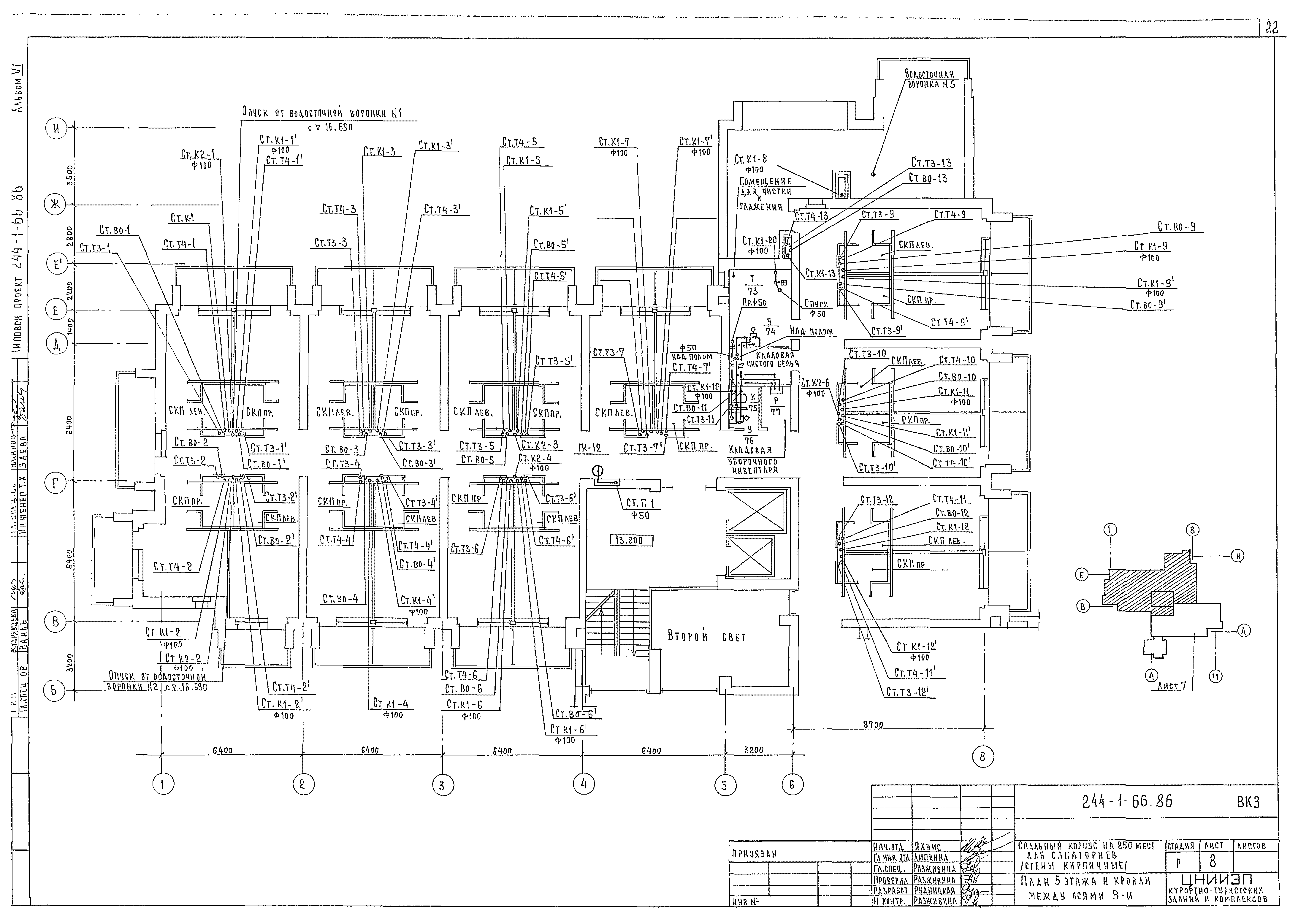
   План 5 этажа и кровли между осями В - И
   План 6 этажа и кровли между осями В - И
   Схемы холодного, горячего и циркуляционного водоснабжения по стоякам
   Схемы по канализационным и водосточным стоякам
Чертежи основного комплекта марки ЭО3
   Общие данные
   Главная расчетная схема
   План 1 этажа между осями А - В. Электроосвещение
   План 1 этажа между осями В - И. Электроосвещение
   План 2 этажа между осями А - В. Электроосвещение
   План 2 этажа между осями В - И. Электроосвещение
   План 3, 4 этажей между осями А - В. Электроосвещение
   План 3, 4 этажей между осями В - И. Электроосвещение
   План 5, 6 этажей между осями А - В. План кровли. Электроосвещение
   План 5 этажа между осями В - И. Электроосвещение
   План 6 этажа между осями В - И. Электроосвещение
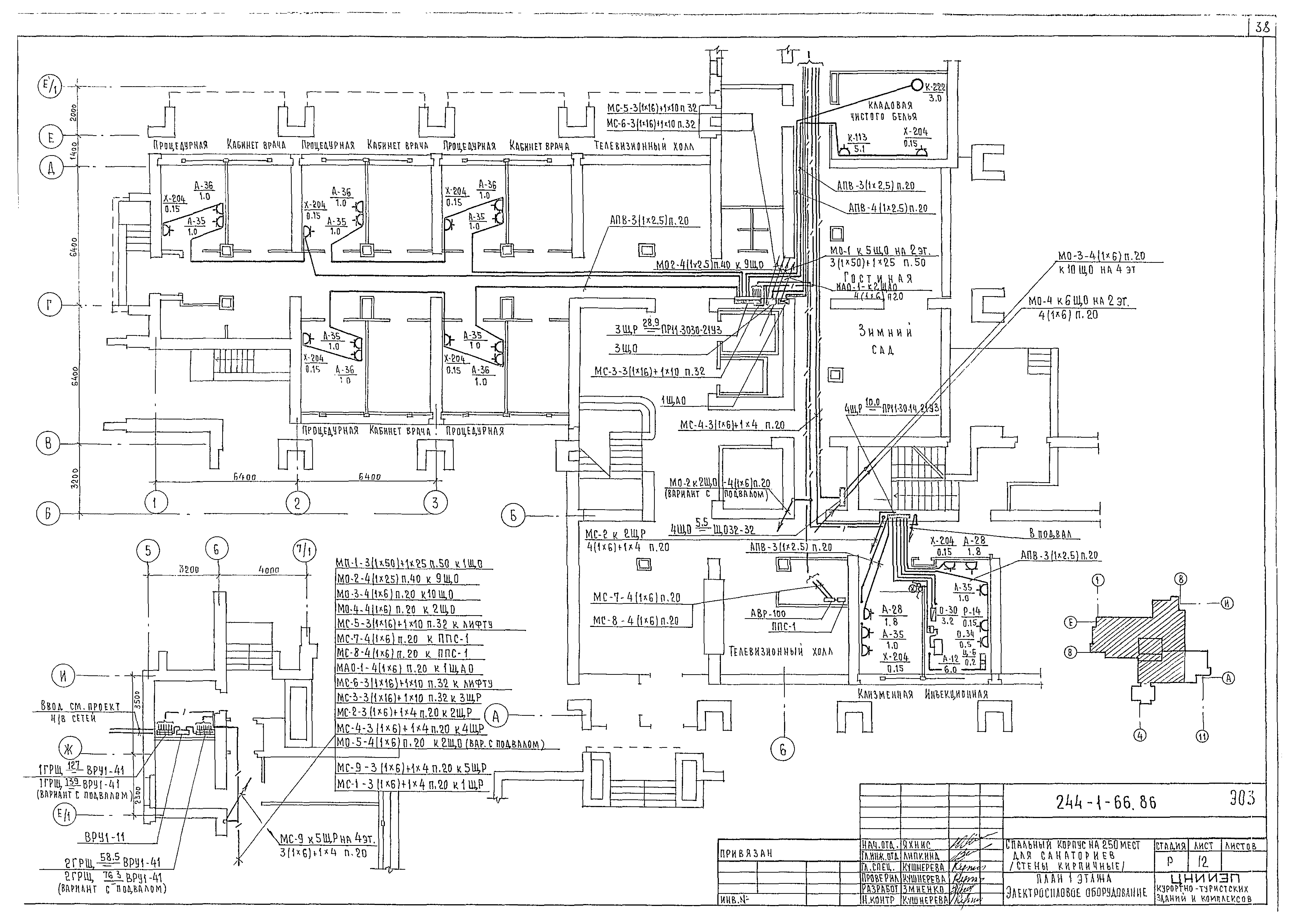
   План 1 этажа. Электросиловое оборудование
   План 4 этажа между осями Г - Е, 3 - 8. Электросиловое оборудование
   Расчетные схемы, щиты 4ШР, 5ШР
   Расчетные схемы, щит 3ШР
Чертежи основного комплекта марки СС3
   Общие данные
   План 1 этажа между осями В - И
   План 1 этажа между осями А - В
   План 2, 3, 4 этажей между осями В - И
   План 2 этажа между осями А - В
   План 3, 4 этажей между осями А - В
   План 5, 6 этажей оси В - И. План кровли на отм. 13.200
   План 5, 6 этажей оси А - В. План кровли на отм. 13.200
   План кровли. Разрез 2-2
   Узлы трубной разводки
Чертежи основного комплекта марки ПС2
   Общие данные
   План 1 этажа между осями В - И
   План 1 этажа между осями А - В
   План 2, 3, 4 этажей между осями В - И на отм. 3.300; 6.600; 9.900
   План 2 этажа между осями А - В
   План 3, 4 этажей между осями А - В
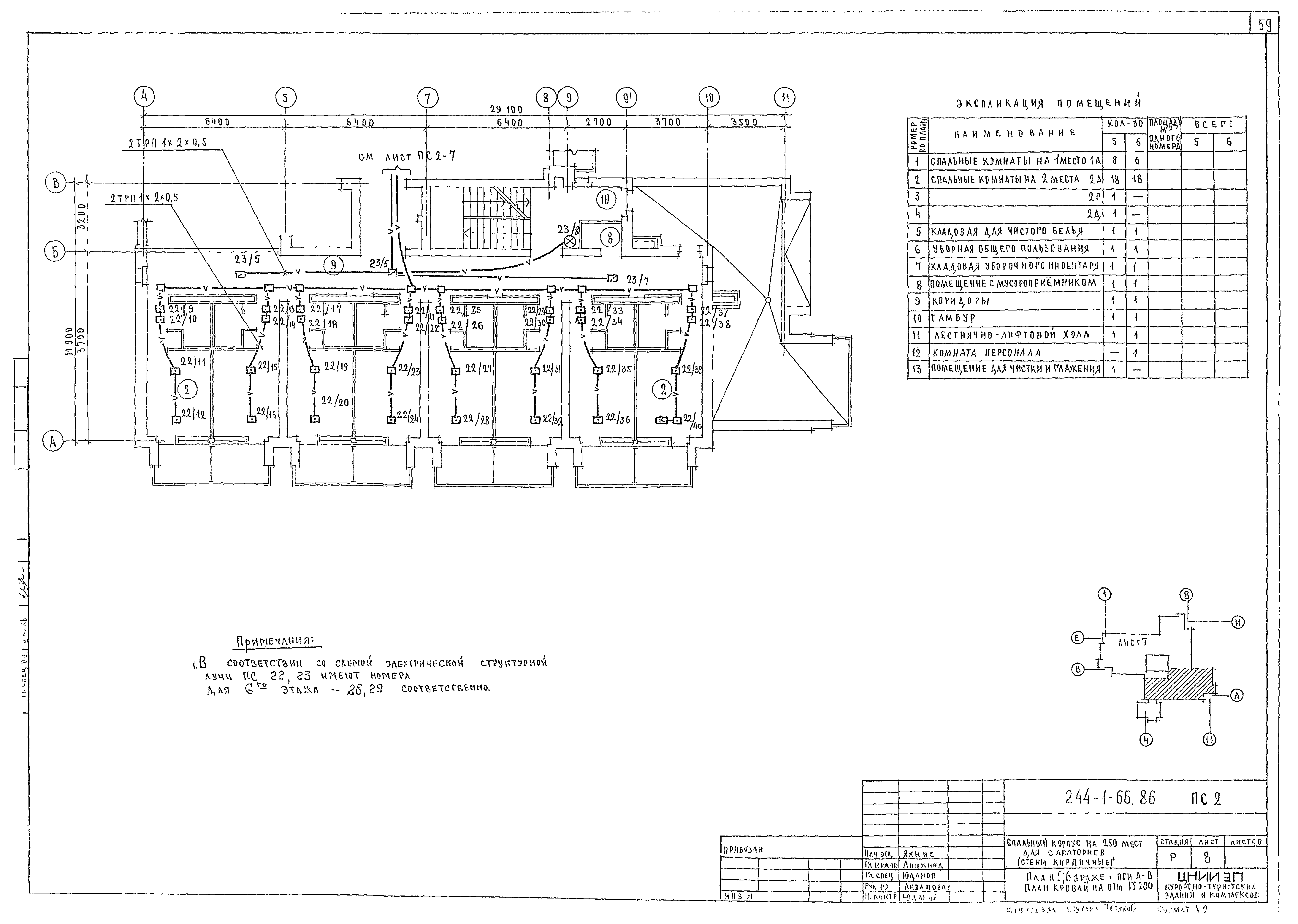
   План 5, 6 этажей оси В - И. План кровли на отм. 13.200
   План 5, 6 этажей оси А - В. План кровли на отм. 13.200
   Задание заводу-изготовителю на ВРУ
Разработан: ЦНИИЭП курортно-туристских зданий и комплексов Госгражданстроя
Утверждён:03.10.1984 Госгражданстрой (Gosgrazhdanstroy 280)
Расположен в:Техническая документация Строительство Справочные документы Типовые строительные конструкции, изделия и узлы Общероссийский строительный каталог Защитные сооружения гражданской обороны Типовые проекты защитных сооружений гражданской обороны для жилищно-гражданского строительства Для строительства в городах и поселках городского типа Встроенные помещения, приспосабливаемые под противорадиационные укрытия в общественных зданиях Противорадиационные укрытия в учреждениях санаторно-курортного лечения, отдыха и туризма
Типовой проект 244-1-66.86Типовой проект 244-1-66.86Типовой проект 244-1-66.86Типовой проект 244-1-66.86Типовой проект 244-1-66.86Типовой проект 244-1-66.86Типовой проект 244-1-66.86Типовой проект 244-1-66.86Типовой проект 244-1-66.86Типовой проект 244-1-66.86Типовой проект 244-1-66.86Типовой проект 244-1-66.86Типовой проект 244-1-66.86Типовой проект 244-1-66.86Типовой проект 244-1-66.86Типовой проект 244-1-66.86Типовой проект 244-1-66.86Типовой проект 244-1-66.86Типовой проект 244-1-66.86Типовой проект 244-1-66.86Типовой проект 244-1-66.86Типовой проект 244-1-66.86Типовой проект 244-1-66.86Типовой проект 244-1-66.86Типовой проект 244-1-66.86Типовой проект 244-1-66.86Типовой проект 244-1-66.86Типовой проект 244-1-66.86Типовой проект 244-1-66.86Типовой проект 244-1-66.86Типовой проект 244-1-66.86Типовой проект 244-1-66.86Типовой проект 244-1-66.86Типовой проект 244-1-66.86Типовой проект 244-1-66.86Типовой проект 244-1-66.86Типовой проект 244-1-66.86Типовой проект 244-1-66.86Типовой проект 244-1-66.86Типовой проект 244-1-66.86Типовой проект 244-1-66.86Типовой проект 244-1-66.86Типовой проект 244-1-66.86Типовой проект 244-1-66.86Типовой проект 244-1-66.86Типовой проект 244-1-66.86Типовой проект 244-1-66.86Типовой проект 244-1-66.86Типовой проект 244-1-66.86Типовой проект 244-1-66.86Типовой проект 244-1-66.86Типовой проект 244-1-66.86Типовой проект 244-1-66.86Типовой проект 244-1-66.86Типовой проект 244-1-66.86Типовой проект 244-1-66.86Типовой проект 244-1-66.86Типовой проект 244-1-66.86Типовой проект 244-1-66.86Типовой проект 244-1-66.86Типовой проект 244-1-66.86

© 2013 Ёшкин Кот :-) Карта сайта