Информационная система
«Ёшкин Кот»

Скачать базу одним архивом
Скачать обновления
История создания базы
Карта сайта

Скачать Типовой проект 244-1-66.86 Альбом III. Часть 2. Архитектурно-строительные решения выше отм. 0.000. Лечебная технология

Дата актуализации: 10.08.2017

Типовой проект 244-1-66.86

Альбом III. Часть 2. Архитектурно-строительные решения выше отм. 0.000. Лечебная технология

Обозначение: Типовой проект 244-1-66.86
Обозначение англ: 244-1-66.86
Статус:не определен законодательством
Название рус.:Альбом III. Часть 2. Архитектурно-строительные решения выше отм. 0.000. Лечебная технология
Дата добавления в базу:01.10.2014
Дата актуализации:05.05.2017
Дата введения:08.12.1986
Оглавление:Архитектурно-строительные решения выше отм. 0.000 (продолжение)
   Схема расположения элементов лестницы 1
   Фрагмент 1 лестницы 1
   Фрагмент 2 лестницы 1
   Схема расположения лестницы 2
   Схема расположения объемных элементов и плит перекрытия лифтовых шахт. Разрезы 1-1…3-3
   Развертки и сечения лифтовых шахт
   План приямка шахты и машинного помещения лифтов
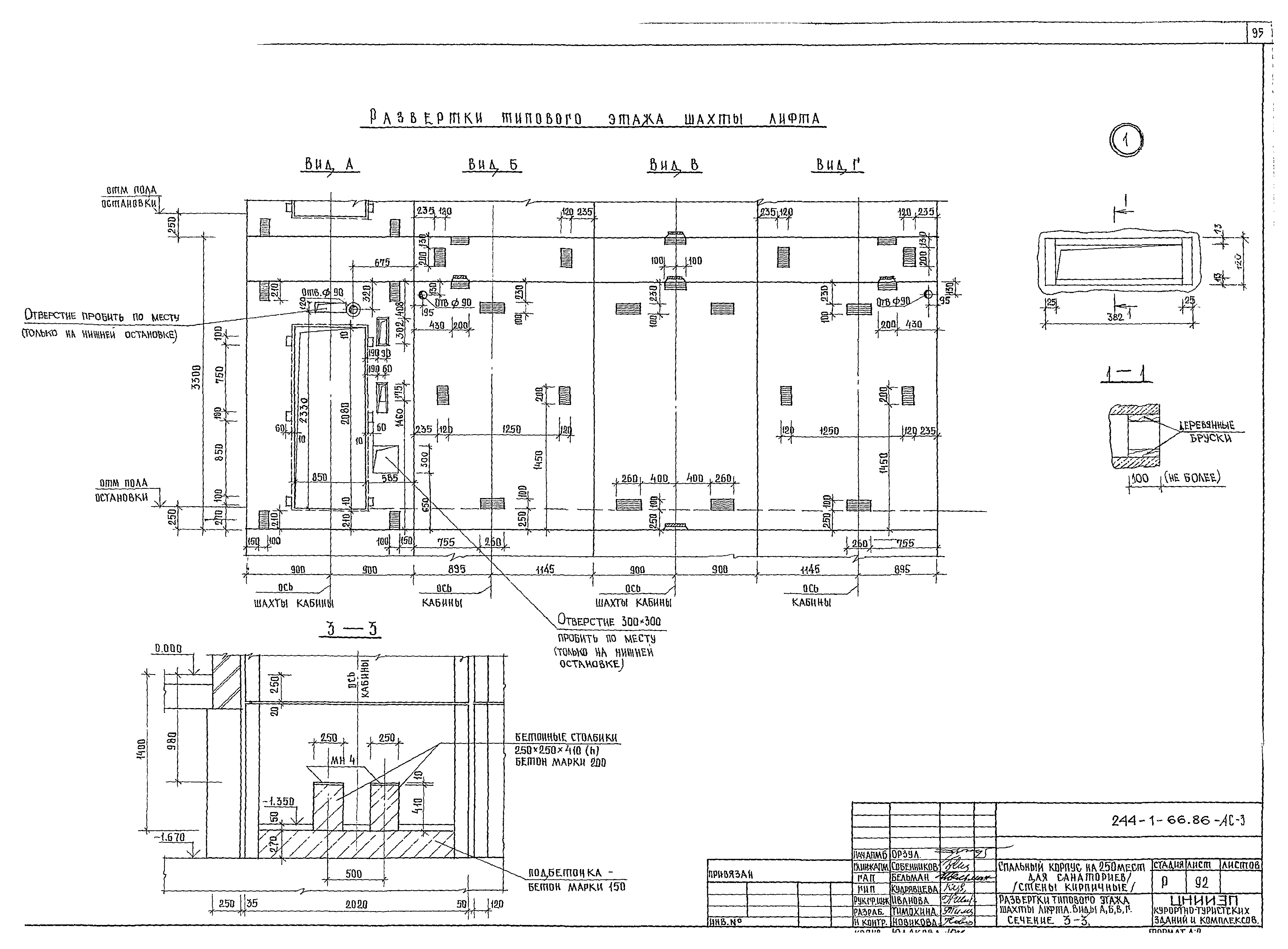
   Развертки типового этажа шахты лифта. Виды А, Б, В, Г. Сечение 3-3
   Развертки типового этажа шахты лифта. Виды Д, Е, Ж, И. Сечение 4-4
   Чертеж на заказ лифта пассажирского Q = 500 т, V = 1,0 м/сек. Кабина 1020х1420х2100
   Чертеж на заказ лифта пассажирского Q = 500 т, V = 1,0 м/сек. Кабина 1080х2200х2100
   Вентшахта ВШ1, ВШ2
   Вентшахта ВШ3
   Вентшахта ВШ4, ВШ5
   Вентшахта ВШ6
   Схема расположения элементов витража В-1 (для Т = минус 20; минус 30 градусов Цельсия)
   Схема расположения элементов витражей В-2, В-3 (для Т = минус 20; минус 30 градусов Цельсия)
   Схема остекления витражей В-1, В-2, В-3 (для Т = минус 20; минус 30 градусов Цельсия)
   Схема остекления витражей В-5, В-6 (для Т = минус 20; минус 30 градусов Цельсия)
   Схема остекления витража В-6. Схема расположения элементов витражей В-7, В-8 (для Т = минус 20; минус 30 градусов Цельсия)
   Схема остекления витража В-8. Схема расположения элементов витражей В-9, В-10 (для Т = минус 20; минус 30 градусов Цельсия)
   Схема расположения элементов витражей В-4, В-11 (для Т = минус 20; минус 30 градусов Цельсия)
   Выборка материалов (для Т = минус 20; минус 30 градусов Цельсия)
   Узлы I - VI (для Т = минус 20; минус 30 градусов Цельсия)
   Узлы VII, VIII (для Т = минус 20; минус 30 градусов Цельсия)
   Подвесной потолок. Схема 1
   Схема несущего каркаса подвесного потолка. Схема 1
   Схема расположения элементов витражей В-1 (для Т = минус 40 градусов Цельсия)
   Схема расположения элементов витражей В-2, В-3 (для Т = минус 40 градусов Цельсия)
   Схема остекления витражей В-1, В-2, В-3, В-4 (для Т = минус 40 градусов Цельсия)
   Схема расположения элементов витражей В-5, В-6 (для Т = минус 40 градусов Цельсия)
   Схема остекления витража В-6. Схема расположения элементов витражей В-7, В-8 (для Т = минус 40 градусов Цельсия)
   Схема остекления витража В-8. Схема расположения элементов витражей В-9, В-10 (для Т = минус 40 градусов Цельсия)
   Схема расположения элементов витражей В-4, В-11 (для Т = минус 40 градусов Цельсия)
   Выборка материалов (для Т = минус 40 градусов Цельсия)
   Узлы I - VI (для Т = минус 40 градусов Цельсия)
   Узлы VII, VIII (для Т = минус 40 градусов Цельсия)
   Выборка материалов (для Т = минус 40 градусов Цельсия)
   Лестницы ЛМ-1, ЛМ-2, ЛМ-3
   Подвесные потолки
   Вентшахта ВШ7
Лечебная технология
   Общие данные
   Фрагмент I плана 1 этажа
   Фрагменты II и III плана 1 этажа. Фрагменты 2, 3, 4, 5, 6 этажей
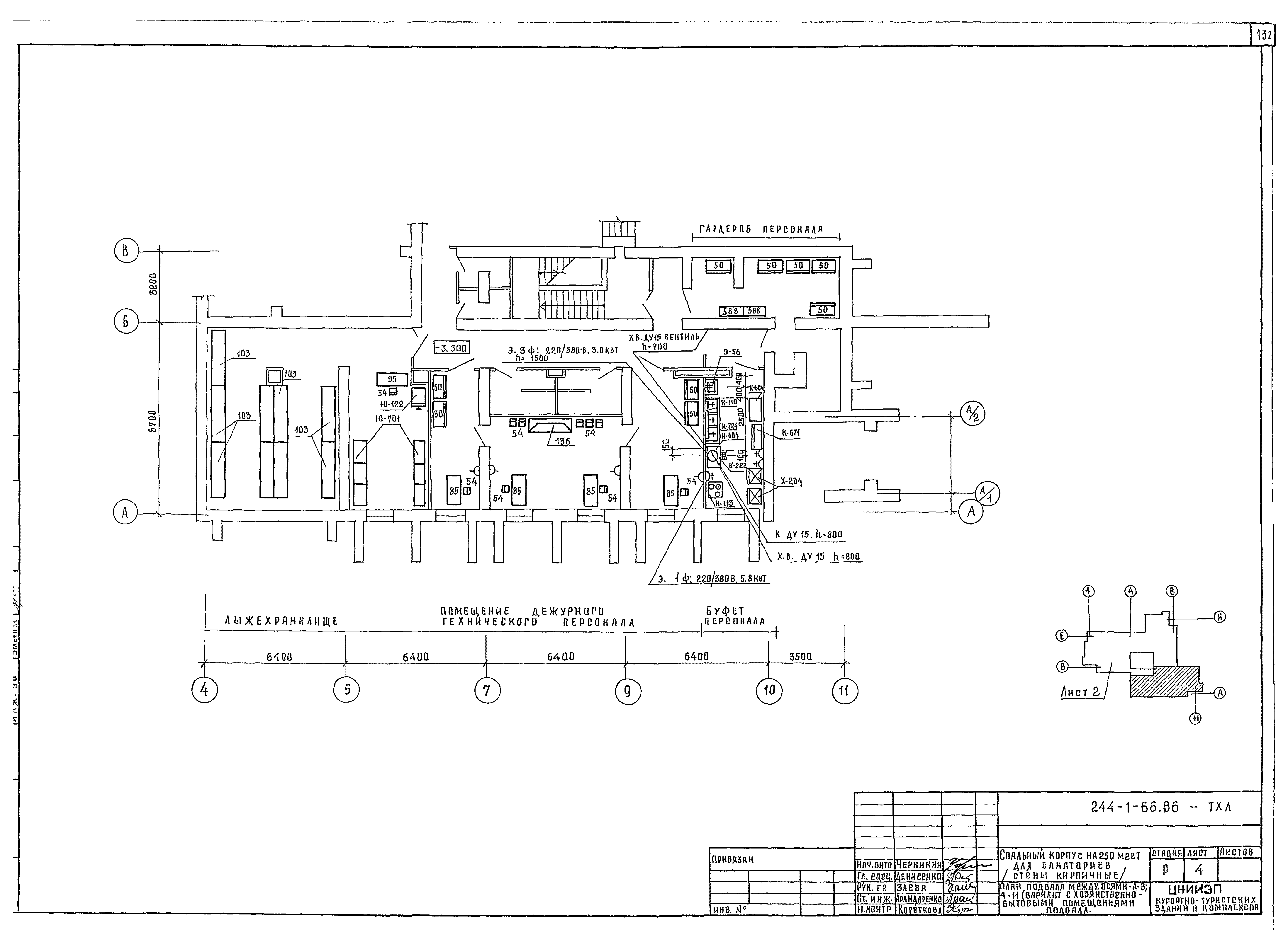
   План подвала между осями А - В, 4 - 11 (вариант с хозяйственно-бытовыми помещениями подвала)
   План подвала между осями Б - И, 1 - 8 (вариант с хозяйственно-бытовыми помещениями)
Разработан: ЦНИИЭП курортно-туристских зданий и комплексов Госгражданстроя
Утверждён:03.10.1984 Госгражданстрой (Gosgrazhdanstroy 280)
Расположен в:Техническая документация Строительство Справочные документы Типовые строительные конструкции, изделия и узлы Общероссийский строительный каталог Защитные сооружения гражданской обороны Типовые проекты защитных сооружений гражданской обороны для жилищно-гражданского строительства Для строительства в городах и поселках городского типа Встроенные помещения, приспосабливаемые под противорадиационные укрытия в общественных зданиях Противорадиационные укрытия в учреждениях санаторно-курортного лечения, отдыха и туризма
Типовой проект 244-1-66.86Типовой проект 244-1-66.86Типовой проект 244-1-66.86Типовой проект 244-1-66.86Типовой проект 244-1-66.86Типовой проект 244-1-66.86Типовой проект 244-1-66.86Типовой проект 244-1-66.86Типовой проект 244-1-66.86Типовой проект 244-1-66.86Типовой проект 244-1-66.86Типовой проект 244-1-66.86Типовой проект 244-1-66.86Типовой проект 244-1-66.86Типовой проект 244-1-66.86Типовой проект 244-1-66.86Типовой проект 244-1-66.86Типовой проект 244-1-66.86Типовой проект 244-1-66.86Типовой проект 244-1-66.86Типовой проект 244-1-66.86Типовой проект 244-1-66.86Типовой проект 244-1-66.86Типовой проект 244-1-66.86Типовой проект 244-1-66.86Типовой проект 244-1-66.86Типовой проект 244-1-66.86Типовой проект 244-1-66.86Типовой проект 244-1-66.86Типовой проект 244-1-66.86Типовой проект 244-1-66.86Типовой проект 244-1-66.86Типовой проект 244-1-66.86Типовой проект 244-1-66.86Типовой проект 244-1-66.86Типовой проект 244-1-66.86Типовой проект 244-1-66.86Типовой проект 244-1-66.86Типовой проект 244-1-66.86Типовой проект 244-1-66.86Типовой проект 244-1-66.86Типовой проект 244-1-66.86Типовой проект 244-1-66.86Типовой проект 244-1-66.86Типовой проект 244-1-66.86Типовой проект 244-1-66.86Типовой проект 244-1-66.86

© 2013 Ёшкин Кот :-) Карта сайта