Информационная система
«Ёшкин Кот»

Скачать базу одним архивом
Скачать обновления
История создания базы
Карта сайта

Скачать Типовой проект 901-6-82.86 Альбом IV. Строительные изделия (из ТП 901-6-81.86)

Дата актуализации: 10.08.2017

Типовой проект 901-6-82.86

Альбом IV. Строительные изделия (из ТП 901-6-81.86)

Обозначение: Типовой проект 901-6-82.86
Обозначение англ: 901-6-82.86
Статус:отменен
Название рус.:Альбом IV. Строительные изделия (из ТП 901-6-81.86)
Дата добавления в базу:01.10.2014
Дата актуализации:05.05.2017
Дата введения:01.01.1991
Оглавление:901-6-81.86-КЖИ.ДО Содержание альбома
901-6-81.86-КЖИ.ТТ Технические требования
901-6-81.86-КЖИ.1.1.01 Каркас пространственный
901-6-81.86-КЖИ.1.1.01.01 Каркас плоский
901-6-81.86-КЖИ.1.1.02 Каркас пространственный
901-6-81.86-КЖИ.1.1.02.01 Каркас плоский
901-6-81.86-КЖИ.12 Стеновая панель
901-6-81.86-КЖИ.1.2.01 Каркас пространственный
901-6-81.86-КЖИ.1.2.01.01 Каркас плоский
901-6-81.86-КЖИ.1.9.01 Изделие закладное
901-6-81.86-КЖИ.1.2.01.02 Сетка арматурная
901-6-81.86-КЖИ.1.3 Колонна
901-6-81.86-КЖИ.1.3.01 Каркас пространственный
901-6-81.86-КЖИ.1.3.01.01 Каркас плоский
901-6-81.86-КЖИ.1.3.01.02 Каркас плоский
901-6-81.86-КЖИ.1.4 Ригель
901-6-81.86-КЖИ.1.4. ВМС Ригель. Ведомость расхода стали
901-6-81.86-КЖИ.1.4.СБ Ригель. Сборочный чертеж
901-6-81.86-КЖИ.1.4.01 Каркас пространственный
901-6-81.86-КЖИ.1.4.01СБ Каркас пространственный. Сборочный чертеж
901-6-81.86-КЖИ.1.4.01.01 Каркас плоский
901-6-81.86-КЖИ.1.4.01.01СБ Каркас плоский. Сборочный чертеж
901-6-81.86-КЖИ.1.4.01.02 Каркас плоский
901-6-81.86-КЖИ.1.5 Балка
901-6-81.86-КЖИ.1.5.01 Каркас пространственный
901-6-81.86-КЖИ.1.5.01.01 Каркас плоский
901-6-81.86-КЖИ.1.6.01 Щит
901-6-81.86-КЖИ.1.6.02 Металлический козырек
901-6-81.86-КЖИ.1.6.03 Ограждение
901-6-81.86-КЖИ.1.6.04 Опора вентилятора
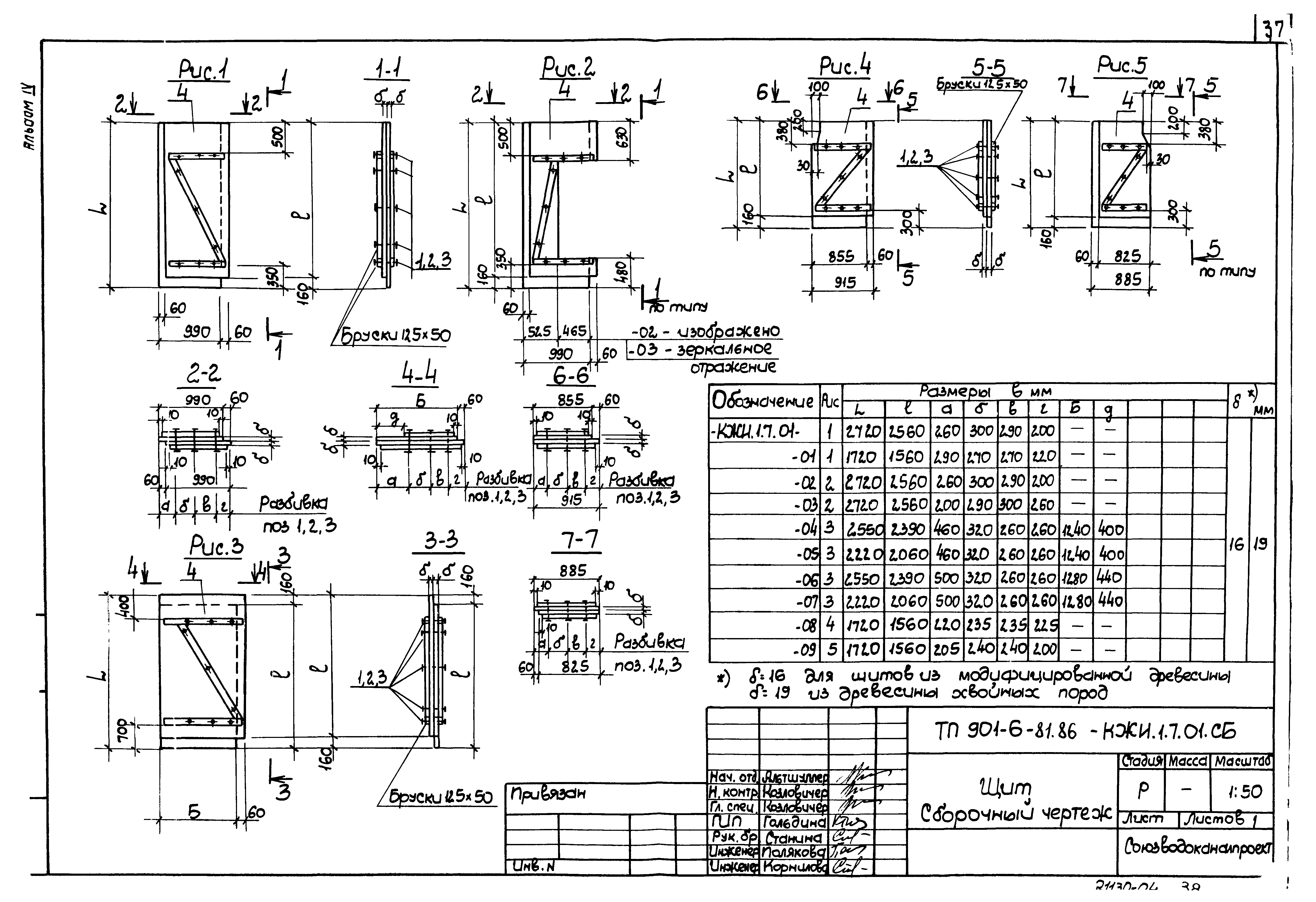
901-6-81.86-КЖИ.1.7.01 Щит
901-6-81.86-КЖИ.1.7.02 Щит
901-6-81.86-КЖИ.1.7.01.СБ Щит. Сборочный чертеж
901-6-81.86-КЖИ.1.7.02.СБ Щит. Сборочный чертеж
901-6-81.86-КЖИ.1.7.03 Щит
901-6-81.86-КЖИ.1.7.04 Щит
901-6-81.86-КЖИ.1.7.03.СБ Щит. Сборочный чертеж
901-6-81.86-КЖИ.1.7.04.СБ Щит. Сборочный чертеж
901-6-81.86-КЖИ.1.8.01 Изделие соединительное
901-6-81.86-КЖИ.1.8.01СБ Изделие соединительное. Сборочный чертеж
901-6-81.86-КЖИ.1.8.02 Изделие соединительное
901-6-81.86-КЖИ.1.8.03 Изделие соединительное
901-6-81.86-КЖИ.1.8.04 Изделие соединительное
901-6-81.86-КЖИ.1.10 Колонна стальная
901-6-81.86-КЖИ.1.11.01 Изделие соединительное
901-6-81.86-КЖИ.1.11.02 Изделие соединительное
901-6-81.86-КЖИ.1.11.03 Изделие соединительное
901-6-81.86-КЖИ.1.11.04 Изделие соединительное
901-6-81.86-КЖИ.1.11.05 Изделие соединительное
901-6-81.86-КЖИ.1.11.06 Каркас пространственный
901-6-81.86-КЖИ.1.11.06.01 Каркас плоский
901-6-81.86-КЖИ.1.11.07 Изделие закладное
901-6-81.86-КЖИ.1.11.08 Изделие закладное
Разработан: Союзводоканалпроект
Утверждён:03.12.1984 Госстрой СССР (37)
Расположен в:Техническая документация Строительство Справочные документы Типовые строительные конструкции, изделия и узлы Общероссийский строительный каталог Промышленные предприятия, здания и сооружения Здания и сооружения санитарно-технические Водоснабжение Градирни
Заменяет собой:
  • Типовой проект 901-6-56
Типовой проект 901-6-82.86Типовой проект 901-6-82.86Типовой проект 901-6-82.86Типовой проект 901-6-82.86Типовой проект 901-6-82.86Типовой проект 901-6-82.86Типовой проект 901-6-82.86Типовой проект 901-6-82.86Типовой проект 901-6-82.86Типовой проект 901-6-82.86Типовой проект 901-6-82.86Типовой проект 901-6-82.86Типовой проект 901-6-82.86Типовой проект 901-6-82.86Типовой проект 901-6-82.86Типовой проект 901-6-82.86Типовой проект 901-6-82.86Типовой проект 901-6-82.86Типовой проект 901-6-82.86Типовой проект 901-6-82.86Типовой проект 901-6-82.86Типовой проект 901-6-82.86Типовой проект 901-6-82.86Типовой проект 901-6-82.86Типовой проект 901-6-82.86Типовой проект 901-6-82.86Типовой проект 901-6-82.86Типовой проект 901-6-82.86Типовой проект 901-6-82.86Типовой проект 901-6-82.86Типовой проект 901-6-82.86Типовой проект 901-6-82.86Типовой проект 901-6-82.86Типовой проект 901-6-82.86Типовой проект 901-6-82.86Типовой проект 901-6-82.86Типовой проект 901-6-82.86Типовой проект 901-6-82.86Типовой проект 901-6-82.86Типовой проект 901-6-82.86Типовой проект 901-6-82.86Типовой проект 901-6-82.86Типовой проект 901-6-82.86Типовой проект 901-6-82.86Типовой проект 901-6-82.86Типовой проект 901-6-82.86Типовой проект 901-6-82.86Типовой проект 901-6-82.86Типовой проект 901-6-82.86Типовой проект 901-6-82.86Типовой проект 901-6-82.86Типовой проект 901-6-82.86Типовой проект 901-6-82.86Типовой проект 901-6-82.86

© 2013 Ёшкин Кот :-) Карта сайта