Информационная система
«Ёшкин Кот»

Скачать базу одним архивом
Скачать обновления
История создания базы
Карта сайта

Скачать Типовой проект 901-6-62 Альбом II. Часть 1. Двухсекционная градирня

Дата актуализации: 10.08.2017

Типовой проект 901-6-62

Альбом II. Часть 1. Двухсекционная градирня

Обозначение: Типовой проект 901-6-62
Обозначение англ: 901-6-62
Статус:заменен
Название рус.:Альбом II. Часть 1. Двухсекционная градирня
Дата добавления в базу:01.10.2014
Дата актуализации:05.05.2017
Дата введения:01.07.1990
Оглавление:Ведомость чертежей
Технологические чертежи
   Общие данные
   Общий вид брызгальной градирни
   Расстановка водоуловительных решеток. План, разрезы
   Водораспределительная система при гидравлической нагрузке 750 куб. м/ч. План, разрезы
   Водораспределительная система при гидравлической нагрузке 1000 куб. м/ч. План, разрезы
   Расстановка блоков воздухонаправляющих щитов. План, разрезы
   Водопроводное оборудование бассейна при гидравлических нагрузках 750 и 1000 куб. м/ч
Архитектурно-строительные решения
   Общие данные
   Фасады 1 - 7 и А - Д
   Фасады 7 - 1 и Д - А
   Планы на отм. - 2.000 и 0.000
   Планы на отм. 5.020 и 8.200
   План на отм. 10.400
   Разрезы 1-1 и 2-2
   Продольная и торцевая обшивка
   Межсекционная обшивка
Конструкции железобетонные
   Общие данные
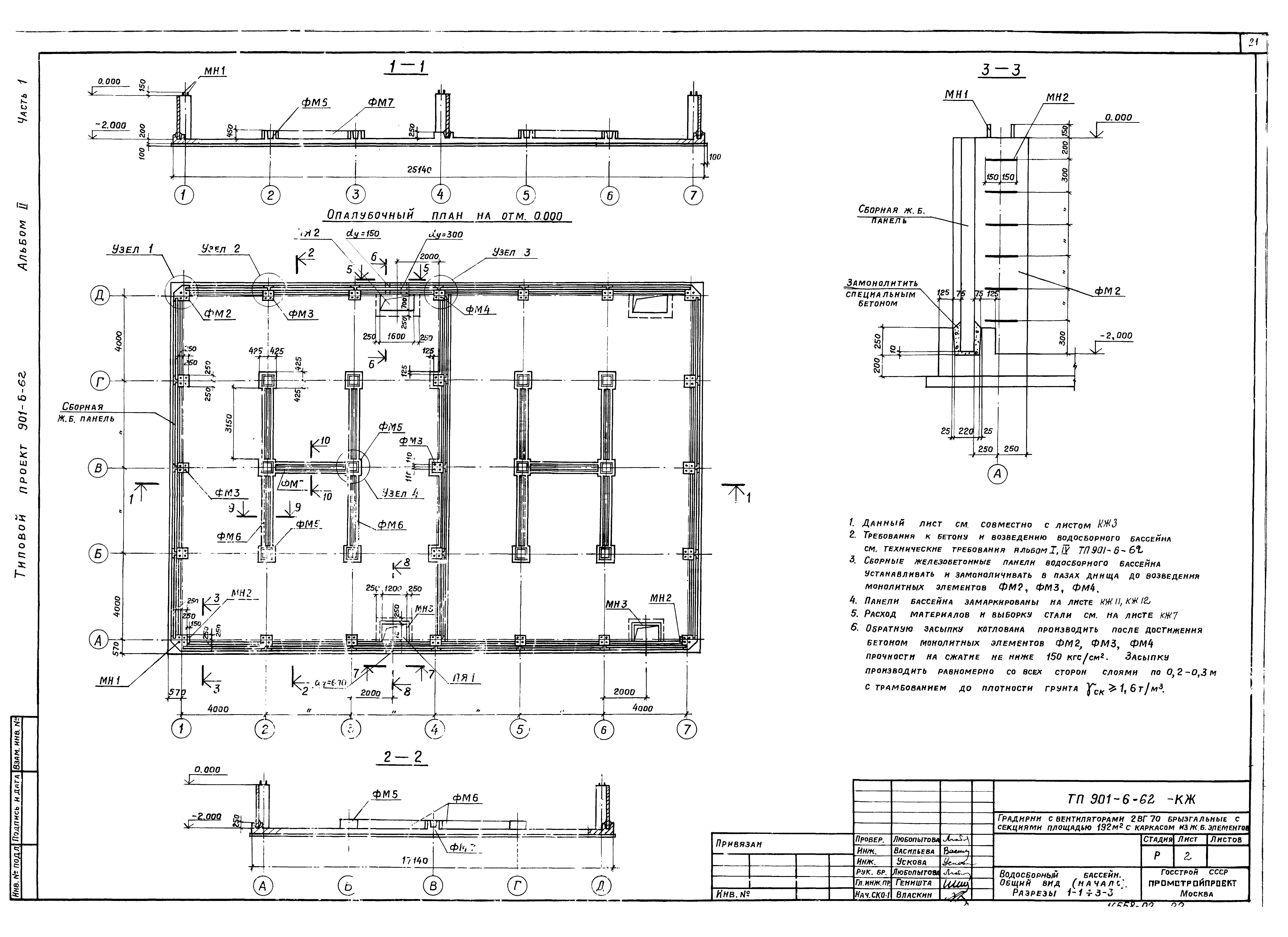
   Водосборный бассейн. Общий вид. Разрезы 1-1 - 3-3
   Водосборный бассейн. Общий вид. Узлы 1 - 4. Разрезы 4-4 - 10-10
   Водосборный бассейн. Схема армирования днища. Разрезы 1-1, 2-2. Узлы А, Б, В
   Водосборный бассейн. Схема армирования ФМ2 - ФМ7
   Водосборный бассейн. Схема армирования ПЯ1 и ПЯ2
   Водосборный бассейн. Схема армирования. Ведомость стержней и выборка стали
   Фундаменты ФМ8 и ФМ9. Общий вид
   Розета. Общий вид и схема армирования
   Схемы расположения сборных элементов каркаса
   Схемы расположения сборных элементов каркаса. Вариант для несейсмических условий
   Схемы расположения сборных элементов каркаса. Вариант для расчетной сейсмичности 7 и 8 баллов
Конструкции металлические
   Общие данные
   Техническая спецификация металла
   План на отм. 10.520. Разрез 1-1
   Разрез 2/2-2/2. План площадок на отм. 8.200
   План площадок на отм. 5.600 и опор на отм. 5.020
   Разрезы 4/4-4/4 - 7/4-7/4
   Разрез 3/2-3/2. Ведомость элементов
   Узлы 1, 2
   Узлы 3, 4, 5, 6
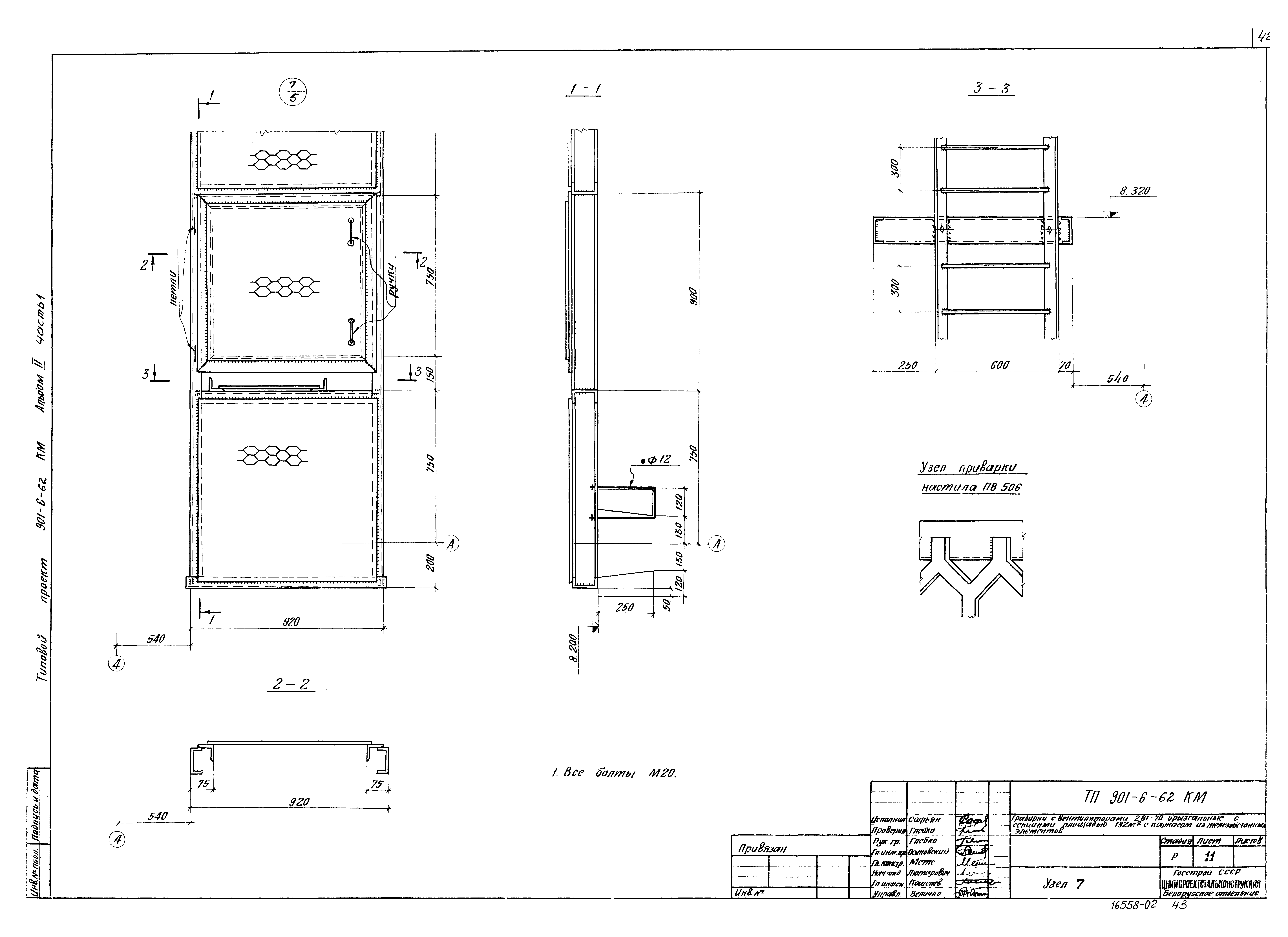
   Узел 7
   Узлы 8, 9, 10
   Узлы 11, 12, 13, 14
Электрооборудование
   Общие данные. Ведомость чертежей раздела I марки ЭО
   Общие данные. Принципиальная схема силовой сети 380/220 В
   Принципиальная схема управления вентилятором
   Опросный лист для заказа кнопочных постов ПКУ-15. Кабельный журнал
   Прокладка кабелей и электрическое освещение
   Ведомость чертежей раздела II марки ЭО
   Ведомость комплектных изделий
   Щит станций управления ЩСУ. Общий вид
   ЩСУ. Технические данные оборудования
   ЩСУ. Панель 1(2). Схема подключений
   Щит управления ЩУ. Общий вид
   ЩУ. Технические данные электрооборудования
   ЩУ. Перечень надписей
   Щит управления ЩУ. Схема соединений
Разработан: Союзводоканалпроект
Промстройпроект
Утверждён:19.12.1979 СоюзводоканалНИИпроект (SoyuzvodokanalNIIproject 76)
Расположен в:Техническая документация Строительство Справочные документы Типовые строительные конструкции, изделия и узлы Общероссийский строительный каталог Промышленные предприятия, здания и сооружения Здания и сооружения санитарно-технические Водоснабжение Градирни
Заменяет собой:
Чем заменён:
Типовой проект 901-6-62Типовой проект 901-6-62Типовой проект 901-6-62Типовой проект 901-6-62Типовой проект 901-6-62Типовой проект 901-6-62Типовой проект 901-6-62Типовой проект 901-6-62Типовой проект 901-6-62Типовой проект 901-6-62Типовой проект 901-6-62Типовой проект 901-6-62Типовой проект 901-6-62Типовой проект 901-6-62Типовой проект 901-6-62Типовой проект 901-6-62Типовой проект 901-6-62Типовой проект 901-6-62Типовой проект 901-6-62Типовой проект 901-6-62Типовой проект 901-6-62Типовой проект 901-6-62Типовой проект 901-6-62Типовой проект 901-6-62Типовой проект 901-6-62Типовой проект 901-6-62Типовой проект 901-6-62Типовой проект 901-6-62Типовой проект 901-6-62Типовой проект 901-6-62Типовой проект 901-6-62Типовой проект 901-6-62Типовой проект 901-6-62Типовой проект 901-6-62Типовой проект 901-6-62Типовой проект 901-6-62Типовой проект 901-6-62Типовой проект 901-6-62Типовой проект 901-6-62Типовой проект 901-6-62Типовой проект 901-6-62Типовой проект 901-6-62Типовой проект 901-6-62Типовой проект 901-6-62Типовой проект 901-6-62Типовой проект 901-6-62Типовой проект 901-6-62Типовой проект 901-6-62Типовой проект 901-6-62Типовой проект 901-6-62Типовой проект 901-6-62Типовой проект 901-6-62Типовой проект 901-6-62Типовой проект 901-6-62Типовой проект 901-6-62

© 2013 Ёшкин Кот :-) Карта сайта