Информационная система
«Ёшкин Кот»

Скачать базу одним архивом
Скачать обновления
История создания базы
Карта сайта

Скачать Типовой проект 3.503-2 Раздел 2. Устои

Дата актуализации: 10.08.2017

Типовой проект 3.503-2

Раздел 2. Устои

Обозначение: Типовой проект 3.503-2
Обозначение англ: 3.503-2
Статус:не действует
Название рус.:Раздел 2. Устои
Дата добавления в базу:01.10.2014
Дата актуализации:05.05.2017
Дата введения:01.04.1989
Оглавление:Содержание
Пояснения
Расчетные листы
Сводные таблицы расхода материалов
Общие виды опор под пролетные строения длиной 12 и 15 м высотой Нк = 4 м
Общие виды опор под пролетные строения длиной 12 и 15 м высотой Нк = 6 м
Общие виды опор под пролетные строения длиной 18 и 24 м высотой Нк = 4 м
Общие виды опор под пролетные строения длиной 18 и 24 м высотой Нк = 6 м
Общие виды опор под пролетные строения длиной 18 и 24 м высотой Нк = 8 м
Общие виды опор под пролетные строения длиной 33 м высотой Нк = 4 м
Общие виды опор под пролетные строения длиной 33 м высотой Нк = 6 м
Общие виды опор под пролетные строения длиной 33 м высотой Нк = 8 м
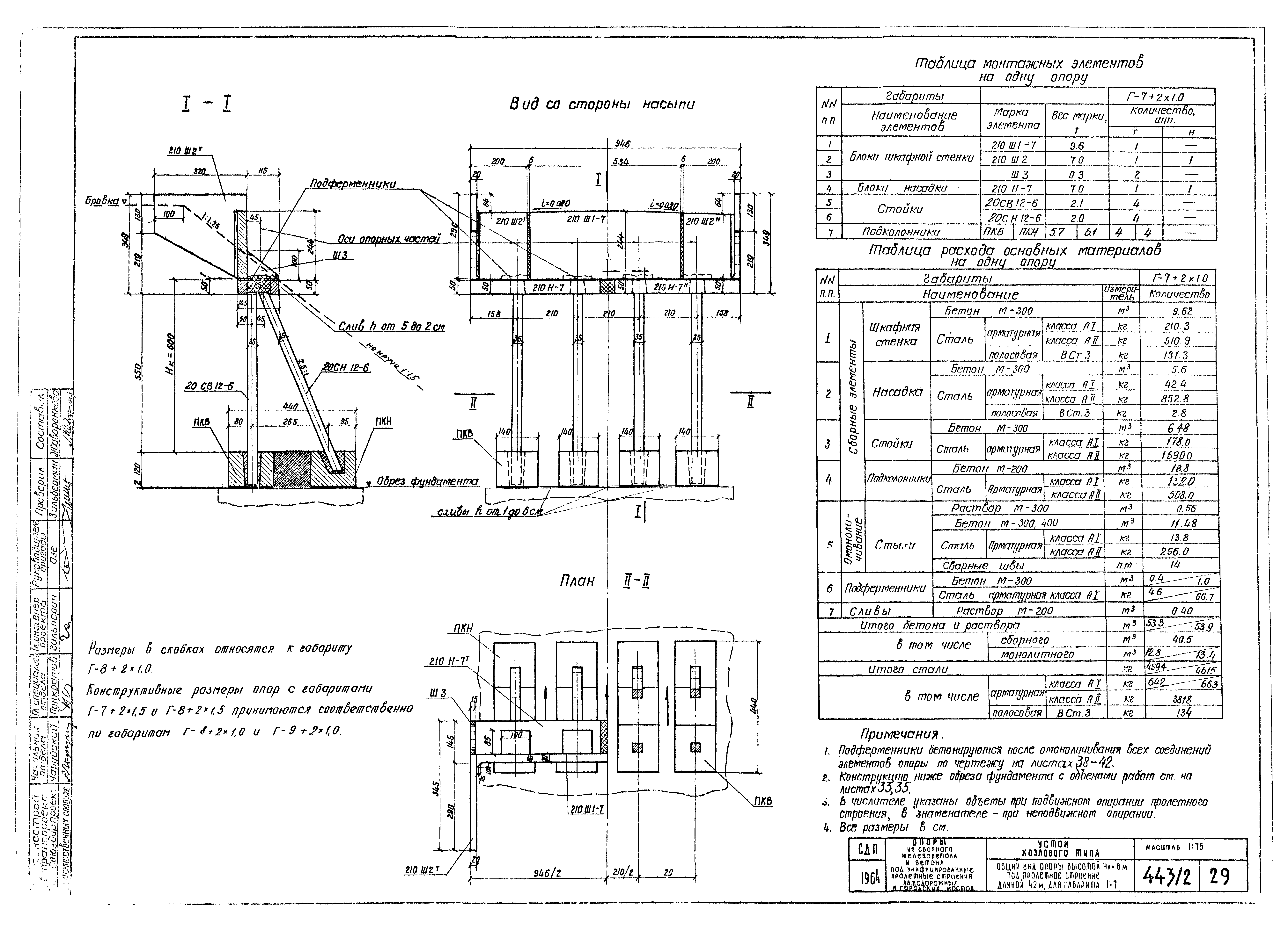
Общие виды опор под пролетные строения длиной 42 м высотой Нк = 4 м
Общие виды опор под пролетные строения длиной 42 м высотой Нк = 6 м
Общие виды опор под пролетные строения длиной 42 м высотой Нк = 8 м
Общие виды фундаментов на естественном основании
Фундаменты опор на свайном основании для высоты Нк = 4 м
Фундаменты опор на свайном основании для высоты Нк = 6 м
Фундаменты опор на свайном основании для высоты Нк = 8 м
Сопряжение с берегом
Детали соединения элементов опор
Конструкция подферменников
Детали установки опорных частей на подферменники
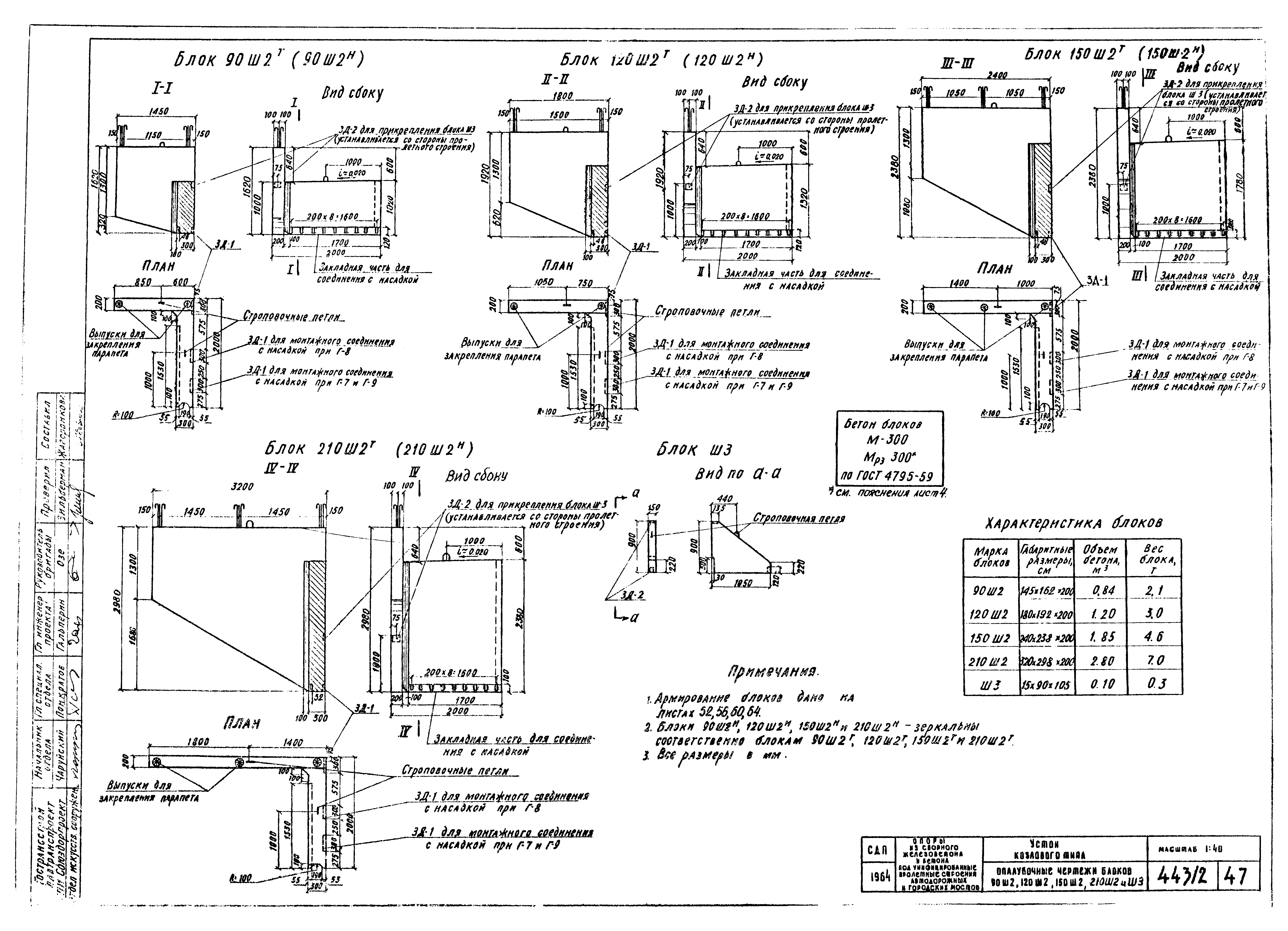
Опалубочные чертежи шкафных стенок
Опалубочные чертежи насадок и стоек
Армирование блоков шкафных стенок и насадок для пролетных строений длиной 12 и 15 м 90Ш1-7 и 90Н-7
Армирование блоков шкафных стенок и насадок для пролетных строений длиной 12 и 15 м 90Ш1-8 и 90Н-8
Армирование блоков шкафных стенок и насадок для пролетных строений длиной 12 и 15 м 90Ш1-9 и 90Н-9
Армирование блоков шкафных стенок и насадок для пролетных строений длиной 12 и 15 м 90Ш2 и Ш3
Армирование блоков шкафных стенок и насадок для пролетных строений длиной 18 и 24 м 120Ш1-7 и 120Н-7
Армирование блоков шкафных стенок и насадок для пролетных строений длиной 18 и 24 м 120Ш1-8 и 120Н-8
Армирование блоков шкафных стенок и насадок для пролетных строений длиной 18 и 24 м 120Ш1-9 и 120Н-9
Армирование блоков шкафных стенок и насадок для пролетных строений длиной 18 и 24 м 120Ш2 и Ш3
Армирование блоков шкафных стенок и насадок для пролетных строений длиной 33 м 150Ш1-7 и 150Н-7
Армирование блоков шкафных стенок и насадок для пролетных строений длиной 33 м 150Ш1-8 и 150Н-8
Армирование блоков шкафных стенок и насадок для пролетных строений длиной 33 м 150Ш1-9 и 150Н-9
Армирование блоков шкафных стенок и насадок для пролетных строений длиной 33 м 150Ш2 и Ш3
Армирование блоков шкафных стенок и насадок для пролетных строений длиной 42 м 210Ш1-7 и 210Н-7
Армирование блоков шкафных стенок и насадок для пролетных строений длиной 42 м 210Ш1-8 и 210Н-8
Армирование блоков шкафных стенок и насадок для пролетных строений длиной 42 м 210Ш1-9 и 210Н-9
Армирование блоков шкафных стенок и насадок для пролетных строений длиной 42 м 210Ш2 и Ш3
Армирование вертикальных стоек 18СВ8-4; 20СВ12-6 и 25СВ12-8
Армирование наклонных стоек 18СН8-4; 20СН12-6 и 25СН12-8
Конструкция блоков подколонников ПКВ и ПКН
Конструкция блоков фундаментов
Конструкция свай СВ20
Конструкция свай СВ22
Конструкция свай СВ25
Опалубочные чертежи блоков сопряжения, переходных плит, парапетов
Армирование блоков сопряжения
Армирование переходных плит
Армирование парапетов
Схема производства работ по сооружению опор
Разработан: ГПИ Союздорпроект
Утверждён:24.05.1966 Министерство транспортного строительства СССР (USSR Ministry of Transport Construction Л-876)
Расположен в:Техническая документация Строительство Справочные документы Типовые строительные конструкции, изделия и узлы Общероссийский строительный каталог Строительные конструкции, изделия и узлы зданий и сооружений для всех видов строительства Конструкции и изделия сооружений и оборудования зданий Надземные сооружения Конструкции и сооружения транспорта Пролетные строения мостов, мосты и путепроводы
Типовой проект 3.503-2Типовой проект 3.503-2Типовой проект 3.503-2Типовой проект 3.503-2Типовой проект 3.503-2Типовой проект 3.503-2Типовой проект 3.503-2Типовой проект 3.503-2Типовой проект 3.503-2Типовой проект 3.503-2Типовой проект 3.503-2Типовой проект 3.503-2Типовой проект 3.503-2Типовой проект 3.503-2Типовой проект 3.503-2Типовой проект 3.503-2Типовой проект 3.503-2Типовой проект 3.503-2Типовой проект 3.503-2Типовой проект 3.503-2Типовой проект 3.503-2Типовой проект 3.503-2Типовой проект 3.503-2Типовой проект 3.503-2Типовой проект 3.503-2Типовой проект 3.503-2Типовой проект 3.503-2Типовой проект 3.503-2Типовой проект 3.503-2Типовой проект 3.503-2Типовой проект 3.503-2Типовой проект 3.503-2Типовой проект 3.503-2Типовой проект 3.503-2Типовой проект 3.503-2Типовой проект 3.503-2Типовой проект 3.503-2Типовой проект 3.503-2Типовой проект 3.503-2Типовой проект 3.503-2Типовой проект 3.503-2Типовой проект 3.503-2Типовой проект 3.503-2Типовой проект 3.503-2Типовой проект 3.503-2Типовой проект 3.503-2Типовой проект 3.503-2Типовой проект 3.503-2Типовой проект 3.503-2Типовой проект 3.503-2Типовой проект 3.503-2Типовой проект 3.503-2Типовой проект 3.503-2Типовой проект 3.503-2Типовой проект 3.503-2Типовой проект 3.503-2Типовой проект 3.503-2Типовой проект 3.503-2Типовой проект 3.503-2Типовой проект 3.503-2Типовой проект 3.503-2Типовой проект 3.503-2Типовой проект 3.503-2Типовой проект 3.503-2Типовой проект 3.503-2Типовой проект 3.503-2Типовой проект 3.503-2Типовой проект 3.503-2Типовой проект 3.503-2Типовой проект 3.503-2Типовой проект 3.503-2Типовой проект 3.503-2Типовой проект 3.503-2Типовой проект 3.503-2Типовой проект 3.503-2

© 2013 Ёшкин Кот :-) Карта сайта