Информационная система
«Ёшкин Кот»

Скачать базу одним архивом
Скачать обновления
История создания базы
Карта сайта

Скачать Типовой проект 901-8-14.86 Альбом III. Электротехническая часть. Автоматизация. Связь и сигнализация

Дата актуализации: 10.08.2017

Типовой проект 901-8-14.86

Альбом III. Электротехническая часть. Автоматизация. Связь и сигнализация

Обозначение: Типовой проект 901-8-14.86
Обозначение англ: 901-8-14.86
Статус:не определен законодательством
Название рус.:Альбом III. Электротехническая часть. Автоматизация. Связь и сигнализация
Дата добавления в базу:01.10.2014
Дата актуализации:05.05.2017
Дата введения:26.03.1986
Оглавление:Содержание альбома
Силовое электрооборудование
   Общие данные
   Трансформаторная подстанция. Схема принципиальная однолинейная 0,4 кВ
   Схема электрическая принципиальная распределительной сети 380/220 В
   Схема электрическая принципиальная управления хозпротивопожарными насосами М1 - М7
   Схема электрическая принципиальная управления промывными насосами М8 - М9
   Схема электрическая принципиальная управления дренажными насосами М13, М14
   Схема электрическая принципиальная управления дренажным насосом М17
   Схема электрическая принципиальная управления затворами М9-1 - М9-3; М10-1; М10-3; М11-1 - М11-2; МФ1-1 - МФ1-6; МФ8-1 - МФ86; МФ14-1 - МФ14-3; МФ15
   Схема подключения шкафов РТ30-1 - РТ30-8
   Схема подключения затворов М9-1 - М9-3; М10-1 - М10-3; М11-1 - М11-2; МФ1-1 - МФ1-6; МФ8-1 - МФ8-6; МФ14-1 - МФ14-3; МФ15
   Вытяжные вентиляторы МВ1 - МВ8. Схема подключения
   Шкаф счетчиков. Общий вид. Принципиальная схема соединений
   Кабельный журнал
   Размещение электрооборудования и прокладка кабелей. Планы на отм. - 1.200; 0.000; 1.200
   Размещение электрооборудования и прокладка кабелей. Планы на отм. - 2.400; 0.000
   Размещение электрооборудования и прокладка кабелей. Планы на отм. 3.600
   Размещение электрооборудования и прокладка кабелей. Спецификация
   Прокладка троллейного шинопровода для крана "К" и тали Т1. План
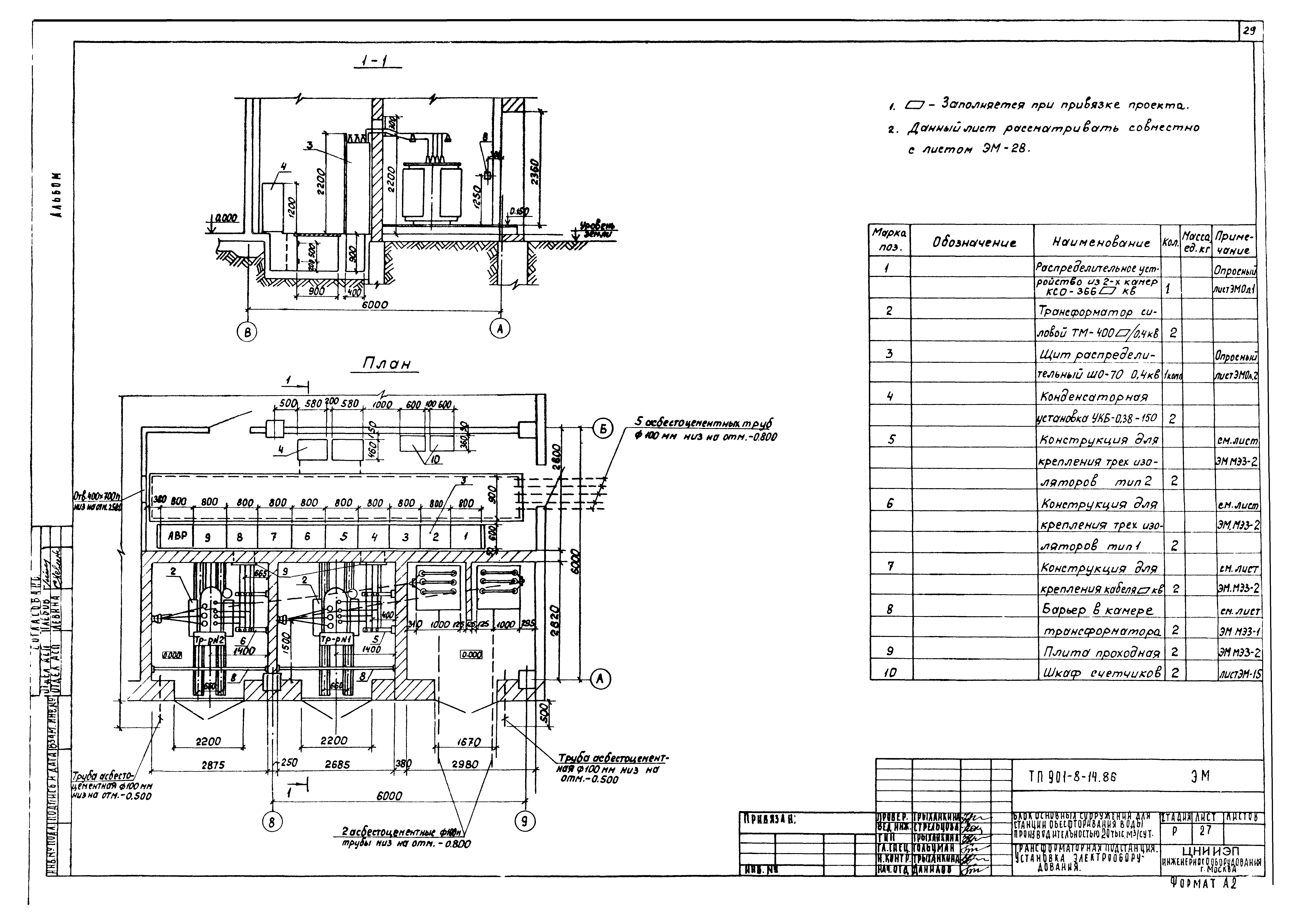
   Трансформаторная подстанция. Установка электрооборудования
   Трансформаторная подстанция. Узлы установки электрооборудования
   Трансформаторная подстанция. Заземление
   Опросный лист для заказа камер серии КСО-366
   Опросный лист для заказа щита из панели ЩО-70
   Изделия МЭЗ. Ведомость изделий МЭЗ. Ведомость изделий МЭЗ. Ведомость потребности в материалах для изделий МЭЗ. Конструкции
   Изделия МЭЗ. Конструкции
Электроосвещение
   Общие данные
   Электрическое освещение. План на отм. - 2.400; - 1.200; - 0.500; 0.000
   Электрическое освещение. План на отм. 3.600. Принципиальная схема питающей сети
Автоматизация технологического процесса
   Общие данные. Схема функциональная приточной системы П-1
   Схема функциональная приточной системы П-2
   Схема функциональная технологического процесса
   Схема электрическая принципиальная управления приточной системой П-1
   Схема электрическая принципиальная управления приточной системой П-2
   Схема электрическая принципиальная питания
   Схема электрическая принципиальная сигнализации
   Схема подключения приборов и устройств технологического контроля
   Размещение приборов и устройств технологического контроля. Планы на отм. 0.000; 0.400; 3.600
   Данные для разработки задания на изготовление щита диспетчера
Связь и сигнализация
   Общие данные. Спецификация. Экспликация помещений. Скелетная схема
   План на отм. 0.000 и 3.600 с сетями связи
Разработан: ЦНИИЭП инженерного оборудования
Утверждён:22.07.1981 Госгражданстрой (Gosgrazhdanstroy 219)
Расположен в:Техническая документация Строительство Справочные документы Типовые строительные конструкции, изделия и узлы Общероссийский строительный каталог Промышленные предприятия, здания и сооружения Здания и сооружения санитарно-технические Водоснабжение Сооружения и установки по подготовке питьевой воды Станции обесфторивания воды
Типовой проект 901-8-14.86Типовой проект 901-8-14.86Типовой проект 901-8-14.86Типовой проект 901-8-14.86Типовой проект 901-8-14.86Типовой проект 901-8-14.86Типовой проект 901-8-14.86Типовой проект 901-8-14.86Типовой проект 901-8-14.86Типовой проект 901-8-14.86Типовой проект 901-8-14.86Типовой проект 901-8-14.86Типовой проект 901-8-14.86Типовой проект 901-8-14.86Типовой проект 901-8-14.86Типовой проект 901-8-14.86Типовой проект 901-8-14.86Типовой проект 901-8-14.86Типовой проект 901-8-14.86Типовой проект 901-8-14.86Типовой проект 901-8-14.86Типовой проект 901-8-14.86Типовой проект 901-8-14.86Типовой проект 901-8-14.86Типовой проект 901-8-14.86Типовой проект 901-8-14.86Типовой проект 901-8-14.86Типовой проект 901-8-14.86Типовой проект 901-8-14.86Типовой проект 901-8-14.86Типовой проект 901-8-14.86Типовой проект 901-8-14.86Типовой проект 901-8-14.86Типовой проект 901-8-14.86Типовой проект 901-8-14.86Типовой проект 901-8-14.86Типовой проект 901-8-14.86Типовой проект 901-8-14.86Типовой проект 901-8-14.86Типовой проект 901-8-14.86Типовой проект 901-8-14.86Типовой проект 901-8-14.86Типовой проект 901-8-14.86Типовой проект 901-8-14.86Типовой проект 901-8-14.86Типовой проект 901-8-14.86Типовой проект 901-8-14.86Типовой проект 901-8-14.86Типовой проект 901-8-14.86Типовой проект 901-8-14.86Типовой проект 901-8-14.86Типовой проект 901-8-14.86Типовой проект 901-8-14.86Типовой проект 901-8-14.86Типовой проект 901-8-14.86Типовой проект 901-8-14.86Типовой проект 901-8-14.86Типовой проект 901-8-14.86Типовой проект 901-8-14.86Типовой проект 901-8-14.86Типовой проект 901-8-14.86

© 2013 Ёшкин Кот :-) Карта сайта