Информационная система
«Ёшкин Кот»

Скачать базу одним архивом
Скачать обновления
История создания базы
Карта сайта

Скачать Типовой проект 901-8-14.86 Альбом II. Архитектурно-строительная часть

Дата актуализации: 10.08.2017

Типовой проект 901-8-14.86

Альбом II. Архитектурно-строительная часть

Обозначение: Типовой проект 901-8-14.86
Обозначение англ: 901-8-14.86
Статус:не определен законодательством
Название рус.:Альбом II. Архитектурно-строительная часть
Дата добавления в базу:01.10.2014
Дата актуализации:05.05.2017
Дата введения:26.03.1986
Оглавление:Чертежи основного комплекта марки АР
   Общие данные
   Планы на отм. - 2.450; - 1.200; - 0.500; 0.000
   План на отм. 3.600
   Разрезы 1-1, 2-2
   Фасады А - Л; Л - А; 1 - 9; 9 - 1
   Планы, ведомость и спецификация перемычек
   Фрагменты 1 - 3. Планы и ведомость отверстий
   Планы и спецификация перегородок
   Ведомость отделки помещений. Спецификация элементов заполнения проемов
   План и экспликация полов
Чертежи основного комплекта марки КЖ
   Общие данные
   Схема расположения фундаментов
   Схема расположения фундаментов. Виды 1-1, 2-2. Сечения 4-4 - 7-7
   Схема расположения фундаментов. Виды 8-8, 9-9. Сечения 10-10 - 14-14
   Схема расположения фундаментов. Виды 15-15; 16-16. Сечения 17-17 - 22-22
   Схема расположения фундаментов. Элементы планов 1-1 - 3-3
   Фундаменты Фм1, Фм2, Фм3. Опалубочные чертежи. Армирование
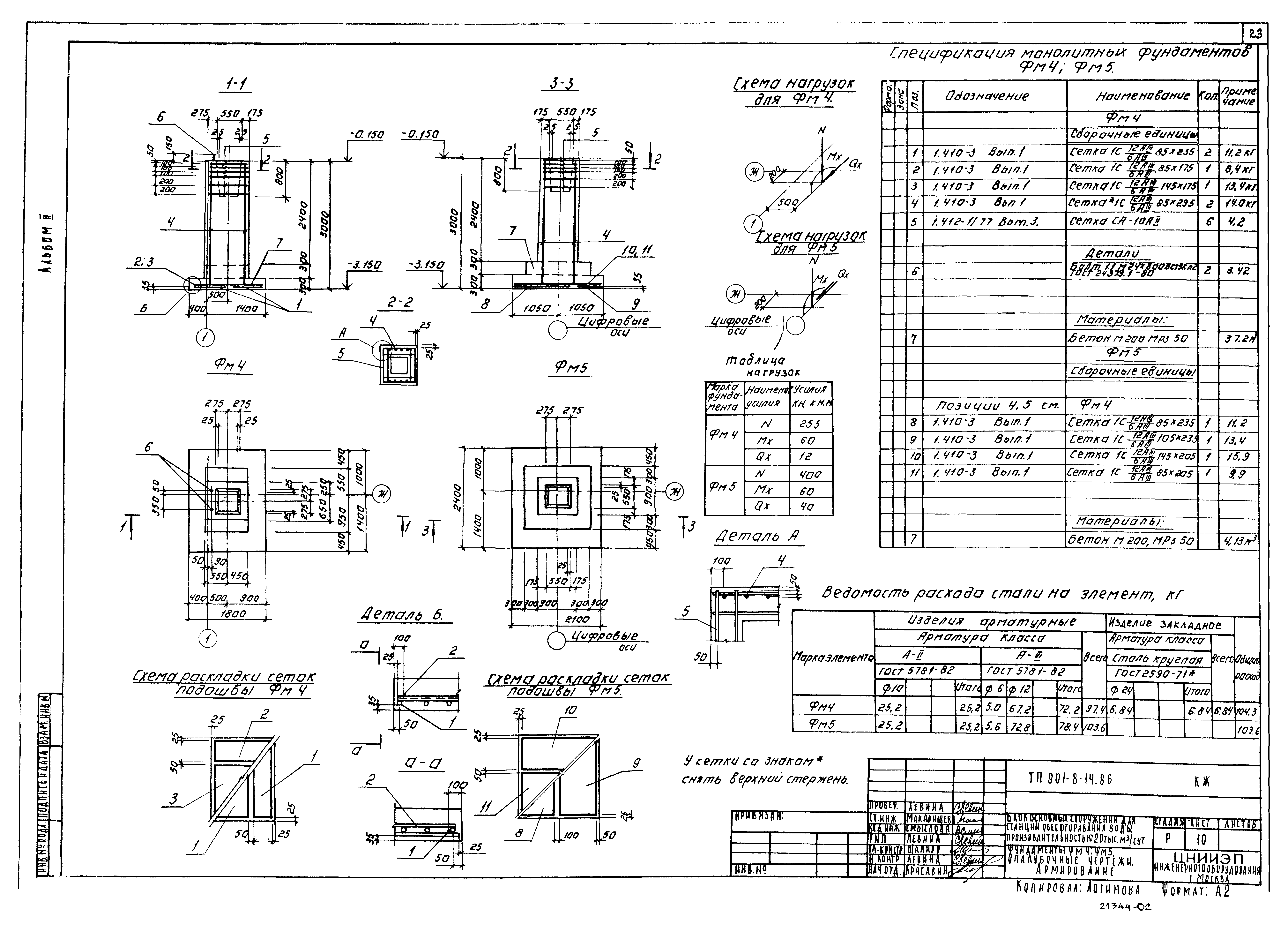
   Фундаменты Фм4, Фм5. Опалубочные чертежи. Армирование
   Фундаменты Фм6 - Фм8; Фм27 - Фм29. Опалубочные чертежи. Армирование
   Фундаменты Фм9, Фм16, Фм17. Опалубочные чертежи. Армирование
   Фундаменты Фм10, Фм10а, Фм10б, Фм11, Фм12а, Фм12. Опалубочные чертежи. Армирование
   Фундаменты Фм13, Фм214, Фм15. Опалубочные чертежи. Армирование
   Фундаменты Фм18, Фм19, Фм20. Опалубочные чертежи. Армирование
   Фундаменты Фм21, Фм22. Опалубочные чертежи. Армирование
   Фундаменты Фм23 - Фм26. Опалубочные чертежи. Армирование
   Схема расположения емкостей и каналов в осях 1 - 6; В - Ж
   Схема расположения фундаментов под оборудование, емкостей в осях И - Л; 1 - 9; А - В; 1 - 5
   Схема расположения фундаментов под оборудование в осях 7 - 9; Г - Ж. Фундаменты ФО11, Фм31, Фм32
   Разрезы 1-1, 2-2 к схеме расположения фундаментов под оборудование
   Разрезы 3-3; 7-7 - 9-9 к схеме расположения фундаментов под оборудование
   Фундаменты под оборудование ФО1 - ФО10; ФО12
   Приточная венткамера
   Схема расположения каналов и приямков в осях А - Б; 8 - 9
   РЕ1. Схема расположения стеновых панелей и монолитных участков
   РЕ1.Разрезы 2-2 - 4-4
   РЕ1.Планы раскладок верхних и нижних сеток днища Дм1
   РЕ1.План раскладки каркаса днища Дм1
   РЕ1. Армирование днища и зуба днища емкости
   Схема расположения деревянных щитов и брусьев в РЕ1. Антикоррозийная защита в РЕ1
   Схема расположения плит в поддоне РЕ1
   РЕ2, 2а. Схема расположения стеновых панелей и монолитных участков. Вид 1-1
   РЕ2, 2а. Разрезы 2-2 - 5-5
   РЕ2, 2а. Узлы 1 - 4; 8
   РЕ2, 2а. Узлы 5 - 7
   РЕ2, 2а. Схема расположения каркасов в зубе днища емкости Дм2
   РЕ2, 2а. Армирование днища Дм2
   РЕ2, 2а. Армирование днища и зуба днища Дм2
   РЕ1, РЕ2. Армирование монолитных участков Ум1 - Ум3 т/н
   РЕ3. Опалубочный чертеж. Армирование
   РЕ4. Опалубочный чертеж
   РЕ4. Армирование
   РЕ5. Опалубочный чертеж. Армирование
   Схема расположения колонн, балок покрытия в осях 1 - Б; А - Ж. Разрезы 1-1, 2-2
   Разрезы 3-3 - 6-6. Спецификация
   Схема расположения плит покрытия на отм. 8.100. Разрезы 1-1, 2-2
   Схема расположения стеновых панелей по осям 1, Б, 7, 9
   Схема расположения стеновых панелей по осям А, Ж
   Схема расположения стеновых панелей. Фрагменты 1 - 12; 1-1 - 3-3
   Схема расположения колонн, ригелей, диафрагм жесткости. Разрезы 1-1, 2-2
   Схема расположения плит покрытия и перекрытия. Разрезы 1-1, 2-2
   Схема расположения лестничных маршей, проступей верхней лестничной площадки
   Схема расположения монолитной лестничной площадки МП1. Армирование. Узлы
   Схема расположения плит перекрытия в осях 1 - 6; А - В и в осях 7 - 9; Г - Ж
   Схема расположения плит перекрытия в осях 1 - 6; А - В и в осях 7 - 9; Г - Ж. Разрезы 1-1 - 9-9
   Схема расположения плит перекрытия в осях 1 - 6; А - В и в осях 7 - 9; Г - Ж. Монолитные участки Ум1 - Ум14. Опалубочные чертежи
   Схема расположения плит перекрытия в осях 1 - 6; А - В и в осях 7 - 9; Г - Ж. Монолитные участки Ум1 - Ум14. Спецификация. Ведомость расхода стали на элемент
   Схема расположения плит перекрытия в осях Ж - Л; 1 - 9 на отм. 3.670; 1.200
   Схема расположения щитов в осях 1 - 9
   Разрезы 1-1 - 7-7
   Схема расположения плит перекрытия на отм. 3.600 между осями 1 - 7; В - Ж
   Схема расположения плит перекрытия на отм. 3.600 между осями 1 - 7; В - Ж. Разрезы 1-1 - 8-8
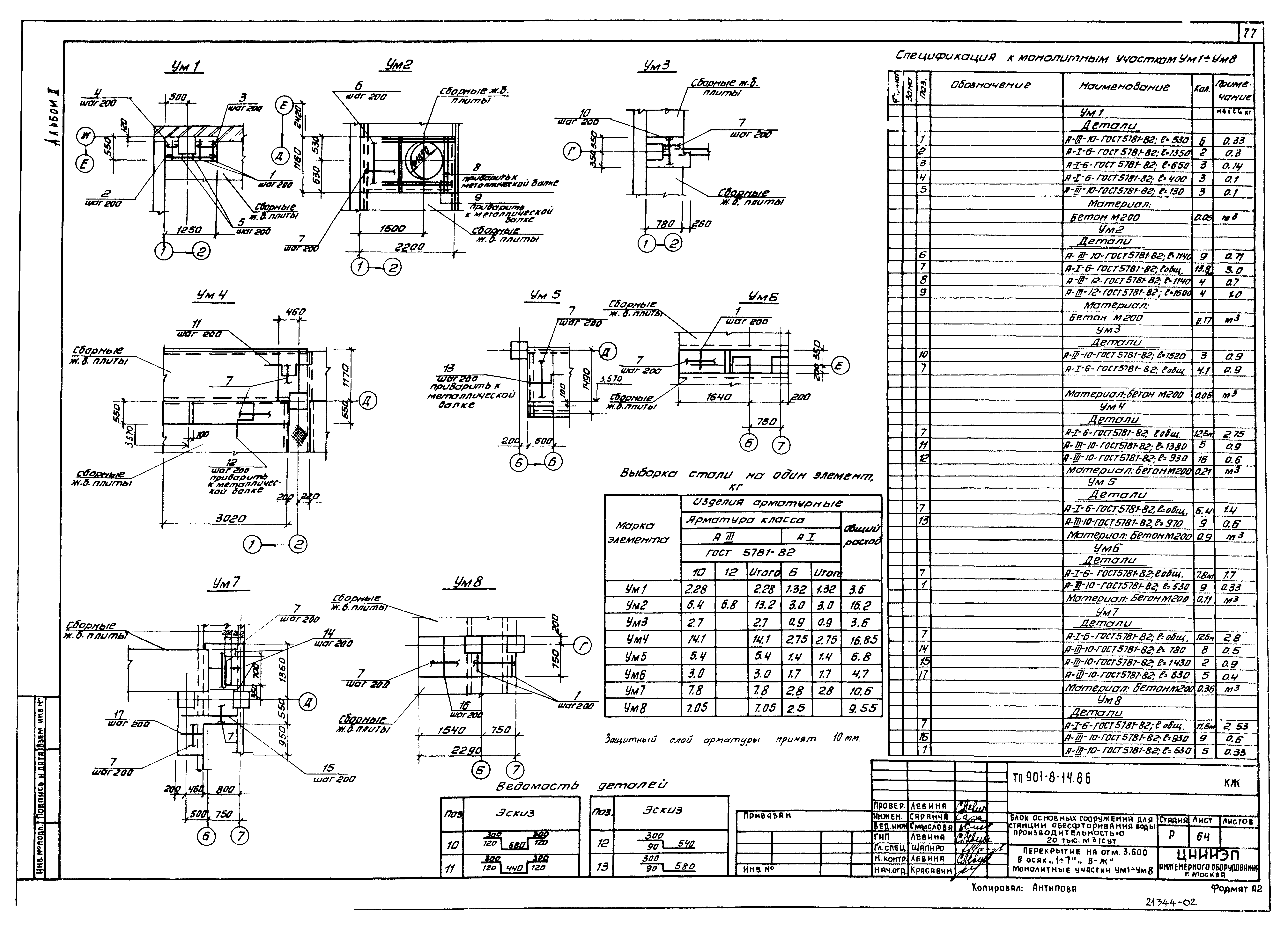
   Схема расположения плит перекрытия на отм. 3.600 между осями 1 - 7; В - Ж. Монолитные участки Ум1 - Ум8
   Монолитные железобетонные пояса. Опалубочный чертеж. Армирование
   Схема расположения сборных перегородок в осях 1 - 6
Чертежи основного комплекта марки КМ
   Общие данные. Техническая спецификация металла
   Техническая спецификация стали
   Техническая спецификация металла на типовые конструкции
   Выборка стали по видам профилей
   Схема расположения площадок на отм. - 0.550; - 0.800; - 1.200; - 2.400
   Металлические площадки на отм. 0.550; 1.400; 2.800. Сечения 1-1 - 8-8
   Металлические опоры Р1, Р2. Сечения 11-11, 12-12
   Металлические площадки на отм. 0.550; 1.400; 2.800. Сечения 13-13 - 26-26
   Схема расположения балок на отм. 0.000; 1.200
   Схема расположения металлических балок на отм. 3.350
   Перекрытие на отм. 3.600. Сечения 1-1 - 9-9
   Перекрытие на отм. 3.600. Сечения 10-10 - 16-16
   Схема расположения металлических балок на отм. 3.610
   Схемы расположения наружных лестничных маршей в осях К - Л; Е - Д по оси 9
   Схема расположения элементов ограждения контактных осветлителей
   Схема расположения подкрановых путей и монорельсов
Разработан: ЦНИИЭП инженерного оборудования
Утверждён:22.07.1981 Госгражданстрой (Gosgrazhdanstroy 219)
Расположен в:Техническая документация Строительство Справочные документы Типовые строительные конструкции, изделия и узлы Общероссийский строительный каталог Промышленные предприятия, здания и сооружения Здания и сооружения санитарно-технические Водоснабжение Сооружения и установки по подготовке питьевой воды Станции обесфторивания воды
Типовой проект 901-8-14.86Типовой проект 901-8-14.86Типовой проект 901-8-14.86Типовой проект 901-8-14.86Типовой проект 901-8-14.86Типовой проект 901-8-14.86Типовой проект 901-8-14.86Типовой проект 901-8-14.86Типовой проект 901-8-14.86Типовой проект 901-8-14.86Типовой проект 901-8-14.86Типовой проект 901-8-14.86Типовой проект 901-8-14.86Типовой проект 901-8-14.86Типовой проект 901-8-14.86Типовой проект 901-8-14.86Типовой проект 901-8-14.86Типовой проект 901-8-14.86Типовой проект 901-8-14.86Типовой проект 901-8-14.86Типовой проект 901-8-14.86Типовой проект 901-8-14.86Типовой проект 901-8-14.86Типовой проект 901-8-14.86Типовой проект 901-8-14.86Типовой проект 901-8-14.86Типовой проект 901-8-14.86Типовой проект 901-8-14.86Типовой проект 901-8-14.86Типовой проект 901-8-14.86Типовой проект 901-8-14.86Типовой проект 901-8-14.86Типовой проект 901-8-14.86Типовой проект 901-8-14.86Типовой проект 901-8-14.86Типовой проект 901-8-14.86Типовой проект 901-8-14.86Типовой проект 901-8-14.86Типовой проект 901-8-14.86Типовой проект 901-8-14.86Типовой проект 901-8-14.86Типовой проект 901-8-14.86Типовой проект 901-8-14.86Типовой проект 901-8-14.86Типовой проект 901-8-14.86Типовой проект 901-8-14.86Типовой проект 901-8-14.86Типовой проект 901-8-14.86Типовой проект 901-8-14.86Типовой проект 901-8-14.86Типовой проект 901-8-14.86Типовой проект 901-8-14.86Типовой проект 901-8-14.86Типовой проект 901-8-14.86Типовой проект 901-8-14.86Типовой проект 901-8-14.86Типовой проект 901-8-14.86Типовой проект 901-8-14.86Типовой проект 901-8-14.86Типовой проект 901-8-14.86Типовой проект 901-8-14.86Типовой проект 901-8-14.86Типовой проект 901-8-14.86Типовой проект 901-8-14.86Типовой проект 901-8-14.86Типовой проект 901-8-14.86Типовой проект 901-8-14.86Типовой проект 901-8-14.86Типовой проект 901-8-14.86Типовой проект 901-8-14.86Типовой проект 901-8-14.86Типовой проект 901-8-14.86Типовой проект 901-8-14.86Типовой проект 901-8-14.86Типовой проект 901-8-14.86Типовой проект 901-8-14.86Типовой проект 901-8-14.86Типовой проект 901-8-14.86Типовой проект 901-8-14.86Типовой проект 901-8-14.86Типовой проект 901-8-14.86Типовой проект 901-8-14.86Типовой проект 901-8-14.86Типовой проект 901-8-14.86Типовой проект 901-8-14.86Типовой проект 901-8-14.86Типовой проект 901-8-14.86Типовой проект 901-8-14.86Типовой проект 901-8-14.86Типовой проект 901-8-14.86Типовой проект 901-8-14.86Типовой проект 901-8-14.86Типовой проект 901-8-14.86Типовой проект 901-8-14.86Типовой проект 901-8-14.86Типовой проект 901-8-14.86

© 2013 Ёшкин Кот :-) Карта сайта