Скачать Типовой проект 901-8-14.86 Альбом I. Технологическая, санитарно-техническая частиДата актуализации: 10.08.2017 Типовой проект 901-8-14.86
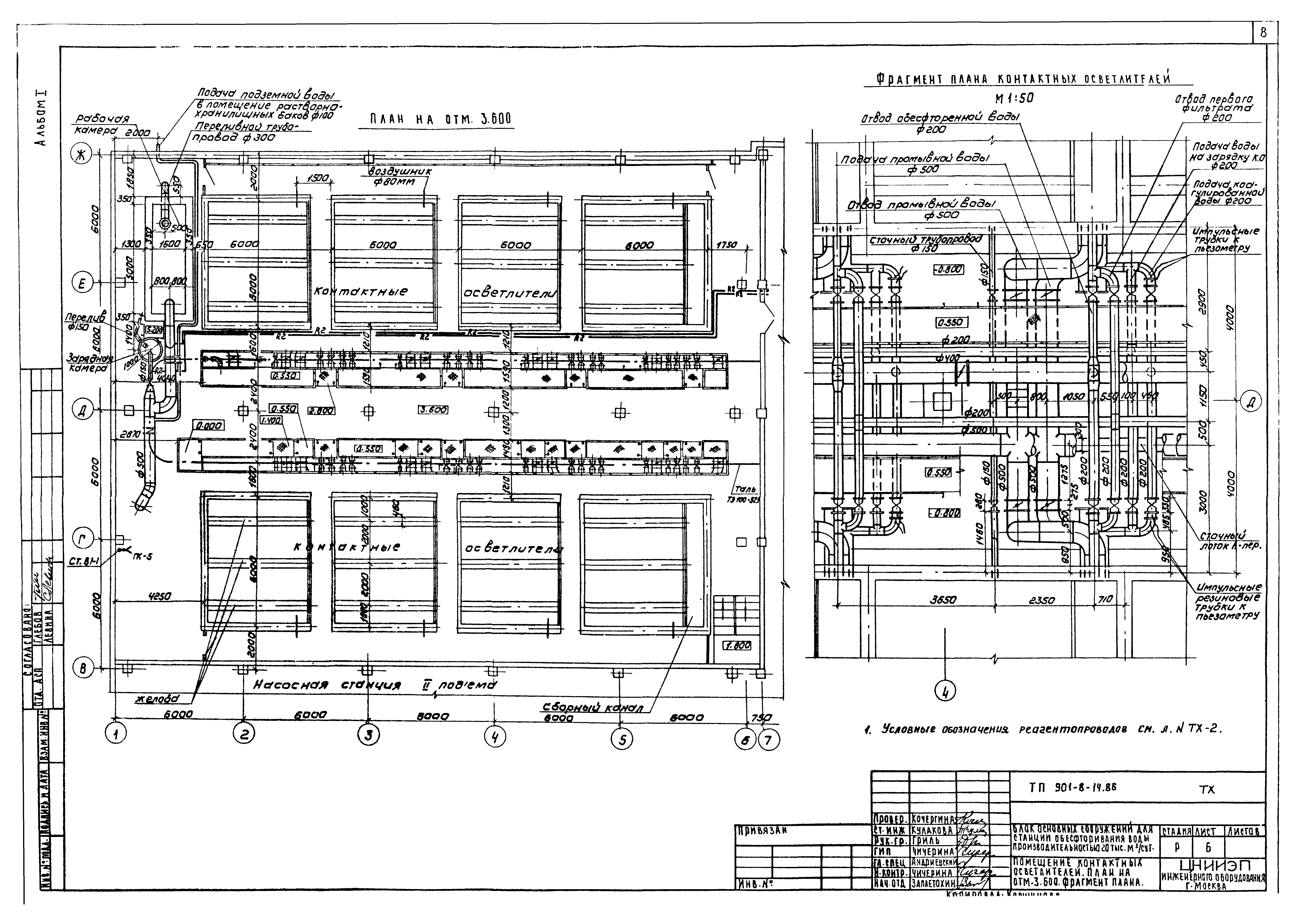
Альбом I. Технологическая, санитарно-техническая частиОбозначение: | Типовой проект 901-8-14.86 | Обозначение англ: | 901-8-14.86 | Статус: | не определен законодательством | Название рус.: | Альбом I. Технологическая, санитарно-техническая части | Дата добавления в базу: | 01.10.2014 | Дата актуализации: | 05.05.2017 | Дата введения: | 26.03.1986 | Оглавление: | Технологическая часть Общие данные Принципиальная схема обработки воды Общий вид. План на отм. - 2.450; - 1.200; - 0.800; 0.000. Экспликация помещений Общий вид. План на отм. 1.200; 3.600. Разрезы 1-1, 2-2. Экспликация помещений Помещение контактных осветлителей. План на отм. - 0.500; - 0.800 Помещение контактных осветлителей. План на отм. 3.600. Фрагмент плана Помещение контактных осветлителей. Разрез 3-3. Сечение по зарядной камере Помещение контактных осветлителей. Разрез 4-4. Сечение по рабочей камере Отбор проб. Фрагмент плана на отм. - 0.800. Поливочный кран в нише Реагентное хозяйство. План на отм. - 2.450. Дозаторная и воздуходувная. Сечения Реагентное хозяйство. План на отм. 1.200. Сечения Реагентное хозяйство. Разрез 5-5. Сечения Помещение дозаторной и воздуходувной. Разрезы 6-6, 7-7 Насосная станция II подъема. Разрезы 8-8, 9-9, 10-10 Аксонометрические схемы систем В9, В10, В11 Аксонометрическая схема системы В1 Аксонометрические схемы систем В12, В13, К13, R1 Аксонометрические схемы систем К3, А2 Аксонометрические схемы систем В2, R3 Аксонометрические схемы систем А0, R4 Лаборатории. Мастерская. Планы на отм. 0.000 и 3.600 Система дренажная в контактном осветлителе Камера зарядная. Воздухозаборное устройство Ду200 Коллектор воздухораспределительный в расходном баке коагулянта Коллектор воздухораспределительный в расходном баке соды Коллектор воздухораспределительный в растворно-хранилищном баке коагулянта Коллектор воздухораспределительный в растворно-хранилищном баке соды Коллектор воздухораспределительный в расходном баке полиакриламида Кольцо гидросмыва в растворно-хранилищном баке коагулянта Отвод 90 градусов. Ду500. Поплавок агр. Ду100; 32; неагр. Ду25; 15; 100 Внутренний водопровод и канализация Общие данные Лаборатории и бытовые помещения. Планы на отм. 0.000 и 3.600. План кровли Внутренний водопровод, канализация и водостоки. Аксонометрические схемы Отопление и вентиляция Общие данные Планы на отм. - 2.400; - 1.200; 1.200; - 0.500 и 0.000 в осях 1 - 9; А - Г Планы на отм. - 2.400; - 0.800; - 0.500 и 0.000 в осях 1 - 9; Д - Л Планы на отм. 3.600 в осях 1 - 9; А - Г Планы на отм. 3.600 в осях 1 - 9; Д - Л Схема системы отопления Схемы систем П1, П2. Узел управления Схемы систем В1 - В8; ВЕ1 - ВЕ3 Установка систем П1, П2. Схема системы теплоснабжения установок П1, П2 Установка систем В1 - В5 Конфузор. Переход Воздуховод из асбестоцементных листов. Узлы соединений Конструкция изоляции трубопроводов | Разработан: | ЦНИИЭП инженерного оборудования
| Утверждён: | 22.07.1981 Госгражданстрой (Gosgrazhdanstroy 219)
| Расположен в: |
|
                                            
|