Информационная система
«Ёшкин Кот»

Скачать базу одним архивом
Скачать обновления
История создания базы
Карта сайта

Скачать Типовой проект 409-28-40 Альбом VIII. Часть 2. Строительные изделия камер типов I - V. Вариант в сборном керамзитобетоне

Дата актуализации: 10.08.2017

Типовой проект 409-28-40

Альбом VIII. Часть 2. Строительные изделия камер типов I - V. Вариант в сборном керамзитобетоне

Обозначение: Типовой проект 409-28-40
Обозначение англ: 409-28-40
Статус:действует
Название рус.:Альбом VIII. Часть 2. Строительные изделия камер типов I - V. Вариант в сборном керамзитобетоне
Дата добавления в базу:01.10.2014
Дата актуализации:05.05.2017
Оглавление:Содержание альбома
КЖИ2-ПС1-1 - ПС1-7 Стеновые панели ПС1-1 - ПС1-7
КЖИ2-ПС1-1 - ПС1-7СБ Стеновые панели ПС1-1 - ПС1-7. Сборочный чертеж
КЖИ2-ПС2-1 - ПС2-5 Стеновые панели ПС2-1 - ПС2-5
КЖИ2-ПС2-1 - ПС2-5СБ Стеновые панели ПС2-1 - ПС2-5. Сборочный чертеж
КЖИ2-ПС3-1, ПС4-1 Стеновые панели ПС3-1 - ПС4-1
КЖИ2-ПС3-1, ПС4-1СБ Стеновые панели ПС3-1, ПС4-1. Сборочный чертеж
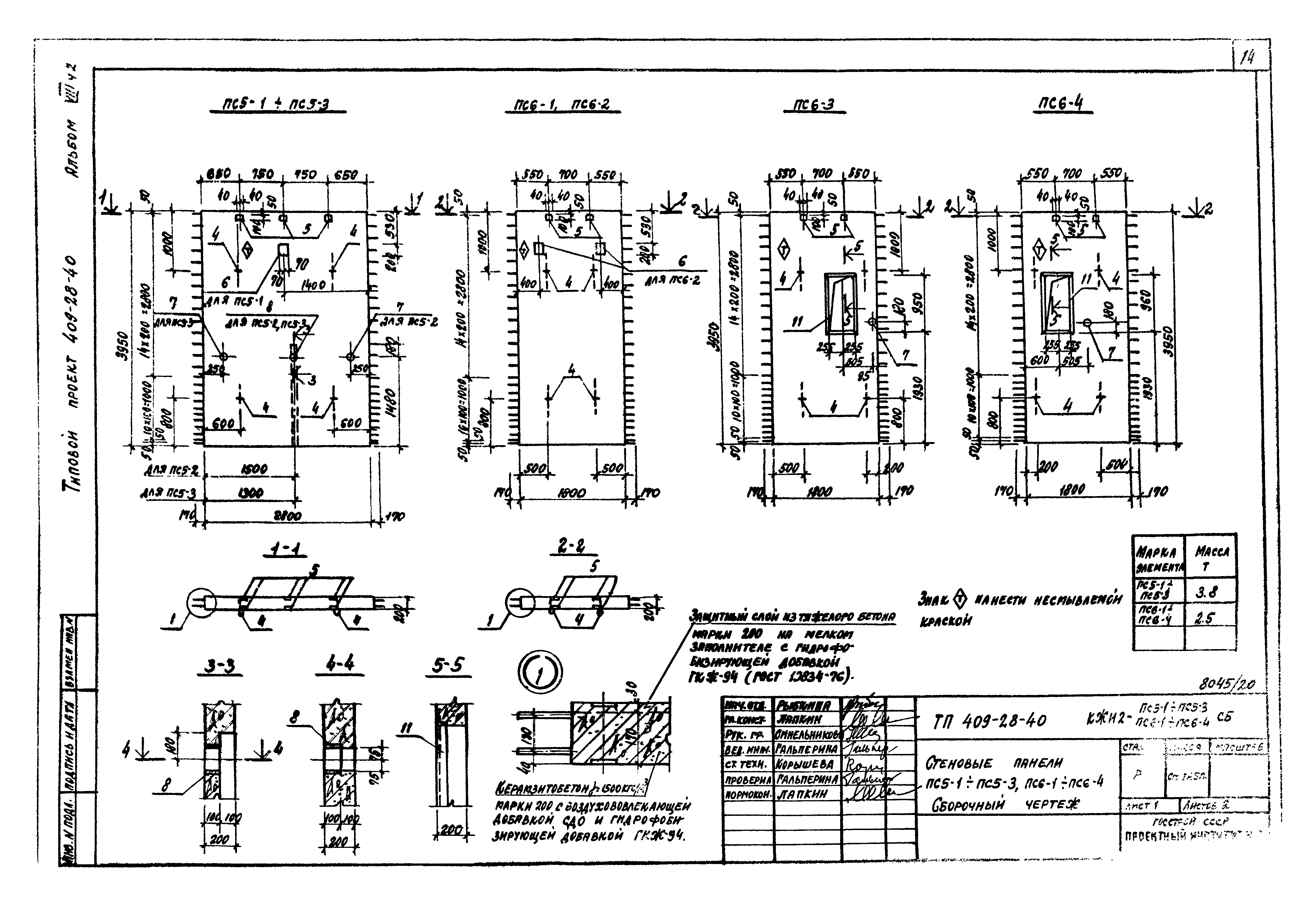
КЖИ2-ПС5-1 - ПС5-3; ПС6-1 - ПС6-4 Стеновые панели ПС5-1 - ПС5-3; ПС6-1 - ПС6-4
КЖИ2-ПС5-1 - ПС5-3; ПС6-1 - ПС6-4СБ Стеновые панели ПС5-1 - ПС5-3; ПС6-1 - ПС6-4. Сборочный чертеж
КЖИ2-ПС7-1, ПС8-1 Стеновые панели ПС7-1 - ПС8-1
КЖИ2-ПС7-1, ПС8-1СБ Стеновые панели ПС7-1 - ПС8-1. Сборочный чертеж
КЖИ2-С1, С2, С10 - С23 Сетки арматурные С1, С2, С10 - С23
КЖИ2-С1, С2, С10 - С23СБ Сетки арматурные С1, С2, С10 - С23. Сборочный чертеж
КЖИ2-С3 - С5, С31 Сетки арматурные С3 - С5, С31
КЖИ2-С6 - С9 Сетки арматурные С6 - С9
КЖИ2-С24 - С30 Сетки арматурные С24 - С30
КЖИ2-КП1 - КП11 Каркасы пространственные КП1 - КП11
КЖИ2-КП1 - КП11СБ Каркасы пространственные КП1 - КП11. Сборочный чертеж
КЖИ2-КР1 - КР12 Каркасы плоские КР1 - КР12
КЖИ2-КР1 - КР12СБ Каркасы плоские КР1 - КР12. Сборочный чертеж
КЖИ2-КП12, КП13 Каркасы пространственные КП12, КП13
КЖИ2-КР13 - КР15, А1 Каркасы плоские КР13 - КР15. Анкер А1
КЖИ2-КР16 - КР21 Каркасы плоские КР16 - КР21
КЖИ2-МН1 - МН3; МС1 - МС8 Изделия закладные МН1 - МН3. Изделия соединительные МС1 - МС8
КЖИ2-МН5 - МН7, МН13 Изделия закладные МН5 - МН7, МН13
КЖИ2-МН4, МН8 - МН12 Изделия закладные МН4, МН8 - МН12
Разработан: ВНИИжелезобетон
Проектный институт № 2 Госстроя СССР
Утверждён:06.08.1981 Госстрой СССР (61)
Расположен в:Техническая документация Строительство Справочные документы Типовые строительные конструкции, изделия и узлы Общероссийский строительный каталог Промышленные предприятия, здания и сооружения Предприятия, здания и сооружения промышленности и электроэнергетики Строительная индустрия и промышленность строительных материалов Производство строительных материалов и изделий Производство бетона, раствора и асфальта
Заменяет собой:
  • Типовой проект 409-10-38
Типовой проект 409-28-40Типовой проект 409-28-40Типовой проект 409-28-40Типовой проект 409-28-40Типовой проект 409-28-40Типовой проект 409-28-40Типовой проект 409-28-40Типовой проект 409-28-40Типовой проект 409-28-40Типовой проект 409-28-40Типовой проект 409-28-40Типовой проект 409-28-40Типовой проект 409-28-40Типовой проект 409-28-40Типовой проект 409-28-40Типовой проект 409-28-40Типовой проект 409-28-40Типовой проект 409-28-40Типовой проект 409-28-40Типовой проект 409-28-40Типовой проект 409-28-40Типовой проект 409-28-40Типовой проект 409-28-40Типовой проект 409-28-40Типовой проект 409-28-40Типовой проект 409-28-40Типовой проект 409-28-40Типовой проект 409-28-40Типовой проект 409-28-40Типовой проект 409-28-40Типовой проект 409-28-40Типовой проект 409-28-40Типовой проект 409-28-40Типовой проект 409-28-40Типовой проект 409-28-40

© 2013 Ёшкин Кот :-) Карта сайта