Информационная система
«Ёшкин Кот»

Скачать базу одним архивом
Скачать обновления
История создания базы
Карта сайта

Скачать Типовой проект 409-28-40 Альбом VII. Часть 2. Строительные конструкции камер типа V. Вариант в сборном керамзитобетоне

Дата актуализации: 10.08.2017

Типовой проект 409-28-40

Альбом VII. Часть 2. Строительные конструкции камер типа V. Вариант в сборном керамзитобетоне

Обозначение: Типовой проект 409-28-40
Обозначение англ: 409-28-40
Статус:действует
Название рус.:Альбом VII. Часть 2. Строительные конструкции камер типа V. Вариант в сборном керамзитобетоне
Дата добавления в базу:01.10.2014
Дата актуализации:05.05.2017
Оглавление:Содержание альбома
Конструкции железобетонные
   Общие данные
   План камеры ПК1. Схема расположения плит днища камеры ПК1
   Разрезы 1-1 - 3-3. Узлы 1 - 7
   Схемы расположения стеновых панелей камеры ПК1
   Схемы расположения элементов каналов КЛ1, КЛ1а
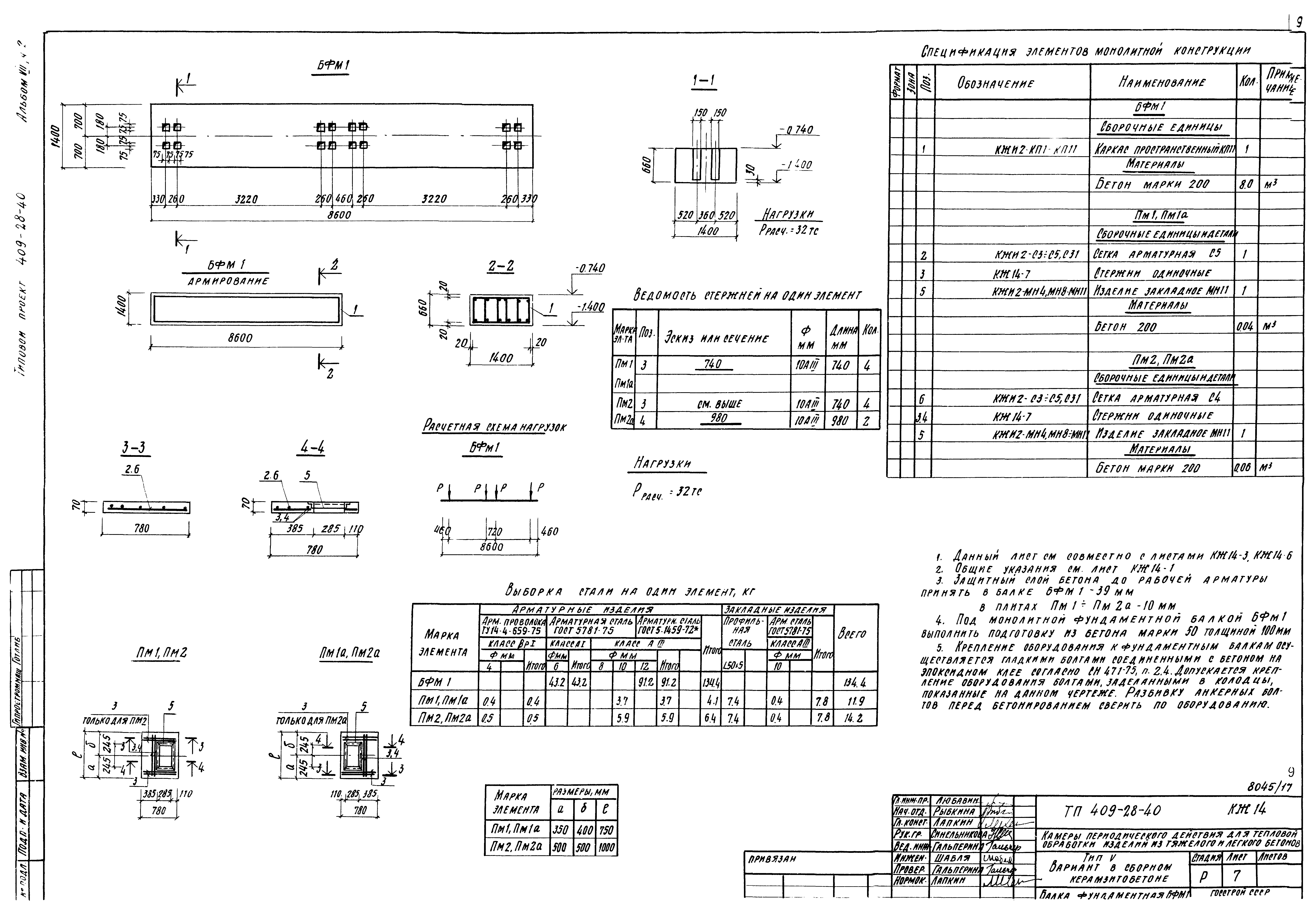
   Балка фундаментная БФм1. Плиты монолитные Пм1 - Пм2а
   Монолитный участок Ум1
   Монолитные участки Ум2, Ум3, Ум10
   Монолитные участки Ум4 - Ум9
Конструкции металлические
   Общие данные. Техническая спецификация металла на камеру
   Общие данные. Техническая спецификация металла по площадкам, лестницам и ограждениям. Ведомость металлоконструкций по видам профилей
   Схемы обслуживающей площадки камеры ПК1
   Крышка камеры
Организация строительства
   Основные положения по организации строительства
Разработан: ВНИИжелезобетон
Проектный институт № 2 Госстроя СССР
Утверждён:06.08.1981 Госстрой СССР (61)
Расположен в:Техническая документация Строительство Справочные документы Типовые строительные конструкции, изделия и узлы Общероссийский строительный каталог Промышленные предприятия, здания и сооружения Предприятия, здания и сооружения промышленности и электроэнергетики Строительная индустрия и промышленность строительных материалов Производство строительных материалов и изделий Производство бетона, раствора и асфальта
Заменяет собой:
  • Типовой проект 409-10-38
Типовой проект 409-28-40Типовой проект 409-28-40Типовой проект 409-28-40Типовой проект 409-28-40Типовой проект 409-28-40Типовой проект 409-28-40Типовой проект 409-28-40Типовой проект 409-28-40Типовой проект 409-28-40Типовой проект 409-28-40Типовой проект 409-28-40Типовой проект 409-28-40Типовой проект 409-28-40Типовой проект 409-28-40Типовой проект 409-28-40Типовой проект 409-28-40Типовой проект 409-28-40Типовой проект 409-28-40Типовой проект 409-28-40

© 2013 Ёшкин Кот :-) Карта сайта