Информационная система
«Ёшкин Кот»

Скачать базу одним архивом
Скачать обновления
История создания базы
Карта сайта

Скачать Типовой проект 409-28-40 Альбом VI. Часть 2. Строительные конструкции камер типа IV. Вариант в сборном керамзитобетоне

Дата актуализации: 10.08.2017

Типовой проект 409-28-40

Альбом VI. Часть 2. Строительные конструкции камер типа IV. Вариант в сборном керамзитобетоне

Обозначение: Типовой проект 409-28-40
Обозначение англ: 409-28-40
Статус:действует
Название рус.:Альбом VI. Часть 2. Строительные конструкции камер типа IV. Вариант в сборном керамзитобетоне
Дата добавления в базу:01.10.2014
Дата актуализации:05.05.2017
Оглавление:Содержание альбома
Конструкции железобетонные
   Общие данные
   Планы камер ПК1, ПК2, ПК3. Разрезы 1-1, 2-2
   Разрезы 3-3 - 6-6. Узлы 1 - 6
   Схемы расположения плит днища камер ПК1 - ПК3
   Схемы расположения стеновых панелей камер ПК1 - ПК3
   Схемы расположения элементов каналов КЛ1 - КЛ3
   Монолитные участки Ум1 - Ум3
   Монолитные участки Ум4 - Ум6, Пм1 - Пм2
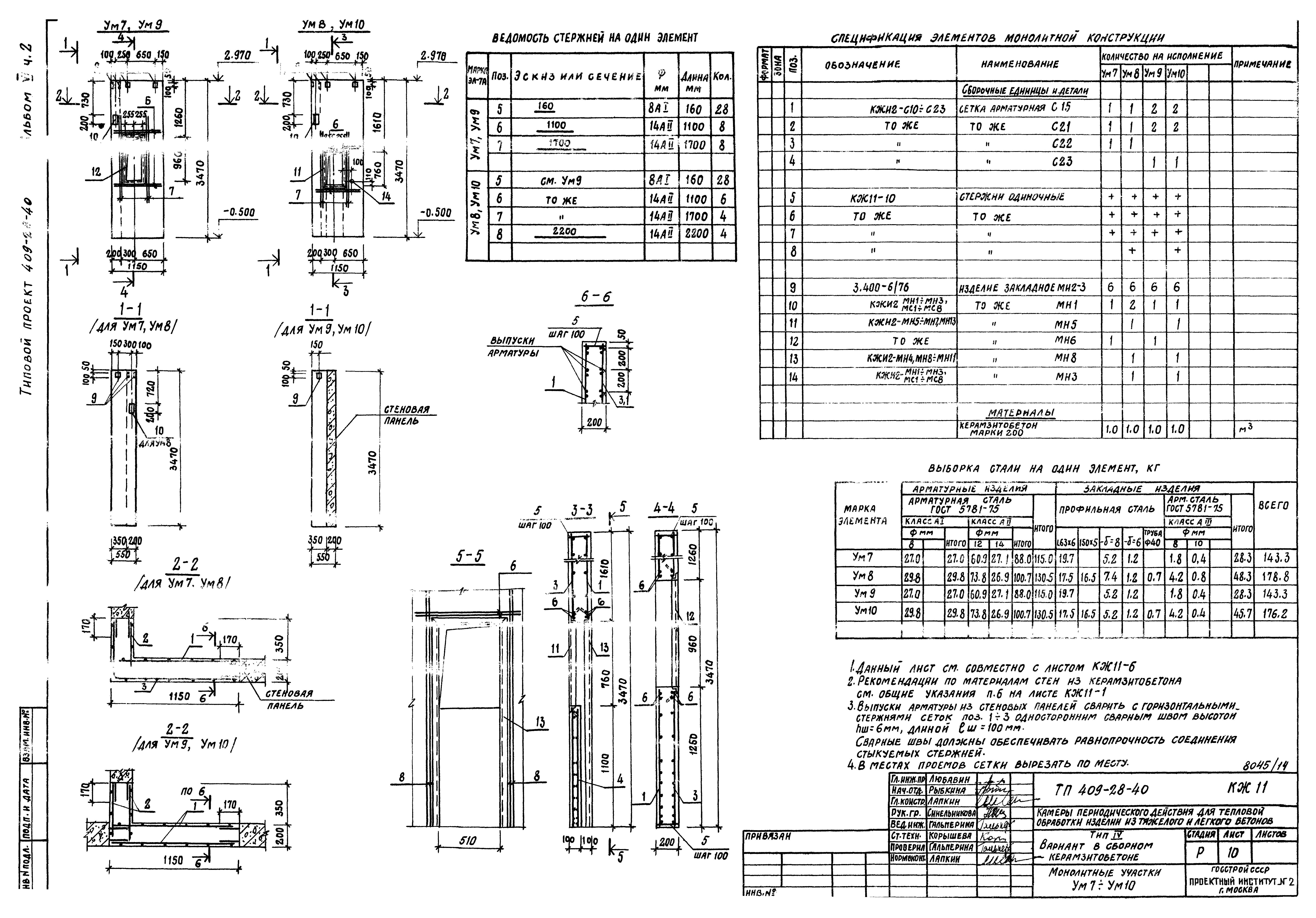
   Монолитные участки Ум7 - Ум10
   Балки фундаментные БФм1, БФм2, БФм3
Конструкции металлические
   Общие данные. Техническая спецификация металла на камеры
   Общие данные. Техническая спецификация металла по площадкам, лестницам и ограждениям
   Общие данные. Ведомость металлоконструкций по видам профилей
   Схемы обслуживающей площадки камер ПК1, ПК2, ПК3
   Крышка камеры
Организация строительства
   Основные положения по организации строительства
Разработан: ВНИИжелезобетон
Проектный институт № 2 Госстроя СССР
Утверждён:06.08.1981 Госстрой СССР (61)
Расположен в:Техническая документация Строительство Справочные документы Типовые строительные конструкции, изделия и узлы Общероссийский строительный каталог Промышленные предприятия, здания и сооружения Предприятия, здания и сооружения промышленности и электроэнергетики Строительная индустрия и промышленность строительных материалов Производство строительных материалов и изделий Производство бетона, раствора и асфальта
Заменяет собой:
  • Типовой проект 409-10-38
Типовой проект 409-28-40Типовой проект 409-28-40Типовой проект 409-28-40Типовой проект 409-28-40Типовой проект 409-28-40Типовой проект 409-28-40Типовой проект 409-28-40Типовой проект 409-28-40Типовой проект 409-28-40Типовой проект 409-28-40Типовой проект 409-28-40Типовой проект 409-28-40Типовой проект 409-28-40Типовой проект 409-28-40Типовой проект 409-28-40Типовой проект 409-28-40Типовой проект 409-28-40Типовой проект 409-28-40Типовой проект 409-28-40Типовой проект 409-28-40Типовой проект 409-28-40

© 2013 Ёшкин Кот :-) Карта сайта