Информационная система
«Ёшкин Кот»

Скачать базу одним архивом
Скачать обновления
История создания базы
Карта сайта

Скачать Типовой проект 416-1-152.84 Альбом V. Чертежи задания заводу-изготовителю на электрооборудование

Дата актуализации: 10.08.2017

Типовой проект 416-1-152.84

Альбом V. Чертежи задания заводу-изготовителю на электрооборудование

Обозначение: Типовой проект 416-1-152.84
Обозначение англ: 416-1-152.84
Статус:действует
Название рус.:Альбом V. Чертежи задания заводу-изготовителю на электрооборудование
Дата добавления в базу:01.10.2014
Дата актуализации:05.05.2017
Оглавление:Содержание альбома
Перечень чертежей марки "АПИ" задания заводу-изготовителю "Главмонтажавтоматики"
Щит теплового пункта. Общий вид
Спецификация щитов и пультов
Перечень чертежей марки "АПИ" задания предприятию-изготовителю "Минэлектротехпрома"
Щит приточной системы П2. Технические данные аппаратов
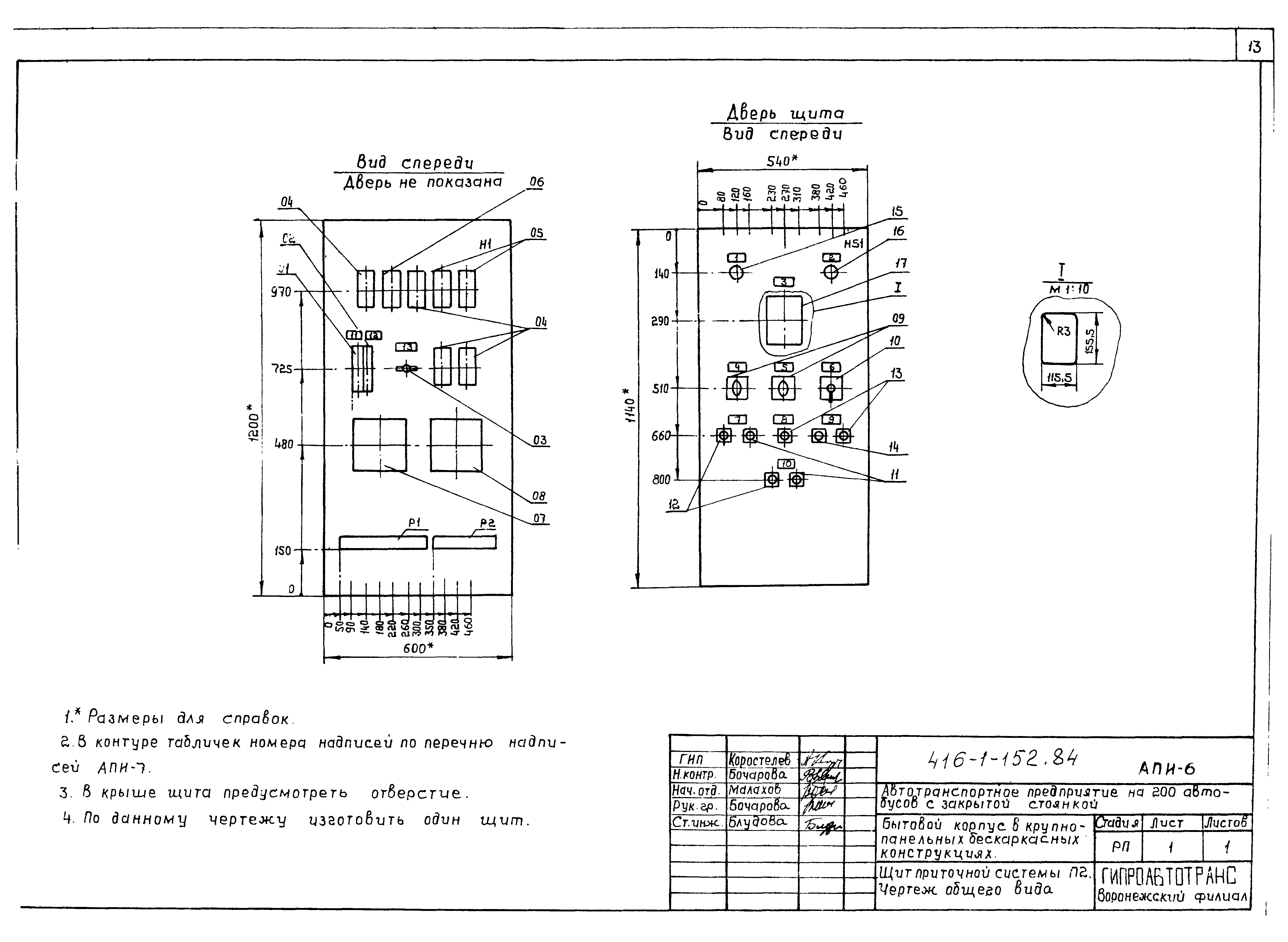
Щит приточной системы П2. Чертеж общего вида
Щит приточной системы П2. Таблица перечня надписей
Щит приточной системы П2. Схема электрическая соединений
Щит приточной системы П3 (П4). Технические данные аппаратов
Щит приточной системы П3 (П4). Чертеж общего вида
Щит приточной системы П3 (П4). Таблица перечня надписей
Щит приточной системы П3 (П4). Схема электрическая соединений
Щит задвижки. Технические данные аппаратов
Щит задвижки. Чертеж общего вида
Щит задвижки. Таблица перечня надписей
Щит задвижки. Схема электрическая соединений
Спецификация щитов и пультов
Разработан: ЦНИИпромзданий
Гипроавтотранс
Утверждён:28.03.1984 Минавтотранс РСФСР (Russian Federation Minavtotrans 16)
Расположен в:Техническая документация Строительство Справочные документы Типовые строительные конструкции, изделия и узлы Общероссийский строительный каталог Промышленные предприятия, здания и сооружения Предприятия, здания и сооружения промышленности и электроэнергетики Ремонтные предприятия. Административно-бытовые, производственные и вспомогательные здания и сооружения промышленных предприятий Здания административно-бытовые, заводоуправления и конторы
Типовой проект 416-1-152.84Типовой проект 416-1-152.84Типовой проект 416-1-152.84Типовой проект 416-1-152.84Типовой проект 416-1-152.84Типовой проект 416-1-152.84Типовой проект 416-1-152.84Типовой проект 416-1-152.84Типовой проект 416-1-152.84Типовой проект 416-1-152.84Типовой проект 416-1-152.84Типовой проект 416-1-152.84Типовой проект 416-1-152.84Типовой проект 416-1-152.84Типовой проект 416-1-152.84Типовой проект 416-1-152.84Типовой проект 416-1-152.84Типовой проект 416-1-152.84Типовой проект 416-1-152.84Типовой проект 416-1-152.84Типовой проект 416-1-152.84Типовой проект 416-1-152.84Типовой проект 416-1-152.84Типовой проект 416-1-152.84Типовой проект 416-1-152.84Типовой проект 416-1-152.84Типовой проект 416-1-152.84Типовой проект 416-1-152.84Типовой проект 416-1-152.84

© 2013 Ёшкин Кот :-) Карта сайта