Скачать Типовой проект 416-1-152.84 Альбом II. Отопление и вентиляция, внутренний водопровод и канализацияДата актуализации: 10.08.2017 Типовой проект 416-1-152.84
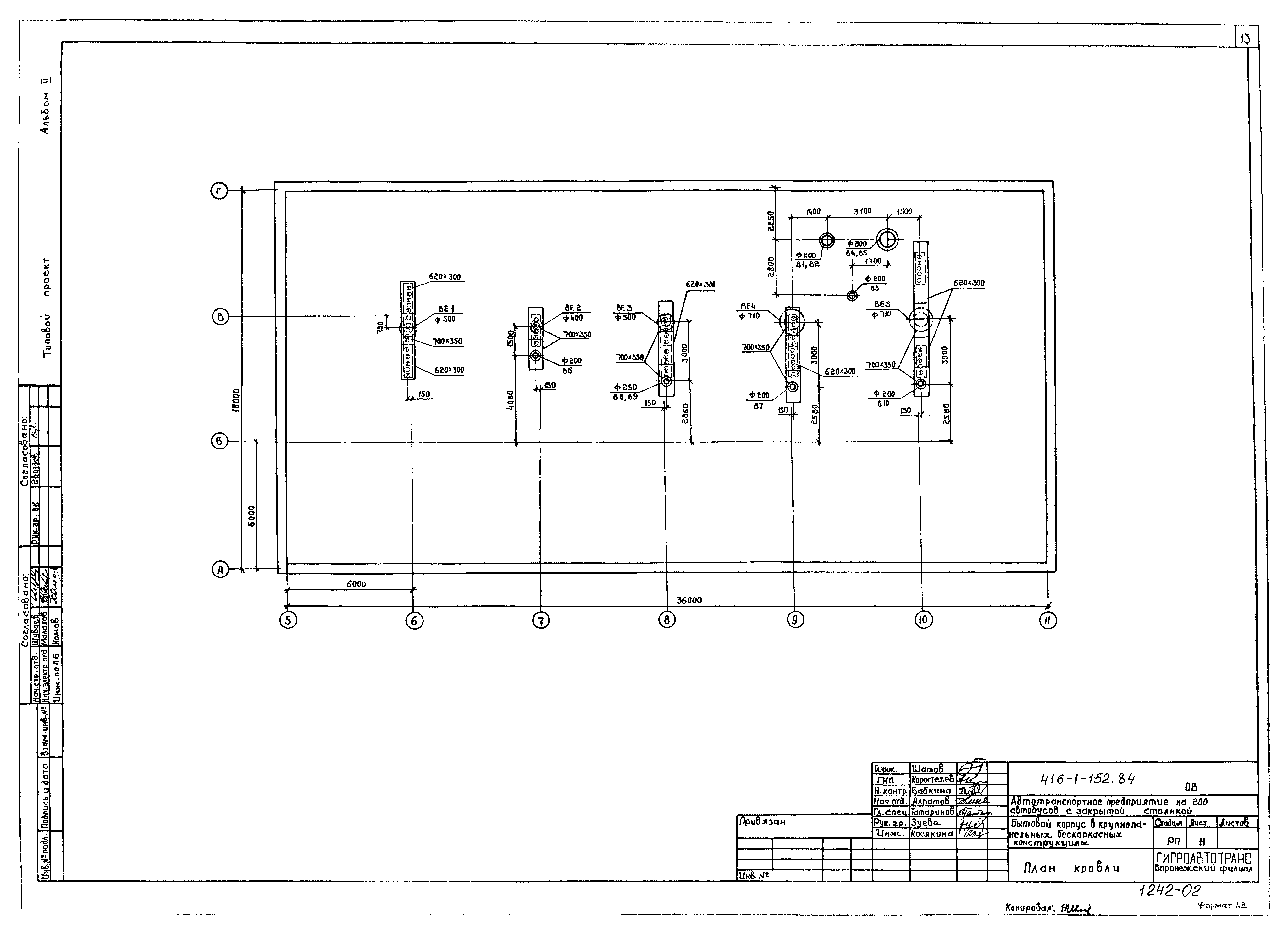
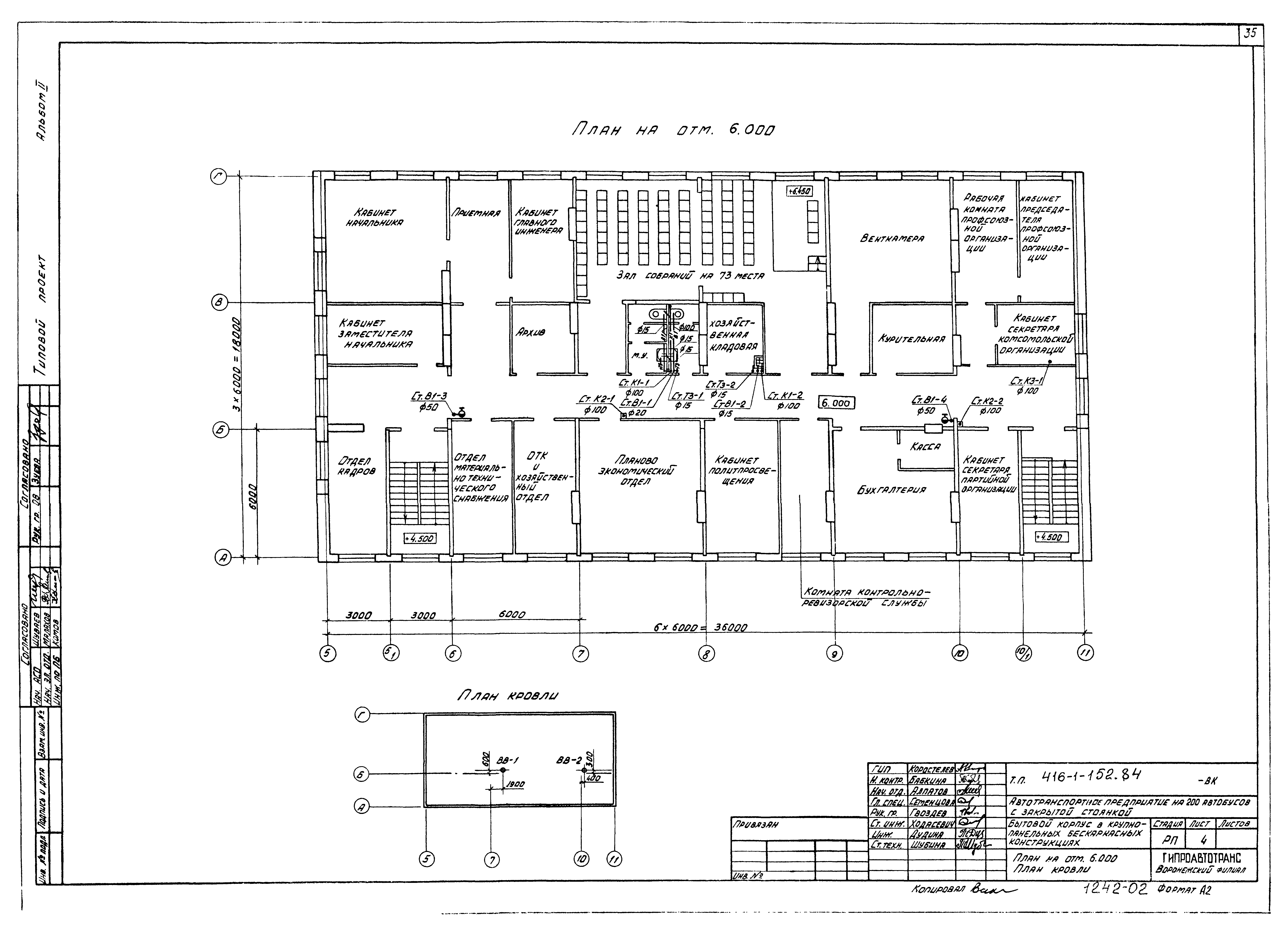
Альбом II. Отопление и вентиляция, внутренний водопровод и канализацияОбозначение: | Типовой проект 416-1-152.84 | Обозначение англ: | 416-1-152.84 | Статус: | действует | Название рус.: | Альбом II. Отопление и вентиляция, внутренний водопровод и канализация | Дата добавления в базу: | 01.10.2014 | Дата актуализации: | 05.05.2017 | Оглавление: | Содержание альбома Отопление и вентиляция Общие данные План подвала План на отм. 0.000 между осями 1 - 7 и А - Г План на отм. 0.000 План на отм. 3.000 План на отм. 6.000 План кровли Схема системы отопления 1 Схемы систем отопления 2, теплоснабжения установок П2 - П4 Принципиальная схема теплового пункта Тепловой пункт. План Тепловой пункт. Разрезы 1-1, 2-2, 3-3 Тепловой пункт. Разрезы 4-4, 5-5. Крепление водоподогревателей Спецификация теплового пункта Схемы систем ВЕ1 - ВЕ5, ВТ1 Схемы систем В1 - В10 Схемы систем П1, П2, ВЕ6 для 2 и 3 климатических зон Схемы систем П3, П4 Установки систем В1 - В5 Установки систем П1, П2 Установки систем П3, П4 Спецификация отопительно-вентиляционных установок П3, П4, В1 - В5 Эскизные чертежи общих видов нетиповых конструкций систем отопления и вентиляции Рама для крепления вентилятора ЭРВ-72-3 Узел установки дефлектора и зонта Рама для крепления фильтра ФяР из 1 ячейки Рама для крепления фильтра ФяР из 2-х ячеек Внутренний водопровод и канализация Общие данные План на отм. 0.000. Экспликация оборудования буфета План на отм. 3.000 План на отм. 6.000. План кровли План подвала Схема системы В1. Водомерный узел № 1 Схемы систем К1, К2 и К3 Схемы систем Т3 и В1. Водомерный узел № 2 Обвязка вертикальных баков | Разработан: | ЦНИИпромзданий Гипроавтотранс
| Утверждён: | 28.03.1984 Минавтотранс РСФСР (Russian Federation Minavtotrans 16)
| Расположен в: |
|
                                        
|