| ||||||||||||||||||||||||||
Скачать Серия ИИ-61 Выпуск 3. Монтажные схемы и узлы сопряжений конструкций под полезные нормативные нагрузки 500 и 1000 кг/кв. мДата актуализации: 10.08.2017
|
| Обозначение: | Серия ИИ-61 |
| Обозначение англ: | Series ИИ-61 |
| Статус: | действует |
| Название рус.: | Выпуск 3. Монтажные схемы и узлы сопряжений конструкций под полезные нормативные нагрузки 500 и 1000 кг/кв. м |
| Дата добавления в базу: | 01.10.2014 |
| Дата актуализации: | 05.05.2017 |
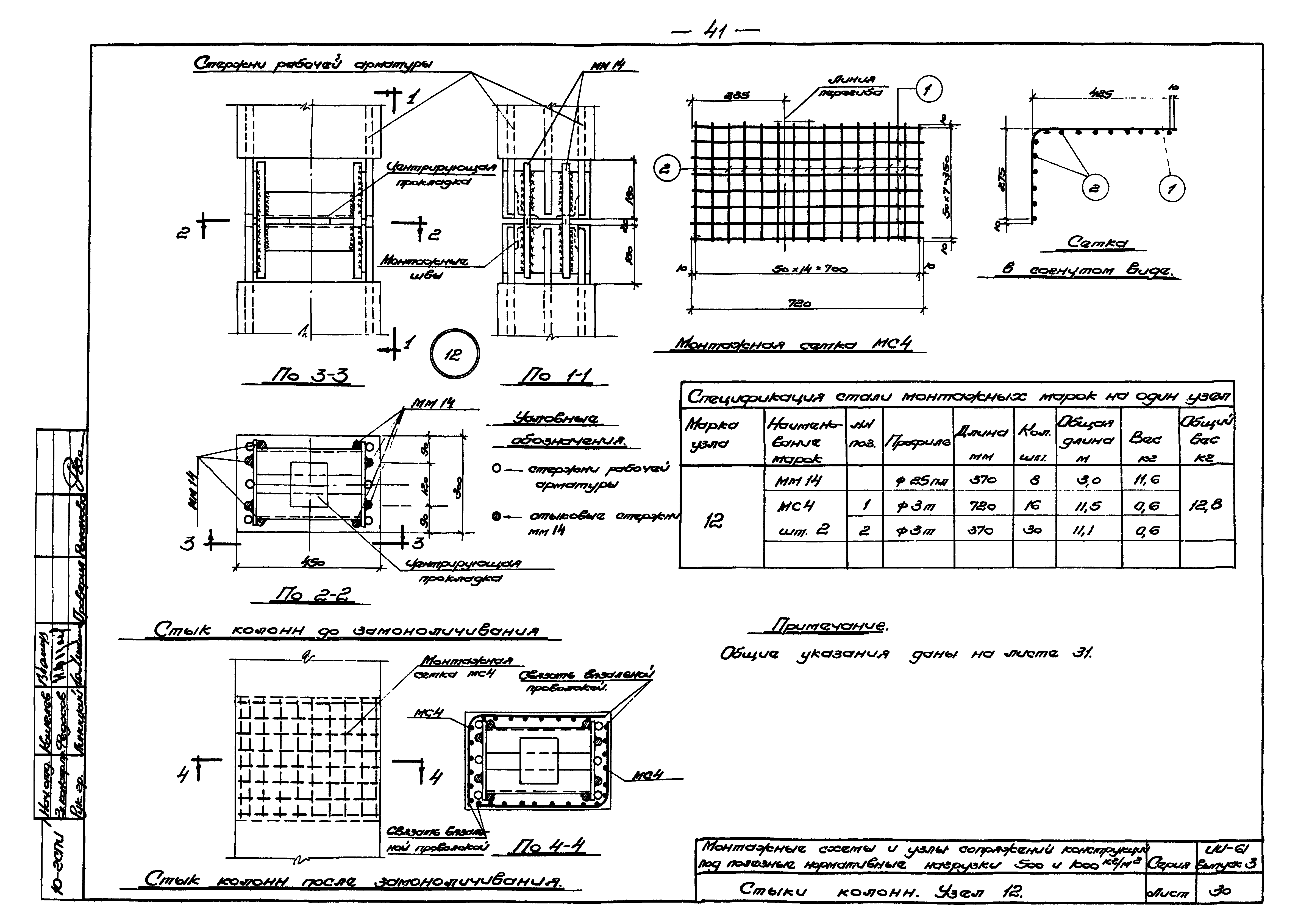
| Оглавление: | Содержание альбома Пояснительная записка Монтажная схема плит и опорных каркасов перекрытий зданий с сеткой колонн (9+9+9)х6 м Монтажные схемы плит и опорных каркасов перекрытий зданий с сеткой колонн (9+9)х6 м Разрезы 1-1 и 2-2 Опорные каркасы и металлические детали Опорные каркасы и металлические детали. Спецификация стали Монтажные схемы поперечного каркаса 3-х этажных зданий с высотами этажей 3,6 м. Схемы 1 - 4 и 1с - 4с Монтажные схемы поперечного каркаса 3-х этажных зданий с высотами этажей 4,8 м. Схемы 5 - 8 и 5с - 8с Монтажные схемы поперечного каркаса 3-х этажных зданий с высотами этажей 1-го 6,0 м и последующих 4,8 м. Схемы 9 - 12 и 9с - 12с Монтажные схемы поперечного каркаса 4-х этажных зданий с высотами этажей 3,6 м. Схемы 13 - 16 и 13с - 16с Монтажные схемы поперечного каркаса 4-х этажных зданий с высотами этажей 4,8 м. Схемы 17 - 20 и 17с - 20с Монтажные схемы поперечного каркаса 4-х этажных зданий с высотами этажей 1-го 6,0 м и последующих 4,8 м. Схемы 21 - 24 и 21с - 24с Перечень элементов каркаса зданий для схем 1 - 4 и 1с - 4с Перечень элементов каркаса зданий для схем 5 - 8 и 5с - 8с Перечень элементов каркаса зданий для схем 9 - 12 и 9с - 12с Перечень элементов каркаса зданий для схем 13 - 16 и 13с - 16с Перечень элементов каркаса зданий для схем 17 - 20 и 17с - 20с Перечень элементов каркаса зданий для схем 21 - 24 и 21с - 24с Узлы 1 и 2 Узлы 1А и 2А Узлы 1, 2, 1А и 2А. Каркасы, сетка и спецификация Узел 3 Узел 3А Узлы 4 и 5 Узлы 4А и 5А Узлы 6 и 7 Узел 8 Узел 9 Сетки и спецификации к узлу 9 Стыки колонн. Узлы 10, 11 Стыки колонн. Узел 12 Стыки колонн. Узлы 13 и 14 Монтажные схемы вертикальных связей по колоннам крайнего ряда Вертикальные связи. Монтажные узлы 15, 16, 17, 18 Вертикальная связь ВС1 Вертикальная связь ВС2 Вертикальная связь ВС3 Закладная деталь МС4. Металлический столик МН2А |
| Разработан: | ГСПИ-10 Гипротис Гипромолпром |
| Утверждён: | 14.12.1962 Государственный комитет Совета Министров СССР по делам строительства (466) |
| Принят: | НИИЖБ |
| Расположен в: |














































