| 
 | ||||||||||||||||||||||||||
| 
 Скачать Альбом ДС27-4-2-90 Часть III. 1-я редакцияДата актуализации: 10.08.2017
 | 
| Обозначение: |  Альбом ДС27-4-2-90 | 
| Обозначение англ: |  ДС27-4-2-90 | 
| Статус: | cправочные материалы, мп, тпр | 
| Название рус.: | Часть III. 1-я редакция | 
| Дата добавления в базу: | 01.10.2014 | 
| Дата актуализации: | 05.05.2017 | 
| Дата введения: | 01.01.1990 | 
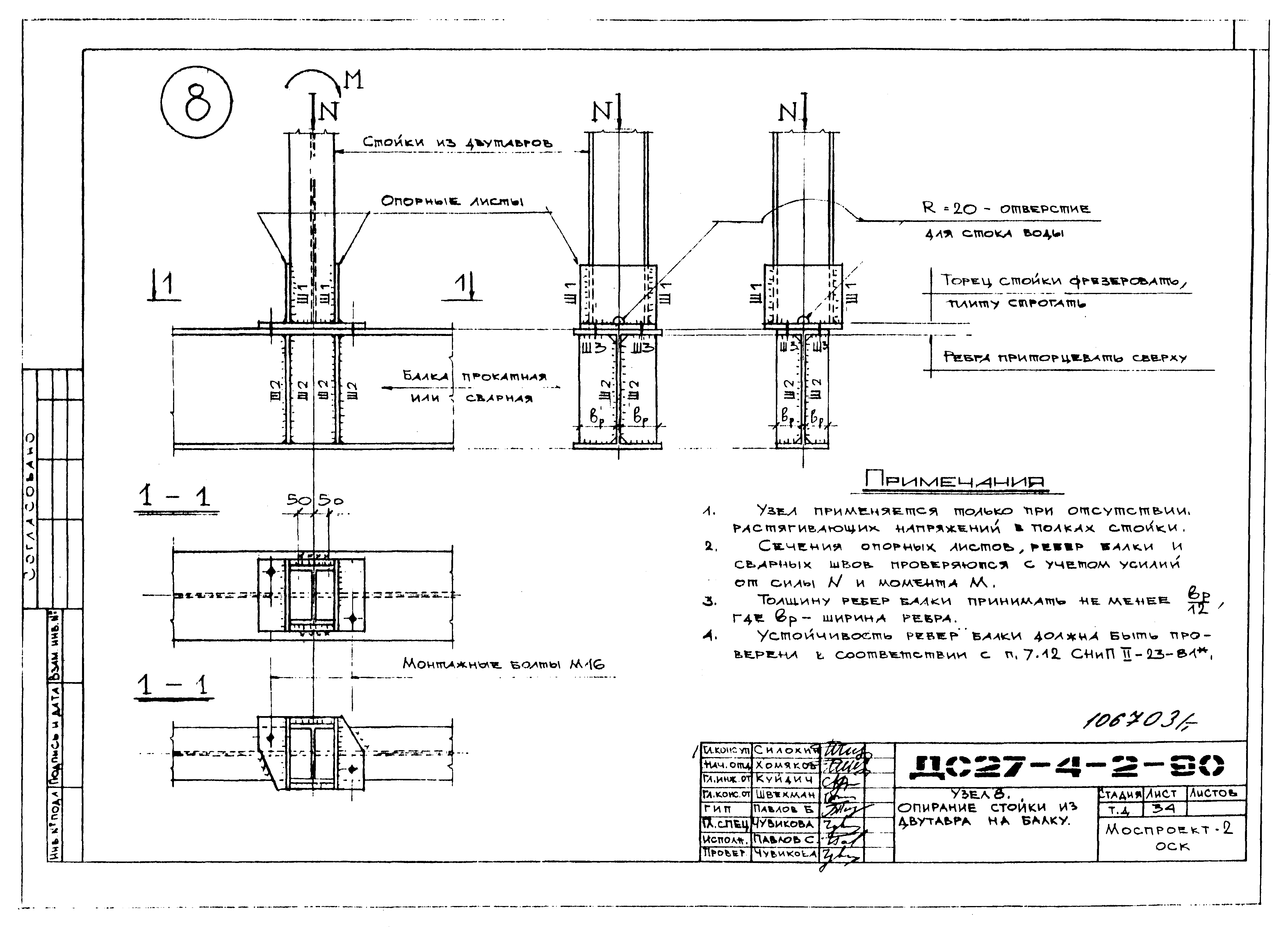
| Оглавление: | Содержание Пояснительная записка Узел 1. Рамный узел примыкания ригеля к полке колонны с одной стороны Узел 2. Рамный узел примыкания ригелей одинаковой высоты к полкам колонны с 2-х сторон Узел 3. Рамный узел примыкания ригелей разной высоты к полкам колонны с 2-х сторон Узел 4. Рамный узел примыкания ригелей разной высоты к полкам колонны с 2-х сторон Узлы крепления стоек и подвесок к балкам. Пояснительная записка Узел 5. Опирание стойки (подвески) из 2-х уголков на балку Узел 6. Опирание стойки из двутавра на балку Узел 7. Опирание стойки из двутавра на балку Узел 8. Опирание стойки из двутавра на балку Узел 9. Крепление к балке подвески из двутавра на сварке Узел 10. Крепление к балке подвески из двутавра на сварке Узел 11. Крепление к балке подвески из двутавра на сварке Узел 12. Крепление к балке подвески из уголков на сварке Узел 13. Крепление к балке подвески из уголков на болтах Узел 14. Крепление к балке подвески из двутавра на болтах Узел 15. Крепление к балке подвески из двутавра на болтах | 
| Разработан: | Моспроект-2 | 
| Утверждён: | 01.01.1990 Главмосархитектура | 
| Расположен в: | 







































