Информационная система
«Ёшкин Кот»

Скачать базу одним архивом
Скачать обновления
История создания базы
Карта сайта

Скачать Типовой проект 901-8-8 Альбом III. Электротехническая часть. Связь и сигнализация

Дата актуализации: 10.08.2017

Типовой проект 901-8-8

Альбом III. Электротехническая часть. Связь и сигнализация

Обозначение: Типовой проект 901-8-8
Обозначение англ: 901-8-8
Статус:не определен законодательством
Название рус.:Альбом III. Электротехническая часть. Связь и сигнализация
Дата добавления в базу:01.10.2014
Дата актуализации:05.05.2017
Дата введения:24.09.1982
Оглавление:Содержание альбома
Силовое электрооборудование
   Общие данные
   Трансформаторная подстанция. Схема принципиальная электрическая
   Трансформаторная подстанция. Установка электрооборудования. План и разрез
   Трансформаторная подстанция. Выводы И, Н в камере трансформатора. Конструкции
   Трансформаторная подстанция. Заземление. План. Узлы и детали
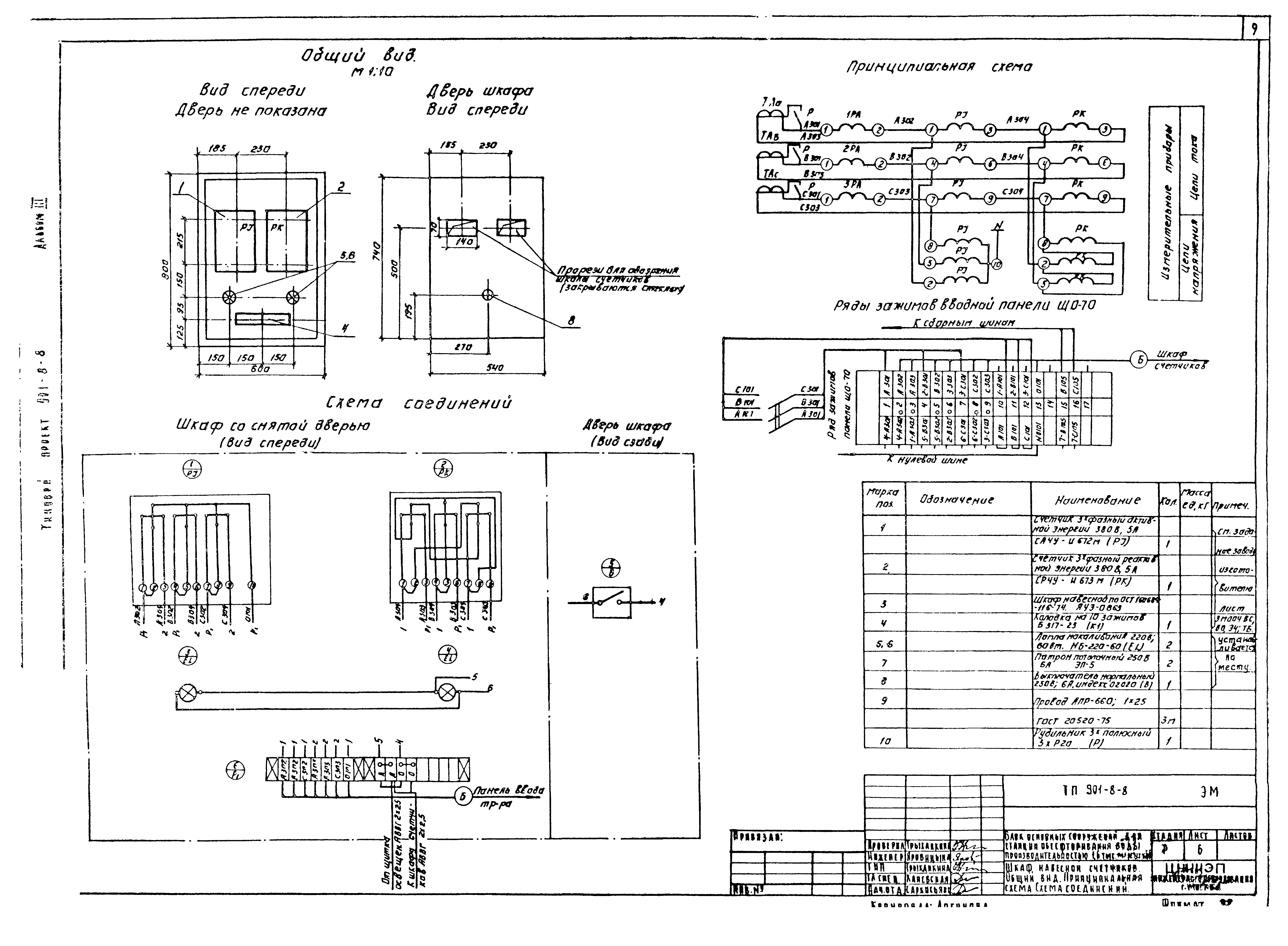
   Шкаф навесной счетчиков. Общий вид. Принципиальная схема. Схема соединений
   Схема электрическая принципиальная распределительной сети 380/220 В
   Схема электрическая принципиальная управления хозпротивопожарными насосами М1 (М2 - М4)
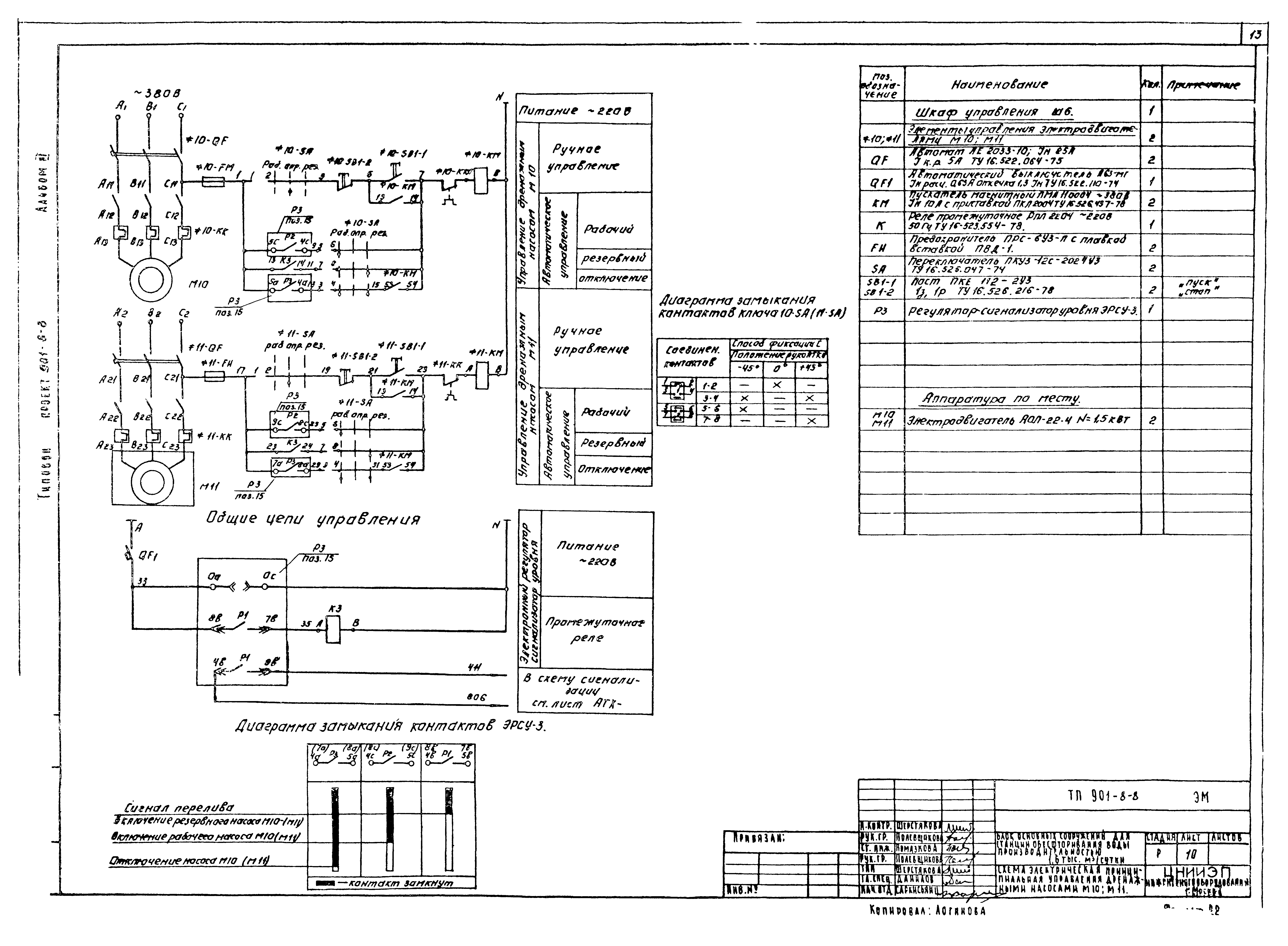
   Схема электрическая принципиальная управления дренажными насосами М10, М11
   Схема электрическая принципиальная управления задвижками БУ1-М1 - БУ3-М1; БУ1-М2 - БУ3-М2
   Кабельный журнал
   Размещение электрооборудования и прокладка кабелей. Планы на отм. - 0.500; 0.000
   Размещение электрооборудования и прокладка кабелей. Планы на отм. - 0.500; 3.600
   Размещение электрооборудования и прокладка кабелей. Планы на отм. - 1.800; - 0.500; 3.600
   Размещение электрооборудования и прокладка кабелей. Спецификация
   План прокладки троллейного шинопровода для электрической тали
   Ведомость электрооборудования и кабельных изделий
   Ведомость потребности в электромонтажных изделиях
   Опросный лист для заказа камер серии КСО-366
   Опросный лист для заказа щита из панелей ЩО-70
Электроосвещение
   Общие данные
   Электрическое освещение. Планы на отм. - 1.800; - 0.500; 0.000; 1.000; 3.600. Фрагмент 1
   Ведомость электрооборудования и кабельных изделий, объемов электромонтажных работ, потребности в электромонтажных изделиях
Автоматизация технологического процесса
   Общие данные. Схема функциональная приточной системы П-1
   Схема функциональная технологического процесса
   Схема электрическая принципиальная управления приточной системой П-1
   Схема подключения электрооборудования. Схема электрическая принципиальная управления электронагревателем
   Схема подключения приборов и устройств технологического контроля приточной системы П-1
   Схема электрическая принципиальная распределительной сети
   Схема электрическая принципиальная сигнализации
   Схема внешних проводок
   Схема подключения
   Размещение электрооборудования и прокладка кабелей. План на отм. - 1.800; - 0.500
   Размещение электрооборудования и прокладка кабелей. План на отм. - 0.500; 3.600
Связь и сигнализация
   Общие данные. План на отм. 0.000 и 3.600 с сетями связи
Разработан: ЦНИИЭП иженерного оборудования
Утверждён:22.07.1981 Госгражданстрой (Gosgrazhdanstroy 219)
Расположен в:Техническая документация Строительство Справочные документы Типовые строительные конструкции, изделия и узлы Общероссийский строительный каталог Промышленные предприятия, здания и сооружения Здания и сооружения санитарно-технические Водоснабжение Сооружения и установки по подготовке питьевой воды Станции обесфторивания воды
Типовой проект 901-8-8Типовой проект 901-8-8Типовой проект 901-8-8Типовой проект 901-8-8Типовой проект 901-8-8Типовой проект 901-8-8Типовой проект 901-8-8Типовой проект 901-8-8Типовой проект 901-8-8Типовой проект 901-8-8Типовой проект 901-8-8Типовой проект 901-8-8Типовой проект 901-8-8Типовой проект 901-8-8Типовой проект 901-8-8Типовой проект 901-8-8Типовой проект 901-8-8Типовой проект 901-8-8Типовой проект 901-8-8Типовой проект 901-8-8Типовой проект 901-8-8Типовой проект 901-8-8Типовой проект 901-8-8Типовой проект 901-8-8Типовой проект 901-8-8Типовой проект 901-8-8Типовой проект 901-8-8Типовой проект 901-8-8Типовой проект 901-8-8Типовой проект 901-8-8Типовой проект 901-8-8Типовой проект 901-8-8Типовой проект 901-8-8Типовой проект 901-8-8Типовой проект 901-8-8Типовой проект 901-8-8Типовой проект 901-8-8Типовой проект 901-8-8Типовой проект 901-8-8Типовой проект 901-8-8

© 2013 Ёшкин Кот :-) Карта сайта