| ||||||||||||||||||||||||||
Скачать Типовые проектные решения 901-07-11.84 Альбом V. Архитектурно-строительная частьДата актуализации: 10.08.2017
|
| Обозначение: | Типовые проектные решения 901-07-11.84 |
| Обозначение англ: | 901-07-11.84 |
| Статус: | cправочные материалы, мп, тпр |
| Название рус.: | Альбом V. Архитектурно-строительная часть |
| Дата добавления в базу: | 01.10.2014 |
| Дата актуализации: | 05.05.2017 |
| Дата введения: | 10.09.1984 |
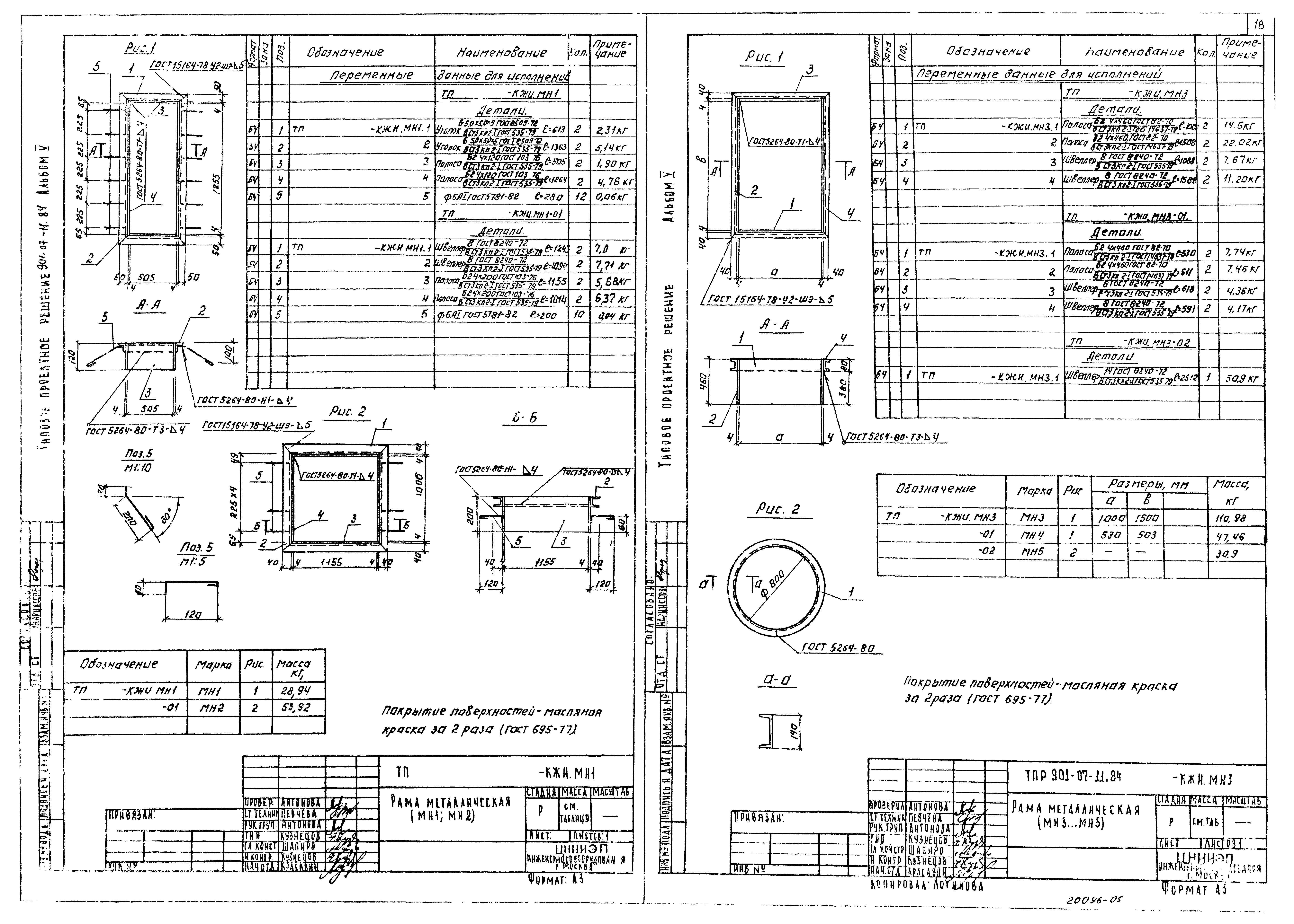
| Оглавление: | Содержание альбома Архитектурные решения Общие данные План на отм. 0.000 Разрезы 1-1, 2-2. План на отм. 3.200 Фасады 1 - 7; 7 - 1; В - А; А - В Ведомость проемов ворот и дверей. Ведомость и спецификация перемычек. Спецификация элементов заполнения проемов Планы полов и кровли. Ведомость отделки помещений Конструкции железобетонные Общие данные Схема расположения подпольного хозяйства Схемы расположения новых участков каналов и плит перекрытия. Фрагменты Схемы расположения скрубберов, вытяжных труб и фундаментов под них Фундаменты под оборудование. Монолитные участки перекрытия каналов Резервуар нейтрализующего раствора Скруббер Схема расположения плит перекрытия на отм. 3.200 Венткамера на отм. 3.200 Рама металлическая (МН1, МН2) Рама металлическая (МН3...МН5) Конструкции металлические Общие данные. Техническая спецификация металла Техническая спецификация металла на типовые конструкции Ведомость металлоконструкций по видам профилей Схема расположения балок металлических площадок и лестниц. Разрезы 1-1 - 7-7. Узел 1. Спецификация Схема расположения подвесных путей. Узлы 1 - 3 Трубы вытяжные |
| Разработан: | ЦНИИЭП иженерного оборудования |
| Утверждён: | 14.02.1984 Госгражданстрой (Gosgrazhdanstroy 48) |
| Расположен в: |

























