| ||||||||||||||||||||||||||
Скачать Типовые проектные решения 901-07-11.84 Альбом III. Технологическая, санитарно-техническая части и нестандартизированное оборудование. Вариант обеззараживания сточных водДата актуализации: 10.08.2017
|
| Обозначение: | Типовые проектные решения 901-07-11.84 |
| Обозначение англ: | 901-07-11.84 |
| Статус: | cправочные материалы, мп, тпр |
| Название рус.: | Альбом III. Технологическая, санитарно-техническая части и нестандартизированное оборудование. Вариант обеззараживания сточных вод |
| Дата добавления в базу: | 01.10.2014 |
| Дата актуализации: | 05.05.2017 |
| Дата введения: | 10.09.1984 |
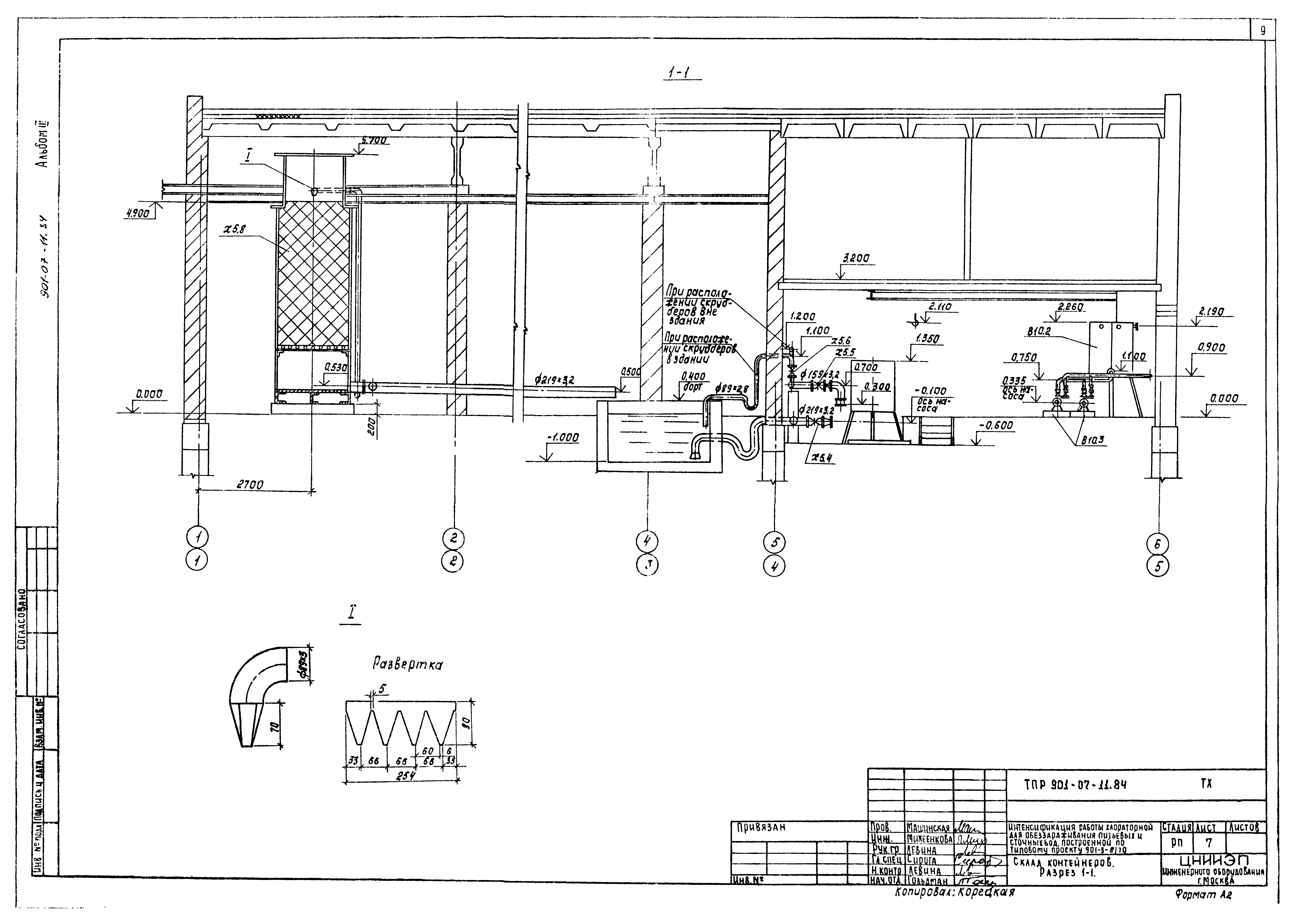
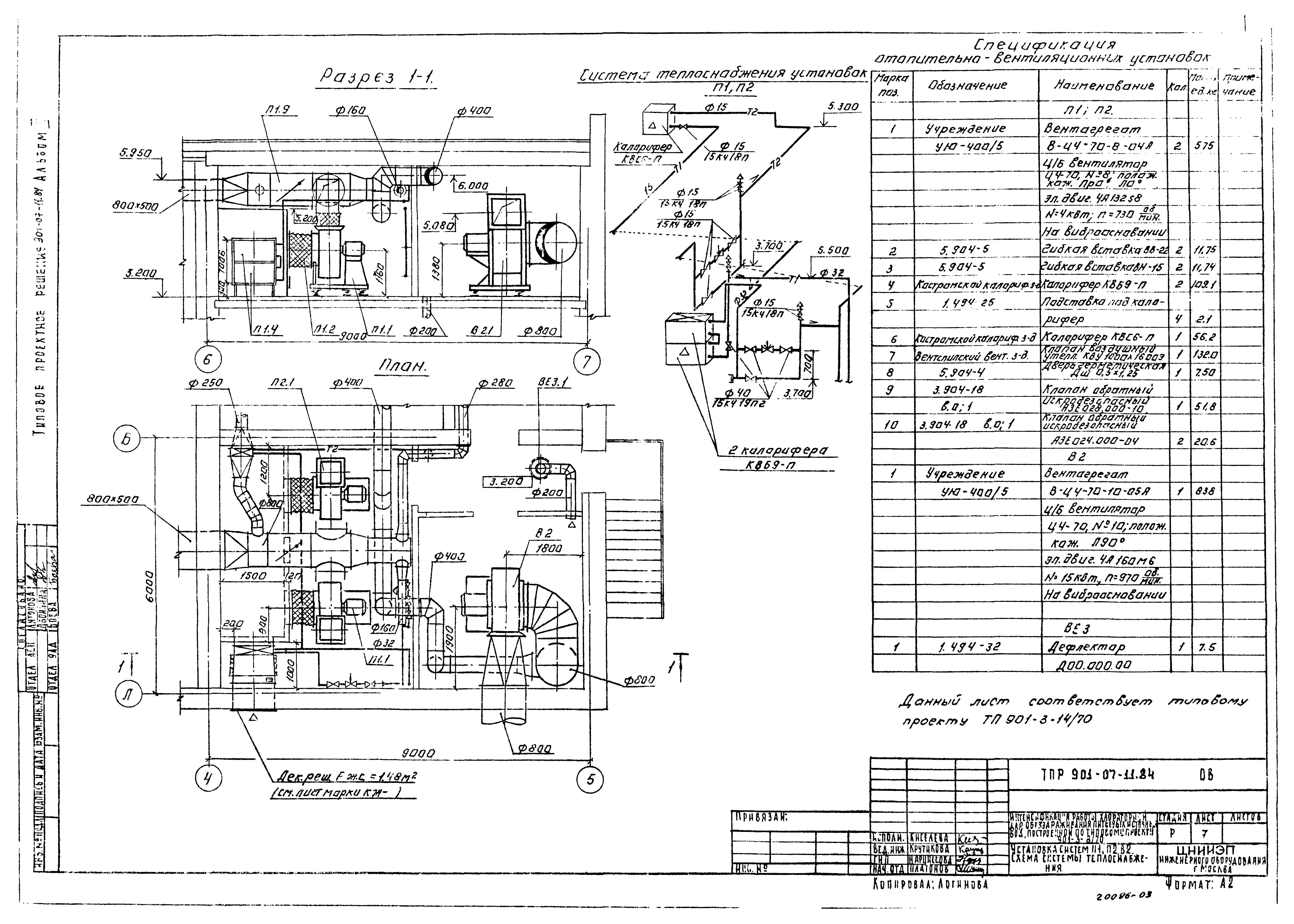
| Оглавление: | Содержание альбома Технологическая часть Общие данные Временная схема. План. Схемы Х1, Х2, Х3, В1, В10 Вариант подачи хлорной воды. Принципиальная схема (скруббера в здании) Вариант подачи хлорной воды. Принципиальная схема (скруббера вне здания) Вариант подачи газообразного хлора. Принципиальная схема Склад контейнеров. Помещение насосной. План Склад контейнеров. Помещение насосной. Разрез 1-1 Вариант подачи хлорной воды. Хлордозаторная. План Вариант подачи хлорной воды. Хлордозаторная. Разрез 1-1 Вариант подачи газообразного хлора. Хлордозаторная. План Схемы Х1, Х2, Х4 Схемы В10, Е2 Схемы Х3, Х4 Схема Х5 Внутренний водопровод и канализация Общие данные План. Схемы К1, К3, В1, В9, Т0 Отопление и вентиляция Общие данные План на отм. 0.000 и 3.200 Схемы систем вентиляции П1, П2, В1 - В3; ВЕ1 - ВЕ3. Схема систем отопления. Узел управления Установка систем П1, П2, В2. Схема системы теплоснабжения Переходы Конфузор Нестандартизированное оборудование Скруббер. Чертеж общего вида Компенсатор. Чертеж общего вида |
| Разработан: | ЦНИИЭП иженерного оборудования |
| Утверждён: | 14.02.1984 Госгражданстрой (Gosgrazhdanstroy 48) |
| Расположен в: |





























