| ||||||||||||||||||||||||||||||||
Скачать СТО ДОКТОР БЕТОН 68686983-004-2014 Смеси сухие строительные марки ДОКТОР БЕТОН® для гидроизоляции и ремонта бетонных конструкций. Типовые решения. УзлыДата актуализации: 10.08.2017
|
| Обозначение: | СТО ДОКТОР БЕТОН 68686983-004-2014 |
| Обозначение англ: | 68686983-004-2014 |
| Статус: | действует |
| Название рус.: | Смеси сухие строительные марки "ДОКТОР БЕТОН®" для гидроизоляции и ремонта бетонных конструкций. Типовые решения. Узлы |
| Название англ.: | Dry building mixtures trade mark "ДОКТОР БЕТОН®" for waterproofing and repair concrete construction. |
| Дата добавления в базу: | 01.10.2014 |
| Дата актуализации: | 05.05.2017 |
| Дата введения: | 01.05.2014 |
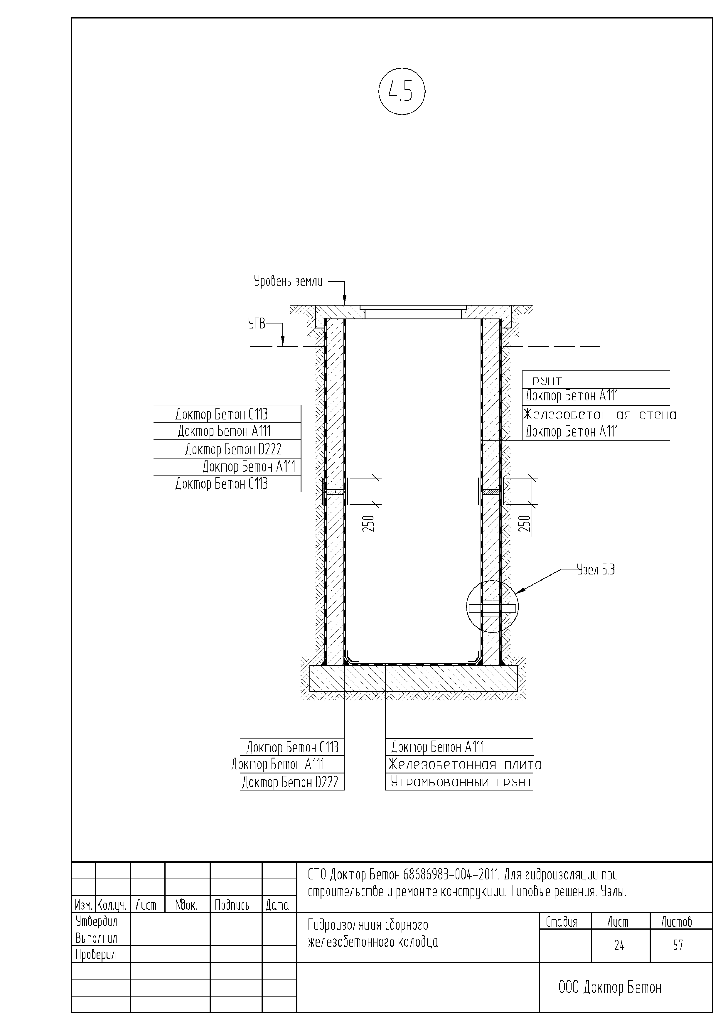
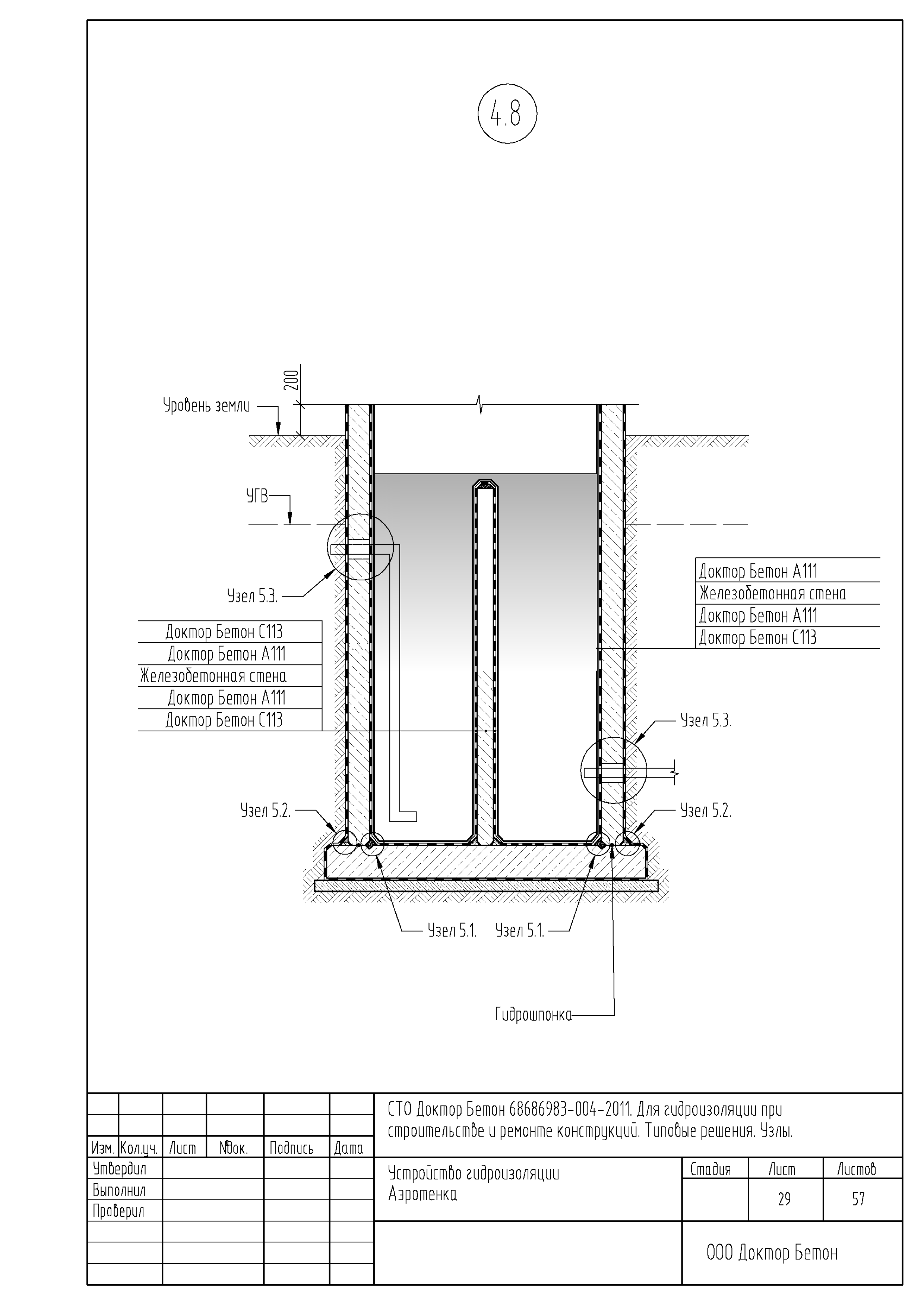
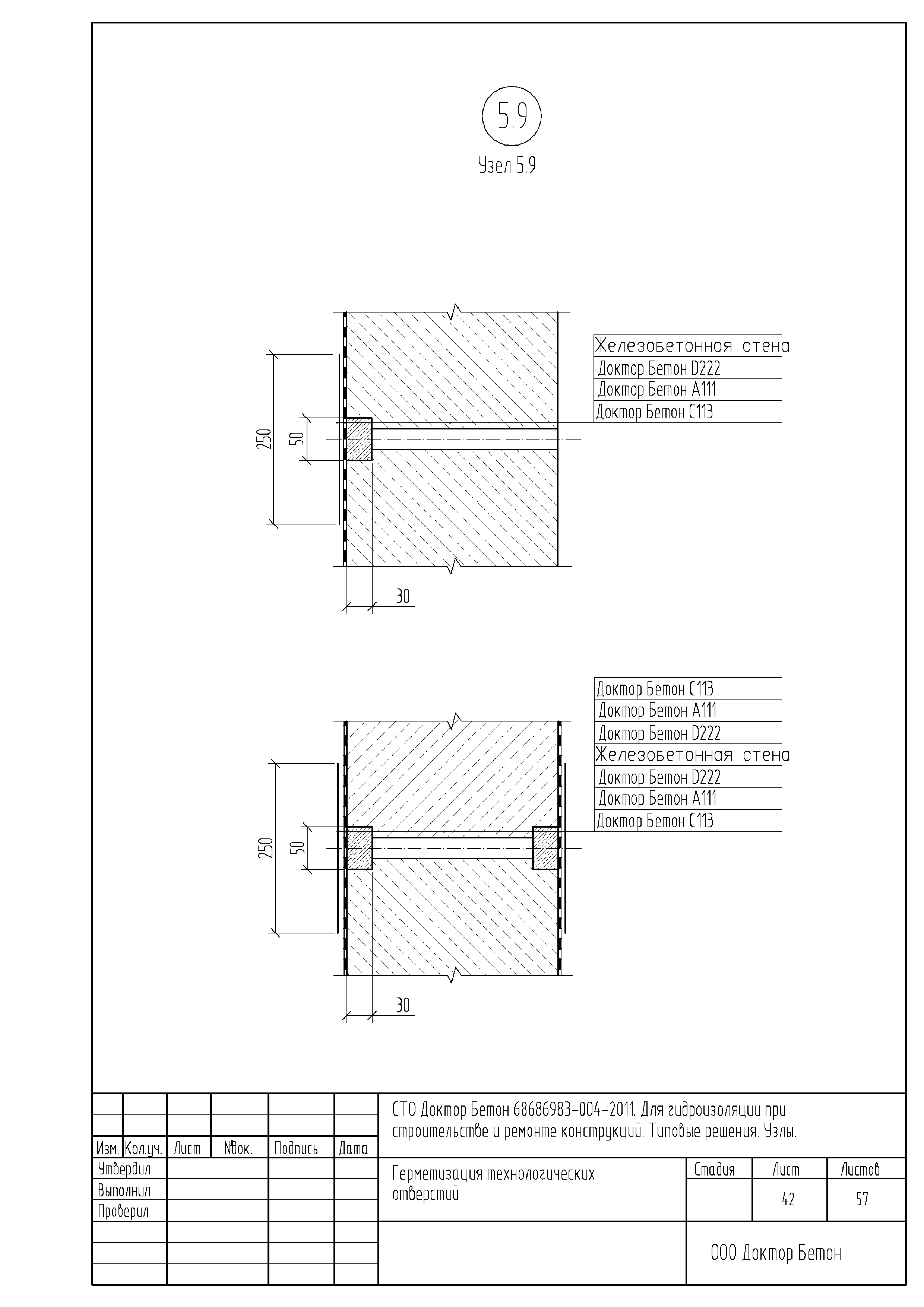
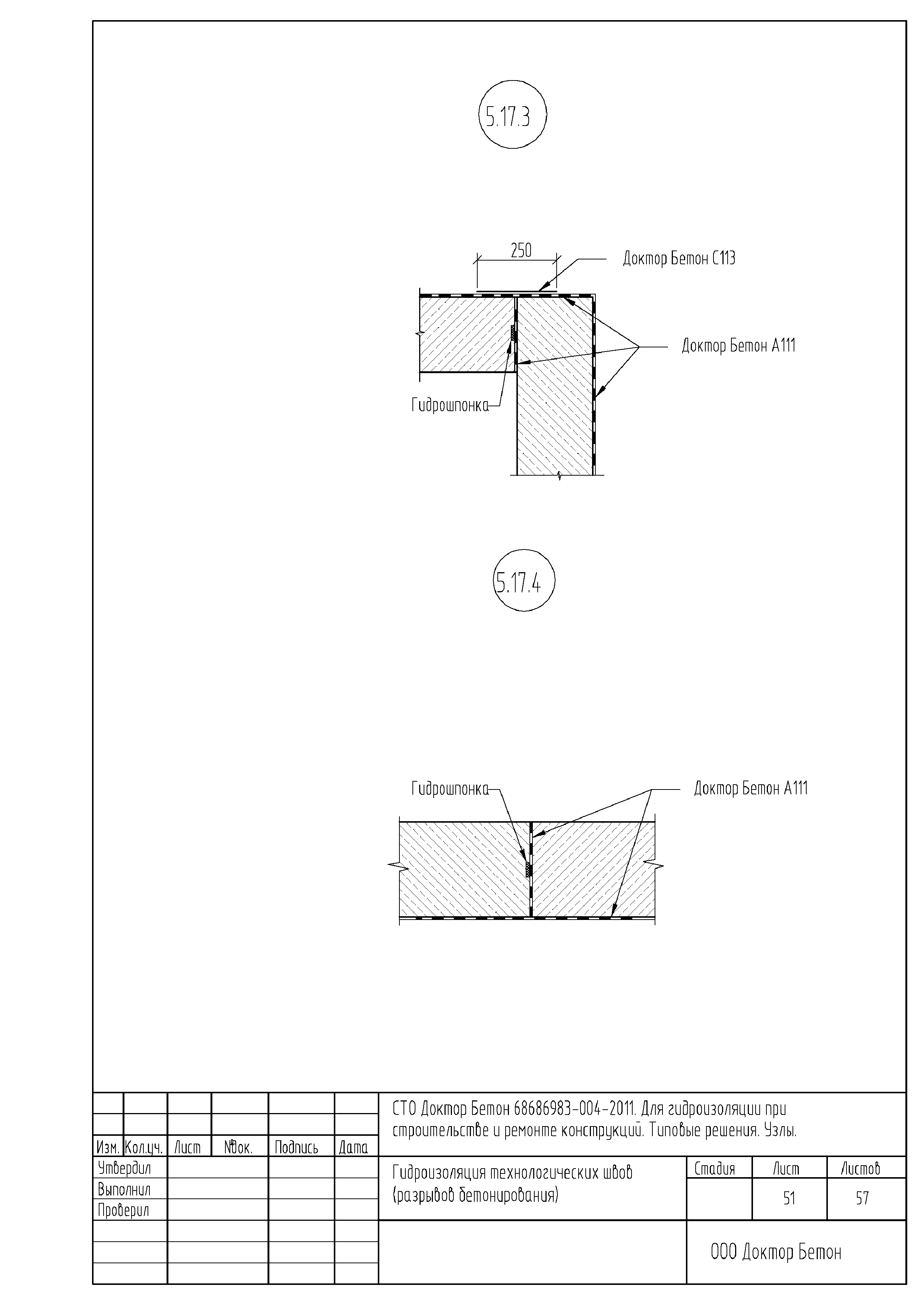
| Оглавление: | Гидроизоляция и дренаж подземной части здания снаружи при новом строительстве Гидроизоляция подвала здания изнутри при реконструкции Гидроизоляция изнутри при новом строительстве и ремонте Устройство гидроизоляции подземной части здания в стесненных условиях Гидроизоляция подвала существующего здания изнутри Гидроизоляция подвала существующего здания с устройством внутреннего дренажа Гидроизоляция и дренаж подземной части здания при новом строительстве с утеплением Гидроизоляция подземной части здания при новом строительстве Гидроизоляция при ремонте существующего здания Гидроизоляция и дренаж подземной части здания при новом строительстве Гидроизоляция при ремонте старого здания с кирпичными стенами Гидроизоляция резервуара изнутри при новом строительстве Гидроизоляция заглубленного резервуара Гидроизоляция бассейна Гидроизоляция сборного железобетонного колодца Устройство гидроизоляции КНС Устройство гидроизоляции Аэротенка Гидроизоляция примыкания "стена-фундаментная плита" снаружи Герметизация холодного шва бетонирования ж/б плиты Герметизация холодного шва бетонирования ж/б стены Гидроизоляция примыкания "стена-фундаментная плита" изнутри Гидроизоляция ввода коммуникаций с учетом сейсмичности Гидроизоляция ввода коммуникаций в газифицированных населенных пунктах Гидроизоляция ввода коммуникаций с учетом сейсмичности (при ремонте) Гидроизоляция ввода коммуникаций (при ремонте) Гидроизоляция деформационного шва Гидроизоляция деформационного шва при воздействии агрессивных сред Герметизация технологических отверстий Устройство гидроизоляции временного температурно-усадочного шва Гидроизоляция террас и балконов Гидроизоляция эксплуатируемых кровель, террас и балконов Гидроизоляция технологических швов (разрывов бетонирования) Гидроизоляция фундаментной плиты в месте расположения деформационного шва Гидроизоляция внутреннего помещения (санузлы, душевые и т.д.) Гидроизоляция плитно-свайного фундамента снизу Устройство гидроизоляции эксплуатируемой кровли с дорожным покрытием Устройство гидроизоляции эксплуатируемой кровли с утеплением Устройство гидроизоляции и дренажа подпорной стенки |
| Разработан: | ООО ДОКТОР БЕТОН |
| Утверждён: | 01.05.2014 ООО ДОКТОР БЕТОН (04/НТД) |
| Издан: | ООО ДОКТОР БЕТОН (2014 г. ) |
| Расположен в: | |
| Нормативные ссылки: |
|





























































