Скачать Типовой проект 903-1-273.89 Альбом 7. Часть 1. Генеральный план. Архитектурные решения. Конструкции железобетонные. Конструкции металлические. Конструкции деревянныеДата актуализации: 10.08.2017 Типовой проект 903-1-273.89
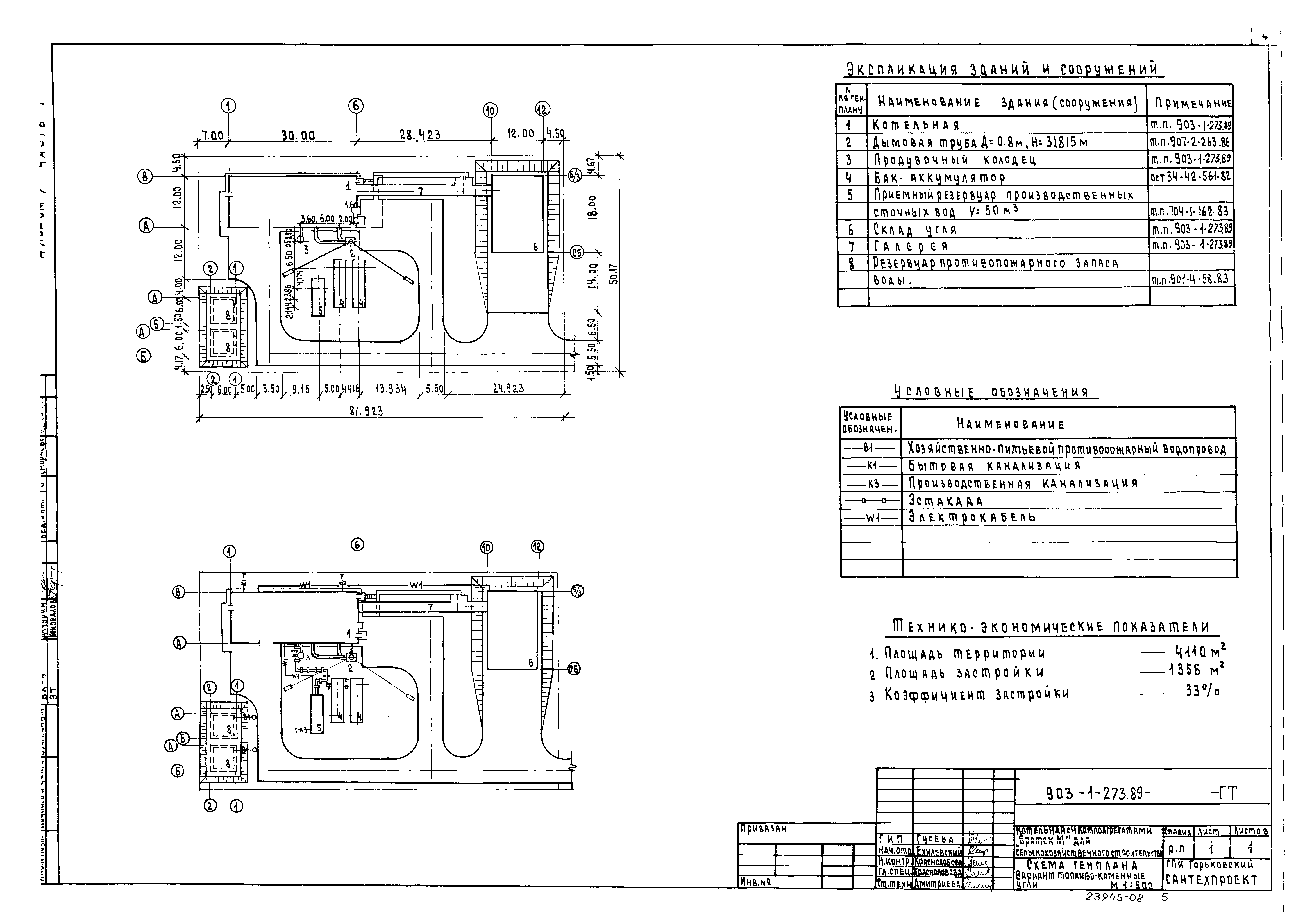
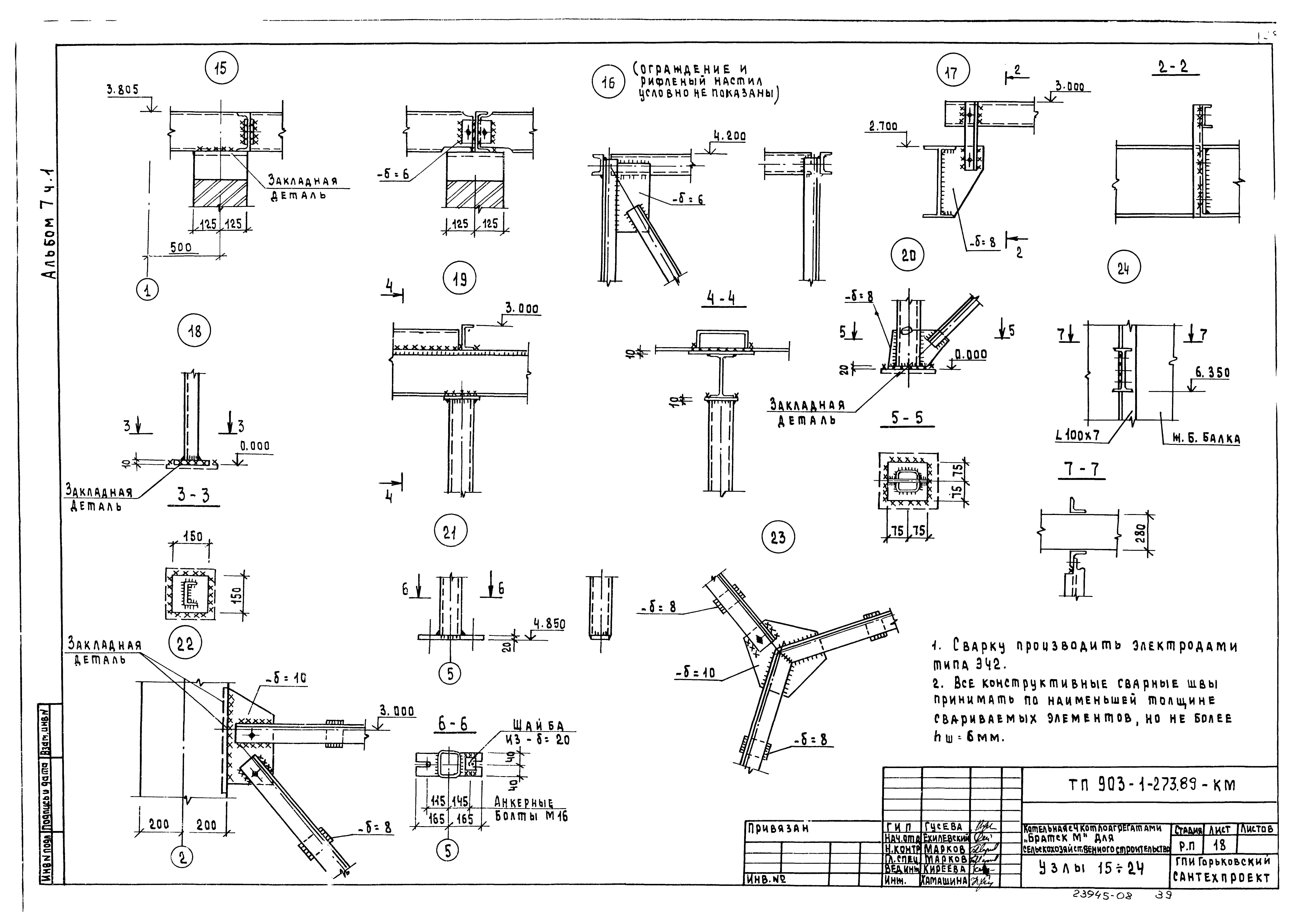
Альбом 7. Часть 1. Генеральный план. Архитектурные решения. Конструкции железобетонные. Конструкции металлические. Конструкции деревянныеОбозначение: | Типовой проект 903-1-273.89 | Обозначение англ: | 903-1-273.89 | Статус: | не определен законодательством | Название рус.: | Альбом 7. Часть 1. Генеральный план. Архитектурные решения. Конструкции железобетонные. Конструкции металлические. Конструкции деревянные | Дата добавления в базу: | 01.10.2014 | Дата актуализации: | 05.05.2017 | Дата введения: | 27.09.1989 | Оглавление: | Содержание альбома Чертежи основного комплекта марки ГП Схема генплана. Топливо - каменный уголь Схема генплана. Топливо - бурый уголь Чертежи основного комплекта марки АР Общие данные План на отм. 0.000. Фрагмент 1 План на отм. 3.000; 3.600; 4.800 Разрезы. Фрагмент 2 Фасады Планы расположения отверстий в стенах и перегородках Планы кровли и полов Узлы I - VIII Топливоподача. Планы галереи и крытого склада Топливоподача. Разрезы Топливоподача. Фасады Двери индустриальные ДИ1, ДИ2 Узлы А - Е Шкаф ПК1 Чертежи основного комплекта марки КМ Общие данные Ведомость металлоконструкций по видам профилей Техническая спецификация металла Схемы расположения балок перекрытия на отм. 3.000; 4.200; 4.800. Разрез 1-1 Разрезы 2-2, 11-11 Схемы расположения балок перекрытия на отм. 3.600, балок площадок на отм. 3.600 Схемы расположения балок перекрытия на отм. 3.900, площадок на отм. 3.000; 3.900; 4.200 Схема расположения монорельса и балок площадок на отм. 3.000 Схемы расположения подвесных путей, стоек перегородок на отм. 3.650; 4.850, опоры на отм. 3.900 Схемы расположения связей, подвесок и балок для крепления трубопроводов Схема расположения опор на отм. 0.000 Схема расположения наружного хозяйства Схема расположения перекрытия канала Узлы 1 - 3 Узлы 4 - 7 Узлы 8 - 14 Узлы 15 - 24 Узлы 25 - 36 Чертежи основного комплекта марки КМ1 Топливоподача. Общие данные Топливоподача. Ведомость металлоконструкций по видам профилей Топливоподача. Техническая спецификация металла Топливоподача. Схемы расположения балок кровли и связей по верхним поясам ферм, балок пола и связей по нижним поясам ферм. Схема ОП-1 Топливоподача. Схемы Ф1, Ф2. Схемы расположения монорельса, площадки Топливоподача. Схемы расположения бункера, решетки бункера. Схема Р1. Узел 1 Топливоподача. Схемы расположения опор, ригелей, наружной лестницы Топливоподача. Узлы 2 - 4 Топливоподача. Узлы 5 - 10 | Разработан: | Горьковский Сантехпроект
| Утверждён: | 27.09.1989 ГПК СантехНИИпроект (SantekhNIIproject GPK 11)
| Издан: | ЦИТП Госстроя СССР (CITP, Gosstroy (USSR) 1989 г. )
| Расположен в: |
|
                                                 
|