Информационная система
«Ёшкин Кот»

Скачать базу одним архивом
Скачать обновления
История создания базы
Карта сайта

Скачать Типовой проект 903-1-273.89 Альбом 5. Часть 2. Металлоконструкции технологические. Рабочие чертежи

Дата актуализации: 10.08.2017

Типовой проект 903-1-273.89

Альбом 5. Часть 2. Металлоконструкции технологические. Рабочие чертежи

Обозначение: Типовой проект 903-1-273.89
Обозначение англ: 903-1-273.89
Статус:не определен законодательством
Название рус.:Альбом 5. Часть 2. Металлоконструкции технологические. Рабочие чертежи
Дата добавления в базу:01.10.2014
Дата актуализации:05.05.2017
Дата введения:27.09.1989
Оглавление:Д20А.1036.010СБ Короб с заслонкой
Д20А.1036.020 Короб
Д20А.1036.011 Стенка
Д20А.1036.014 Стенка
Д20А.1036.020СБ Короб
Д20А.1036.030 Короб с заслонкой
Д20А.1036.040 Короб
Д20А.1036.030СБ Короб с заслонкой
Д20А.1036.040СБ Короб
Д20А.1036.050 Короб утилизатора
Д20А.1036.035 Прокладка
Д20А.1036.034 Крышка
Д20А.1036.050СБ Короб утилизатора
Д20А.1036.060 Короб
Д20А.1036.038 Стенка
Д20А.1036.042 Рамка
Д20А.1036.043 Стенка
Д20А.1036.060СБ Короб
Д20А.1036.070 Водораспределитель
Д20А.1036.070СБ Водораспределитель
Д20А.1036.047 Труба
Д20Б.037.000 Компенсатор
Д20Б.037.003 Линза
Д20Б.037.000СБ Компенсатор
Д20Б.039.000 Компенсатор 400х600
Д20Б.037.010СБ Короб направляющий
Д20Б.037.010 Короб направляющий
Д20Б.039.000СБ Компенсатор 400х600
Д21А.775.006 Патрубок
Д21А.774.000 Переход
Д21А.774.000СБ Переход
Д21А.774.002 Переход
Д21А.775.000 Карман всасывающий
Д21А.775.002 Стенка
Д21А.775.000СБ Карман всасывающий
Д21А.775.003 Стенка
Д21А.959.004 Труба
Д21А.959.000 Воздуховод
Д21А.959.000СБ Воздуховод
Д21А.959.001 Воздуховод
Д21А.959.002 Труба
Д21А.959.003 Переход
Д22Е.053.000СБ Патрубок
Д21А.960.000СБ Воздуховод
Д21А.960.001 Труба
Д21А.960.002 Полусектор
Д21А.960.003 Сектор
Д21А.960.004 Труба
Д21А.960.005 Фланец
Д21А.960.007 Труба
Д22А.027.001 Ручка
Д22А.027.014 Накладка
Д22А.027.000 Заслонка
Д22А.027.000СБ Заслонка
Д22А.027.002 Упор
Д22А.027.003 Ось
Д22А.027.004 Полуось
Д22А.027.010 Корпус
Д22А.027.010СБ Корпус
Д22А.027.006 Бобышка
Д22А.027.007 Кронштейн
Д22А.027.008 Накладка
Д22А.027.009 Фланец
Д22А.027.011 Обечайка
Д22А.027.020 Лопатка
Д22А.027.020СБ Лопатка
Д22А.027.013 Полотно
Д22А.028.020СБ Рамка
Д22А.028.000 Решетка
Д22А.028.000СБ Решетка
Д22А.028.010 Фланец
Д22А.028.010СБ Фланец
Д22А.028.020 Рамка
Д22А.041.000 Заглушка
Д22А.041.000СБ Заглушка
Д22А.041.001 Прокладка
Д22А.041.010 Фланец
Д22А.041.010СБ Фланец
Д22А.041.020 Заглушка
Д22А.041.005 Стенка
Д22А.041.020СБ Заглушка
Д22А.043.000СБ Люк 600х500
Д22А.043.000 Люк 600х500
Д22А.043.010 Рама
Д22А.043.010СБ Рама
Д22А.043.002 Швеллер
Д22А.043.020 Дверь
Д22А.043.008 Рамка
Д22А.043.020СБ Дверь
Д22А.043.009 Прижим
Д22А.043.011 Петля
Д22А.043.012 Полотно
Д22А.043.030 Ручка
Д22А.043.030СБ Ручка
Д22А.043.001 Ушко
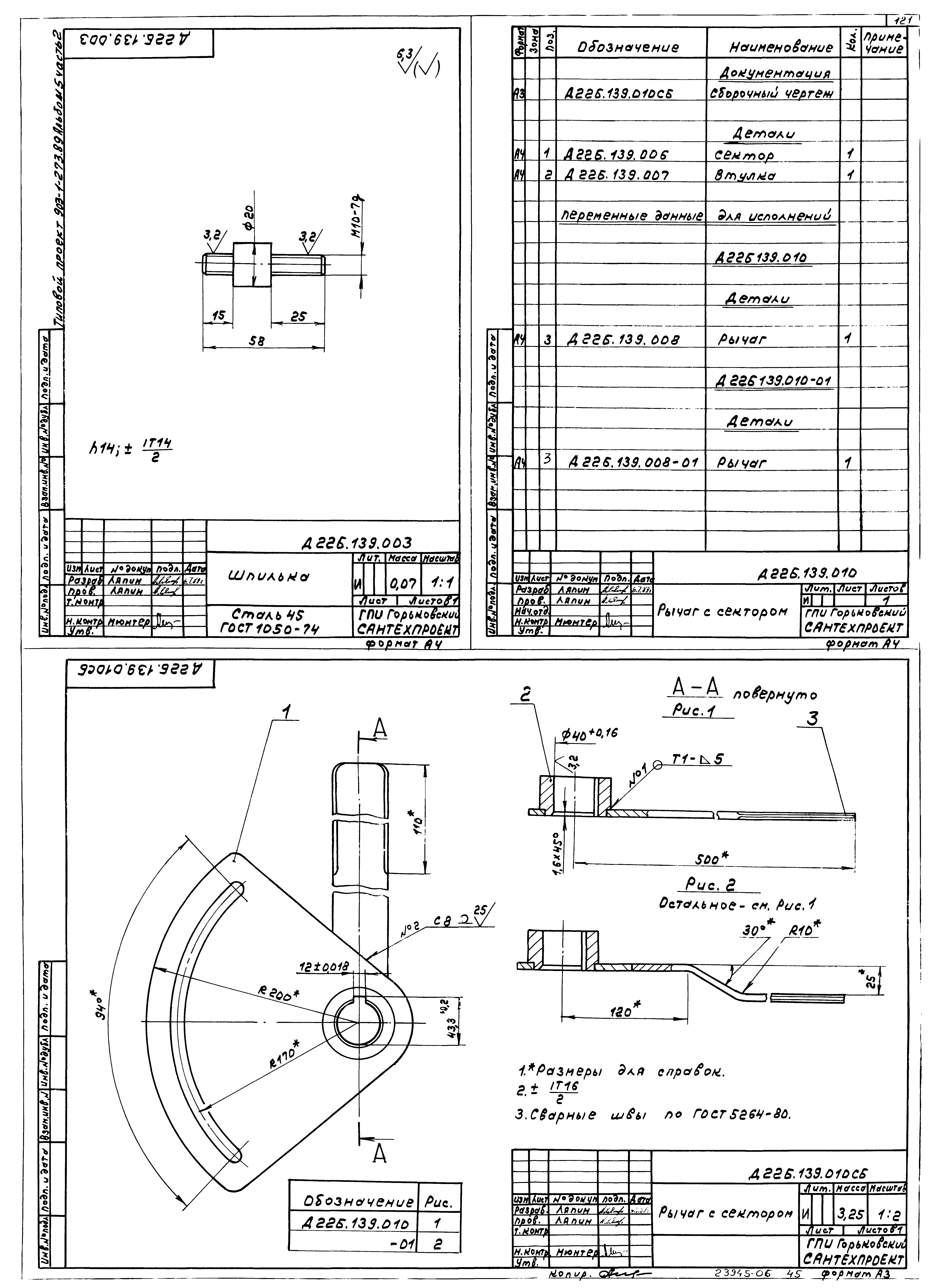
Д22Б.139.006 Сектор
Д22Б.139.007 Втулка
Д22Б.139.000 Привод ручной заслонки
Д22Б.139.008 Рычаг
Д22Б.139.000СБ Привод ручной заслонки
Д22Б.139.001 Рукоятка
Д22Б.139.002 Кронштейн
Д22Б.139.003 Шпилька
Д22Б.139.010 Рычаг с сектором
Д22Б.139.010СБ Рычаг с сектором
Д22Г.063.001 Обечайка
Д22Г.063.002 Крышка
Д22Г.063.004 Фланец
Д22Г.062.000 Устройство задержания герметика
Д22Г.062.000СБ Устройство задержания герметика
Д22Г.063.000 Шкаф аккумуляторный
Д22Г.063.000СБ Шкаф аккумуляторный
Д22Г.063.005 Прокладка
Д22Г.063.006 Стойка
Д22Е.029.000 Устройство задержания герметика
Д22Е.029.000СБ Устройство задержания герметика
Д22Е.048.000 Патрубок
Д22Е.048.000СБ Патрубок
Д22Е.051.000 Патрубок
Д22Е.051.000СБ Патрубок
Д22Е.052.000 Патрубок
Д22Е.052.000СБ Патрубок
Д22Е.053.000 Патрубок
Д21А.960.000 Воздуховод
Д23Д.388.000 Опора под всасывающий карман
Д23Д.388.001 Лист
Д23Д.388.000СБ Опора под всасывающий карман
Д23Д.388.002 Лист
Д23Д.388.003 Ребро
Д23Д.548.000 Опора трубопроводов
Д23Д.558.000 Опора
Д23Д.548.000СБ Опора трубопроводов
Д23Д.558.000СБ Опора
Д23Д.558.003 Ребро
Д23Д.561.000 Опора под всасывающий карман
Д23Д.561.000СБ Опора под всасывающий карман
Д23Д.561.001 Лист
Д23Д.561.002 Ребро
Д23Д.561.003 Ребро
Д23Д.562.000 Подвеска газохода
Д23Д.562.000СБ Подвеска газохода
Д23Д.580.000 Опора
Д23Д.580.000СБ Опора
Д23Д.580.001 Уголок
Д23Д.581.000 Лестница с площадкой
Д23Д.581.001 Косынка
Д23Д.581.010 Лестница
Д23Д.581.000СБ Лестница с площадкой
Д23Д.581.010СБ Лестница
Д23Д.581.002 Тетива
Д23Д.581.005 Связь
Д23Д.581.020 Площадка
Д23Д.581.007 Стойка
Д23Д.581.011 Поручень
Д23Д.581.020СБ Площадка
Д23Д.581.012 Перекладина
Д23Д.581.013 Перекладина
Д23Д.582.000 Лестница
Д23Д.582.001 Поручень
Д23Д.582.000СБ Лестница
Д23Д.582.002 Труба
Д23Д.582.003 Тетива
Д23Д.582.000СБ Лестница
Д23Д.583.000 Лестница
Д23Д.583.001 Поручень
Д24А.001.000СБ Трубопровод
Д24А.001.000 Трубопровод
Д24А.002.000 Трубопровод
Д24А.002.000СБ Трубопровод
Д24А.002.003 Труба
Д24А.002.005 Труба
Д24А.003.000 Трубопровод
Д24А.003.000СБ Трубопровод
Д24А.004.003 Труба
Д24А.003.003 Труба
Д24А.004.000 Трубопровод
Д24А.004.000СБ Трубопровод
Д24А.006.000СБ Трубопровод
Д24А.005.003 Труба
Д24А.005.000СБ Трубопровод
Д24А.006.000СБ Трубопровод
Д24А.006.000 Трубопровод
Д25В.001.000 Желоб шлакоспускной
Д25В.001.000СБ Желоб шлакоспускной
Д25В.001.001 Желоб
Д25В.001.002 Связь
Д25В.001.004 Связь
Д25В.001.005 Связь
Д25В.001.006 Связь
Д25В.002.000 Короб шлакоспускной
Д25В.002.001 Стенка
Д25В.002.000СБ Короб шлакоспускной
Д25В.002.003 Уголок
Д25В.002.004 Стенка
Разработан: Горьковский Сантехпроект
Утверждён:27.09.1989 ГПК СантехНИИпроект (SantekhNIIproject GPK 11)
Издан: ЦИТП Госстроя СССР (CITP, Gosstroy (USSR) 1989 г. )
Расположен в:Техническая документация Строительство Справочные документы Типовые строительные конструкции, изделия и узлы Общероссийский строительный каталог Промышленные предприятия, здания и сооружения Здания и сооружения санитарно-технические Теплоснабжение Котельные установки Котельные для объектов сельского хозяйства Топливо - каменные и бурые угли
Типовой проект 903-1-273.89Типовой проект 903-1-273.89Типовой проект 903-1-273.89Типовой проект 903-1-273.89Типовой проект 903-1-273.89Типовой проект 903-1-273.89Типовой проект 903-1-273.89Типовой проект 903-1-273.89Типовой проект 903-1-273.89Типовой проект 903-1-273.89Типовой проект 903-1-273.89Типовой проект 903-1-273.89Типовой проект 903-1-273.89Типовой проект 903-1-273.89Типовой проект 903-1-273.89Типовой проект 903-1-273.89Типовой проект 903-1-273.89Типовой проект 903-1-273.89Типовой проект 903-1-273.89Типовой проект 903-1-273.89Типовой проект 903-1-273.89Типовой проект 903-1-273.89Типовой проект 903-1-273.89Типовой проект 903-1-273.89Типовой проект 903-1-273.89Типовой проект 903-1-273.89Типовой проект 903-1-273.89Типовой проект 903-1-273.89Типовой проект 903-1-273.89Типовой проект 903-1-273.89Типовой проект 903-1-273.89Типовой проект 903-1-273.89Типовой проект 903-1-273.89Типовой проект 903-1-273.89Типовой проект 903-1-273.89Типовой проект 903-1-273.89Типовой проект 903-1-273.89Типовой проект 903-1-273.89Типовой проект 903-1-273.89Типовой проект 903-1-273.89Типовой проект 903-1-273.89Типовой проект 903-1-273.89Типовой проект 903-1-273.89Типовой проект 903-1-273.89Типовой проект 903-1-273.89Типовой проект 903-1-273.89Типовой проект 903-1-273.89Типовой проект 903-1-273.89Типовой проект 903-1-273.89Типовой проект 903-1-273.89Типовой проект 903-1-273.89Типовой проект 903-1-273.89Типовой проект 903-1-273.89Типовой проект 903-1-273.89Типовой проект 903-1-273.89Типовой проект 903-1-273.89Типовой проект 903-1-273.89Типовой проект 903-1-273.89Типовой проект 903-1-273.89Типовой проект 903-1-273.89Типовой проект 903-1-273.89Типовой проект 903-1-273.89Типовой проект 903-1-273.89Типовой проект 903-1-273.89Типовой проект 903-1-273.89Типовой проект 903-1-273.89Типовой проект 903-1-273.89Типовой проект 903-1-273.89Типовой проект 903-1-273.89Типовой проект 903-1-273.89Типовой проект 903-1-273.89Типовой проект 903-1-273.89Типовой проект 903-1-273.89Типовой проект 903-1-273.89Типовой проект 903-1-273.89Типовой проект 903-1-273.89Типовой проект 903-1-273.89Типовой проект 903-1-273.89Типовой проект 903-1-273.89

© 2013 Ёшкин Кот :-) Карта сайта