Информационная система
«Ёшкин Кот»

Скачать базу одним архивом
Скачать обновления
История создания базы
Карта сайта

Скачать Типовой проект 0901-9-15.2.87 Альбом III. Электротехническая часть. Технологический контроль. Вариант с электроотоплением

Дата актуализации: 10.08.2017

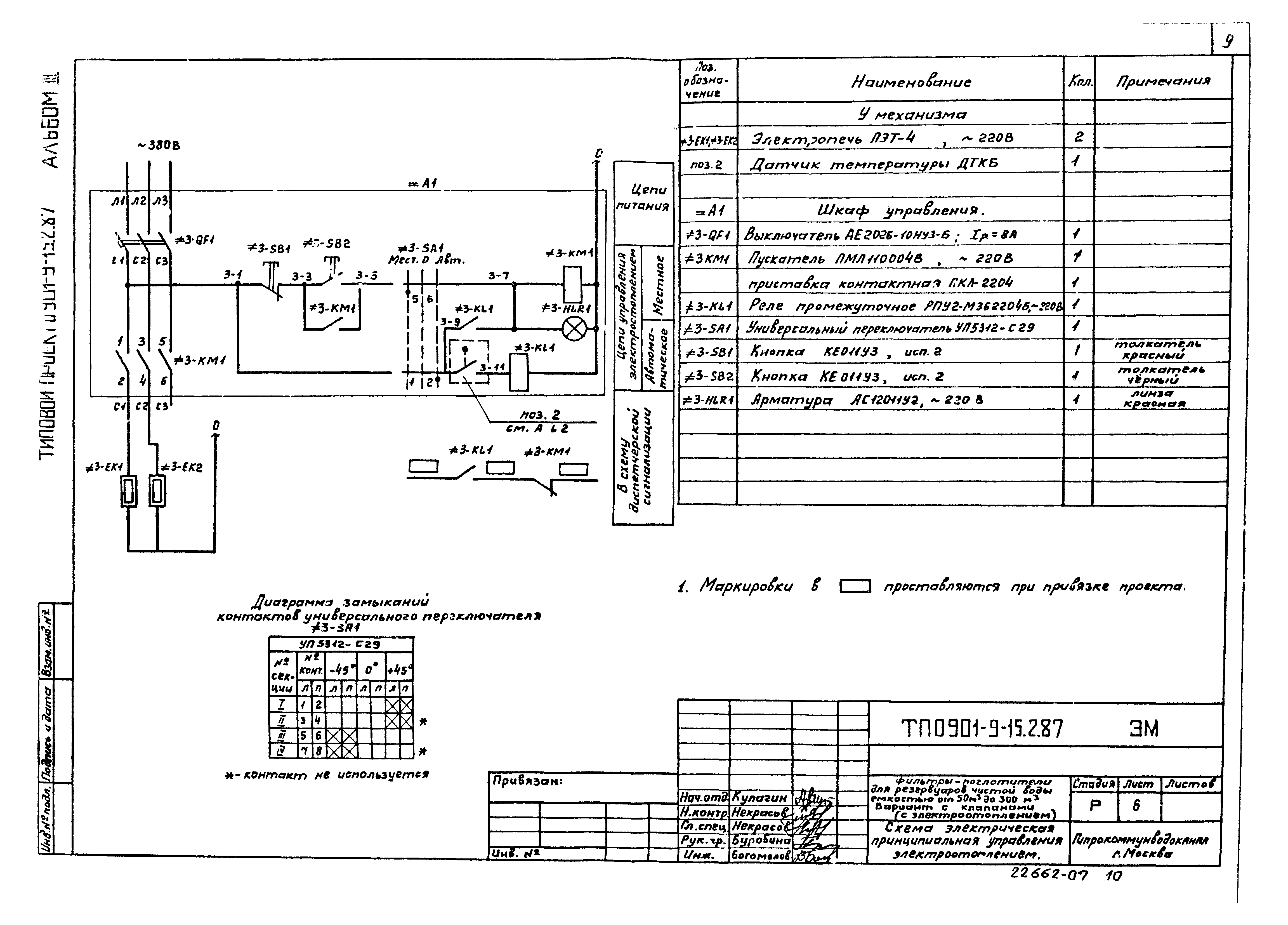
Типовой проект 0901-9-15.2.87

Альбом III. Электротехническая часть. Технологический контроль. Вариант с электроотоплением

Обозначение: Типовой проект 0901-9-15.2.87
Обозначение англ: 0901-9-15.2.87
Статус:не определен законодательством
Название рус.:Альбом III. Электротехническая часть. Технологический контроль. Вариант с электроотоплением
Дата добавления в базу:01.10.2014
Дата актуализации:05.05.2017
Дата введения:16.10.1987
Оглавление:Содержание альбома
Пояснительная записка
Основной комплект чертежей марки ЭМ
   Общие данные
   Схема электрическая принципиальная однолинейная 380/220 В
   Схема электрическая принципиальная управления задвижкой
   Схема электрическая принципиальная управления вентилятором
   Схема электрическая принципиальная управления электроотоплением
   Схема электрических подключений отдельно стоящего оборудования
   Кабельный журнал. Сводка кабелей и проводов
   Расположение электрооборудования и прокладка труб и кабелей. Зануление
   Электроосвещение
Основной комплект чертежей марки А
   Общие данные
   Схема функциональная
   Схема внешних кабельных и трубных проводок. Схема электрическая принципиальная питания приборов
   Электрическая схема подключения приборов
   План расположения средств автоматизации и проводок
Задание заводу-изготовителю на шкаф = А1 марки Э1
   Содержание. Перечень комплектных устройств
   Шкаф = А1. Технические данные аппаратов
   Шкаф = А1. Чертеж общего вида
   Шкаф = А1. Схема электрическая соединений
   Шкаф = А1. Перечень надписей
Разработан: Гипрокоммунводоканал Минжилкомхоза РСФСР
Утверждён:16.10.1987 Минжилкомхоз РСФСР (Russian Federation Minzhilkomkhoz 12-ТД)
Расположен в:Техническая документация Строительство Справочные документы Типовые строительные конструкции, изделия и узлы Общероссийский строительный каталог Защитные сооружения гражданской обороны Конструкции и инженерное оборудование Фильтры-поглотители
Типовой проект 0901-9-15.2.87Типовой проект 0901-9-15.2.87Типовой проект 0901-9-15.2.87Типовой проект 0901-9-15.2.87Типовой проект 0901-9-15.2.87Типовой проект 0901-9-15.2.87Типовой проект 0901-9-15.2.87Типовой проект 0901-9-15.2.87Типовой проект 0901-9-15.2.87Типовой проект 0901-9-15.2.87Типовой проект 0901-9-15.2.87Типовой проект 0901-9-15.2.87Типовой проект 0901-9-15.2.87Типовой проект 0901-9-15.2.87Типовой проект 0901-9-15.2.87Типовой проект 0901-9-15.2.87Типовой проект 0901-9-15.2.87Типовой проект 0901-9-15.2.87Типовой проект 0901-9-15.2.87Типовой проект 0901-9-15.2.87Типовой проект 0901-9-15.2.87Типовой проект 0901-9-15.2.87Типовой проект 0901-9-15.2.87Типовой проект 0901-9-15.2.87Типовой проект 0901-9-15.2.87Типовой проект 0901-9-15.2.87Типовой проект 0901-9-15.2.87Типовой проект 0901-9-15.2.87Типовой проект 0901-9-15.2.87

© 2013 Ёшкин Кот :-) Карта сайта