Информационная система
«Ёшкин Кот»

Скачать базу одним архивом
Скачать обновления
История создания базы
Карта сайта

Скачать Серия ИИ20-2 Типовые конструкции многоэтажных промышленных зданий. Указания по применению рабочих чертежей конструкций для зданий с сеткой колонн 9х6 м, с перекрытиями типа I из плит, опирающихся на полки ригелей

Дата актуализации: 10.08.2017

Серия ИИ20-2

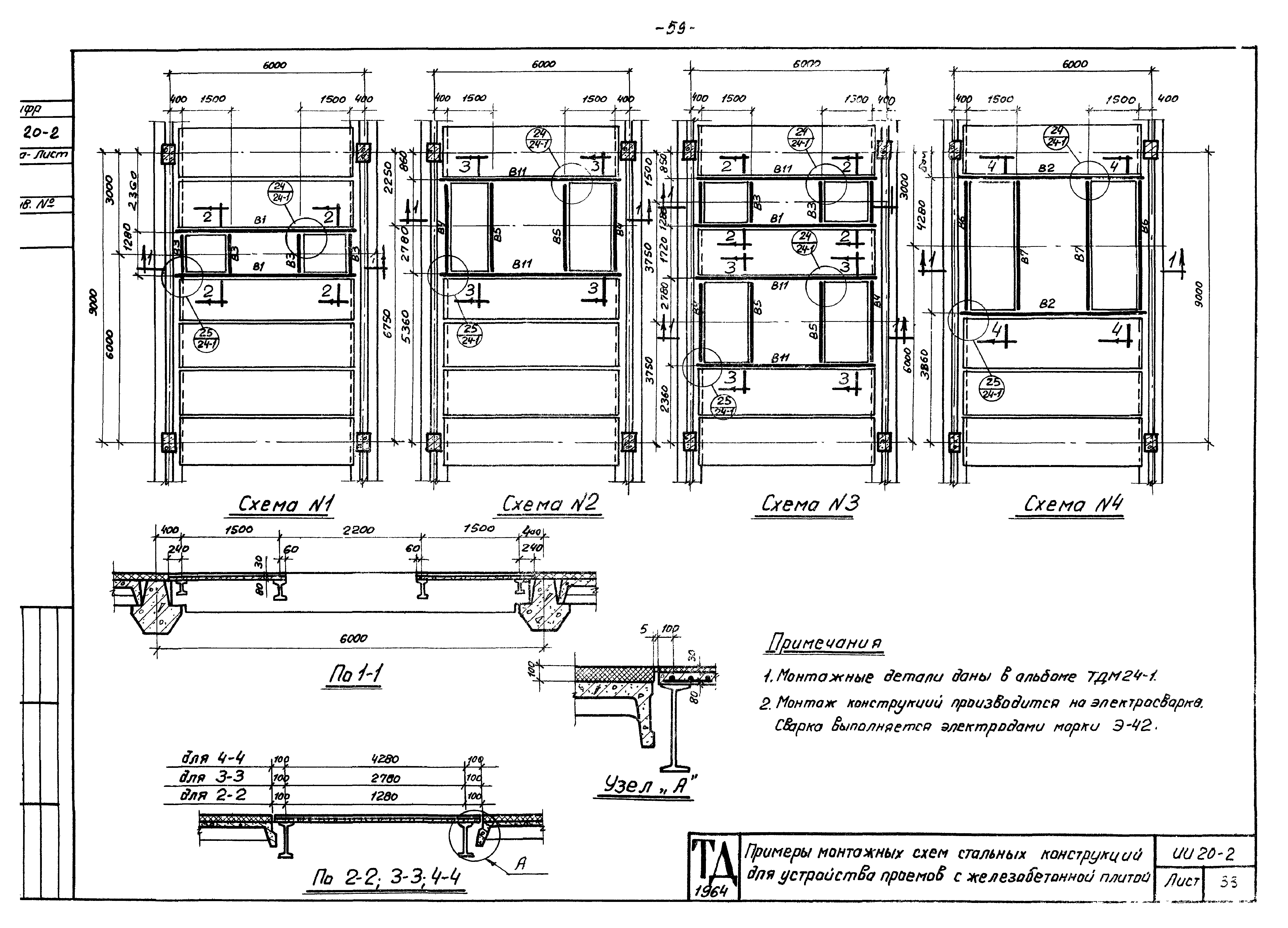
Типовые конструкции многоэтажных промышленных зданий. Указания по применению рабочих чертежей конструкций для зданий с сеткой колонн 9х6 м, с перекрытиями типа I из плит, опирающихся на полки ригелей

Обозначение: Серия ИИ20-2
Обозначение англ: Series ИИ20-2
Статус:заменен
Название рус.:Типовые конструкции многоэтажных промышленных зданий. Указания по применению рабочих чертежей конструкций для зданий с сеткой колонн 9х6 м, с перекрытиями типа I из плит, опирающихся на полки ригелей
Дата добавления в базу:01.10.2014
Дата актуализации:05.05.2017
Дата введения:01.04.1973
Оглавление:1. Введение
2. Состав рабочих чертежей конструкций для зданий с сеткой колонн 9х6 с перекрытием типа I из плит, опирающихся на полки ригелей
3. Габаритные схемы, конструктивное решение
4. Сборные железобетонные изделия
5. Продольная устойчивость зданий, связи
6. Нагрузки на каркасы зданий
7. Основные расчетные положения
8. Общие указания по монтажу конструкций
9. Применение конструкций в зданиях с агрессивной средой
10. Применение конструкций в условиях низких температур
11. Указания по выбору несущих конструкций каркаса
12. Указания по применению рабочих чертежей
13. Маркировка железобетонных изделий
14. Показатели расхода материалов
15. Монтажные схемы рам
16. Монтажные схемы связей
17. Монтажные схемы раскладки плит междуэтажных перекрытий и покрытия
18. Примеры монтажных схем стальных конструкций для устройства проемов
Приложение. Нагрузки на фундаменты колонн
Разработан: ЦНИИпромзданий
НИИЖБ
Моспроект
ГСПИ-10
ГСПИ-5
Утверждён:29.08.1964 Государственный комитет СССР по делам строительства (151)
Расположен в:Техническая документация Строительство Справочные документы Типовые строительные конструкции, изделия и узлы Общероссийский строительный каталог Строительные конструкции, изделия и узлы зданий и сооружений для всех видов строительства Конструкции, изделия и узлы зданий Несущие конструкции двухэтажных и многоэтажных зданий Каркасные здания
Чем заменён:
Серия ИИ20-2Серия ИИ20-2Серия ИИ20-2Серия ИИ20-2Серия ИИ20-2Серия ИИ20-2Серия ИИ20-2Серия ИИ20-2Серия ИИ20-2Серия ИИ20-2Серия ИИ20-2Серия ИИ20-2Серия ИИ20-2Серия ИИ20-2Серия ИИ20-2Серия ИИ20-2Серия ИИ20-2Серия ИИ20-2Серия ИИ20-2Серия ИИ20-2Серия ИИ20-2Серия ИИ20-2Серия ИИ20-2Серия ИИ20-2Серия ИИ20-2Серия ИИ20-2Серия ИИ20-2Серия ИИ20-2Серия ИИ20-2Серия ИИ20-2Серия ИИ20-2Серия ИИ20-2Серия ИИ20-2Серия ИИ20-2Серия ИИ20-2Серия ИИ20-2Серия ИИ20-2Серия ИИ20-2Серия ИИ20-2Серия ИИ20-2Серия ИИ20-2Серия ИИ20-2Серия ИИ20-2Серия ИИ20-2Серия ИИ20-2Серия ИИ20-2Серия ИИ20-2Серия ИИ20-2Серия ИИ20-2Серия ИИ20-2Серия ИИ20-2Серия ИИ20-2Серия ИИ20-2Серия ИИ20-2Серия ИИ20-2Серия ИИ20-2Серия ИИ20-2Серия ИИ20-2Серия ИИ20-2Серия ИИ20-2Серия ИИ20-2Серия ИИ20-2Серия ИИ20-2Серия ИИ20-2Серия ИИ20-2Серия ИИ20-2Серия ИИ20-2Серия ИИ20-2Серия ИИ20-2Серия ИИ20-2Серия ИИ20-2

© 2013 Ёшкин Кот :-) Карта сайта