Информационная система
«Ёшкин Кот»

Скачать базу одним архивом
Скачать обновления
История создания базы
Карта сайта

Скачать Типовой проект 407-3-573.90 Альбом 2. Строительные изделия (из ТП 407-3-571.90)

Дата актуализации: 10.08.2017

Типовой проект 407-3-573.90

Альбом 2. Строительные изделия (из ТП 407-3-571.90)

Обозначение: Типовой проект 407-3-573.90
Обозначение англ: 407-3-573.90
Статус:действует
Название рус.:Альбом 2. Строительные изделия (из ТП 407-3-571.90)
Дата добавления в базу:01.10.2014
Дата актуализации:05.05.2017
Оглавление:407-3-571.90-АС.И-ТТ Технические требования
407-3-571.90-АС.И-1 Колонны 1К36-1М2-1; 1К36-1М2-2
407-3-571.90-АС.И-2 Колонны 1К36-1М2-3; 2К36-2М2-1; 2К36-2М2-2
407-3-571.90-АС.И-3 Балка БСП6.1-6АV-1. Плиты ПГ-2АVт-1; ПГ-3АVт-1; ПВ7-2АVт-1; ПВ7-3АVт-1; ПГ-2АVт-1-а; ПГ-3АVт-1-а
407-3-571.90-АС.И-4 Плиты ПГ-2АVт-а; ПГ-3АVт-а; ПГ-2АVт-б; ПГ-3АVт-б; ПГ-4АVт-б
407-3-571.90-АС.И-5 Изделия закладные М1, М2, М5, М6, М8. Решетка М9
407-3-571.90-АС.И-6 Изделия закладные М10, М11, М13
407-3-571.90-АС.И-7 Изделия закладные М12, М14
407-3-571.90-АС.И-8 Изделия закладные М15, М17, М18
407-3-571.90-АС.И-9 Изделия закладные М19…М21
407-3-571.90-АС.И-10 Изделия закладные М22…М24
407-3-571.90-АС.И-11 Изделия закладные М25, МК1, МК2
407-3-571.90-АС.И-12 Балка М26. Опорный элемент М29. Изделие закладное М33
407-3-571.90-АС.И-13 Опорные элементы М27, М28
407-3-571.90-АС.И-14 Опорный элемент М30
407-3-571.90-АС.И-15 Опорный элемент М31
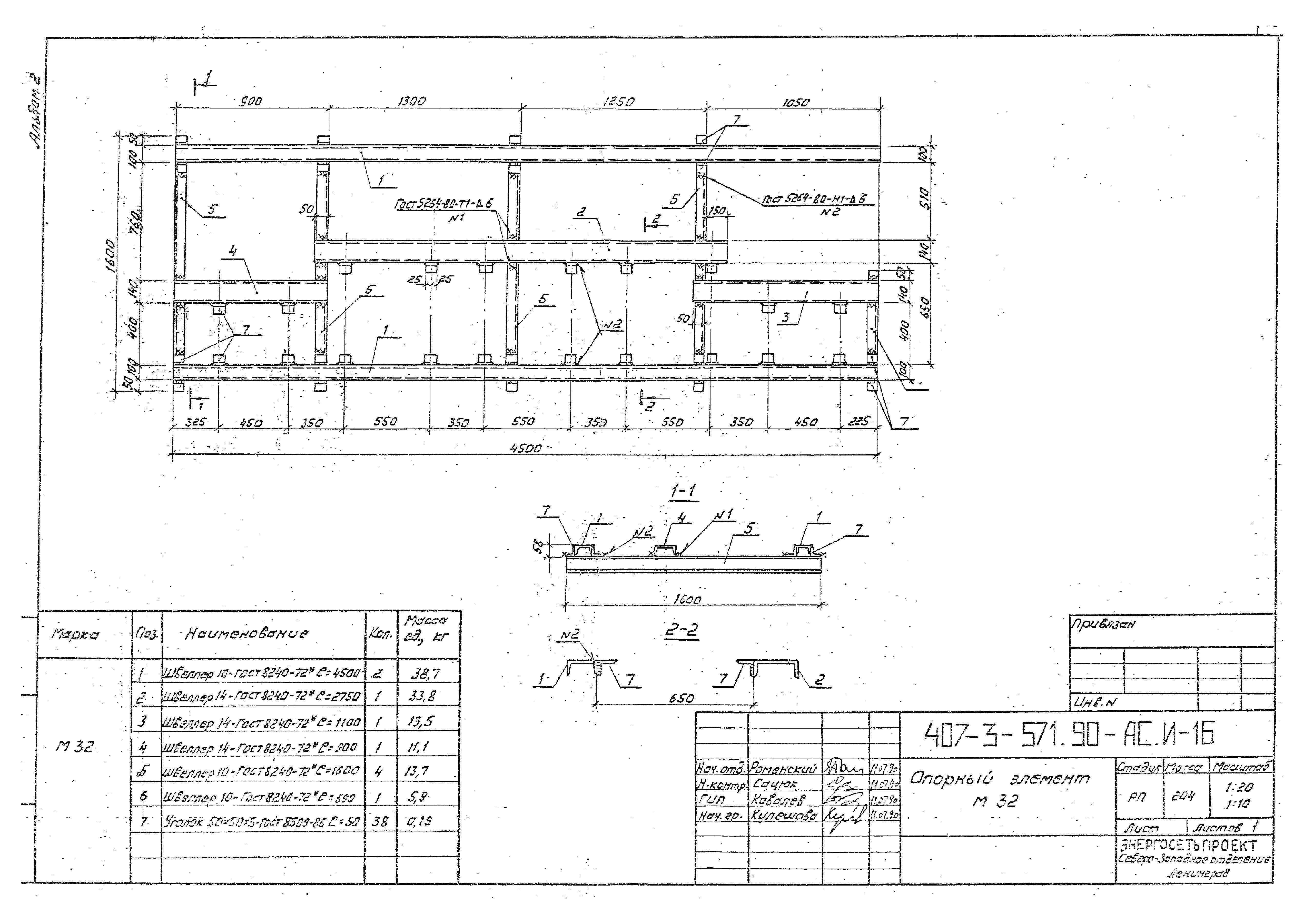
407-3-571.90-АС.И-16 Опорный элемент М32
407-3-571.90-АС.И-17 Опорные элементы М34, М35
407-3-571.90-АС.И-18 Опорный элемент М36
407-3-571.90-АС.И-19 Рама РМ1. Щит Щ1. Изделие закладное МК3
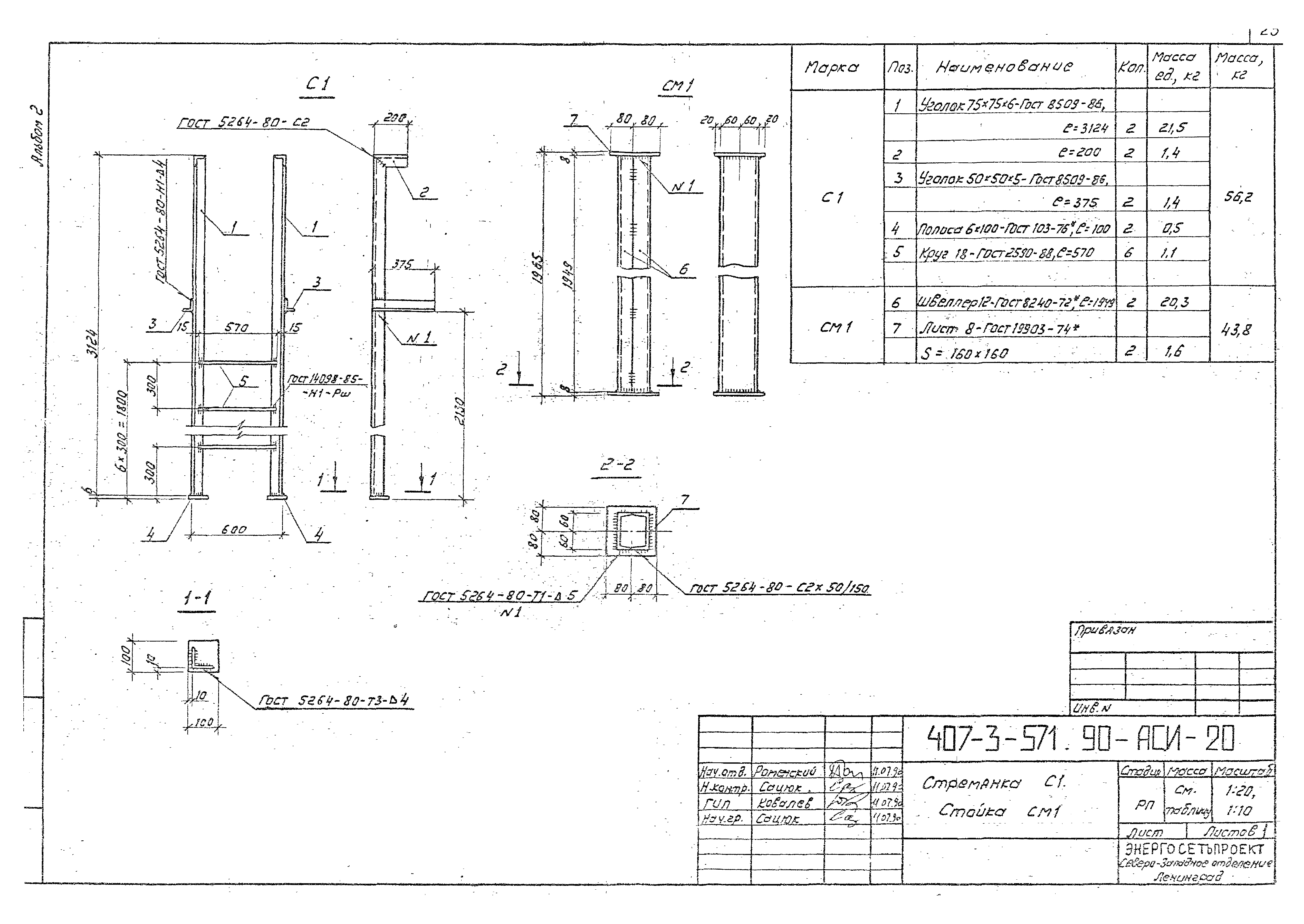
407-3-571.90-АС.И-20 Стремянка С1. Стойка СМ1
407-3-571.90-АС.И-21 Ограждения площадки ОГ1, ОГ2
Разработан: Северо-западное отделение института Энергосетьпроект
Утверждён:13.08.1990 Минэнерго СССР (USSR Minenergo 45)
Издан: СЗО Энергосетьпроект (1990 г. )
Расположен в:Техническая документация Строительство Справочные документы Типовые строительные конструкции, изделия и узлы Общероссийский строительный каталог Промышленные предприятия, здания и сооружения Предприятия, здания и сооружения промышленности и электроэнергетики Электроэнергетика Устройства и подстанции распределительные
Типовой проект 407-3-573.90Типовой проект 407-3-573.90Типовой проект 407-3-573.90Типовой проект 407-3-573.90Типовой проект 407-3-573.90Типовой проект 407-3-573.90Типовой проект 407-3-573.90Типовой проект 407-3-573.90Типовой проект 407-3-573.90Типовой проект 407-3-573.90Типовой проект 407-3-573.90Типовой проект 407-3-573.90Типовой проект 407-3-573.90Типовой проект 407-3-573.90Типовой проект 407-3-573.90Типовой проект 407-3-573.90Типовой проект 407-3-573.90Типовой проект 407-3-573.90Типовой проект 407-3-573.90Типовой проект 407-3-573.90Типовой проект 407-3-573.90Типовой проект 407-3-573.90Типовой проект 407-3-573.90Типовой проект 407-3-573.90

© 2013 Ёшкин Кот :-) Карта сайта