| ||||||||||||||||||||||||||||||||||
Скачать ГОСТ Р МЭК 62561.1-2014 Компоненты системы молниезащиты. Часть 1. Требования к соединительным компонентамДата актуализации: 10.08.2017
|
| Обозначение: | ГОСТ Р МЭК 62561.1-2014 |
| Обозначение англ: | GOST R IEC 62561.1-2014 |
| Статус: | введен впервые |
| Название рус.: | Компоненты системы молниезащиты. Часть 1. Требования к соединительным компонентам |
| Название англ.: | Lightning protection system components (LPSC). Part 1. Requirements for connection components |
| Дата добавления в базу: | 21.05.2015 |
| Дата актуализации: | 05.05.2017 |
| Дата введения: | 01.01.2015 |
| Область применения: | Стандарт устанавливает требования к исполнению и испытаниям металлических соединительных компонентов, являющихся частью системы молниезащиты. К таким компонентам относятся соединители, детали для уравнивания потенциалов, перемычки, температурные компенсаторы и соединения для испытаний. Стандарт не распространяется на испытания компонентов, предназначенных для применения во взрывоопасных средах. |
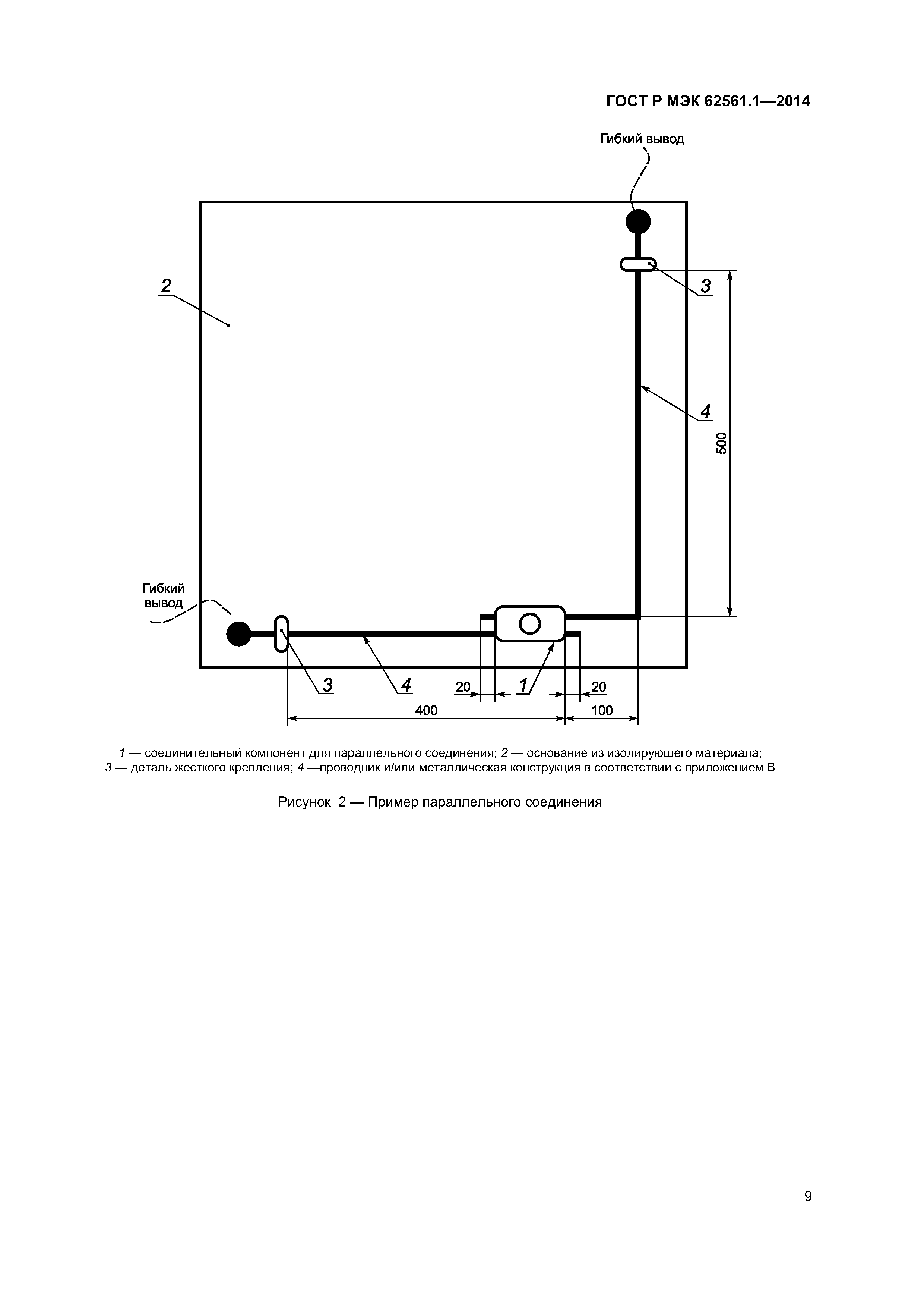
| Оглавление: | 1 Область применения 2 Нормативные ссылки 3 Термины и определения 4 Классификация соединительных компонентов 5 Требования 5.1 Общие требования 5.2 Указания по монтажу 5.3 Стойкость к току разряда молнии 5.4 Механическая прочность 5.5 Болтовые соединения 5.6 Разборные соединения для проведения испытаний 5.7 Повреждение проводников и металлических конструкций 5.8 Надежность соединений 5.9 Зажимы шин уравнивания потенциалов 5.10 Маркировка 6 Испытания 6.1 Общие требования 6.2 Подготовка испытания 6.2.1 Подготовка образца 6.2.2 Испытание на старение при воздействиях окружающей среды 6.3 Испытание импульсным электрическим током 6.4 Испытание на механическую прочность 6.5 Испытание маркировки 7 Электромагнитная совместимость (ЭМС) 8 Форма и содержание протокола испытания 8.1 Общие требования 8.2 Идентификация протокола 8.3 Описание образца 8.4 Проводник 8.5 Стандарты и ссылочные документы 8.6 Содержание протокола испытания 8.7 Испытательное оборудование 8.8 Измерительные приборы 8.9 Результаты и значения параметров, включаемые в протокол 8.10 Подтверждение соответствия или несоответствия образца требованиям испытания Приложение А (справочное) Перечень требований и соответствующих испытаний Приложение В (справочное) Варианты соединений с применением различных соединительных компонентов Приложение С (обязательное) Испытание на старение при воздействиях окружающей среды Приложение ДА (справочное) Сведения о соответствии ссылочных международных стандартов ссылочным национальным стандартам Российской Федерации |
| Разработан: | ОАО Компания Электромонтаж Московский институт энергобезопасности и энергосбережения |
| Утверждён: | 04.03.2014 Федеральное агентство по техническому регулированию и метрологии (70-ст) |
| Издан: | Стандартинформ (2014 г. ) |
| Расположен в: | |
| Нормативные ссылки: |
|


















