Информационная система
«Ёшкин Кот»

Скачать базу одним архивом
Скачать обновления
История создания базы
Карта сайта

Скачать Типовой проект 903-1-229.86 Альбом 7.1. Генеральный план. Инженерные сети

Дата актуализации: 10.08.2017

Типовой проект 903-1-229.86

Альбом 7.1. Генеральный план. Инженерные сети

Обозначение: Типовой проект 903-1-229.86
Обозначение англ: 903-1-229.86
Статус:действует
Название рус.:Альбом 7.1. Генеральный план. Инженерные сети
Дата добавления в базу:01.10.2014
Дата актуализации:05.05.2017
Оглавление:Генеральный план, инженерные сети
   Общие данные
   План горизонтальной планировки
   Сводный план инженерных сетей
Основные положения по производству строительных и монтажных работ
   Пояснительная записка
   Схема стройгенплана
Конструкции железобетонные
   Эстакада паромазутопроводов. Общие данные
   Эстакада паромазутопроводов. Схема расположения фундаментов Фм1, Фм2
   Эстакада паромазутопроводов. Схема расположения элементов трассы. Узлы 1, 2
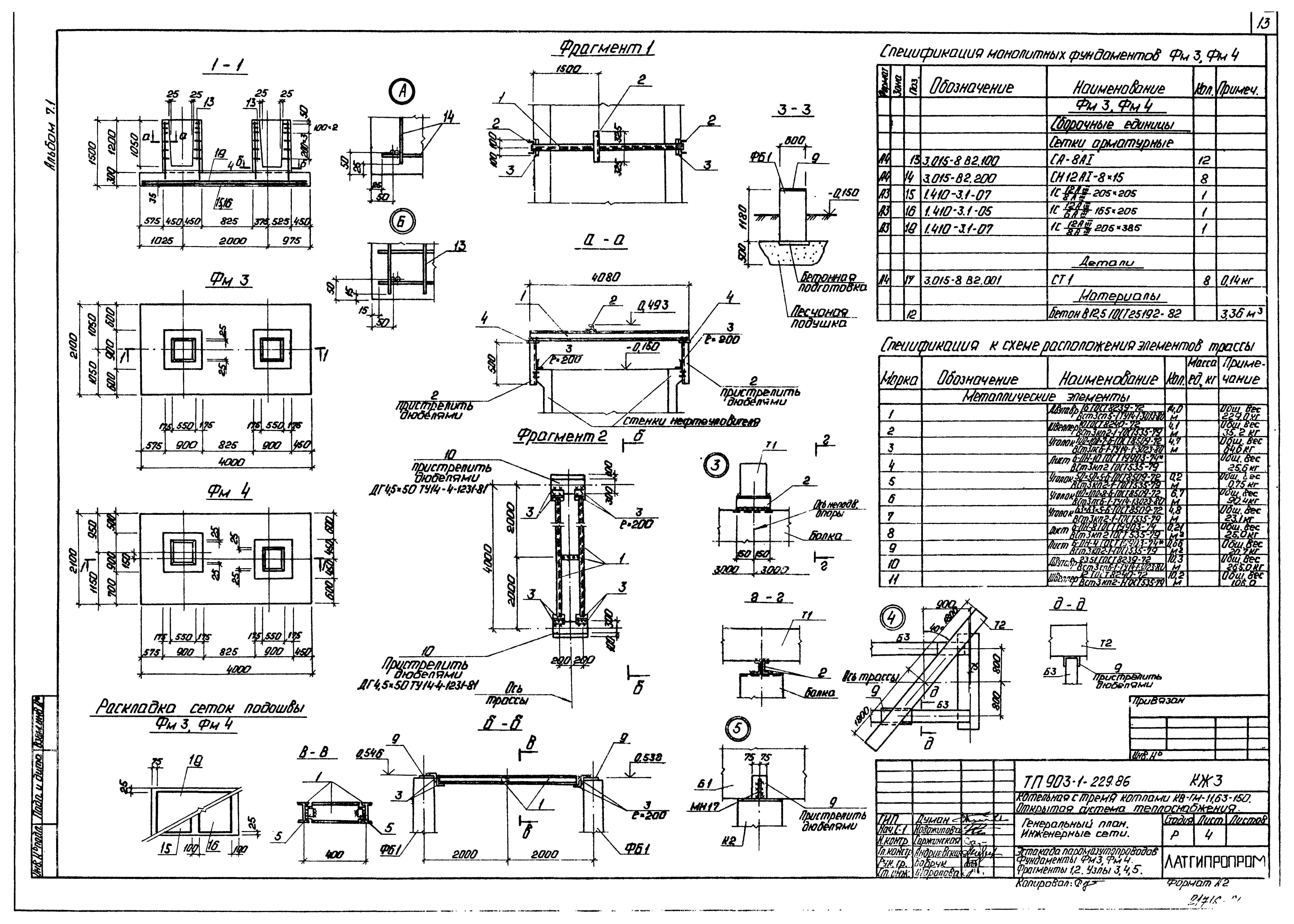
   Эстакада паромазутопроводов. Фундаменты Фм3, Фм4. Фрагменты 1, 2. Узлы 3, 4, 5
Конструкции металлические
   Эстакада паромазутопроводов. Общие данные
   Эстакада паромазутопроводов. Площадка МП1, МП2
Чертежи основного комплекта марки КЖ.И
   Траверса Т1
   Каркас плоский КР1
   Балка БР12-1АIV-а-1
Кабельные линии напряжением до 220 кВ
   Общие данные
   План расположения кабельных трасс электропередачи
Электрическое освещение территории котельной
   Общие данные
   План освещения территории котельной
Связь и сигнализация
   Общие данные
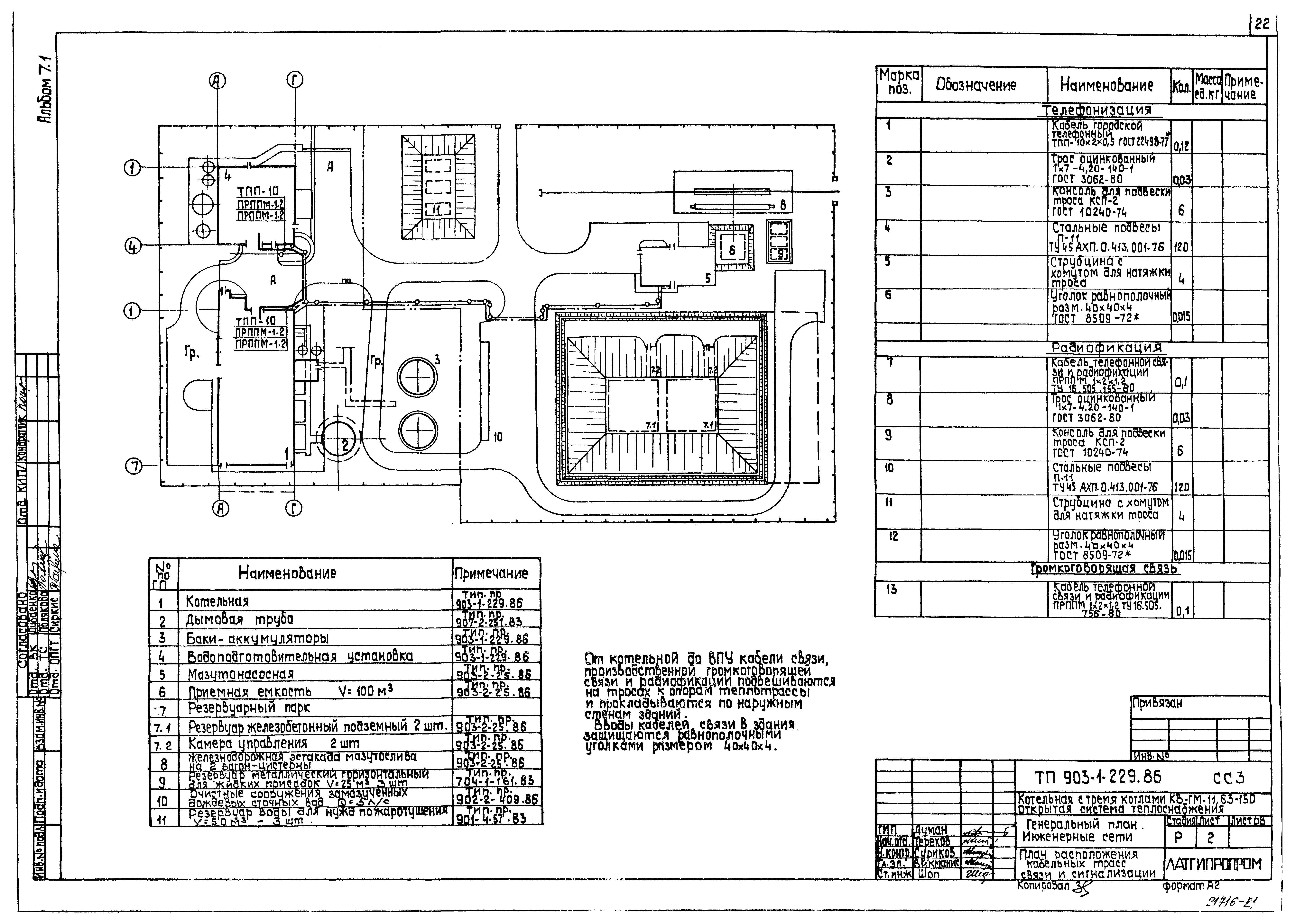
   План расположения кабельных трасс связи и сигнализации
Наружные сети водоснабжения
   Общие данные
   Сети водоснабжения и канализации
Тепловые сети
   Общие данные
   Внутриплощадочные тепломазутопроводы. План. Схема
   Внутриплощадочные тепломазутопроводы. Разрез 1 - 4
   Внутриплощадочные тепломазутопроводы. Разрезы 5-5, 6-6, 7-7, 8-8
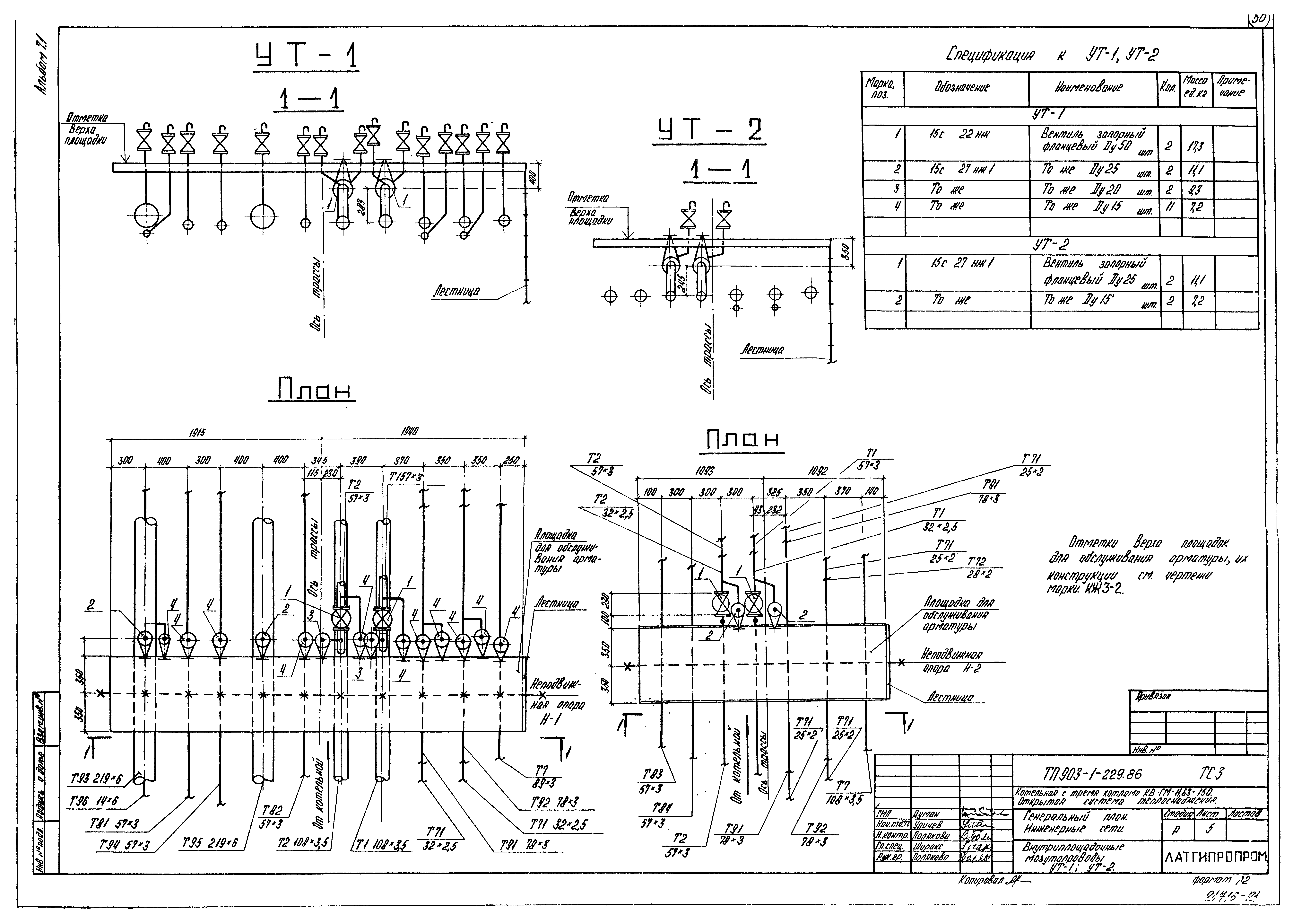
   Внутриплощадочные тепломазутопроводы УТ-1, УТ-2
Разработан: Латгипропром
Утверждён:22.07.1986 Госстрой СССР (АЧ-45)
Издан: ЦИТП Госстроя СССР (CITP, Gosstroy (USSR) 1988 г. )
Расположен в:Техническая документация Строительство Справочные документы Типовые строительные конструкции, изделия и узлы Общероссийский строительный каталог Промышленные предприятия, здания и сооружения Здания и сооружения санитарно-технические Теплоснабжение Котельные установки Открытые системы теплоснабжения Топливо - газ и мазут
Заменяет собой:
Типовой проект 903-1-229.86Типовой проект 903-1-229.86Типовой проект 903-1-229.86Типовой проект 903-1-229.86Типовой проект 903-1-229.86Типовой проект 903-1-229.86Типовой проект 903-1-229.86Типовой проект 903-1-229.86Типовой проект 903-1-229.86Типовой проект 903-1-229.86Типовой проект 903-1-229.86Типовой проект 903-1-229.86Типовой проект 903-1-229.86Типовой проект 903-1-229.86Типовой проект 903-1-229.86Типовой проект 903-1-229.86Типовой проект 903-1-229.86Типовой проект 903-1-229.86Типовой проект 903-1-229.86Типовой проект 903-1-229.86Типовой проект 903-1-229.86Типовой проект 903-1-229.86Типовой проект 903-1-229.86Типовой проект 903-1-229.86Типовой проект 903-1-229.86Типовой проект 903-1-229.86Типовой проект 903-1-229.86Типовой проект 903-1-229.86Типовой проект 903-1-229.86Типовой проект 903-1-229.86Типовой проект 903-1-229.86Типовой проект 903-1-229.86

© 2013 Ёшкин Кот :-) Карта сайта