Информационная система
«Ёшкин Кот»

Скачать базу одним архивом
Скачать обновления
История создания базы
Карта сайта

Скачать Типовой проект 903-1-229.86 Альбом 3.1. Котельная. Архитектурно-строительные решения

Дата актуализации: 10.08.2017

Типовой проект 903-1-229.86

Альбом 3.1. Котельная. Архитектурно-строительные решения

Обозначение: Типовой проект 903-1-229.86
Обозначение англ: 903-1-229.86
Статус:действует
Название рус.:Альбом 3.1. Котельная. Архитектурно-строительные решения
Дата добавления в базу:01.10.2014
Дата актуализации:05.05.2017
Оглавление:Архитектурно-строительные решения
   Общие данные
   Узлы 1, 2
   План полов и кровли
   Планы на отм. 0.000; 2.400. Разрез 1-1. Фрагмент 1
   Планы на отм. 4.200; 6.600; 18.300. Фрагменты 2, 3. Узлы 3, 4
   Фасады
   Фрагменты 4, 5. Разрезы 3-3, 4-4. Узлы 5 - 8
   Фрагмент 6. Узлы 9, 10
   Боров. План на отм. 2.500. Разрезы 1-1, 2-2, 3-3, 4-4, 5-5. Фасад. Узлы 11 - 14
Конструкции железобетонные
   Общие данные
   Схема расположения фундаментов и фундаментных балок
   Таблица нагрузок на фундаменты. Фрагменты 1 - 3
   Фрагмент 4
   Фрагменты 5 - 8
   Фм1, Фм2, Фм3. Опалубка и армирование
   Фм4, Фм5, Фм6. Опалубка и армирование
   Фм7, Фм8, Фм12. Опалубка и армирование
   Фм9, Фм10, Фм11. Опалубка и армирование
   Схема расположения фундаментов по оси 7 (при расширении). Фм13, Фм14. Опалубка и армирование
   Схема заземляющего контура здания котельной
   Схема расположения элементов подземного хозяйства в осях Б - Г. Узел 1
   Фундаменты Фом1, Фом2. Сечения 11-11, 12-12. Фрагмент 9
   КТП. Опалубка и армирование каналов
   КТП. Опалубка и армирование каналов. Узлы 2 - 4
   Схема расположения элементов наружного подземного хозяйства
   Схема расположения плит покрытия канала КН1 и усиленного пола. Фом1-1
   Продувочный колодец ПКМ1. Опалубка и армирование. Разрезы 1-1, 2-2. Узел 5
   Продувочный колодец ПКМ1. Опалубка и армирование. Разрезы 3-3 - 5-5
   Схемы расположения плит перекрытия, колонн, ригелей и балок покрытия
   Сечения 1-1 - 7-7. Узлы 6, 7
   Узлы 8 - 12. Фрагмент 10
   Схема расположения плит покрытия
   Схемы расположения стеновых панелей
   Схема расположения стеновых панелей. Фрагменты 1 - 7; 19
   Схема расположения стеновых панелей. Фрагменты 8 - 15
   Схема расположения стеновых панелей. Фрагменты 16 - 18. Узлы 13 - 15
   Схема расположения перегородок. Узлы 16, 17
   Схема расположения перегородок. Узлы 18 - 21
   Монолитные участки Ум1, Ум2. Опалубка и армирование. Ум3
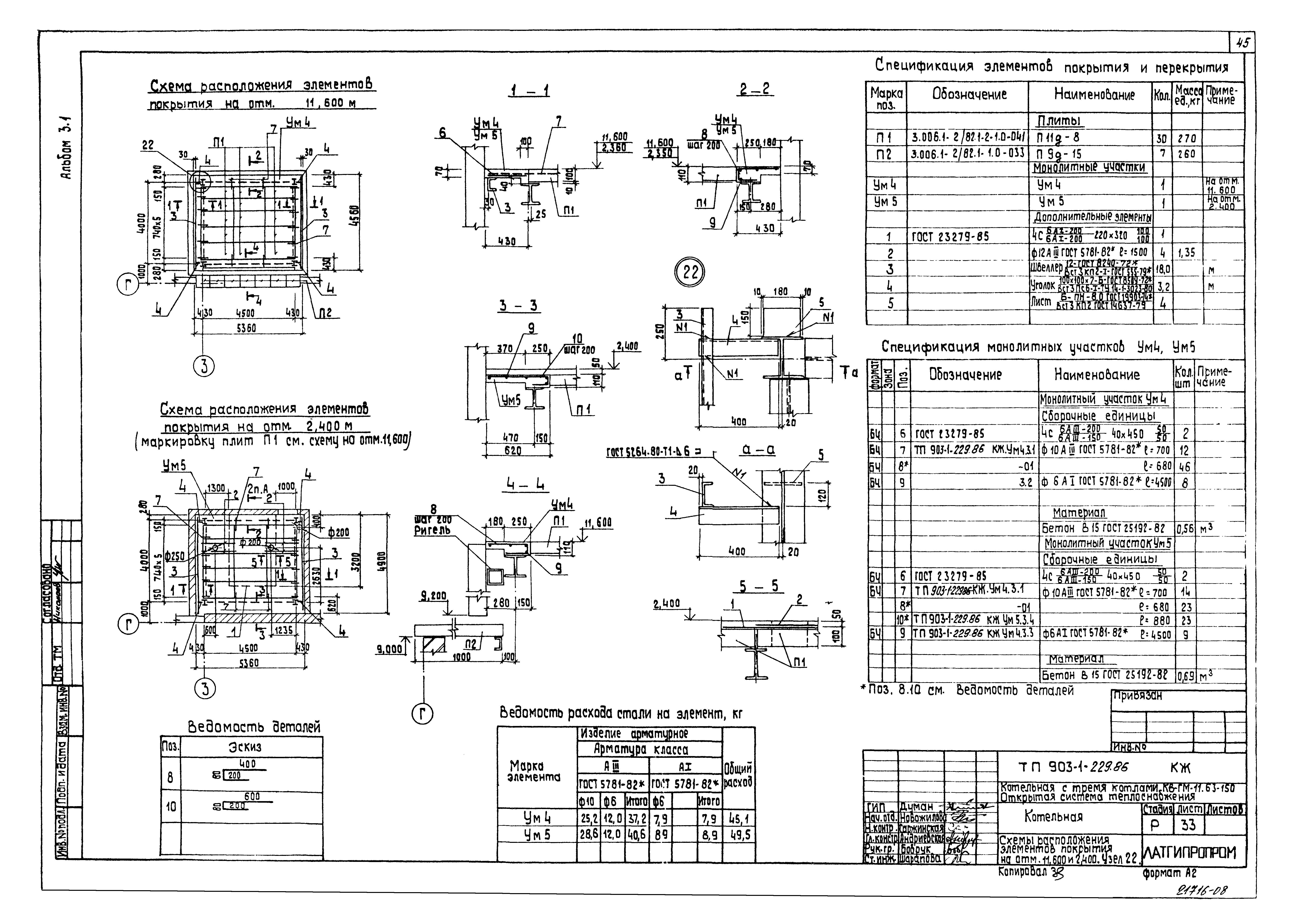
   Схемы расположения элементов покрытия на отм. 11.600; 2.400. Узел 22
   Пм1. Опалубка и армирование. Узлы 23, 24
   Схема расположения панелей ограждения деаэраторной башни
   Схема расположения закладных изделий на отм. 4.200. Узел 25
   Боров. Схемы расположения колонн и фундаментов
   Боров. Км1; Фм1-А. Опалубка и армирование. Узел 26
   Боров. Схемы расположения плит покрытия и перекрытия
   Боров. Ум6 - Ум11. Опалубка и армирование. Узлы 27, 28
Конструкции металлические
   Общие данные. Ведомость конструкций по видам профилей
   Техническая спецификация металла
   Техническая спецификация металла для специализированных заводов
   Схема расположения подвесного крана в осях 4 - 7; 3 - 4. Узлы 1, 2
   МЛ1, МП1. Рама Р1. Узлы 3 - 5
   МП2, МП3. Узлы 6, 7
   Схема расположения опор под трубопроводы
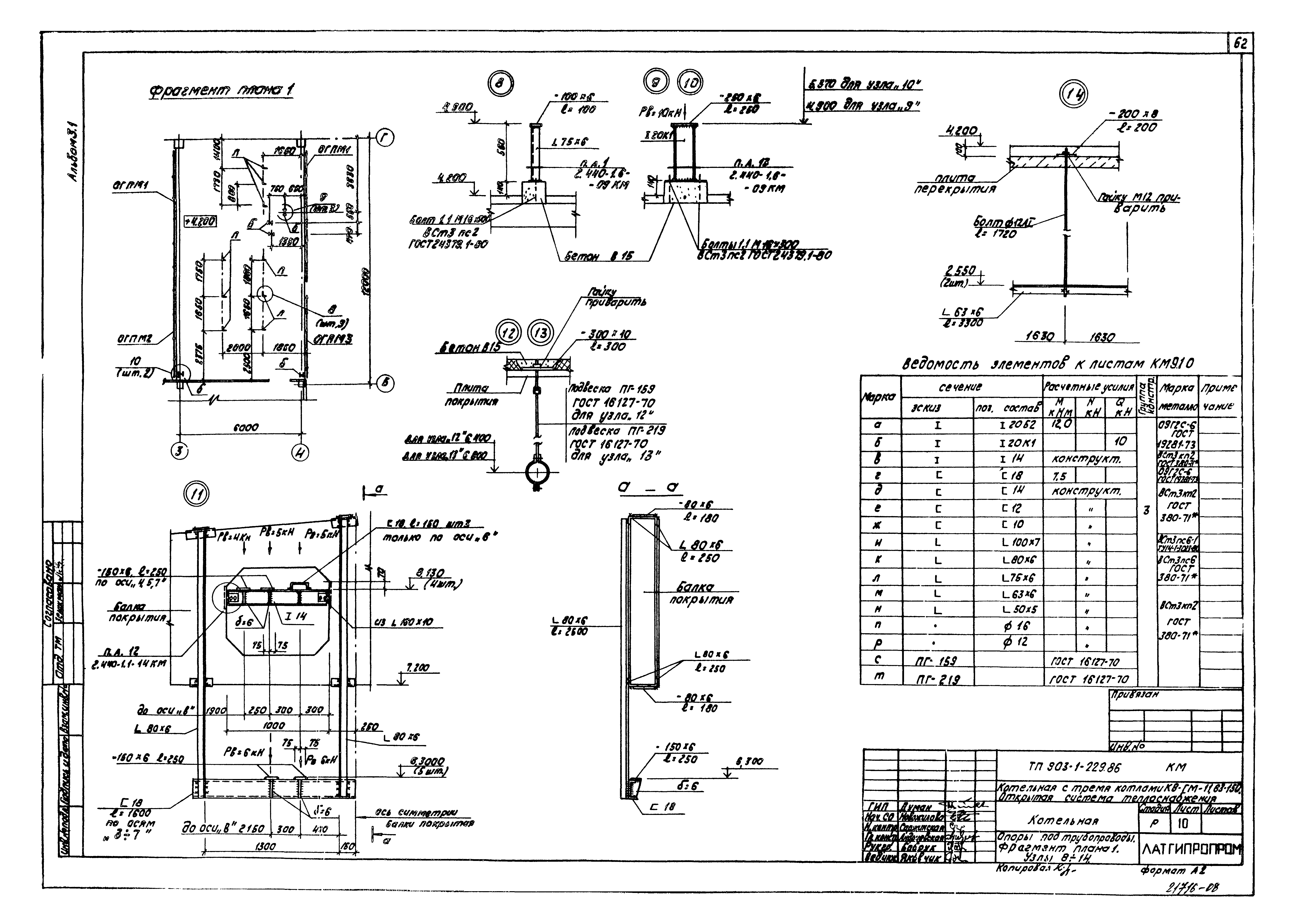
   Опоры под трубопроводы. Фрагмент плана 1. Узлы 8 - 14
   Опоры под трубопроводы. Узлы 15 - 23
   Деаэраторная. Схема расположения балок покрытия. Планы на отм. 0.000; 2.290; 4.200; 6.500; 11.490; 18.300. Узлы 24 - 27
   Деаэраторная. Разрезы 1-1 - 5-5. Узлы 28 - 32
   Деаэраторная. МЛ2. Сечения А-А, Б-Б, В-В
   Боров. Схема расположения балок перекрытия и площадок. Узлы 33 - 35
   Схема расположения металлических конструкций на баках-аккумуляторах
Разработан: Латгипропром
Утверждён:22.07.1986 Госстрой СССР (АЧ-45)
Издан: ЦИТП Госстроя СССР (CITP, Gosstroy (USSR) 1988 г. )
Расположен в:Техническая документация Строительство Справочные документы Типовые строительные конструкции, изделия и узлы Общероссийский строительный каталог Промышленные предприятия, здания и сооружения Здания и сооружения санитарно-технические Теплоснабжение Котельные установки Открытые системы теплоснабжения Топливо - газ и мазут
Заменяет собой:
Типовой проект 903-1-229.86Типовой проект 903-1-229.86Типовой проект 903-1-229.86Типовой проект 903-1-229.86Типовой проект 903-1-229.86Типовой проект 903-1-229.86Типовой проект 903-1-229.86Типовой проект 903-1-229.86Типовой проект 903-1-229.86Типовой проект 903-1-229.86Типовой проект 903-1-229.86Типовой проект 903-1-229.86Типовой проект 903-1-229.86Типовой проект 903-1-229.86Типовой проект 903-1-229.86Типовой проект 903-1-229.86Типовой проект 903-1-229.86Типовой проект 903-1-229.86Типовой проект 903-1-229.86Типовой проект 903-1-229.86Типовой проект 903-1-229.86Типовой проект 903-1-229.86Типовой проект 903-1-229.86Типовой проект 903-1-229.86Типовой проект 903-1-229.86Типовой проект 903-1-229.86Типовой проект 903-1-229.86Типовой проект 903-1-229.86Типовой проект 903-1-229.86Типовой проект 903-1-229.86Типовой проект 903-1-229.86Типовой проект 903-1-229.86Типовой проект 903-1-229.86Типовой проект 903-1-229.86Типовой проект 903-1-229.86Типовой проект 903-1-229.86Типовой проект 903-1-229.86Типовой проект 903-1-229.86Типовой проект 903-1-229.86Типовой проект 903-1-229.86Типовой проект 903-1-229.86Типовой проект 903-1-229.86Типовой проект 903-1-229.86Типовой проект 903-1-229.86Типовой проект 903-1-229.86Типовой проект 903-1-229.86Типовой проект 903-1-229.86Типовой проект 903-1-229.86Типовой проект 903-1-229.86Типовой проект 903-1-229.86Типовой проект 903-1-229.86Типовой проект 903-1-229.86Типовой проект 903-1-229.86Типовой проект 903-1-229.86Типовой проект 903-1-229.86Типовой проект 903-1-229.86Типовой проект 903-1-229.86Типовой проект 903-1-229.86Типовой проект 903-1-229.86Типовой проект 903-1-229.86Типовой проект 903-1-229.86Типовой проект 903-1-229.86Типовой проект 903-1-229.86Типовой проект 903-1-229.86Типовой проект 903-1-229.86Типовой проект 903-1-229.86Типовой проект 903-1-229.86Типовой проект 903-1-229.86Типовой проект 903-1-229.86Типовой проект 903-1-229.86

© 2013 Ёшкин Кот :-) Карта сайта