Информационная система
«Ёшкин Кот»

Скачать базу одним архивом
Скачать обновления
История создания базы
Карта сайта

Скачать Типовой проект 903-1-229.86 Альбом 1.4. Водоподготовительная установка. Блоки тепломеханического оборудования

Дата актуализации: 10.08.2017

Типовой проект 903-1-229.86

Альбом 1.4. Водоподготовительная установка. Блоки тепломеханического оборудования

Обозначение: Типовой проект 903-1-229.86
Обозначение англ: 903-1-229.86
Статус:действует
Название рус.:Альбом 1.4. Водоподготовительная установка. Блоки тепломеханического оборудования
Дата добавления в базу:01.10.2014
Дата актуализации:05.05.2017
Оглавление:Чертежи основного комплекта марки ВП2
   Общие данные
   Блок управления тремя водород-катионитными фильтрами ф 2600 (БУ-Н-2600х3). Схема соединений. Техническая характеристика
   Блок управления тремя водород-катионитными фильтрами ф 2600 (БУ-Н-2600х3). Общий вид
   Блок управления тремя водород-катионитными фильтрами ф 2600 (БУ-Н-2600х3). Рама. План. Разрезы А-А, Б-Б, В-В
   Блок управления тремя Na-катионитными фильтрами ф 700 (БУ-Na-700х3). Техническая характеристика. Схема соединений
   Блок управления тремя Na-катионитными фильтрами ф 700 (БУ-Na-700х3). Общий вид
   Блок управления тремя Na-катионитными фильтрами ф 700 (БУ-Na-700х3). Рама. План. Разрезы А-А, Б-Б, В-В
   Блок насосов исходной воды (БНИВ). Техническая характеристика. Схема соединений
   Блок насосов исходной воды (БНИВ). Общий вид
   Блок насосов исходной воды (БНИВ). Рама. План. Разрез А-А
   Блок насосов декарбонизированной воды (БНДВ). Техническая характеристика. Схема соединений
   Блок насосов декарбонизированной воды (БНДВ). Общий вид. Разрез А-А
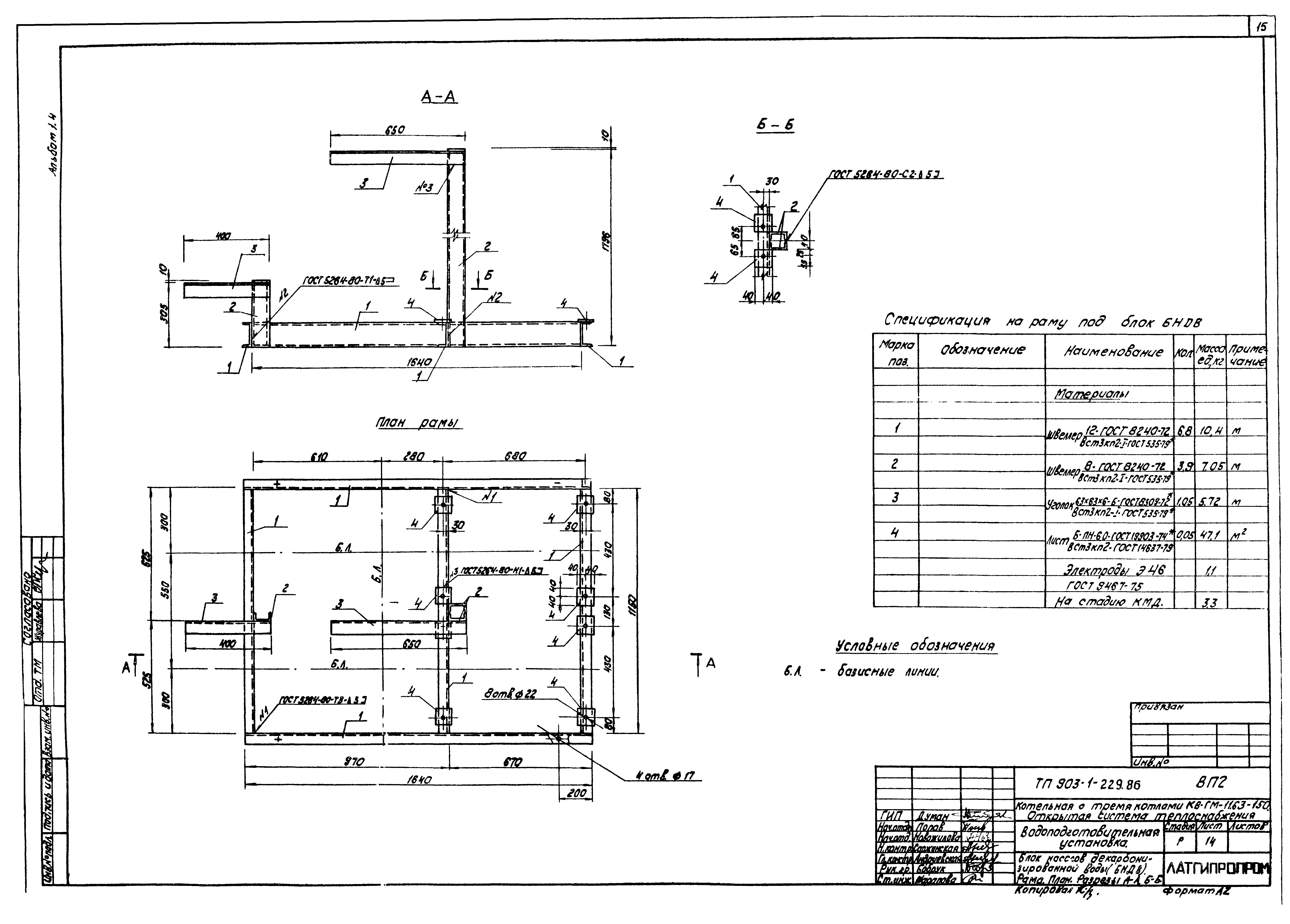
   Блок насосов декарбонизированной воды (БНДВ). Рама. План. Разрезы А-А, Б-Б
   Блок приготовления регенерационного раствора кислоты (БПРРК). Техническая характеристика. Схема соединений
   Блок приготовления регенерационного раствора кислоты (БПРРК). Разрез А-А. Общий вид
   Блок приготовления регенерационного раствора кислоты (БПРРК). Рама. План. Разрезы А-А, Б-Б
   Блок приготовления раствора щелочи (БПРЩ). Техническая характеристика. Схема соединений
   Блок приготовления раствора щелочи (БПРЩ). Разрез А-А. Общий вид
   Блок приготовления раствора щелочи (БПРЩ). Рама. План. Разрезы А-А, Б-Б, В-В
   Блок хранения щелочи (БХЩ). Техническая характеристика. Схема соединений
   Блок хранения щелочи (БХЩ). Общий вид. Вид А
   Блок хранения щелочи (БХЩ). Рама. План. Разрезы А-А, Б-Б, В-В
   Блок приготовления регенерационного раствора соли (БПРРС). Схема соединений. Техническая характеристика
   Блок приготовления регенерационного раствора соли (БПРРС). Общий вид
   Блок приготовления регенерационного раствора соли (БПРРС). Рама. План. Разрез А-А
   Рама водоводяного подогревателя. Разрезы А-А, Б-Б
Разработан: Латгипропром
Утверждён:22.07.1986 Госстрой СССР (АЧ-45)
Издан: ЦИТП Госстроя СССР (CITP, Gosstroy (USSR) 1988 г. )
Расположен в:Техническая документация Строительство Справочные документы Типовые строительные конструкции, изделия и узлы Общероссийский строительный каталог Промышленные предприятия, здания и сооружения Здания и сооружения санитарно-технические Теплоснабжение Котельные установки Открытые системы теплоснабжения Топливо - газ и мазут
Заменяет собой:
Типовой проект 903-1-229.86Типовой проект 903-1-229.86Типовой проект 903-1-229.86Типовой проект 903-1-229.86Типовой проект 903-1-229.86Типовой проект 903-1-229.86Типовой проект 903-1-229.86Типовой проект 903-1-229.86Типовой проект 903-1-229.86Типовой проект 903-1-229.86Типовой проект 903-1-229.86Типовой проект 903-1-229.86Типовой проект 903-1-229.86Типовой проект 903-1-229.86Типовой проект 903-1-229.86Типовой проект 903-1-229.86Типовой проект 903-1-229.86Типовой проект 903-1-229.86Типовой проект 903-1-229.86Типовой проект 903-1-229.86Типовой проект 903-1-229.86Типовой проект 903-1-229.86Типовой проект 903-1-229.86Типовой проект 903-1-229.86Типовой проект 903-1-229.86Типовой проект 903-1-229.86Типовой проект 903-1-229.86Типовой проект 903-1-229.86Типовой проект 903-1-229.86Типовой проект 903-1-229.86

© 2013 Ёшкин Кот :-) Карта сайта