Скачать Типовой проект 903-1-229.86 Альбом 1.1. Котельная. Части: тепломеханическая, газоснабжениеДата актуализации: 10.08.2017 Типовой проект 903-1-229.86
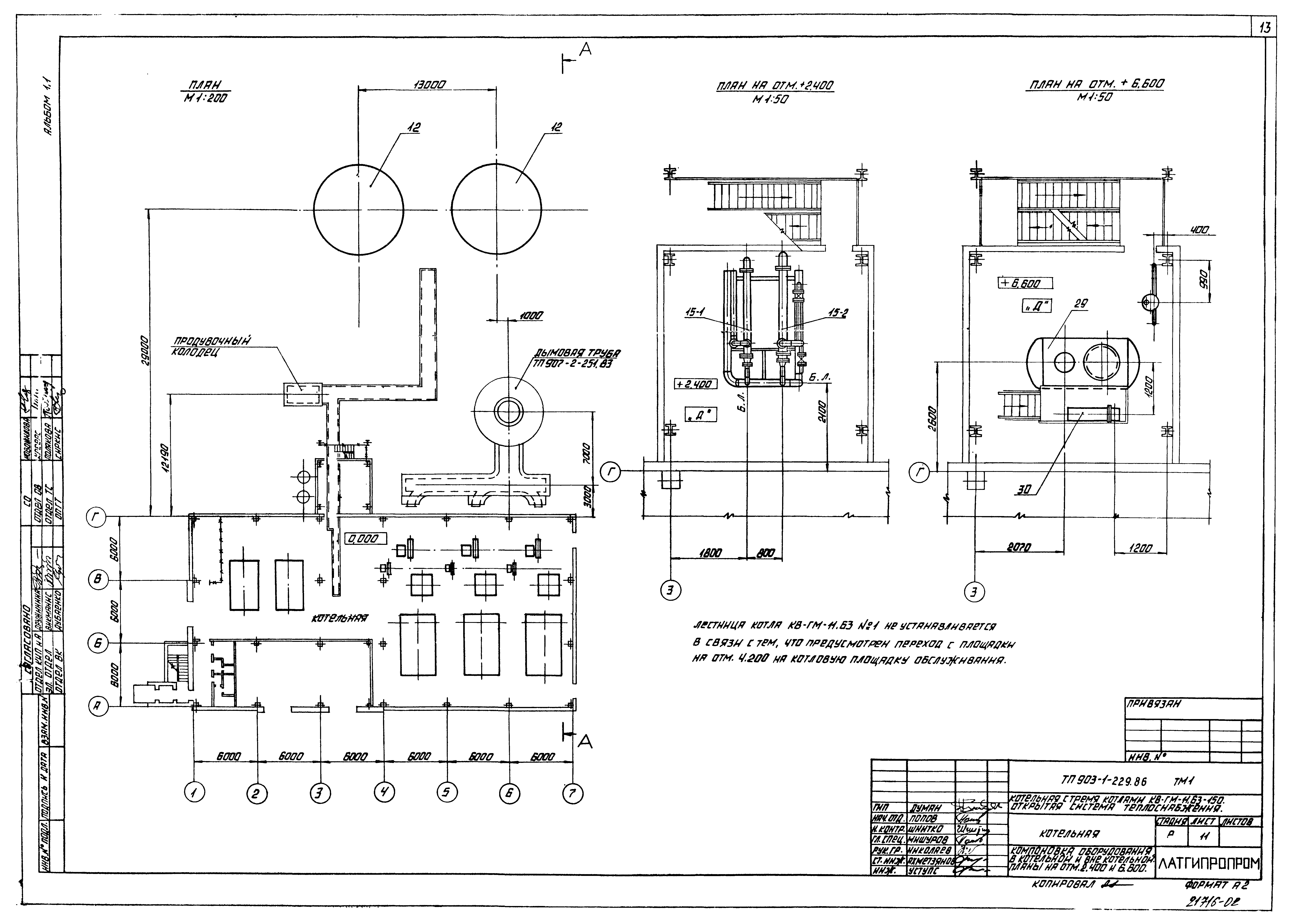
Альбом 1.1. Котельная. Части: тепломеханическая, газоснабжениеОбозначение: | Типовой проект 903-1-229.86 | Обозначение англ: | 903-1-229.86 | Статус: | действует | Название рус.: | Альбом 1.1. Котельная. Части: тепломеханическая, газоснабжение | Дата добавления в базу: | 01.10.2014 | Дата актуализации: | 05.05.2017 | Оглавление: | Тепломеханическая часть ТМ1 Общие данные Компоновка оборудования в котельной и вне котельной. Планы на отм. 2.400 и 6.600 Компоновка оборудования котельной. План на отм. 0.000 Компоновка оборудования котельной. Вид сверху Компоновка оборудования котельной. Разрез А-А Компоновка оборудования котельной. Разрез Б-Б, В-В Компоновка оборудования котельной. Спецификация оборудования Тепловая схема водогрейной части котельной Тепловая схема паровой части котельной Схема паромазутопровода Схема использования и охлаждения проб пара и воды Трубопроводы сетевой воды. План. Разрез А-А Трубопроводы сетевой воды. План на отм. 18.000. Разрезы Б-Б, В-В, Г-Г Трубопроводы сетевой воды. Разрез Е-Е Схема дренажей и отвода воздуха от трубопроводов сетевой воды Трубопроводы подпиточной воды. План. Разрезы А-А, Б-Б Трубопроводы подпиточной воды. План. Разрезы В-В, Г-Г, Д-Д Трубопроводы подпиточной воды. Разрезы Е-Е, Ж-Ж Схема дренажей и отвода воздуха от трубопроводов подпиточной воды Трубопроводы химочищенной воды, рабочей воды и выпара. План на отм. 0.000; 2.400; 18.300. Разрезы А-А, Б-Б, В-В Трубопроводы химочищенной воды, рабочей воды и выпара. Разрезы Д-Д, Е-Е, Г-Г Трубопроводы химочищенной воды, рабочей воды и выпара. Разрез Ж-Ж Схема дренажей и отвода воздуха от трубопроводов химочищенной воды, рабочей воды и выпара Трубопроводы аварийной подпитки. План. Разрез А-А Трубопроводы исходной химочищенной орошающей воды. План. Разрезы А-А, Б-Б, В-В Трубопроводы исходной химочищенной орошающей воды. Разрез Г-Г, Д-Д Трубопроводы исходной химочищенной орошающей воды. Разрез Е-Е, Ж-Ж. План на отм. 0.000 Схема дренажей и отвода воздуха от трубопроводов исходной химочищенной и орошающей воды Трубопроводы пара и выхлопа. План. Разрезы А-А, Б-Б, В-В. Вид Е Трубопроводы пара и выхлопа. Разрезы Г-Г, Д-Д Схема дренажей и продувки трубопроводов пара и выхлопа Трубопроводы химочищенной воды, конденсата и питательной воды. Разрезы Б-Б, В-В, Г-Г, Д-Д Трубопроводы химочищенной воды, конденсата и питательной воды. План. Разрезы А-А, Е-Е Трубопроводы химочищенной воды, конденсата и питательной воды. Спецификация Схема дренажа и продувки трубопроводов химочищенной воды, конденсата и питательной воды Схема дренажа и продувки трубопроводов химочищенной воды, конденсата. Спецификация Паромазутопроводы в пределах котельной. План. Разрезы А-А, Б-Б Паромазутопроводы в пределах котельной. Разрезы В-В, Г-Г, Д-Д, Е-Е, Ж-Ж Паромазутопроводы в пределах котельной. Спецификация Схема дренажа и отбора проб котлов Е-2,5-9ГМ и схема дренажа от котлов КВ-ГМ-11,63-150 Трубопровод сжатого воздуха. План. Разрез А-А Газоходы котлов Е-2,5-9ГМ. План. Разрез А-А. Фланцы Газоходы котлов Е-2,5-9ГМ. Разрезы Б-Б, В-В. Фланцы Воздуховоды котлов Е-2,5-9ГМ. Разрезы А-А, Б-Б, Г-Г. Вид В. Фланец. Узел Продувочное устройство Ду32. Разрез А-А. Детали Бак рабочей воды V = 6,3 куб. м. Разрез А-А. Вид Б. Узлы. Деталь Трубопроводы бака-аккумулятора V = 630 куб. м. Вид А. Узлы. Деталь Обвязка холодильника отбора проб двухточечного Рама под холодильник для отбора проб. План рамы. Разрезы А-А, Б-Б Таблица крепежных изделий. Деталь Газоснабжение ГСВ1 Общие данные Газопроводы котельной. План и разрез А-А Схема газопроводов котлов КВ-ГМ-11,63-150 и Е-2,5-9ГМ План газорегуляторной установки Газорегуляторная установка. Разрезы А-А, Б-Б Схема газопроводов газорегуляторной установки Спецификация на оборудование газорегуляторной установки Газооборудование котла Е-2,5-9ГМ. Вид А Спецификация на газооборудование котла Е-2,5-9ГМ | Разработан: | Латгипропром
| Утверждён: | 22.07.1986 Госстрой СССР (АЧ-45)
| Издан: | ЦИТП Госстроя СССР (CITP, Gosstroy (USSR) 1988 г. )
| Расположен в: |
| Заменяет собой: | |
                                                                      
|