Скачать Типовой проект 901-1-98.88 Альбом II. Архитектурно-строительные решения (надземная часть). Отопление, вентиляция, водопровод, канализацияДата актуализации: 10.08.2017 Типовой проект 901-1-98.88
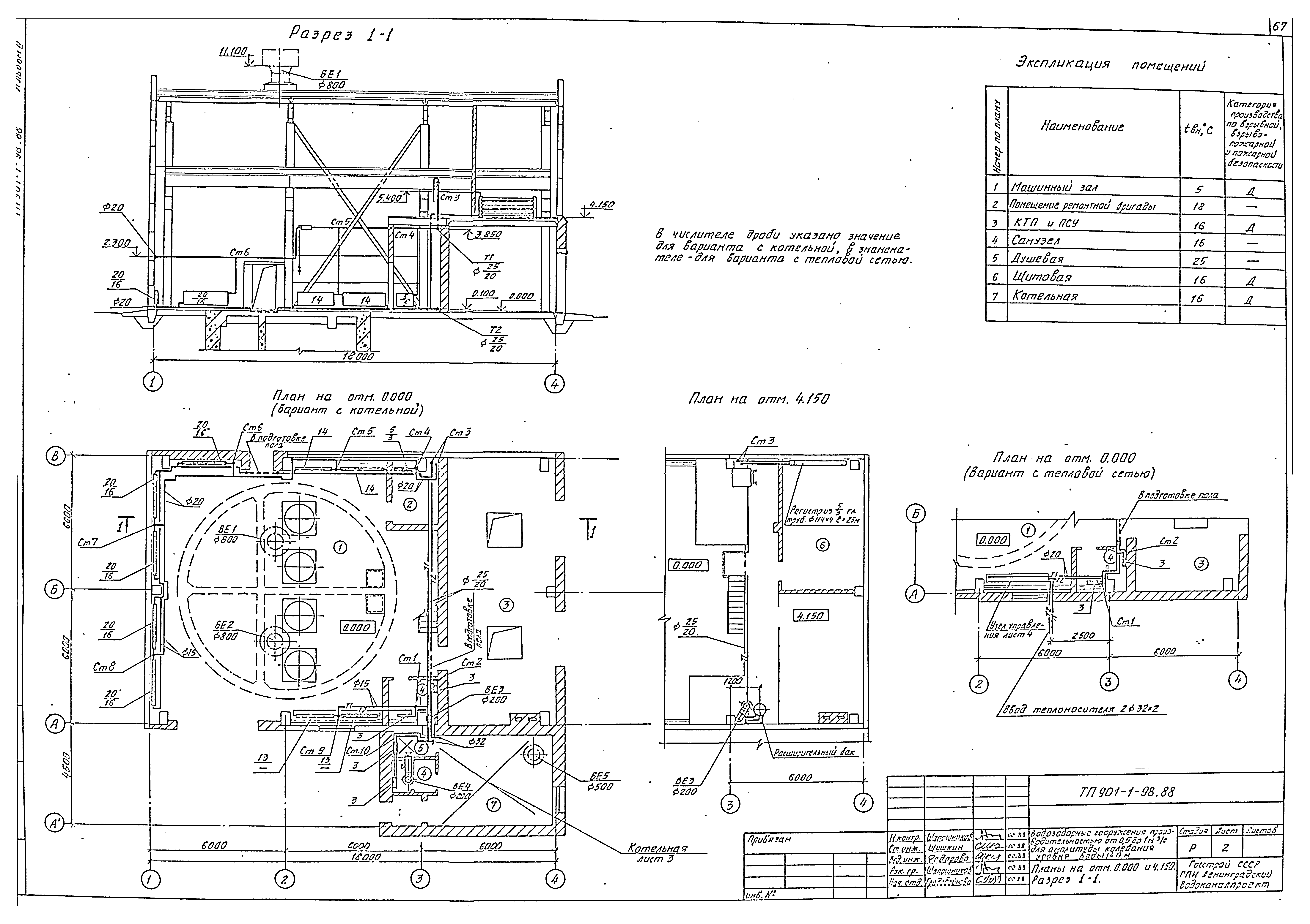
Альбом II. Архитектурно-строительные решения (надземная часть). Отопление, вентиляция, водопровод, канализацияОбозначение: | Типовой проект 901-1-98.88 | Обозначение англ: | 901-1-98.88 | Статус: | не определен законодательством | Название рус.: | Альбом II. Архитектурно-строительные решения (надземная часть). Отопление, вентиляция, водопровод, канализация | Дата добавления в базу: | 01.10.2014 | Дата актуализации: | 05.05.2017 | Дата введения: | 05.07.1988 | Оглавление: | Содержание Архитектурно-строительные решения Общие данные План на отм. 0.000; 4.150 и - 21.000 Разрезы 1-1, 2-2 Фасады (с котельной) Фасады (без котельной) План кровли, планы полов. Экспликация полов Дымовая труба. Фрагмент плана 1. Узлы План отверстий. Разрез 3-3. Вид Б-Б. Узлы. Решетка МР-1 Ворота ВЭ-2,50х2,64. Монтажная схема. Защелка пружинная ЗП. Пробой Т90. Узлы Каркас КВЭП-2,50х2,64. Жалюзийная решетка ЖР-1. Узлы Каркас КВЭЛ-2,50х2,64. Детали. Шпингалет нижний ШН Рама РВЭ-2,50х2,64. Полотно ПВЭ-2,50х2,64 Детали полотен ворот. Петля подгибная ПП. Щеколда фалевая ЩФ Конструкции железобетонные Общие данные Спецификация к железобетонному перекрытию РКм1, РКм2 Железобетонное перекрытие РКм1 Железобетонное перекрытие РКм2 Железобетонное перекрытие РКм1. Набетонка Железобетонное перекрытие РКм2. Набетонка Железобетонное перекрытие РКм1, РКм2. Чертеж № 1 Железобетонное перекрытие РКм1, РКм2. Чертеж № 2 Железобетонное перекрытие РКм1, РКм2. Чертеж № 3 Железобетонное перекрытие РКм1, РКм2. Чертеж № 4 РКм1. Плита Пм1. Схема армирования. Чертеж № 1 РКм1. Плита Пм1. Схема армирования. Чертеж № 2 РКм1. Плита Пм1. Схема армирования. Чертеж № 3 РКм2. Плита Пм2. Схема армирования. Чертеж № 1 РКм2. Плита Пм2. Схема армирования. Чертеж № 2 РКм2. Плита Пм2. Схема армирования. Чертеж № 3 РКм1, РКм2. Плита Пм1, Пм2. Разрезы РКм1. Плита Пм1. Спецификация арматуры РКм2. Плита Пм2. Спецификация арматуры РКм1. Плита Пм1. Ведомость деталей РКм2. Плита Пм2. Ведомость деталей РКм1, РКм2. Балки Бм1 - Бм3, Бм7. Схемы армирования РКм1, РКм2. Балки Бм4, Бм5, Бм15, Бм16. Схемы армирования РКм1, РКм2. Балки Бм8, Бм10 - Бм12. Схемы армирования РКм1, РКм2. Балки Бм6, Бм13, Бм14, Бм17. Схемы армирования Схемы расположения ростверков, фундаментных балок, свай (вариант с котельной) Схемы расположения ростверков, фундаментных балок, свай (вариант с тепловыми сетями) Ростверки РСм1, РСм1н, РСм2. Схемы армирования Ростверки РСм3, РСм4, РСм4н, РСм5. Схемы армирования Схема расположения колонн, балок, кровли, подкрановых балок и связей Схема расположения плит покрытия Перекрытие на отм. 4.150. Чертеж № 1 Перекрытие на отм. 4.150. Чертеж № 2 Перекрытие на отм. 4.150. Чертеж № 3 Схема расположения стеновых панелей. Чертеж № 1 Схема расположения стеновых панелей. Чертеж № 2 Схема расположения стеновых панелей. Чертеж № 3 Схема расположения стеновых панелей. Чертеж № 4 Помещения КТП и ПСУ. Чертеж № 1 Помещения КТП и ПСУ. Чертеж № 2 Конструкции металлические Общие данные. Ведомость металлоконструкций по видам профилей Техническая спецификация стали Схема расположения элементов крепления рельсов и упоров к подкрановым балкам Схема опор, стоек, балок. Деталь 1. Узлы 1, 2 Схема опор, стоек, балок. Узлы 3 - 7 Схема лестниц ограждения сетчатого, ограждения площадки для обслуживания крана. Узлы 1, 2 Схема лестниц ограждения сетчатого, ограждения площадки для обслуживания крана. Узлы 3 - 8 Отопление и вентиляция Общие данные Планы на отм. 0.000 и 4.150. Разрез 1-1 План котельной на отм. 0.000. Разрезы 1-1, 2-2. Схема трубопроводов котельной Схема системы отопления. Схема системы теплоснабжения водоводяного подогревателя. Схемы систем ВЕ3, ВЕ4. Узел управления Водопровод и канализация Общие данные Планы на отм. 0.000 Схемы систем В1, В7, Т3, К7 | Разработан: | Ленинградский Водоканалпроект
| Утверждён: | 06.04.1988 Госстрой СССР (25)
| Расположен в: |
| Заменяет собой: | |
                                                                       
|