Информационная система
«Ёшкин Кот»

Скачать базу одним архивом
Скачать обновления
История создания базы
Карта сайта

Скачать Типовой проект 503-1-100.13.91 Альбом 3. Силовое электрооборудование. Электрическое освещение. Автоматизация отопления и вентиляции. Автоматизация внутреннего водопровода и канализации. Связь и сигнализация. Пожарная сигнализация

Дата актуализации: 10.08.2017

Типовой проект 503-1-100.13.91

Альбом 3. Силовое электрооборудование. Электрическое освещение. Автоматизация отопления и вентиляции. Автоматизация внутреннего водопровода и канализации. Связь и сигнализация. Пожарная сигнализация

Обозначение: Типовой проект 503-1-100.13.91
Обозначение англ: 503-1-100.13.91
Статус:не определен законодательством
Название рус.:Альбом 3. Силовое электрооборудование. Электрическое освещение. Автоматизация отопления и вентиляции. Автоматизация внутреннего водопровода и канализации. Связь и сигнализация. Пожарная сигнализация
Дата добавления в базу:01.10.2014
Дата актуализации:05.05.2017
Дата введения:21.11.1991
Оглавление:Содержание альбома
Силовое электрооборудование
   Общие данные
   Принципиальная схема питающей сети РП1, РП2, шкаф АВР
   АВР. Схема электрическая принципиальная
   Принципиальная схема распределительной сети ШР1
   Схема электрическая принципиальная распределительной сети ШР2, ШР3
   Схема электрическая принципиальная распределительной сети ШР4
   Схема электрическая принципиальная распределительной сети ШР5, ШР6
   План расположения электрооборудования и прокладки электрических сетей на отм. 0.000
   План расположения электрооборудования и прокладки электрических сетей на отм. 3.300 и кровле
   Ведомость электромонтажных конструкций, подлежащих изготовлению в МЭЗ
   Ведомость изделий и материалов для изготовления конструкций и деталей в МЭЗ. Шкаф АВР. Чертеж общего вида
Электрическое освещение
   Общие данные
   План расположения электрического оборудования и прокладки электрических сетей на отм. 0.000
   План расположения электрического оборудования и прокладки электрических сетей на отм. 3.300. Принципиальная схема питающей сети
   Ведомость электромонтажных конструкций, подлежащих изготовлению в МЭЗ
   Ведомость изделий и материалов для изготовления конструкций и деталей в МЭЗ
Автоматизация отопления и вентиляции
   Общие данные
   Приточная система П1 (П2, П3). Схема автоматизации
   Приточная система П1 (П2, П3). Схема электрическая управления
   Приточная система П1 (П2, П3). Схема электрическая регулирования
   Приточная система П1 (П2, П3). Схема соединений внешних проводок
   Воздушно-тепловые завесы У1, У2 (У3…У8). Схема автоматизации и схема электрическая управления
   Воздушно-тепловые завесы У1, У2 (У3…У8). Схема соединений внешних проводок
   Блокировка вентсистемы В8 со станком. Схема соединений внешних проводок
   Схема электрическая блокировки вентсистемы В7. Схема соединений внешних проводок
   Индивидуальный тепловой пункт. Схема автоматизации
   Индивидуальный тепловой пункт. Схема соединений
   Схема отключения вентиляции при пожаре. Схема соединений внешних проводок
   План расположения оборудования и проводок на отм. 0.000 на кровле
   План расположения оборудования и проводок в венткамерах
   Эскизный чертеж щита управления П1 (П2, П3)
Автоматизация внутреннего водопровода и канализации
   Общие данные. План расположения оборудования и проводок на отм. 3.300
   Электрозадвижка. Схема электрическая управления
   Электрозадвижка. Схема соединений внешних проводок
   План расположения оборудования и проводок на отм. 0.000
Связь и сигнализация
   Общие данные. План сетей телефонизации и радиофикации
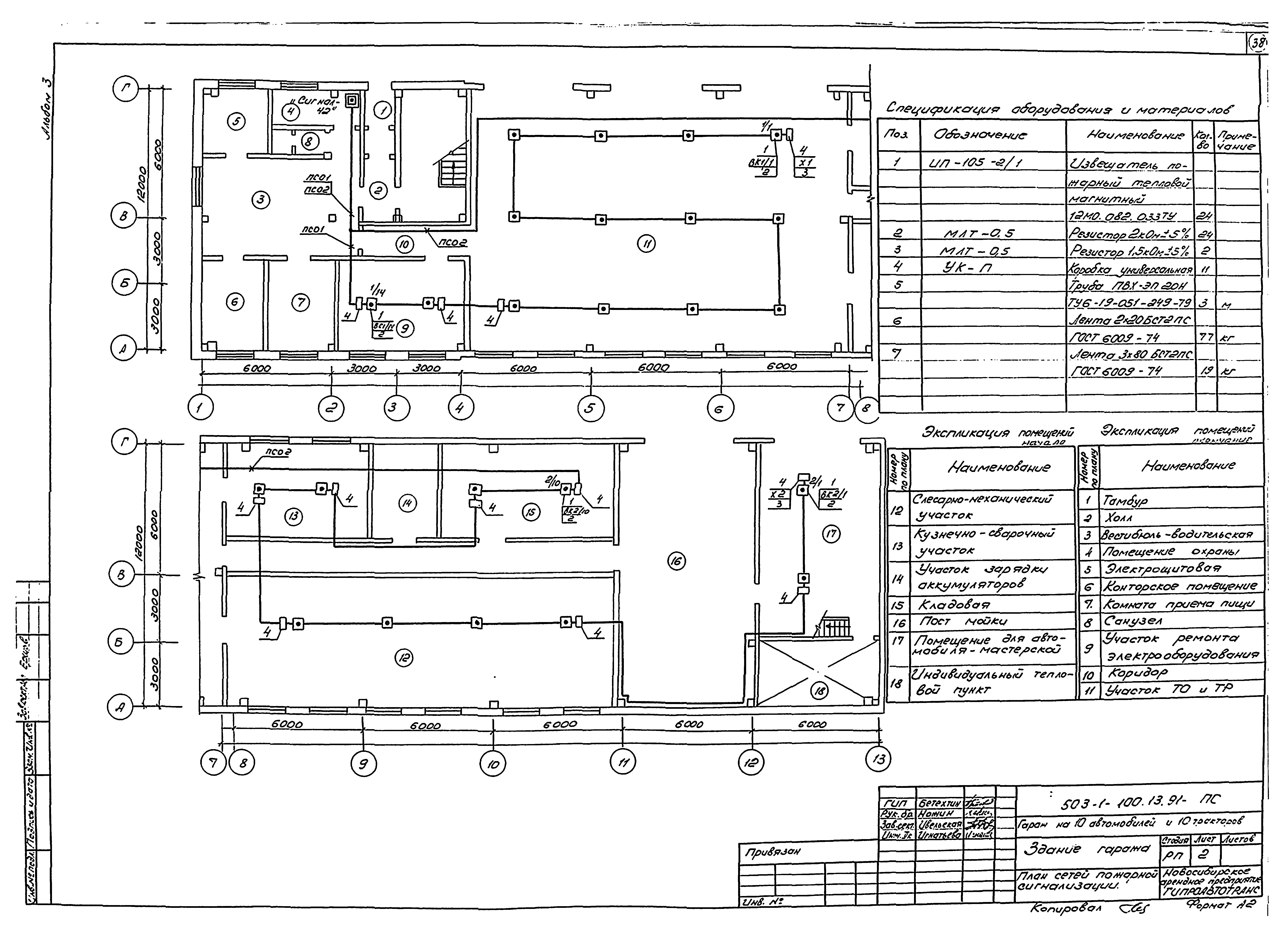
Пожарная сигнализация
   Общие данные
   План сетей пожарной сигнализации
Разработан: Гипроавтотранс
Утверждён:21.11.1991 Новосибирский Облисполком (19)
Расположен в:Техническая документация Строительство Справочные документы Типовые строительные конструкции, изделия и узлы Общероссийский строительный каталог Промышленные предприятия, здания и сооружения Предприятия, здания и сооружения транспорта Транспорт автомобильный Предприятия автотранспортные, гаражи и стоянки для грузовых автомобилей и механизмов
Типовой проект 503-1-100.13.91Типовой проект 503-1-100.13.91Типовой проект 503-1-100.13.91Типовой проект 503-1-100.13.91Типовой проект 503-1-100.13.91Типовой проект 503-1-100.13.91Типовой проект 503-1-100.13.91Типовой проект 503-1-100.13.91Типовой проект 503-1-100.13.91Типовой проект 503-1-100.13.91Типовой проект 503-1-100.13.91Типовой проект 503-1-100.13.91Типовой проект 503-1-100.13.91Типовой проект 503-1-100.13.91Типовой проект 503-1-100.13.91Типовой проект 503-1-100.13.91Типовой проект 503-1-100.13.91Типовой проект 503-1-100.13.91Типовой проект 503-1-100.13.91Типовой проект 503-1-100.13.91Типовой проект 503-1-100.13.91Типовой проект 503-1-100.13.91Типовой проект 503-1-100.13.91Типовой проект 503-1-100.13.91Типовой проект 503-1-100.13.91Типовой проект 503-1-100.13.91Типовой проект 503-1-100.13.91Типовой проект 503-1-100.13.91Типовой проект 503-1-100.13.91Типовой проект 503-1-100.13.91Типовой проект 503-1-100.13.91Типовой проект 503-1-100.13.91Типовой проект 503-1-100.13.91Типовой проект 503-1-100.13.91Типовой проект 503-1-100.13.91Типовой проект 503-1-100.13.91Типовой проект 503-1-100.13.91Типовой проект 503-1-100.13.91Типовой проект 503-1-100.13.91

© 2013 Ёшкин Кот :-) Карта сайта