Информационная система
«Ёшкин Кот»

Скачать базу одним архивом
Скачать обновления
История создания базы
Карта сайта

Скачать Типовой проект 902-9-41.87 Альбом III. Архитектурно-строительная часть. Конструкции железобетонные и металлические

Дата актуализации: 10.08.2017

Типовой проект 902-9-41.87

Альбом III. Архитектурно-строительная часть. Конструкции железобетонные и металлические

Обозначение: Типовой проект 902-9-41.87
Обозначение англ: 902-9-41.87
Статус:не определен законодательством
Название рус.:Альбом III. Архитектурно-строительная часть. Конструкции железобетонные и металлические
Дата добавления в базу:01.10.2014
Дата актуализации:05.05.2017
Дата введения:03.03.1987
Оглавление:Архитектурно-строительное решение
   Общие данные
   Планы на отм. 0.000; - 3.600. Разрезы 1-1, 2-2. Фрагмент 1
   Фасады 1 - 8; 8 - 1; А - В; В - А. Схемы заполнения оконных проемов
   Спецификация элементов заполнения проемов. Ведомость проемов ворот и дверей. Ведомость перемычек. Узлы I, II, III. Спецификация перемычек
   План кровли. Планы полов. Экспликация полов. Ведомость отделки помещений
   Транспортерная галерея. План. Разрезы. Фасады
Конструкции железобетонные
   Общие данные
   Схема расположения фундаментов и фундаментных балок
   Схема расположения фундаментов и фундаментных балок. Узлы. Сечения
   Фундаменты Фм1 - Фм4
   Фундаменты Фм5 - Фм8
   Схема расположения колонн, балок покрытия, плит покрытия. Разрезы
   Разрезы 3-3 - 6-6. Узлы А, Б, В. Спецификация соединительных элементов каркаса
   Схема расположения стеновых панелей
   План канала и фундаментов под оборудование. Схема расположения плит перекрытия канала. Разрезы
   КТП. Схема расположения каналов и приямков. Разрезы. Спецификация
   КТП. Балки Бм1 и Бм2. Разрезы. Спецификация
   Схемы расположения плит перекрытия на отм. 1.500; 3.000; 3.600
   Схемы расположения плит перекрытия на отм. 1.500; 3.000; 3.600. Участки монолитные Ум1 - Ум4
   Схемы расположения плит перекрытия на отм. 0.000. Разрезы
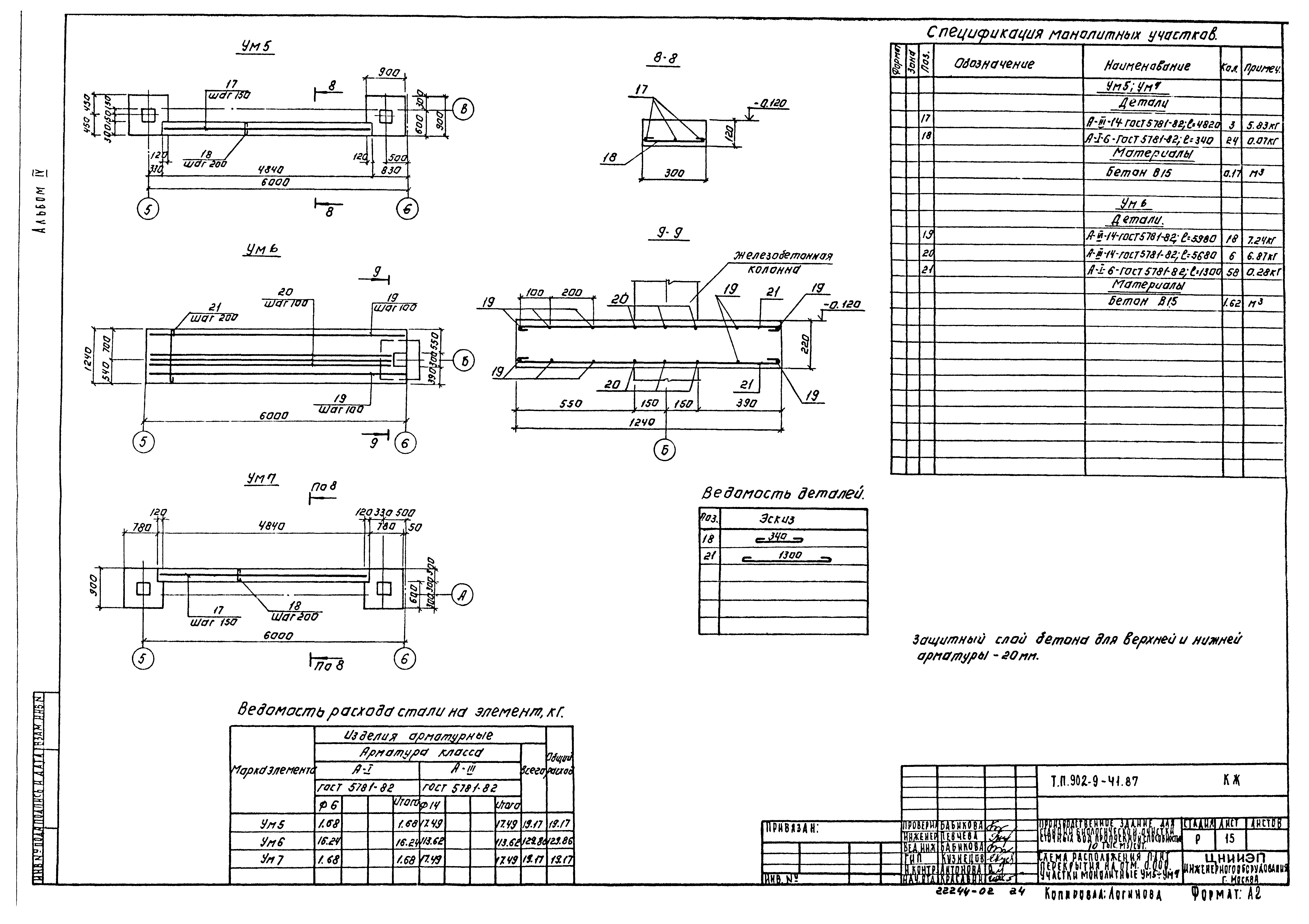
   Схемы расположения плит перекрытия на отм. 0.000. Участки монолитные Ум5 - Ум7
   Схема расположения фундаментов под оборудование
   Фундамент Фо6. Опалубочный чертеж
   Фундамент Фо6. Армирование
   Транспортерная галерея. Схема расположения плит перекрытия, стеновых блоков и стеновых панелей
   Транспортерная галерея. Монолитные участки Ум1, Ум2
   Транспортерная галерея. Схема расположения фундаментов под галерею
   Приточная камера. Камера фильтров. Схема расположения закладных деталей
Конструкции металлические
   Общие данные. Ведомость металлоконструкций по видам профилей
   Техническая спецификация стали
   Схема расположения металлических площадок, лестниц и ограждений. Разрезы. Узлы
   Схема расположения подвесных путей. Разрезы. Узлы
   Схема расположения балок и связей по верхним и нижним поясам ферм. Шарнирная опора О1
Организация строительства
   График производства работ
Разработан: ЦНИИЭП иженерного оборудования
Утверждён:17.03.1987 Госгражданстрой (Gosgrazhdanstroy 79)
Расположен в:Техническая документация Строительство Справочные документы Типовые строительные конструкции, изделия и узлы Общероссийский строительный каталог Промышленные предприятия, здания и сооружения Здания и сооружения санитарно-технические Канализация Сооружения биологической (биохимической) очистки Станции биологической очистки сточных вод
Заменяет собой:
  • Типовой проект 902-9-16
Типовой проект 902-9-41.87Типовой проект 902-9-41.87Типовой проект 902-9-41.87Типовой проект 902-9-41.87Типовой проект 902-9-41.87Типовой проект 902-9-41.87Типовой проект 902-9-41.87Типовой проект 902-9-41.87Типовой проект 902-9-41.87Типовой проект 902-9-41.87Типовой проект 902-9-41.87Типовой проект 902-9-41.87Типовой проект 902-9-41.87Типовой проект 902-9-41.87Типовой проект 902-9-41.87Типовой проект 902-9-41.87Типовой проект 902-9-41.87Типовой проект 902-9-41.87Типовой проект 902-9-41.87Типовой проект 902-9-41.87Типовой проект 902-9-41.87Типовой проект 902-9-41.87Типовой проект 902-9-41.87Типовой проект 902-9-41.87Типовой проект 902-9-41.87Типовой проект 902-9-41.87Типовой проект 902-9-41.87Типовой проект 902-9-41.87Типовой проект 902-9-41.87Типовой проект 902-9-41.87Типовой проект 902-9-41.87Типовой проект 902-9-41.87Типовой проект 902-9-41.87Типовой проект 902-9-41.87Типовой проект 902-9-41.87Типовой проект 902-9-41.87

© 2013 Ёшкин Кот :-) Карта сайта