Информационная система
«Ёшкин Кот»

Скачать базу одним архивом
Скачать обновления
История создания базы
Карта сайта

Скачать Типовой проект 902-9-42.87 Альбом IV. Строительные изделия

Дата актуализации: 10.08.2017

Типовой проект 902-9-42.87

Альбом IV. Строительные изделия

Обозначение: Типовой проект 902-9-42.87
Обозначение англ: 902-9-42.87
Статус:не определен законодательством
Название рус.:Альбом IV. Строительные изделия
Дата добавления в базу:01.10.2014
Дата актуализации:05.05.2017
Дата введения:03.03.1987
Оглавление:КЖИ.01.0 Колонна (К54-7-1; К54-7-2)
КЖИ.02.0 Колонна (1КФ67-1-1)
КЖИ.11.0 Балки покрытия (1БДР12-3АVт-1; 1БДР12-3АVт-2)
КЖИ.12.0 Балка покрытия (1БДР12-4АVт-1)
КЖИ.21.0 Плиты покрытия (ПГ2АтVт-1 - ПГ2АтVт-3)
КЖИ.21.0СБ Плиты покрытия (ПГ2АтVт-1 - ПГ2АтVт-3). Сборочный чертеж
КЖИ.22.0 Плиты покрытия (ПВ10-3АтVт-1 - ПВ10-3АтVт-2)
КЖИ.23.0 Плита покрытия (ПВ4-3АтVт-1)
КЖИ.31.0 Щит металлический (Щ1)
КЖИ.32.0 Соединительный элемент (МС3)
КЖИ.33.0 Щит металлический (Щ2)
КЖИ.34.0 Изделие закладное (РМ5)
КЖИ.35.0 Решетка (Р1)
КЖИ.36.0 Изделие закладное (МН3)
КЖИ.37.0 Изделие закладное (РМ1)
КЖИ.38.0 Изделие закладное (РМ2)
КЖИ.39.0 Изделие закладное (РМ3)
КЖИ.40.0 Изделие закладное (РМ4)
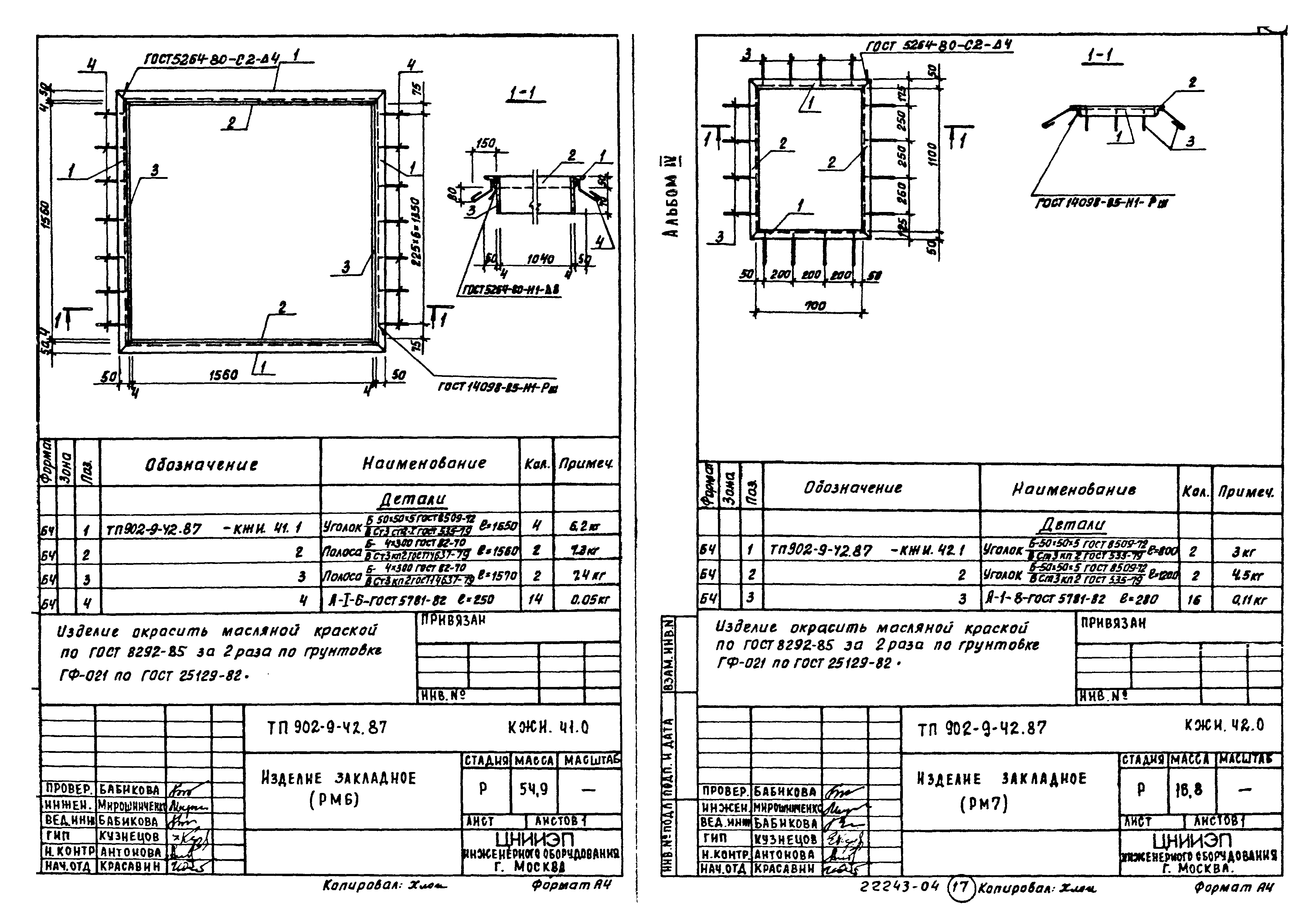
КЖИ.41.0 Изделие закладное (РМ6)
КЖИ.42.0 Изделие закладное (РМ7)
Разработан: ЦНИИЭП инженерного оборудования
Утверждён:13.03.1987 Госгражданстрой (Gosgrazhdanstroy 79)
Издан: ЦИТП Госстроя СССР (CITP, Gosstroy (USSR) 1988 г. )
Расположен в:Техническая документация Строительство Справочные документы Типовые строительные конструкции, изделия и узлы Общероссийский строительный каталог Промышленные предприятия, здания и сооружения Здания и сооружения санитарно-технические Канализация Сооружения биологической (биохимической) очистки Станции биологической очистки сточных вод
Заменяет собой:
  • Типовой проект 902-9-18
Типовой проект 902-9-42.87Типовой проект 902-9-42.87Типовой проект 902-9-42.87Типовой проект 902-9-42.87Типовой проект 902-9-42.87Типовой проект 902-9-42.87Типовой проект 902-9-42.87Типовой проект 902-9-42.87Типовой проект 902-9-42.87Типовой проект 902-9-42.87Типовой проект 902-9-42.87Типовой проект 902-9-42.87Типовой проект 902-9-42.87Типовой проект 902-9-42.87Типовой проект 902-9-42.87Типовой проект 902-9-42.87Типовой проект 902-9-42.87Типовой проект 902-9-42.87

© 2013 Ёшкин Кот :-) Карта сайта