| ||||||||||||||||||||||||||||||||
Скачать ГОСТ Р 55675-2013 Оборудование гимнастическое. Перекладины. Требования и методы испытаний с учетом безопасностиДата актуализации: 10.08.2017
|
| Обозначение: | ГОСТ Р 55675-2013 |
| Обозначение англ: | GOST R 55675-2013 |
| Статус: | введен впервые |
| Название рус.: | Оборудование гимнастическое. Перекладины. Требования и методы испытаний с учетом безопасности |
| Название англ.: | Gymnastic equipment. Horizontal bars. Requirements and test methods with regards to safety |
| Дата добавления в базу: | 01.11.2014 |
| Дата актуализации: | 05.05.2017 |
| Дата введения: | 01.01.2015 |
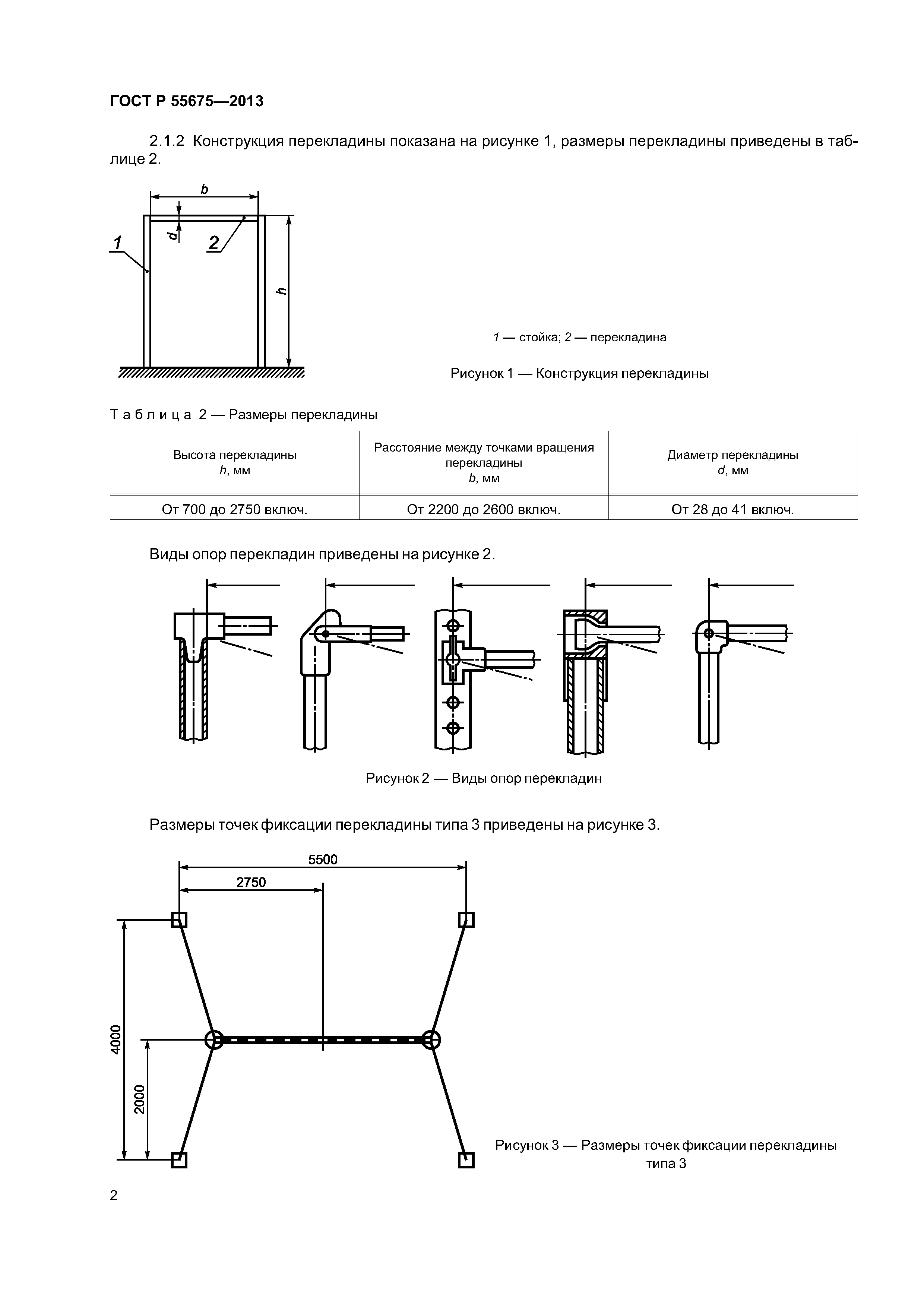
| Область применения: | Стандарт распространяется на гимнастическое оборудование. Стандарт устанавливает функциональные требования и требования безопасности к трем типам перекладин: зафиксированной в напольных углублениях, зафиксированной напольной пластиной и болтом, зафиксированной тросами. |
| Оглавление: | 1 Область применения 2 Требования 3 Методы испытаний 4 Маркировка оборудования Приложение А (обязательное) Методы испытаний перекладин |
| Разработан: | СРО Промспорт |
| Утверждён: | 28.10.2013 Федеральное агентство по техническому регулированию и метрологии (1280-ст) |
| Издан: | Стандартинформ (2014 г. ) |
| Расположен в: |







