Скачать Типовой проект Выпуск 100. Пролетные строения железобетонные сборные с предварительно-напряженной арматурой пролетами в свету 15,0; 20,0 и 30,0 м. Нагрузки Н-13 и НГ-60; Н-18 и НК-80. Габариты Г-6, Г-7 и Г-8 с шириной тротуаров 0,75 и 1,5 мДата актуализации: 10.08.2017 Типовой проект
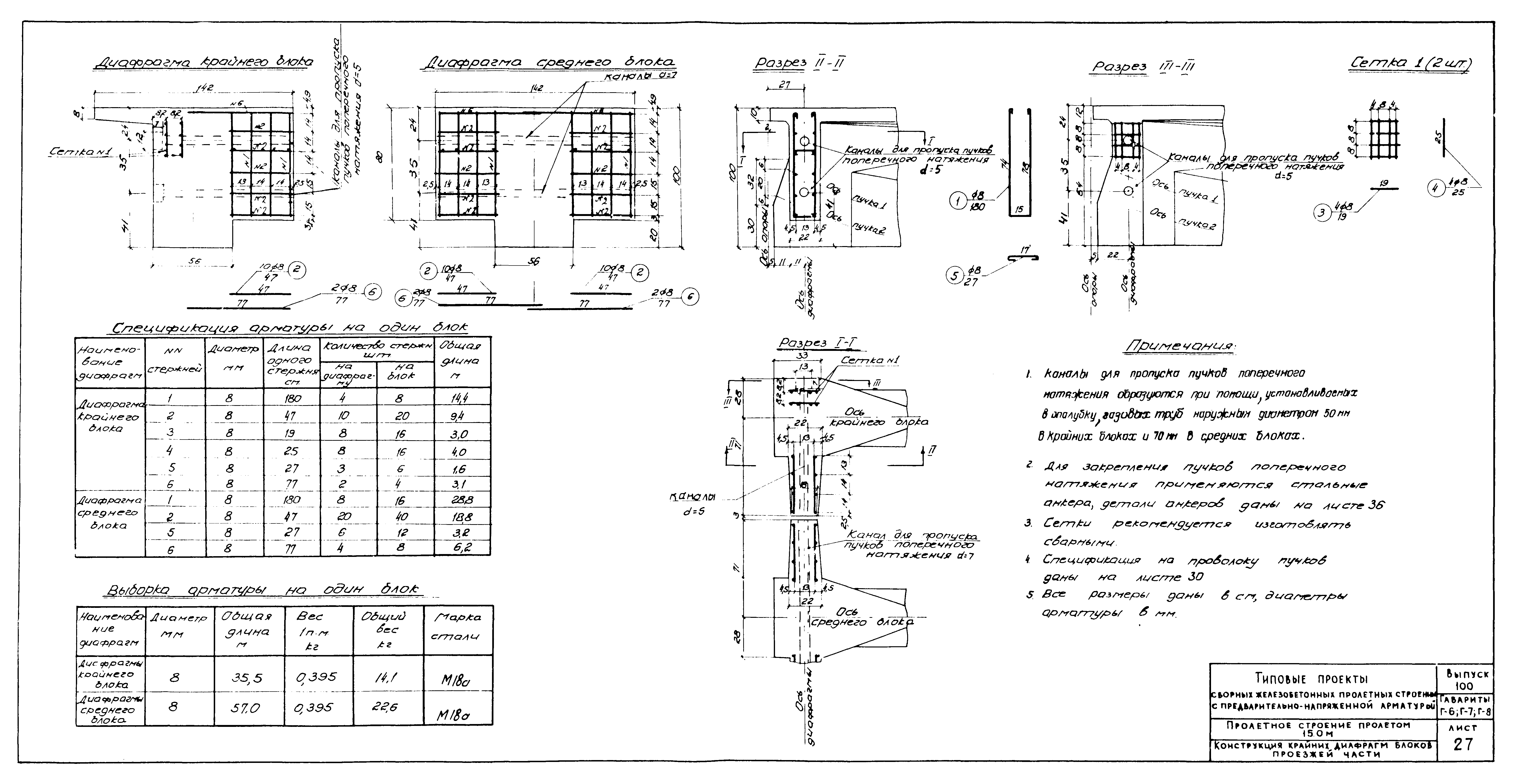
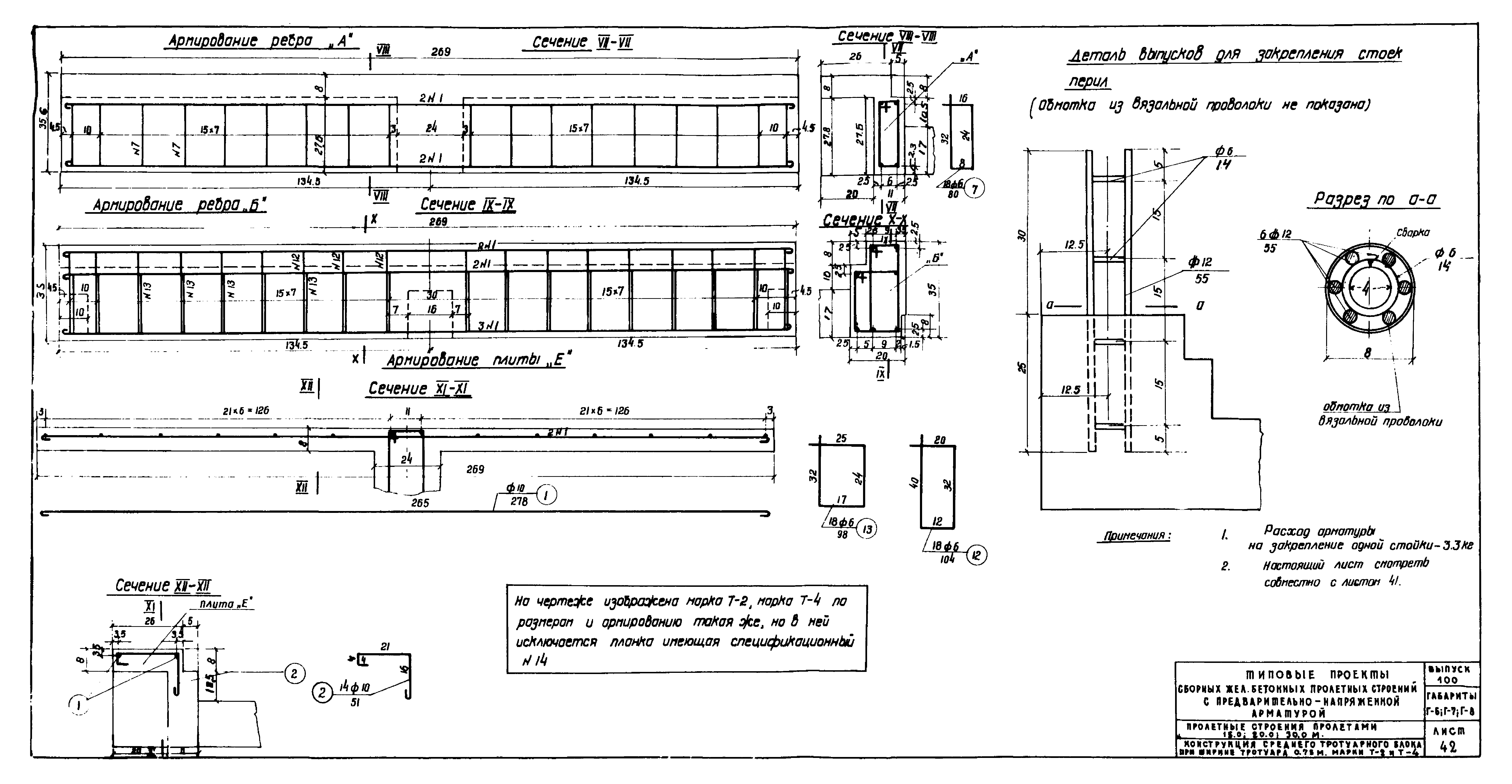
Выпуск 100. Пролетные строения железобетонные сборные с предварительно-напряженной арматурой пролетами в свету 15,0; 20,0 и 30,0 м. Нагрузки Н-13 и НГ-60; Н-18 и НК-80. Габариты Г-6, Г-7 и Г-8 с шириной тротуаров 0,75 и 1,5 мОбозначение: | Типовой проект | Статус: | действует | Название рус.: | Выпуск 100. Пролетные строения железобетонные сборные с предварительно-напряженной арматурой пролетами в свету 15,0; 20,0 и 30,0 м. Нагрузки Н-13 и НГ-60; Н-18 и НК-80. Габариты Г-6, Г-7 и Г-8 с шириной тротуаров 0,75 и 1,5 м | Дата добавления в базу: | 01.10.2014 | Дата актуализации: | 05.05.2017 | Оглавление: | Пояснения Расчетный лист к главным балкам пролетного строения пролетом 15,0 м Расчетный лист к главным балкам пролетного строения пролетом 20,0 м Расчетный лист к главным балкам пролетного строения пролетом 30,0 м Расчетный лист к диафрагмам пролетных строений пролетами 15,0; 20,0 и 30, м Таблица объемов работ пролетных строений пролетами 15,0; 20,0 и 30, м Потребность арматуры и металла на пролетные строения Таблица бетона и металла по маркам Общий вид пролетного строения пролетом 15,0 м Общий вид пролетного строения пролетом 20,0 м Общий вид пролетного строения пролетом 30,0 м Конструкция главной балки блоков проезжей части пролетного строения пролетом 15,0 м Деталь укладки гибких рукавов, образующих каналы для пропуска пучков Конструкция главной балки блоков проезжей части пролетного строения пролетом 20,0 м Деталь укладки гибких рукавов Конструкция главной балки блоков проезжей части пролетного строения пролетом 30,0 м Деталь укладки гибких рукавов Конструкция пучка Спецификация пучковой арматуры для пучков продольного натяжения Конструкция крайних диафрагм блоков проезжей части пролетного строения пролетом 15,0 м Конструкция крайних диафрагм блоков проезжей части пролетного строения пролетом 20,0 м Конструкция крайних диафрагм блоков проезжей части пролетного строения пролетом 30,0 м Спецификация пучковой арматуры для пучков поперечного натяжения крайних диафрагм Конструкция средних диафрагм блоков проезжей части пролетного строения пролетом 15,0 м Конструкция средних диафрагм блоков проезжей части пролетного строения пролетом 20,0 м Конструкция средних диафрагм блоков проезжей части пролетного строения пролетом 30,0 м Спецификация пучковой арматуры для пучков поперечного натяжения средних диафрагм Конструкция стыка диафрагм Конструкция анкеров пучковой арматуры Конструкция плиты блоков проезжей части пролетного строения пролетом 15,0 м Конструкция плиты блоков проезжей части пролетного строения пролетом 20,0 м Конструкция плиты блоков проезжей части пролетного строения пролетом 30,0 м Конструкция крайнего тротуарного блока при ширине тротуара 0,75 м (марки Т-1 и Т-3) Конструкция среднего тротуарного блока при ширине тротуара 0,75 м (марки Т-2 и Т-4) Конструкция крайнего тротуарного блока при ширине тротуара 1,5 м (марка Т-5) Конструкция среднего тротуарного блока при ширине тротуара 1,5 м (марка Т-6) Конструкция тротуарных плит Детали установки тротуарных блоков Конструкция проезжей части с асфальто-бетонным покрытием при ширине тротуара 0,75 м Конструкция проезжей части с асфальто-бетонным покрытием при ширине тротуара 1,5 м Конструкция проезжей части с цементо-бетонным покрытием при ширине тротуара 0,75 м Конструкция проезжей части с цементо-бетонным покрытием при ширине тротуара 1,5 м и швы сопряжения пролетных строений Водоотвод Конструкция опорных частей пролетного строения пролетом 15,0 м Конструкция опорных частей пролетного строения пролетом 20,0 м Конструкция опорных частей пролетного строения пролетом 30,0 м Схемы расположения захватных приспособлений | Разработан: | Союздорпроект Минтрансстроя
| Утверждён: | 12.08.1958 Главдорстрой СССР (326)
| Расположен в: |
|
                                                             
|