Информационная система
«Ёшкин Кот»

Скачать базу одним архивом
Скачать обновления
История создания базы
Карта сайта

Скачать Типовой проект 411-1-134.86 Альбом I. Общая пояснительная записка. Архитектурно-строительные решения. Конструкции железобетонные. Внутренний водопровод и канализация. Отопление и вентиляция. Электрическое освещение. Связь и сигнализация

Дата актуализации: 10.08.2017

Типовой проект 411-1-134.86

Альбом I. Общая пояснительная записка. Архитектурно-строительные решения. Конструкции железобетонные. Внутренний водопровод и канализация. Отопление и вентиляция. Электрическое освещение. Связь и сигнализация

Обозначение: Типовой проект 411-1-134.86
Обозначение англ: 411-1-134.86
Статус:не определен законодательством
Название рус.:Альбом I. Общая пояснительная записка. Архитектурно-строительные решения. Конструкции железобетонные. Внутренний водопровод и канализация. Отопление и вентиляция. Электрическое освещение. Связь и сигнализация
Дата добавления в базу:01.10.2014
Дата актуализации:05.05.2017
Дата введения:05.11.1986
Оглавление:Содержание альбома
Пояснительная записка
Схема генерального плана
Архитектурные решения
   Общие данные
   План на отм. 0.000. План на отм. 3.300. План кровли
   Разрезы
   Фасады
   План чердака. Спецификация перемычек
   Развертки стен по осям "Б" и "Г"
   Ведомость перемычек
   Планы полов. Экспликация полов
   План подвала. Фрагмент плана на отм. 0.000, разрезы, фасад для варианта с подвалом
   Планы полов при перекрытиях по деревянным балкам
Конструкции железобетонные
   Общие данные
   План фундаментов. Сечения
   План фундаментов (вариант с подвалом). Сечения
   Междуэтажные и чердачные перекрытия из сборных ж/б плит
Конструкции деревянные
   Общие данные
   Каркас деревянной стены
   Деревянная лестница
   Схема расположения лестницы
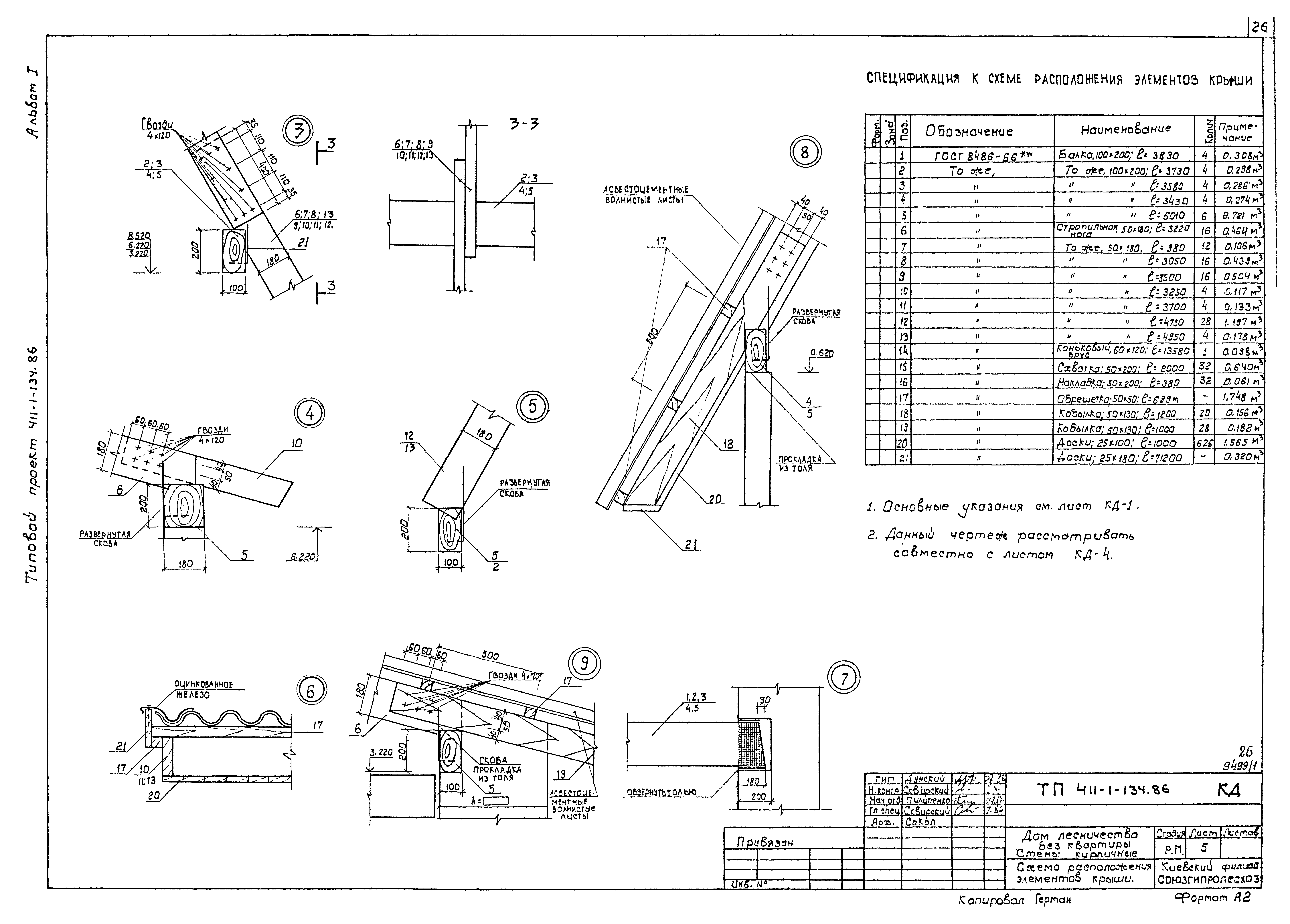
   Схема расположения элементов крыши
   Схема расположения элементов перекрытий
Отопления и вентиляция
   Общие данные
   План на отм. 0.000; 3.300. План подвала
   План чердака. Схема системы отопления, схема обвязки котла
Водопровод и канализация
   Общие данные. План систем В1, К1 на отм. 0.000. Схемы систем В1, К1
Электрическое освещение
   Общие данные
   Планы на отм. 0.000; 3.300; - 2.800. Принципиальная схема питающей сети
Связь и сигнализация
   Общие данные
   План сетей
   Схема охранной сигнализации. Схема блокировок
Разработан: Союзгипролесхоз
Утверждён:24.10.1986 Гослесхоз СССР (USSR Gosleskhoz 29)
Расположен в:Техническая документация Строительство Справочные документы Типовые строительные конструкции, изделия и узлы Общероссийский строительный каталог Промышленные предприятия, здания и сооружения Предприятия, здания и сооружения промышленности и электроэнергетики Промышленность деревообрабатывающая Здания и сооружения разные
Типовой проект 411-1-134.86Типовой проект 411-1-134.86Типовой проект 411-1-134.86Типовой проект 411-1-134.86Типовой проект 411-1-134.86Типовой проект 411-1-134.86Типовой проект 411-1-134.86Типовой проект 411-1-134.86Типовой проект 411-1-134.86Типовой проект 411-1-134.86Типовой проект 411-1-134.86Типовой проект 411-1-134.86Типовой проект 411-1-134.86Типовой проект 411-1-134.86Типовой проект 411-1-134.86Типовой проект 411-1-134.86Типовой проект 411-1-134.86Типовой проект 411-1-134.86Типовой проект 411-1-134.86Типовой проект 411-1-134.86Типовой проект 411-1-134.86Типовой проект 411-1-134.86Типовой проект 411-1-134.86Типовой проект 411-1-134.86Типовой проект 411-1-134.86Типовой проект 411-1-134.86Типовой проект 411-1-134.86Типовой проект 411-1-134.86Типовой проект 411-1-134.86Типовой проект 411-1-134.86Типовой проект 411-1-134.86Типовой проект 411-1-134.86Типовой проект 411-1-134.86Типовой проект 411-1-134.86Типовой проект 411-1-134.86Типовой проект 411-1-134.86Типовой проект 411-1-134.86

© 2013 Ёшкин Кот :-) Карта сайта