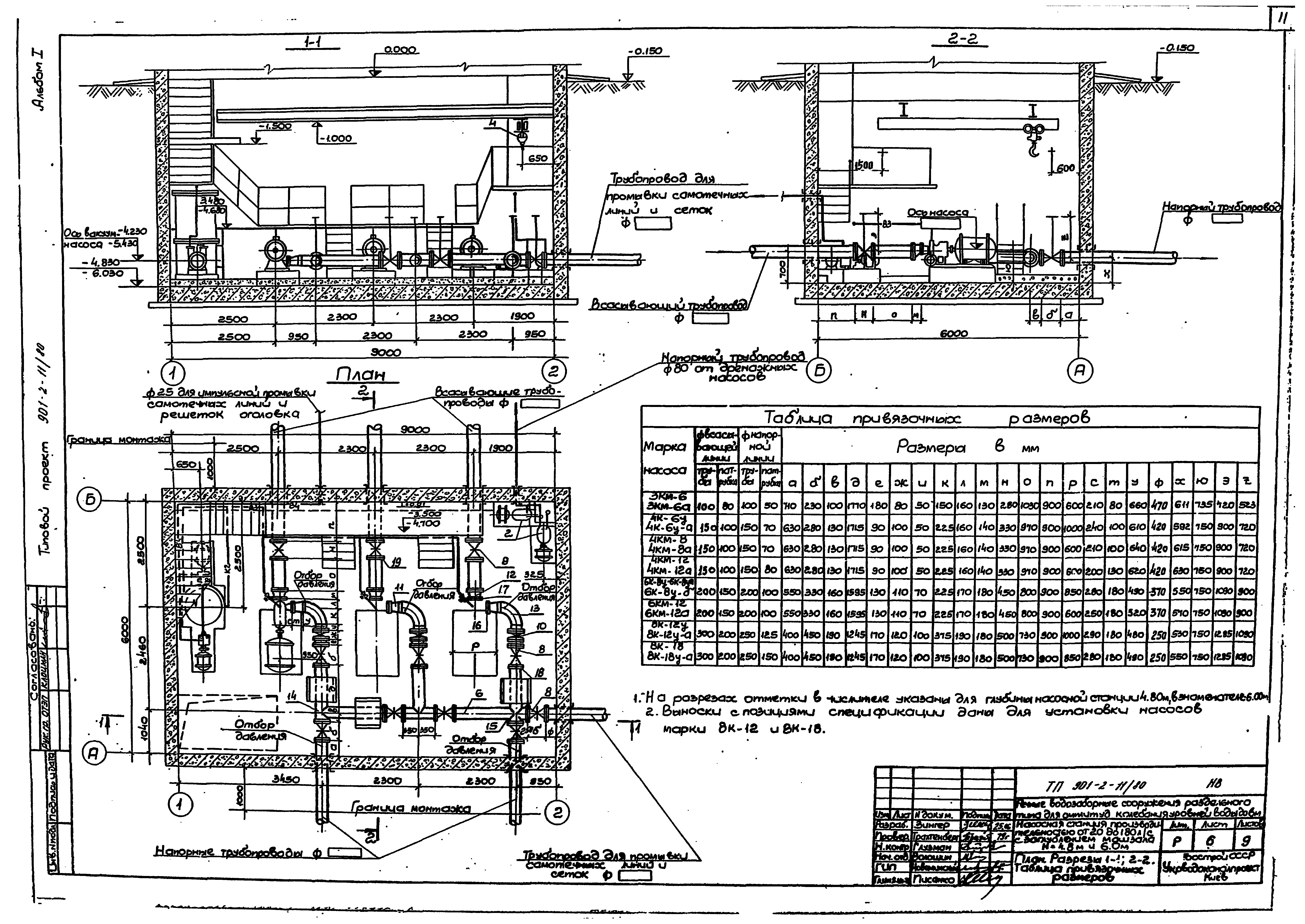
Скачать Типовой проект 901-2-11/80 Альбом I. Технологическая, архитектурно-строительная части, отопление и вентиляция, внутренние водопровод и канализацияДата актуализации: 10.08.2017 Типовой проект 901-2-11/80
Альбом I. Технологическая, архитектурно-строительная части, отопление и вентиляция, внутренние водопровод и канализацияОбозначение: | Типовой проект 901-2-11/80 | Обозначение англ: | 901-2-11/80 | Статус: | заменен | Название рус.: | Альбом I. Технологическая, архитектурно-строительная части, отопление и вентиляция, внутренние водопровод и канализация | Дата добавления в базу: | 01.10.2014 | Дата актуализации: | 05.05.2017 | Дата введения: | 01.04.1988 | Разработан: | Укрводоканалпроект
| Утверждён: | 24.07.1979 СоюзводоканалНИИпроект (SoyuzvodokanalNIIproject 40)
| Расположен в: |
| Заменяет собой: | - Типовой проект 901-2-11/71
| Чем заменён: | |
                              
|