Скачать Типовой проект 701-3-26с.88 Альбом 6. Автоматизация вентсистем, автоматизация пожаротушенияДата актуализации: 10.08.2017 Типовой проект 701-3-26с.88
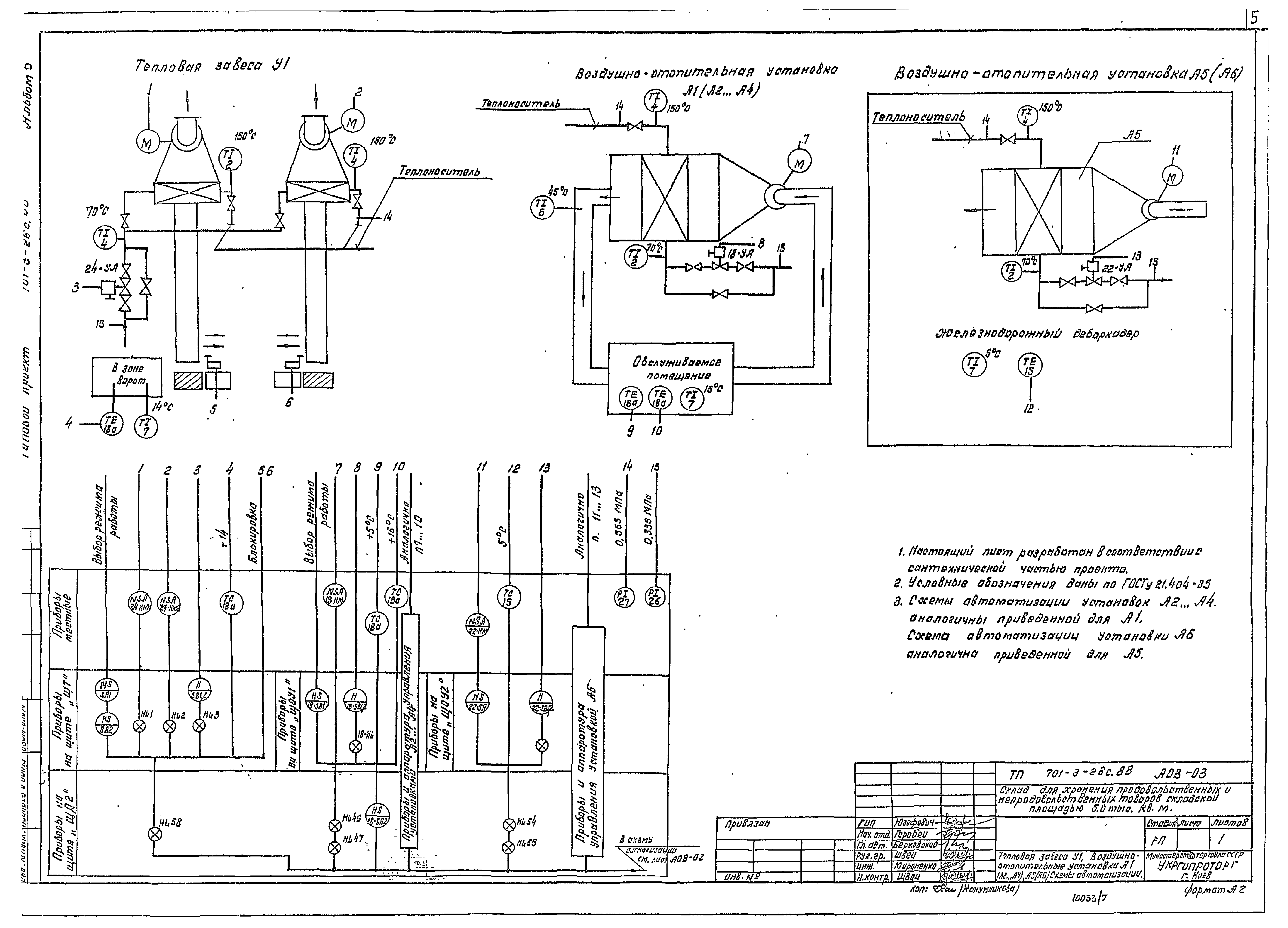
Альбом 6. Автоматизация вентсистем, автоматизация пожаротушенияОбозначение: | Типовой проект 701-3-26с.88 | Обозначение англ: | 701-3-26с.88 | Статус: | не определен законодательством | Название рус.: | Альбом 6. Автоматизация вентсистем, автоматизация пожаротушения | Дата добавления в базу: | 01.10.2014 | Дата актуализации: | 05.05.2017 | Дата введения: | 14.04.1988 | Оглавление: | Содержание альбома Чертежи основного комплекта марки АОВ Общие данные Приточная установка П1(П2…П6; П8…П12; П14…П17), П7. Схемы автоматизации Тепловая завеса У1. Воздушно-отопительные установки А1(А2…А4), А5(А6). Схемы автоматизации Вытяжные вентиляторы зарядных В15, В17. Схема автоматизации. Схема электрическая принципиальная Оборотное водоснабжение. Установка нейтрализации. Электрообогрев грунта. Схемы автоматизации Теплопункт. Схема автоматизации Приточная установка П1(П2…П6; П8…П12). Схема соединений внешних проводок Приточная установка П7. Схема соединений внешних проводок Приточная установка П14…П17. Схема соединений внешних проводок Воздушно-отопительные установки А1…А4. Схема соединений внешних проводок Воздушно-отопительные установки А5, А6. Схема соединений внешних проводок Тепловая завеса У1. Схема соединений внешних проводок Вытяжные вентиляторы зарядных В15, В17. Схема соединений внешних проводок Холодильные машины 1МКВ9-1-2; МКВ18-2-4. Схема соединений внешних проводок Холодильная машина 1МКВ6-1-2. Схема соединений внешних проводок Электрообогрев грунта охлаждаемых камер. Схема соединений внешних проводок Оборотное водоснабжение. Схема соединений внешних проводок Установка нейтрализации. Схема соединений внешних проводок Теплопункт. Схема соединений внешних проводок Вентсистемы. Схема соединений внешних проводок План расположения Приточная установка П1(П2…П6; П8…П12). Схема электрическая принципиальная Приточная установка П7. Схема электрическая принципиальная Приточная установка П14(П15…П17). Схема электрическая принципиальная Воздушно-отопительные установки А1…А4. Схема электрическая принципиальная Воздушно-отопительные установки А5, А6. Схема электрическая принципиальная Тепловая завеса У1. Схема электрическая принципиальная Сигнализация. Схема электрическая принципиальная Электрообогрев грунтоохлаждаемых камер. Схема электрическая принципиальная Оборотное водоснабжение. Схема электрическая принципиальная Установка нейтрализации. Схема электрическая принципиальная Теплопункт. Схема электрическая принципиальная Опросный лист № 1 Опросный лист № 2 Чертежи основного комплекта марки АП Общие данные Спринклерное пенное пожаротушение. Схема автоматизации Спринклерное пенное пожаротушение. Схема соединений внешних проводок Спринклерное пенное пожаротушение. План расположения Спринклерное пенное пожаротушение. Схема электрическая принципиальная | Разработан: | Укргипроторг
| Утверждён: | 04.04.1988 Министерство торговли СССР (USSR Ministry of Commerce 1)
| Расположен в: |
|
                                                                  
|