Скачать Типовой проект 701-3-26с.88 Альбом 3. Часть 2. Конструкции железобетонные, металлическиеДата актуализации: 10.08.2017 Типовой проект 701-3-26с.88
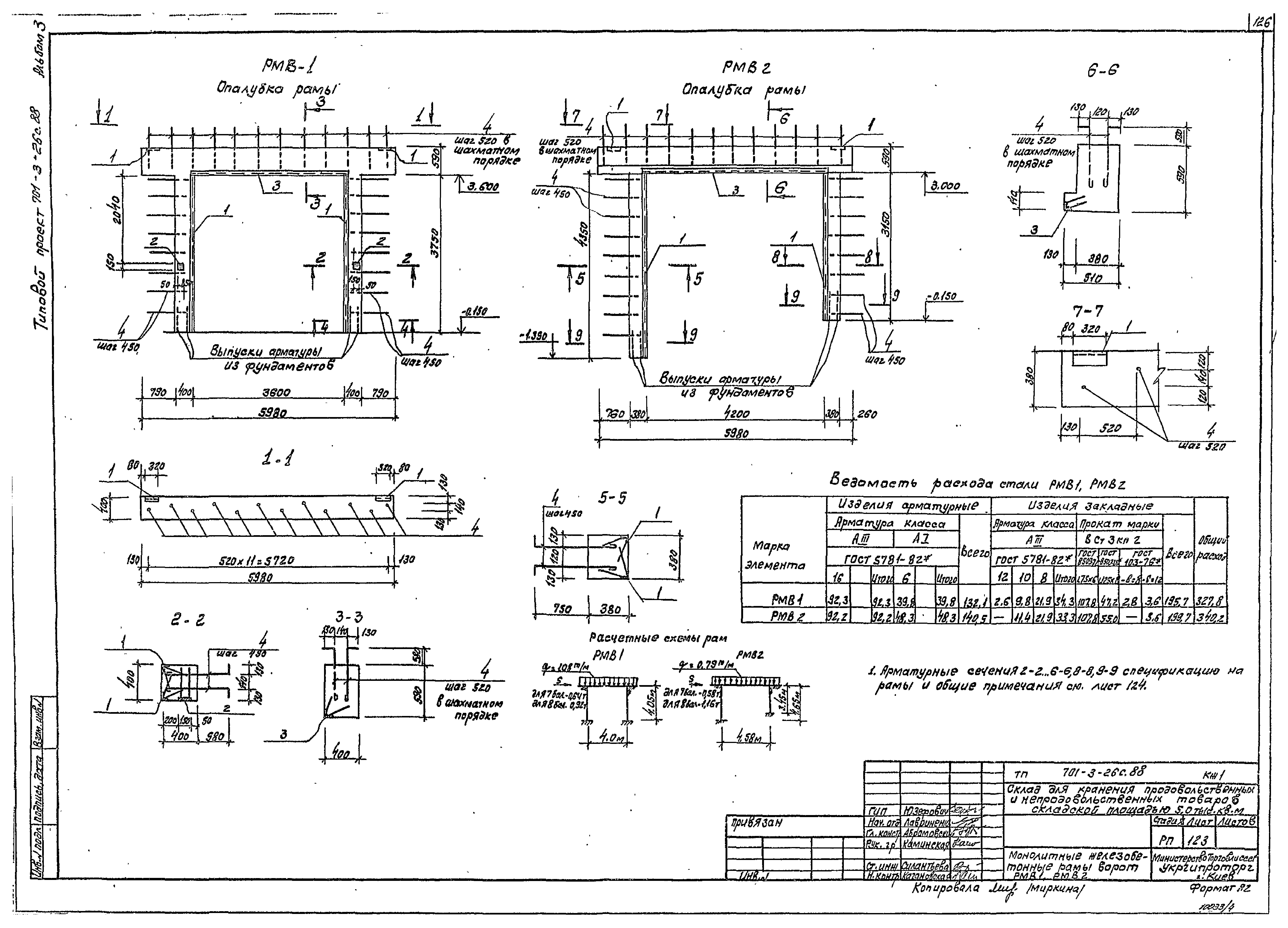
Альбом 3. Часть 2. Конструкции железобетонные, металлическиеОбозначение: | Типовой проект 701-3-26с.88 | Обозначение англ: | 701-3-26с.88 | Статус: | не определен законодательством | Название рус.: | Альбом 3. Часть 2. Конструкции железобетонные, металлические | Дата добавления в базу: | 01.10.2014 | Дата актуализации: | 05.05.2017 | Дата введения: | 14.04.1988 | Оглавление: | Чертежи основного комплекта марки КЖ Схемы расположения элементов лестниц. Сечения 1-1, 2-2 Сечения 3-3, 5-5, 7-7. Спецификация к схемам расположения элементов лестниц Схема расположения плит покрытия между осями 1…21 и А…Л Схема расположения плит покрытия между осями 1…21 и Л…Щ Схема расположения плит покрытия между осями 22…32 и Л…Щ Схема расположения плит покрытия между осями 22…32 и А…Щ Спецификация к схемам расположения плит покрытия для районов с сейсмичностью 7 и 8 баллов Опоры под градирни Схемы расположения плит перекрытия и покрытия между осями 13..21; П…Ф Узел А, сечения 2-2, 3-3. Спецификация к схемам расположения плит перекрытия и покрытия Схемы расположения элементов площадок между осями 2 - 3; 5 - 7; 11 - 12; 24 - 26 и у оси 21/Г Схемы расположения элементов площадок между осями 31 - 32; 24 - 26; 26 - 28; 27 - 28 Перекрытия площадок. Сечения. Узлы Спецификация к схемам расположения элементов площадок. Ведомость расхода стали на элемент Монолитный участок Ум1. Спецификация к сечениям 4-4…6-6; 10-10, 11-11. Ум1 Схемы расположения панелей стен по осям Г, 1, 29 Схемы расположения панелей стен по осям Т, Щ, У, Ч, 8, 32 Схемы расположения панелей перегородок по осям И, М, Н. Узлы 1, 2 Схемы расположения панелей стен по осям А, 10, 25 и панелей перегородок по осям Д, И, Н, 11 Спецификация к схемам расположения панелей стен и перегородок Схемы расположения стеновых панелей по осям П, Ф, 13, 21. Схемы расположения узлов крепления № 1, 2 Схема расположения стеновых панелей по оси 15. Схемы узлов крепления № 3…№ 5. Спецификация к схемам расположения стеновых панелей Схемы расположения антисейсмических поясов и сердечников у оси Г Схемы расположения антисейсмических поясов, сердечников и рам у осей Т, 10, 25 Схемы расположения монолитных антисейсмических поясов и сердечников у осей 32, Ф Схемы расположения антисейсмических поясов, сердечников и рам у осей Н, 11, 26, 24, 29, Д - Е Схемы расположения монолитных рам дверей, сечения 22-22…24-24 Монолитные антисейсмические пояса и сердечники. Сечения 1-1…21-21 Монолитные антисейсмические пояса и сердечники. Узлы 1…7 Монолитные антисейсмические пояса и сердечники. Узлы 8…14 Спецификации к схемам расположения монолитных антисейсмических поясов, сердечников и рам Схема расположения узлов крепления кирпичных перегородок. Спецификация Узлы крепления кирпичных перегородок 1…8, сечение А-А Расчетные схемы монолитных рам РМ1…РМ17 Монолитные рамы РМ1, РМ2 Монолитные рамы РМ3, РМ4 Монолитные рамы РМ5, РМ7 Монолитные рамы РМ6, РМ8…РМ10 Монолитные рамы РМ11…РМ13 Монолитные рамы РМ14, РМ15 Монолитные рамы РМ16, РМ7 Спецификация на монолитные рамы РМ1…РМ5 Спецификация на монолитные рамы РМ6…РМ12 Спецификация на монолитные рамы РМ13…РМ17 Монолитные рамы РМ1…РМ17. Ведомость деталей. Ведомость расхода стали на элемент Монолитные железобетонные рамы ворот РМВ1, РМВ2 Армирование монолитных рам ворот РМВ1, РМВ2. Сечения 2-2…9-9 Монолитные железобетонные рамы дверей РМД1…РМД3; РМД5; РМД6 Монолитная рама дверей РМД4. Спецификация на РМД1…РМД6 Спецификация на монолитные рамы РМД1…РМД6. Ведомость расхода стали Армирование кирпичных стен шахты лифта Монолитные участки УМ2, УМ3 Монолитные участки УМ4, УМ5 Монолитный участок УМ6 Спецификация на монолитные участки УМ2…УМ5 Спецификация на монолитный участок УМ6. Ведомость деталей. Ведомость расхода стали Схема расположения подпольных каналов, приямков, фундаментов под оборудование между осями 1…26; Г…Т Схема расположения подпольных каналов, приямков, фундаментов под оборудование между осями 26…32 и Г…Т; 10…26 и Т…Ш Сечения каналов 3-3…11-11 Сечения каналов 12-12, 13-13. Приямки ПР1, ПР2. Узел 1 Фундаменты под оборудование ФО1…ФО4; ФО6… ФО8 Фундаменты под оборудование ФО9…ФО15 Колодец нейтрализации КН-1 Смотровая яма Спецификация к схеме расположения подпольных каналов, приямков, фундаментов под оборудование Схема расположения подвесок между осями 1…22 и А…Л Схема расположения подвесок между осями 1…22 и Л…Щ Схема расположения подвесок между осями 22…32 и Л…Щ Схема расположения подвесок между осями 22…32 и А…Л Схема расположения элементов крепления труб Сечения 1-1…13-13. Спецификация к схеме расположения подвесок Схема расположения колодцев ливневой канализации Чертежи основного комплекта марки КМ Общие данные Ведомость металлоконструкций по видам профилей. Схема расположения монорельсов Схемы расположения подкрановых путей и монорельсов Схема расположения металлической площадки под бункер Схема расположения металлической площадки для технического обслуживания крана Схемы расположения металлических лестниц, площадок и ограждений Схемы расположения металлических лестниц, площадок, ограждений, опор под циклон | Разработан: | Укргипроторг
| Утверждён: | 04.04.1988 Министерство торговли СССР (USSR Ministry of Commerce 1)
| Расположен в: |
|
                                                                               
|