Скачать Типовой проект 701-3-26с.88 Альбом 3. Часть 1. Конструкции железобетонные, металлическиеДата актуализации: 10.08.2017 Типовой проект 701-3-26с.88
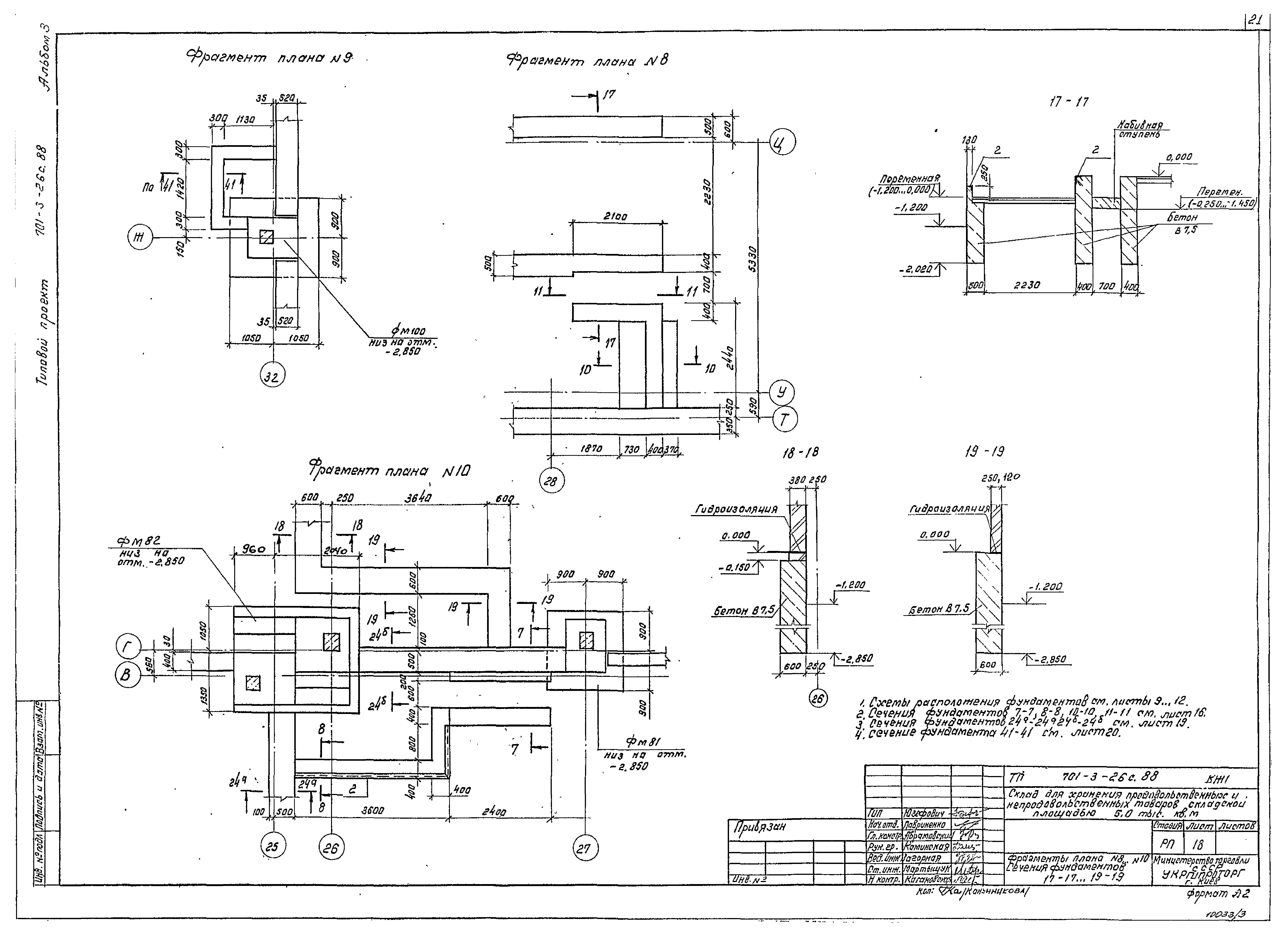
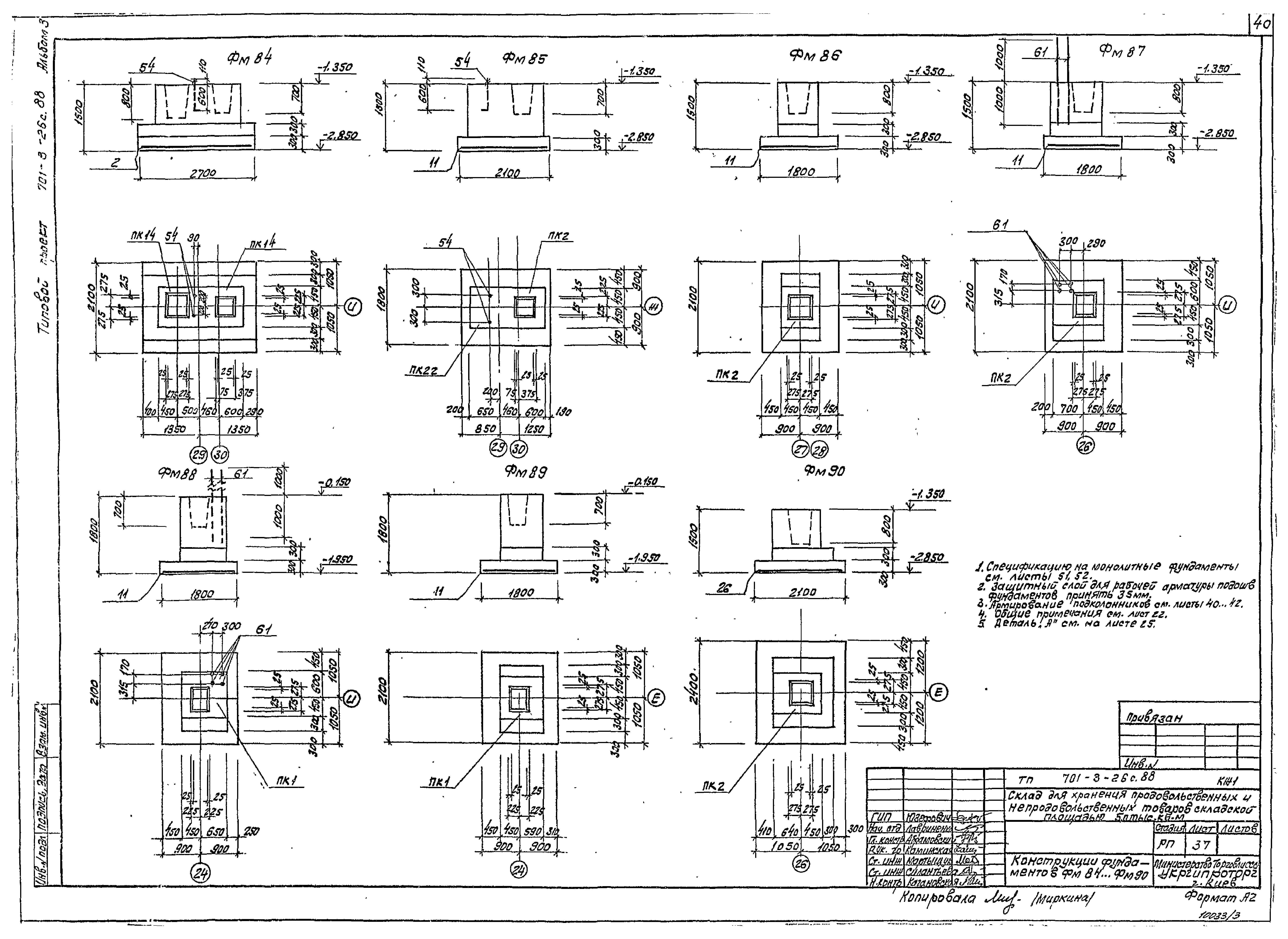
Альбом 3. Часть 1. Конструкции железобетонные, металлическиеОбозначение: | Типовой проект 701-3-26с.88 | Обозначение англ: | 701-3-26с.88 | Статус: | не определен законодательством | Название рус.: | Альбом 3. Часть 1. Конструкции железобетонные, металлические | Дата добавления в базу: | 01.10.2014 | Дата актуализации: | 05.05.2017 | Дата введения: | 14.04.1988 | Оглавление: | Содержание альбома Общие данные Схема расположения фундаментов между осями 1…22; А…Л Схема расположения фундаментов между осями 1…22; Л…Щ Схема расположения фундаментов между осями 20…32; Л…Ш Схема расположения фундаментов между осями 20…32; А…Л Схема расположения отверстий и выпусков из ленточных фундаментов между осями 10…26 и Н…Ш; 5…28 и А…Д Схема расположения отверстий и выпусков из ленточных фундаментов между осями 1…3 и Д…Т; 30…32 и И…Т; 24…26 и Е…Ж Фрагмент плана № 1. Сечения фундаментов 1-1…6-6. Узел 3 Фрагменты плана № 2…№ 4. Сечения фундаментов 7-7…12-12 Фрагменты плана № 5…№ 7. Сечения фундаментов 13-13…16-16 Фрагменты плана № 8…№ 10. Сечения фундаментов 17-17…19-19 Сечения фундаментов 20-20…35-35 Сечения фундаментов 36-36…48-48 Сечения фундаментов 49-49…62-62 Узлы фундаментов 1, 2, 4, 5. Узел крепления фундаментной балки. Общие указания Спецификация к схеме расположения фундаментов Конструкции фундаментов Фм1…Фм6. Деталь А Конструкции фундаментов Фм7…Фм13 Конструкции фундаментов Фм14…Фм20, Фм91, Фм92, Фм57 Конструкции фундаментов Фм21…Фм27, Фм93 Конструкции фундаментов Фм28…Фм34, Фм56 Конструкции фундаментов Фм35…Фм40 Конструкции фундаментов Фм41…Фм46 Конструкции фундаментов Фм47…Фм53 Конструкции фундаментов Фм54, Фм56, Фм58…Фм62 Конструкции фундаментов Фм63…Фм69 Конструкции фундаментов Фм70…Фм76 Конструкции фундаментов Фм77…Фм83 Конструкции фундаментов Фм84…Фм90 Конструкции фундаментов Фм94…Фм100 Конструкции фундаментов Фм101…Фм107 Конструкции фундаментов Фм108…Фм111. Армирование подколонников ПК1…ПК4 Армирование подколонников ПК5…ПК14 Армирование подколонников ПК15…ПК23 Фундаменты Фм1…Фм10. Спецификация Фундаменты Фм11…Фм19. Спецификация Фундаменты Фм20…Фм29, Фм92, Фм93. Спецификация Фундаменты Фм29…Фм38, Фм56. Спецификация Фундаменты Фм39…Фм49. Спецификация Фундаменты Фм50…Фм55, Фм57…Фм59, Фм111. Спецификация Фундаменты Фм60…Фм67. Спецификация Фундаменты Фм68…Фм77. Спецификация Фундаменты Фм78…Фм85. Спецификация Фундаменты Фм86…Фм91, Фм94…Фм97. Спецификация Фундаменты Фм98…Фм110. Спецификация Ведомость расхода стали на один фундамент Схема расположения элементов каркаса между осями 1…21; А…Л для районов с сейсмичностью 8 баллов Схема расположения элементов каркаса между осями 1…21; Л…Щ для районов с сейсмичностью 8 баллов Схема расположения элементов каркаса между осями 22…32; Л…Щ для районов с сейсмичностью 8 баллов Схема расположения элементов каркаса между осями 22…32; А…Л для районов с сейсмичностью 8 баллов Схема расположения колонн и балок между осями 1…21; А…Л для районов с сейсмичностью 7 баллов Схема расположения колонн и балок между осями 1…21; Л…Щ для районов с сейсмичностью 7 баллов Схема расположения колонн и балок между осями 22…32; Л…Щ для районов с сейсмичностью 7 баллов Схема расположения колонн и балок между осями 22…32; А…Л для районов с сейсмичностью 7 баллов Каркас. Сечения 1-1…3-3 Каркас. Сечения 4-4…6-6 Каркас. Сечения 7-7…13-13 Каркас. Сечения 14-14…24-24; 33-33 Каркас. Сечения 25-25…32-32 Спецификация к схемам расположения элементов каркаса для районов сейсмичностью 8 баллов Спецификация к схемам расположения элементов каркаса для районов сейсмичностью 7 баллов Спецификация к схемам расположения элементов каркаса Схемы расположения колонн и ригелей I…IV этажей в осях 13…21; П…Ф Схема расположения колонн и ригелей V этажа в осях 13…15; П…Ф. Сечения 1-1…4-4 Сечения 5-5, 6-6, 7-7 к схемам расположения колонн и ригелей в осях 13…21; П…Ф Спецификация к схемам расположения колонн и ригелей в осях 13…21; П…Ф. Общие примечания | Разработан: | Укргипроторг
| Утверждён: | 04.04.1988 Министерство торговли СССР (USSR Ministry of Commerce 1)
| Расположен в: |
|
                                                                              
|