Информационная система
«Ёшкин Кот»

Скачать базу одним архивом
Скачать обновления
История создания базы
Карта сайта

Скачать Типовой проект 411-2-190.88 Альбом 7. Чертежи нестандартизированного оборудования

Дата актуализации: 10.08.2017

Типовой проект 411-2-190.88

Альбом 7. Чертежи нестандартизированного оборудования

Обозначение: Типовой проект 411-2-190.88
Обозначение англ: 411-2-190.88
Статус:не определен законодательством
Название рус.:Альбом 7. Чертежи нестандартизированного оборудования
Дата добавления в базу:01.10.2014
Дата актуализации:05.05.2017
Дата введения:25.11.1988
Оглавление:НО8.01.00.000 Стол роликовый
НО8.01.01.000 Секция откидная
НО8.01.02.000 Балка
НО8.01.00.000СБ Стол роликовый. Сборочный чертеж
НО8.01.01.000СБ Секция откидная. Сборочный чертеж
НО8.01.01.200СБ Стойка. Сборочный чертеж
НО8.01.01.201 Ухо
НО8.01.01.100 Секция
НО8.01.01.200 Стойка
НО8.10.02.000СБ Стойка. Сборочный чертеж
НО8.01.01.100СБ Секция. Сборочный чертеж
НО8.01.01.000 Секция откидная
НО8.01.01.101 Опора
НО8.01.01.102 Опора
НО8.01.01.103 Раскос
НО8.01.02.000СБ Балка. Сборочный чертеж
НО8.01.02.000 Балка
НО8.03.02.000 Станина
НО8.02.01.000 Рама
НО8.02.01.100 Рама
НО8.02.01.000СБ Рама. Сборочный чертеж
НО8.02.01.001 Упор
НО8.02.01.002 Прокладка
НО8.02.01.100СБ Рама. Сборочный чертеж
НО8.02.01.200 Рама
НО8.02.01.300 Рама
НО8.02.01.200СБ Рама. Сборочный чертеж
НО8.02.01.300СБ Рама. Сборочный чертеж
НО8.02.01.400 Рама
НО8.02.01.500 Стойка
НО8.02.01.600 Стойка
НО8.02.01.400СБ Рама. Сборочный чертеж
НО8.02.01.500СБ Стойка. Сборочный чертеж
НО8.02.01.101 Связь
НО8.02.01.102 Косынка
НО8.02.01.501 Раскос
НО8.02.01.502 Ребро
НО8.02.01.600СБ Стойка. Сборочный чертеж
НО8.05.00.001 Опора
НО8.03.01.000 Рама
НО8.03.03.000 Рама привода
НО8.03.01.000СБ Рама. Сборочный чертеж
НО8.03.02.003 Раскос
НО8.03.03.001 Косынка
НО8.03.02.000СБ Станина. Сборочный чертеж
НО8.03.03.000СБ Рама привода. Сборочный чертеж
НО8.01.01.108 Проушина
НО8.03.02.001 Связь
НО8.03.02.002 Связь
НО8.04.00.001 Опора
НО8.04.01.000СБ Рама привода. Сборочный чертеж
НО8.04.02.000СБ Рама. Сборочный чертеж
НО8.04.02.000 Рама
НО8.05.01.004 Стенка
НО8.06.01.000 Станина
НО8.05.01.005 Опора
НО8.05.01.006 Связь
НО8.05.01.000СБ Рама оборотного устройства. Сборочный чертеж
НО8.05.01.001 Направляющая
НО8.05.01.002 Косынка
НО8.04.01.000 Рама привода
НО8.05.01.000 Рама оборотного устройства
НО8.05.01.100 Опора
НО8.05.01.100СБ Опора. Сборочный чертеж
НО8.05.01.101 Балка
НО8.05.01.003 Балка
НО8.06.03.001 Платик
НО8.06.01.000СБ Станина. Сборочный чертеж
НО8.06.01.001 Опора
НО8.06.01.004 Связь
НО8.06.02.000 Рама
НО8.06.03.000 Станина наклонная
НО8.06.01.003 Стойка
НО8.06.02.000СБ Рама. Сборочный чертеж
НО8.06.02.001 Косынка
НО8.06.02.002 Косынка
НО8.06.02.003 Стойка
НО8.06.02.004 Балка
НО8.06.03.000СБ Станина наклонная. Сборочный чертеж
НО8.06.04.000СБ Рама привода. Сборочный чертеж
НО8.03.03.002 Ребро
НО8.03.03.003 Распор
НО8.06.04.001 Балка
НО8.06.04.002 Ребро
НО8.06.04.000 Рама привода
НО8.07.00.000 Рама под приводную станцию лесотранспортера БА-3М (правый)
НО8.07.00.000СБ Рама под приводную станцию лесотранспортера БА-3М (правый). Сборочный чертеж
НО8.09.00.000СБ Питатель цепной. Сборочный чертеж
НО8.09.00.000 Питатель цепной
НО8.09.01.000 Рама
НО8.09.01.000СБ Рама. Сборочный чертеж
НО8.09.00.001 Звездочка
НО8.09.01.005 Распор
НО8.09.01.001 Кронштейн
НО8.09.01.002 Опора
НО8.09.01.003 Распор
НО8.09.01.004 Стойка
НО8.09.01.000 Станина
НО8.09.02.000 Станция натяжная
НО8.09.02.100 Рама
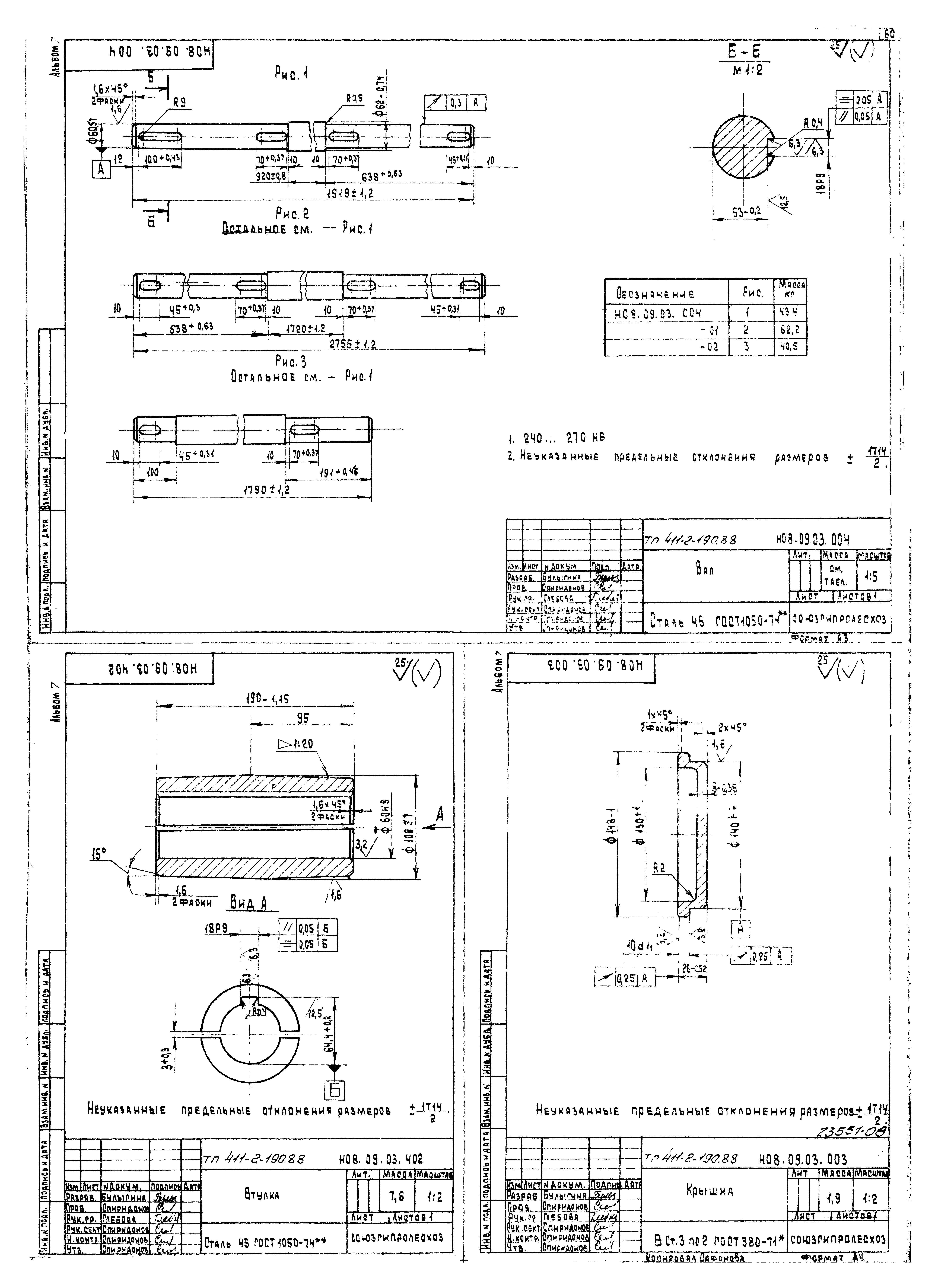
НО8.09.03.300 Корпус подшипника
НО8.09.02.000СБ Станция натяжная. Сборочный чертеж
НО8.09.01.006 Ребро
НО8.09.01.036 Кронштейн
НО8.09.02.004 Винт
НО8.09.02.100СБ Рама. Сборочный чертеж
НО8.09.02.001 Звездочка
НО8.09.02.002 Ось
НО8.09.02.003 Крышка
НО8.09.03.000 Вал приводной
НО8.09.03.100 Звездочка
НО8.09.03.200 Звездочка
НО8.09.03.000СБ Вал приводной. Сборочный чертеж
НО8.09.03.003 Крышка
НО8.09.03.004 Вал
НО8.09.03.402 Втулка
НО8.09.03.100СБ Звездочка. Сборочный чертеж
НО8.09.03.101 Венец
НО8.09.03.102 Ступица
НО8.09.02.005 Гайка
НО8.09.03.002 Крышка
НО8.09.03.200СБ Звездочка. Сборочный чертеж
НО8.09.03.300СБ Корпус подшипника. Сборочный чертеж
НО8.09.03.001 Кольцо
НО8.09.03.303 Основание
НО8.09.03.301 Крышка
НО8.09.03.302 Корпус
НО8.09.00.000 Питатель цепной
НО8.09.00.002 Упор
НО8.09.00.006 Платик
НО8.09.03.400 Муфта
НО8.09.00.003 Планка
НО8.09.01.037
НО8.09.03.400СБ Муфта. Сборочный чертеж
НО8.09.03.401 Бобышка
НО8.10.01.000СБ Рама под привод. Сборочный чертеж
НО8.11.01.000СБ Рама под привод. Сборочный чертеж
Разработан: Союзгипролесхоз
Утверждён:21.11.1988 Госкомлес СССР (USSR Goskomles 31)
Издан: ЦИТП Госстроя СССР (CITP, Gosstroy (USSR) 1989 г. )
Расположен в:Техническая документация Строительство Справочные документы Типовые строительные конструкции, изделия и узлы Общероссийский строительный каталог Промышленные предприятия, здания и сооружения Предприятия, здания и сооружения промышленности и электроэнергетики Промышленность деревообрабатывающая Здания общего назначения
Типовой проект 411-2-190.88Типовой проект 411-2-190.88Типовой проект 411-2-190.88Типовой проект 411-2-190.88Типовой проект 411-2-190.88Типовой проект 411-2-190.88Типовой проект 411-2-190.88Типовой проект 411-2-190.88Типовой проект 411-2-190.88Типовой проект 411-2-190.88Типовой проект 411-2-190.88Типовой проект 411-2-190.88Типовой проект 411-2-190.88Типовой проект 411-2-190.88Типовой проект 411-2-190.88Типовой проект 411-2-190.88Типовой проект 411-2-190.88Типовой проект 411-2-190.88Типовой проект 411-2-190.88Типовой проект 411-2-190.88Типовой проект 411-2-190.88Типовой проект 411-2-190.88Типовой проект 411-2-190.88Типовой проект 411-2-190.88Типовой проект 411-2-190.88Типовой проект 411-2-190.88Типовой проект 411-2-190.88Типовой проект 411-2-190.88Типовой проект 411-2-190.88Типовой проект 411-2-190.88Типовой проект 411-2-190.88Типовой проект 411-2-190.88Типовой проект 411-2-190.88Типовой проект 411-2-190.88Типовой проект 411-2-190.88Типовой проект 411-2-190.88Типовой проект 411-2-190.88Типовой проект 411-2-190.88Типовой проект 411-2-190.88Типовой проект 411-2-190.88Типовой проект 411-2-190.88Типовой проект 411-2-190.88Типовой проект 411-2-190.88Типовой проект 411-2-190.88Типовой проект 411-2-190.88Типовой проект 411-2-190.88Типовой проект 411-2-190.88Типовой проект 411-2-190.88Типовой проект 411-2-190.88Типовой проект 411-2-190.88Типовой проект 411-2-190.88Типовой проект 411-2-190.88Типовой проект 411-2-190.88Типовой проект 411-2-190.88Типовой проект 411-2-190.88Типовой проект 411-2-190.88Типовой проект 411-2-190.88Типовой проект 411-2-190.88Типовой проект 411-2-190.88Типовой проект 411-2-190.88Типовой проект 411-2-190.88Типовой проект 411-2-190.88Типовой проект 411-2-190.88Типовой проект 411-2-190.88Типовой проект 411-2-190.88Типовой проект 411-2-190.88Типовой проект 411-2-190.88Типовой проект 411-2-190.88Типовой проект 411-2-190.88

© 2013 Ёшкин Кот :-) Карта сайта