Информационная система
«Ёшкин Кот»

Скачать базу одним архивом
Скачать обновления
История создания базы
Карта сайта

Скачать Типовой проект 411-2-190.88 Альбом 1. Общая пояснительная записка. Технологические решения

Дата актуализации: 10.08.2017

Типовой проект 411-2-190.88

Альбом 1. Общая пояснительная записка. Технологические решения

Обозначение: Типовой проект 411-2-190.88
Обозначение англ: 411-2-190.88
Статус:не определен законодательством
Название рус.:Альбом 1. Общая пояснительная записка. Технологические решения
Дата добавления в базу:01.10.2014
Дата актуализации:05.05.2017
Дата введения:25.11.1988
Оглавление:Содержание альбома
Общая пояснительная записка
Технологические решения
   Общие данные
   План расположения технологического оборудования в осях 1 - 7
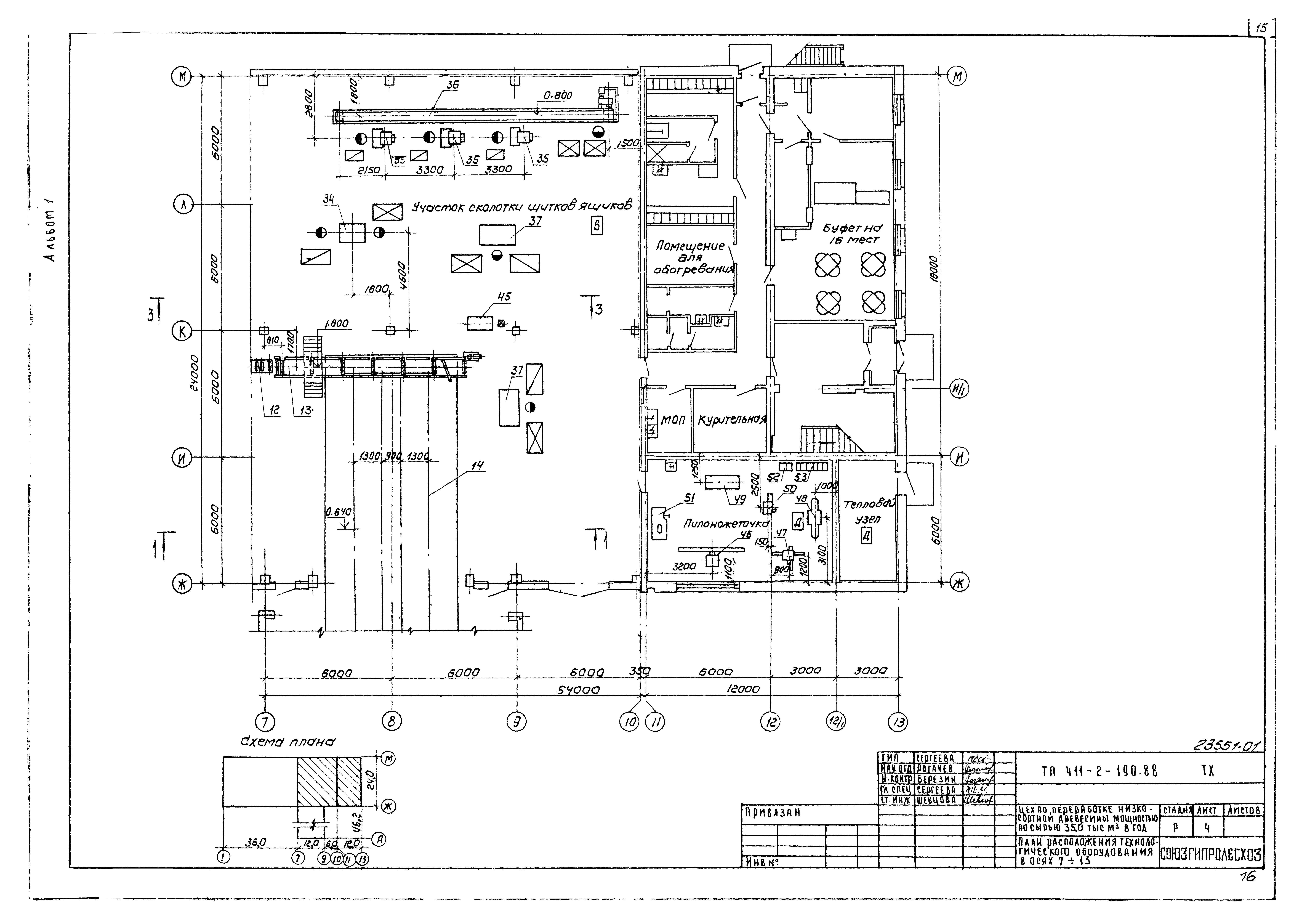
   План расположения технологического оборудования в осях 7 - 13
   План расположения технологического оборудования в осях 1 - 6 на отм. 2.200
   Сортплощадка. План расположения оборудования
   Разрезы 1-1, 2-2
   Разрезы 3-3, 4-4
   Разрезы 5-5, 6-6, 7-7
   Перечень технологического оборудования
   Расположение оборудования буфета и спецификация
   Транспортер опилочный цепной ТОЦ16-5, L = 7,2 м. Общий вид
   Транспортер опилочный цепной ТОЦ16-5, L = 7,2 м. Сечения. Виды
   Транспортер опилочный цепной ТОЦ16-5, L = 38. Общий вид
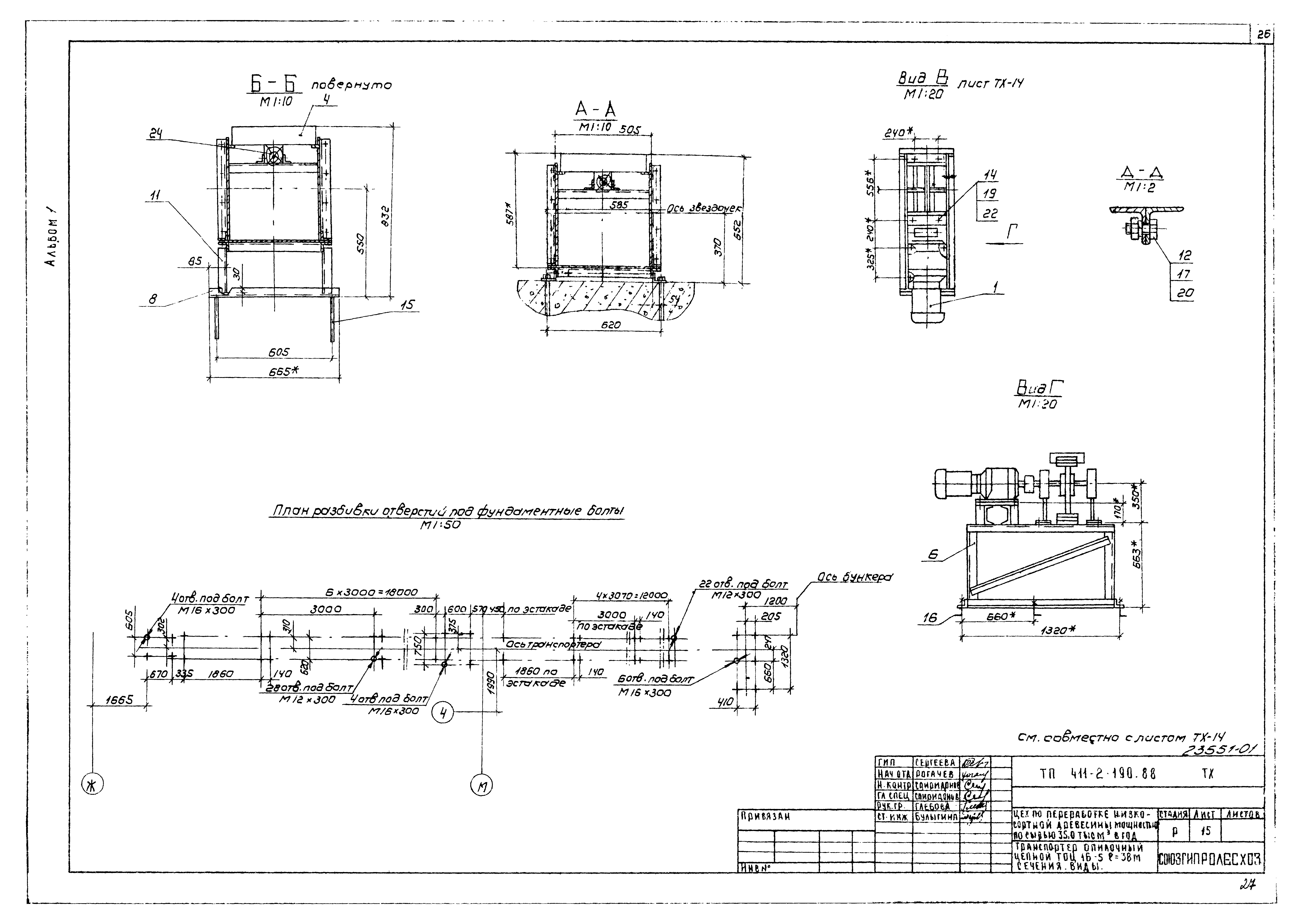
   Транспортер опилочный цепной ТОЦ16-5, L = 38. Сечения. Виды
   Транспортер опилочный цепной ТОЦ16-5, L = 38. Узлы. Вид
   Конвейер ленточный 4025-40. Общий вид. Спецификация. L = 13 м
   Конвейер ленточный 4025-40. L = 13 м. Разрезы. Сечения. Вид
   Конвейер ленточный 5040-60. Общий вид. Спецификация. L = 24,2 м
   Конвейер ленточный 5040-60. L = 24,2 м. Сечения. Виды
   Транспортер цепной поперечный ТЦП-20. Общий вид. Спецификация
   Транспортер цепной поперечный ТЦП-20. Вид. Сечения
   Конвейер роликовый ОРО3. Общий вид
   Конвейер роликовый ОРО3. Виды. Сечения
   Конвейер роликовый ОРО5. Общий вид
Разработан: Союзгипролесхоз
Утверждён:21.11.1988 Госкомлес СССР (USSR Goskomles 31)
Издан: ЦИТП Госстроя СССР (CITP, Gosstroy (USSR) 1989 г. )
Расположен в:Техническая документация Строительство Справочные документы Типовые строительные конструкции, изделия и узлы Общероссийский строительный каталог Промышленные предприятия, здания и сооружения Предприятия, здания и сооружения промышленности и электроэнергетики Промышленность деревообрабатывающая Здания общего назначения
Типовой проект 411-2-190.88Типовой проект 411-2-190.88Типовой проект 411-2-190.88Типовой проект 411-2-190.88Типовой проект 411-2-190.88Типовой проект 411-2-190.88Типовой проект 411-2-190.88Типовой проект 411-2-190.88Типовой проект 411-2-190.88Типовой проект 411-2-190.88Типовой проект 411-2-190.88Типовой проект 411-2-190.88Типовой проект 411-2-190.88Типовой проект 411-2-190.88Типовой проект 411-2-190.88Типовой проект 411-2-190.88Типовой проект 411-2-190.88Типовой проект 411-2-190.88Типовой проект 411-2-190.88Типовой проект 411-2-190.88Типовой проект 411-2-190.88Типовой проект 411-2-190.88Типовой проект 411-2-190.88Типовой проект 411-2-190.88Типовой проект 411-2-190.88Типовой проект 411-2-190.88Типовой проект 411-2-190.88Типовой проект 411-2-190.88Типовой проект 411-2-190.88Типовой проект 411-2-190.88Типовой проект 411-2-190.88Типовой проект 411-2-190.88Типовой проект 411-2-190.88Типовой проект 411-2-190.88Типовой проект 411-2-190.88Типовой проект 411-2-190.88

© 2013 Ёшкин Кот :-) Карта сайта