Информационная система
«Ёшкин Кот»

Скачать базу одним архивом
Скачать обновления
История создания базы
Карта сайта

Скачать Типовой проект 411-2-156.85 Альбом V. Нестандартизированное оборудование

Дата актуализации: 10.08.2017

Типовой проект 411-2-156.85

Альбом V. Нестандартизированное оборудование

Обозначение: Типовой проект 411-2-156.85
Обозначение англ: 411-2-156.85
Статус:не определен законодательством
Название рус.:Альбом V. Нестандартизированное оборудование
Дата добавления в базу:01.10.2014
Дата актуализации:05.05.2017
Дата введения:06.07.1984
Оглавление:Содержание альбома
НО-15.00.00.000 Блок оборотный
НО-15.00.00.001 Крышка глухая
НО-15.00.00.003 Блок
НО-15.00.00.004 Крышка проходная
НО-15.00.00.000СБ Блок оборотный. Сборочный чертеж
НО-15.01.00.000 Ось в сборе
НО-15.01.00.001 Ось
НО-15.01.00.000СБ Ось в сборе. Сборочный чертеж
НО-15.00.00.002 Прокладка
НО-15.01.00.002 Ребро
НО-15.01.00.003 Основание
НО-15.02.00.002 Ребро
НО-15.02.00.001 Чаша
НО-15.02.00.000 Диск
НО-15.02.00.000СБ Диск. Сборочный чертеж
НО-16.00.00.000 Транпортер опилочный цепной
НО-16.00.00.000ВС Транпортер опилочный цепной. Ведомость спецификаций
НО-16.00.00.000СБ Транпортер опилочный цепной. Сборочный чертеж
НО-16.01.00.000 Рама под приводную станцию
НО-16.01.00.001 Стойка
НО-16.01.00.002 Косынка
НО-16.01.00.000СБ Рама под приводную станцию. Сборочный чертеж
НО-16.01.00.003 Стяжка
НО-16.01.00.004 Косынка
НО-16.01.00.013 Стяжка
НО-16.01.00.015 Балка
НО-16.01.00.017 Стенка
НО-16.01.00.009 Стойка
НО-16.02.00.000 Переходная секция
НО-16.02.00.000СБ Переходная секция. Сборочный чертеж
НО-16.02.00.001 Направляющая
НО-16.02.00.004 Направляющая
НО-16.02.00.007 Стенка
НО-16.02.00.012 Направляющая
НО-16.03.00.000СБ Опора. Сборочный чертеж
НО-16.03.00.000 Опора
НО-17.00.00.000 Люк
НО-17.00.00.000СБ Люк. Сборочный чертеж
НО-17.00.00.001 Груз
НО-17.01.00.000 Короб
НО-17.01.00.000СБ Короб. Сборочный чертеж
НО-17.01.00.003 Стенка
НО-17.02.00.000 Крышка
НО-17.02.00.000СБ Крышка. Сборочный чертеж
НО-18.00.00.000 Конвейер выноса отходов
НО-18.00.00.000ВС Конвейер выноса отходов. Ведомость спецификаций
НО-18.00.00.000СБ Конвейер выноса отходов. Сборочный чертеж
НО-18.01.00.000 Станция приводная
НО-18.01.00.002 Прокладка
НО-18.01.00.000СБ Станция приводная. Сборочный чертеж
НО-18.01.00.001 Звездочка
НО-18.01.01.000 Рама
НО-18.01.01.000СБ Рама. Сборочный чертеж
НО-18.01.01.001 Поперечина
НО-18.01.01.002 Стойка
НО-18.01.01.003 Косынка
НО-18.01.01.004 Косынка
НО-18.01.01.012 Пята
НО-18.01.01.013 Кронштейн
НО-18.01.02.000 Ограждение
НО-18.01.02.000СБ Ограждение. Сборочный чертеж
НО-18.01.02.001 Стенка
НО-18.01.03.000 Муфта
НО-18.01.03.005 Палец
НО-18.01.03.000СБ Муфта. Сборочный чертеж
НО-18.01.03.001 Полумуфта
НО-18.01.03.002 Втулка распорная
НО-18.01.03.003 Втулка упругая
НО-18.01.03.004 Полумуфта
НО-18.01.04.000 Звездочка натяжная
НО-18.01.04.001 Ось
НО-18.01.04.000СБ Звездочка натяжная. Сборочный чертеж
НО-18.01.04.002 Крышка
НО-18.01.04.003 Прокладка
НО-18.01.04.004 Звездочка z = 16, t = 25,4
НО-18.01.05.000 Звездочка
НО-18.01.05.001 Венец
НО-18.01.05.000СБ Звездочка. Сборочный чертеж
НО-18.01.05.002 Ступица
НО-18.02.00.000 Секция наклонная I
НО-18.03.00.000 Секция наклонная II
НО-18.05.00.000 Секция горизонтальная
НО-18.02.00.000СБ Секция наклонная I. Сборочный чертеж
НО-18.03.00.000СБ Секция наклонная II. Сборочный чертеж
НО-18.04.00.000 Станция переходная
НО-18.04.01.000 Рама
НО-18.04.00.000СБ Станция переходная. Сборочный чертеж
НО-18.04.01.000СБ Рама. Сборочный чертеж
НО-18.05.00.000СБ Секция горизонтальная. Сборочный чертеж
НО-19.00.00.000 Конвейер сборочный
НО-19.00.00.000ВС Конвейер сборочный. Ведомость спецификаций
НО-19.00.00.000СБ Конвейер сборочный. Сборочный чертеж
НО-19.01.00.000 Станция приводная
НО-19.01.00.002 Прокладка
НО-19.01.00.000СБ Станция приводная. Сборочный чертеж
НО-19.01.00.001 Звездочка
НО-19.01.01.000 Рама
НО-19.01.01.000СБ Рама. Сборочный чертеж
НО-19.01.01.001 Поперечина
НО-19.01.01.002 Стойка
НО-19.01.01.003 Косынка
НО-19.01.01.004 Косынка
НО-19.01.01.012 Пята
НО-19.01.02.000 Муфта
НО-19.01.02.000СБ Муфта. Сборочный чертеж
НО-19.01.02.001 Полумуфта
НО-19.01.02.002 Втулка распорная
НО-19.01.02.003 Втулка упругая
НО-19.01.02.004 Полумуфта
НО-19.01.02.005 Палец
НО-19.01.03.000 Звездочка
НО-19.01.03.000СБ Звездочка. Сборочный чертеж
НО-19.01.03.001 Венец
НО-19.01.03.002 Ступица
НО-19.02.00.000СБ Секция горизонтальная. Сборочный чертеж
НО-19.02.00.000 Секция горизонтальная
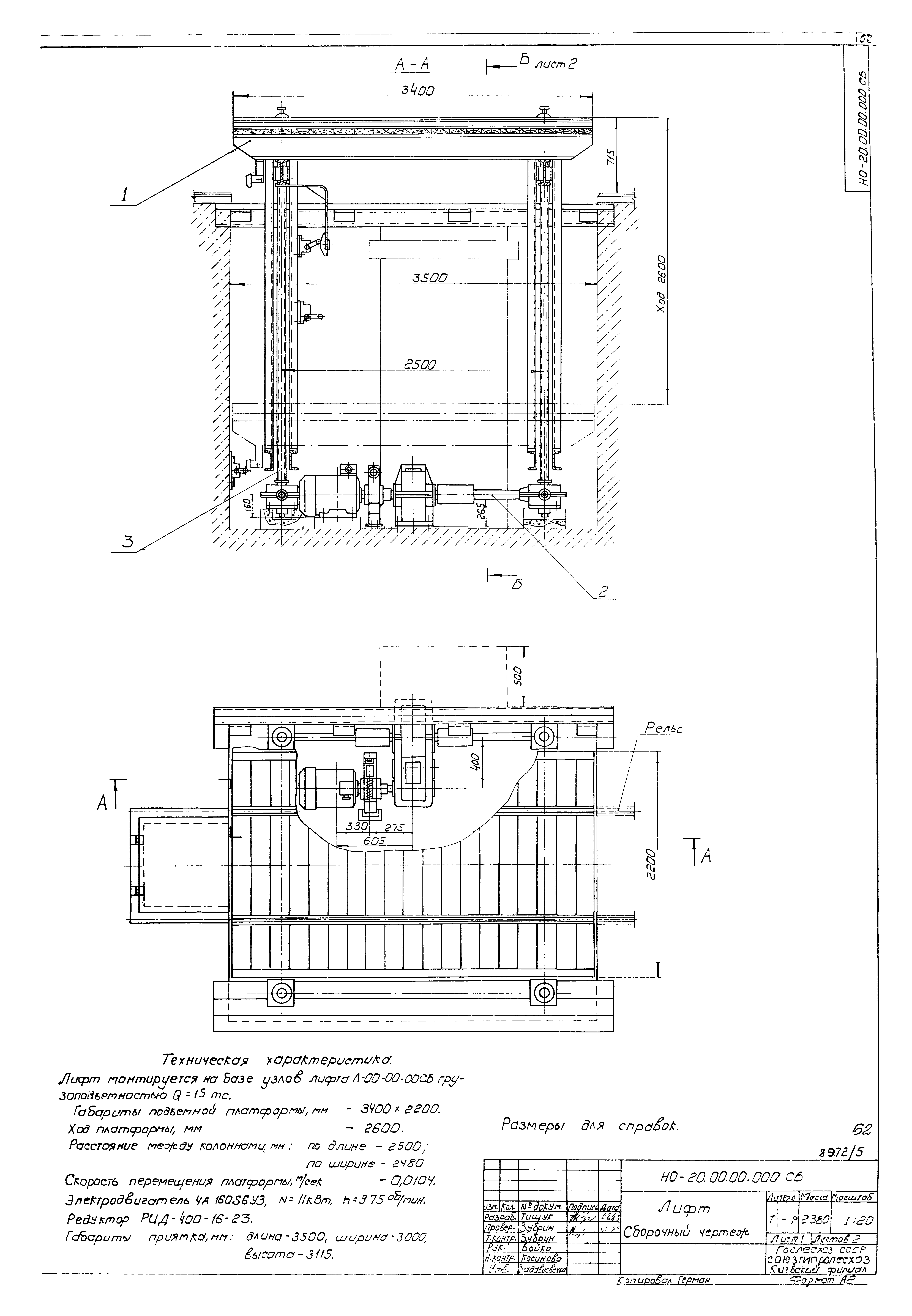
НО-20.00.00.000 Лифт
НО-20.00.00.001 Вал
НО-20.01.00.000 Платформа
НО-20.00.00.000СБ Лифт. Сборочный чертеж
НО-20.01.00.000СБ Платформа. Сборочный чертеж
НО-21.00.00.000ВС Затвор бункера. Ведомость спецификаций
НО-21.00.00.000 Затвор бункера
НО-21.00.00.000СБ Затвор бункера. Сборочный чертеж
НО-21.00.00.001 Звездочка
НО-21.00.00.002 Шибер
НО-21.00.00.003 Рейка
НО-21.00.00.004 Ролик
НО-21.00.00.005 Палец
НО-21.00.00.006 Кронштейн
НО-21.00.00.007 Уголок
НО-21.01.00.000 Рама
НО-21.01.00.001 Кронштейн
НО-21.01.00.003 Ребро
НО-21.01.00.000СБ Рама. Сборочный чертеж
НО-21.01.00.005 Ребро
НО-21.02.00.000 Вал в сборе
НО-21.02.00.000СБ Вал в сборе. Сборочный чертеж
НО-21.02.00.001 Звездочка
НО-21.02.00.002 Шестерня
НО-21.02.00.003 Вал
НО-21.02.00.004 Корпус
НО-21.02.00.003 Уголок
НО-22.00.00.000 Бункер
НО-22.00.00.001 Уголок
НО-22.00.00.002 Лист
НО-22.00.00.000СБ Бункер. Сборочный чертеж
НО-23.00.00.000ВС Конвейер подающий. Ведомость спецификаций
НО-23.00.00.000 Конвейер подающий
НО-23.00.00.000СБ Конвейер подающий. Сборочный чертеж
НО-23.00.00.001 Звездочка
НО-23.01.00.000 Барабан натяжной
НО-23.01.00.000СБ Барабан натяжной. Сборочный чертеж
НО-23.01.01.000СБ Барабан. Сборочный чертеж
НО-23.01.01.000 Барабан
НО-23.01.01.001 Цапфа
НО-23.01.01.010СБ Труба. Сборочный чертеж
НО-23.01.01.010 Труба
НО-23.01.01.101 Труба
НО-23.01.01.102 Фланец
НО-23.02.00.002 Кронштейн
НО-23.02.00.000 Рама
НО-23.02.00.000СБ Рама. Сборочный чертеж
НО-23.02.00.004 Прогон
НО-23.02.00.013 Стойка
НО-23.03.00.000 Барабан приводной
НО-23.03.00.000СБ Барабан приводной. Сборочный чертеж
НО-23.03.01.000СБ Барабан. Сборочный чертеж
НО-23.03.01.000 Барабан
НО-23.03.01.001 Цапфа
НО-23.04.00.000 Роликоопора
НО-23.04.00.000СБ Роликоопора. Сборочный чертеж
НО-23.04.00.001 Труба
НО-23.04.00.002 Корпус подшипника
НО-23.04.00.003 Крышка
НО-23.04.00.004 Втулка
НО-23.04.00.005 Ось
НО-23.04.00.007 Кольцо
НО-23.04.00.006 Прокладка
НО-23.05.00.000 Ограждение
НО-23.05.00.000СБ Ограждение. Сборочный чертеж
НО-23.05.00.001 Стенка
НО-23.05.00.003 Кронштейн
НО-24.00.00.000 Уловитель крупных отходов
НО-24.00.00.000СБ Уловитель крупных отходов. Сборочный чертеж
НО-24.00.00.002 Труба
НО-24.00.00.001 Стойка
НО-24.00.00.005 Стойка
НО-24.00.00.006 Стенка
НО-25.00.00.000 Зонт
НО-25.00.00.004 Ребро
НО-25.00.00.003 Стенка
НО-25.00.00.000СБ Зонт. Сборочный чертеж
НО-25.00.00.001 Стенка
НО-25.00.00.002 Стяжка
НО-25.00.00.009 Шибер
НО-26.00.00.000ВС Контейнер для фризы. Ведомость спецификаций
НО-26.00.00.000 Контейнер для фризы
НО-26.01.00.000 Каркас
НО-26.00.00.000СБ Контейнер для фризы. Сборочный чертеж
НО-26.01.00.000СБ Каркас. Сборочный чертеж
НО-26.00.00.001 Ушко
НО-26.01.00.002 Поперечина
НО-26.01.00.007 Пятка
НО-26.02.00.009 Скоба
НО-26.02.00.000 Стенка
НО-26.02.00.000СБ Стенка. Сборочный чертеж
НО-26.02.00.001 Защелка
Ведомость покупных изделий
Разработан: Киевский филиал Союзгипролесхоз
Утверждён:18.06.1984 Гослесхоз СССР (USSR Gosleskhoz 8)
Расположен в:Техническая документация Строительство Справочные документы Типовые строительные конструкции, изделия и узлы Общероссийский строительный каталог Промышленные предприятия, здания и сооружения Предприятия, здания и сооружения промышленности и электроэнергетики Промышленность деревообрабатывающая Здания общего назначения
Типовой проект 411-2-156.85Типовой проект 411-2-156.85Типовой проект 411-2-156.85Типовой проект 411-2-156.85Типовой проект 411-2-156.85Типовой проект 411-2-156.85Типовой проект 411-2-156.85Типовой проект 411-2-156.85Типовой проект 411-2-156.85Типовой проект 411-2-156.85Типовой проект 411-2-156.85Типовой проект 411-2-156.85Типовой проект 411-2-156.85Типовой проект 411-2-156.85Типовой проект 411-2-156.85Типовой проект 411-2-156.85Типовой проект 411-2-156.85Типовой проект 411-2-156.85Типовой проект 411-2-156.85Типовой проект 411-2-156.85Типовой проект 411-2-156.85Типовой проект 411-2-156.85Типовой проект 411-2-156.85Типовой проект 411-2-156.85Типовой проект 411-2-156.85Типовой проект 411-2-156.85Типовой проект 411-2-156.85Типовой проект 411-2-156.85Типовой проект 411-2-156.85Типовой проект 411-2-156.85Типовой проект 411-2-156.85Типовой проект 411-2-156.85Типовой проект 411-2-156.85Типовой проект 411-2-156.85Типовой проект 411-2-156.85Типовой проект 411-2-156.85Типовой проект 411-2-156.85Типовой проект 411-2-156.85Типовой проект 411-2-156.85Типовой проект 411-2-156.85Типовой проект 411-2-156.85Типовой проект 411-2-156.85Типовой проект 411-2-156.85Типовой проект 411-2-156.85Типовой проект 411-2-156.85Типовой проект 411-2-156.85Типовой проект 411-2-156.85Типовой проект 411-2-156.85Типовой проект 411-2-156.85Типовой проект 411-2-156.85Типовой проект 411-2-156.85Типовой проект 411-2-156.85Типовой проект 411-2-156.85Типовой проект 411-2-156.85Типовой проект 411-2-156.85Типовой проект 411-2-156.85Типовой проект 411-2-156.85Типовой проект 411-2-156.85Типовой проект 411-2-156.85Типовой проект 411-2-156.85Типовой проект 411-2-156.85Типовой проект 411-2-156.85Типовой проект 411-2-156.85Типовой проект 411-2-156.85Типовой проект 411-2-156.85Типовой проект 411-2-156.85Типовой проект 411-2-156.85Типовой проект 411-2-156.85Типовой проект 411-2-156.85Типовой проект 411-2-156.85Типовой проект 411-2-156.85Типовой проект 411-2-156.85Типовой проект 411-2-156.85Типовой проект 411-2-156.85Типовой проект 411-2-156.85Типовой проект 411-2-156.85Типовой проект 411-2-156.85Типовой проект 411-2-156.85Типовой проект 411-2-156.85Типовой проект 411-2-156.85Типовой проект 411-2-156.85Типовой проект 411-2-156.85Типовой проект 411-2-156.85Типовой проект 411-2-156.85Типовой проект 411-2-156.85Типовой проект 411-2-156.85Типовой проект 411-2-156.85Типовой проект 411-2-156.85Типовой проект 411-2-156.85Типовой проект 411-2-156.85Типовой проект 411-2-156.85Типовой проект 411-2-156.85Типовой проект 411-2-156.85Типовой проект 411-2-156.85Типовой проект 411-2-156.85Типовой проект 411-2-156.85Типовой проект 411-2-156.85Типовой проект 411-2-156.85Типовой проект 411-2-156.85Типовой проект 411-2-156.85Типовой проект 411-2-156.85Типовой проект 411-2-156.85Типовой проект 411-2-156.85Типовой проект 411-2-156.85Типовой проект 411-2-156.85Типовой проект 411-2-156.85Типовой проект 411-2-156.85Типовой проект 411-2-156.85Типовой проект 411-2-156.85Типовой проект 411-2-156.85Типовой проект 411-2-156.85Типовой проект 411-2-156.85Типовой проект 411-2-156.85Типовой проект 411-2-156.85Типовой проект 411-2-156.85Типовой проект 411-2-156.85Типовой проект 411-2-156.85

© 2013 Ёшкин Кот :-) Карта сайта