| ||||||||||||||||||||||||||
Скачать Серия ИИ27-1 Лестницы с кирпичными стенами (высота марша 1,2 м, ширина 1,36 м). Марши, площадки, балкиДата актуализации: 10.08.2017
|
| Обозначение: | Серия ИИ27-1 |
| Обозначение англ: | Series ИИ27-1 |
| Статус: | отменен |
| Название рус.: | Лестницы с кирпичными стенами (высота марша 1,2 м, ширина 1,36 м). Марши, площадки, балки |
| Дата добавления в базу: | 01.10.2014 |
| Дата актуализации: | 05.05.2017 |
| Дата введения: | 01.06.1990 |
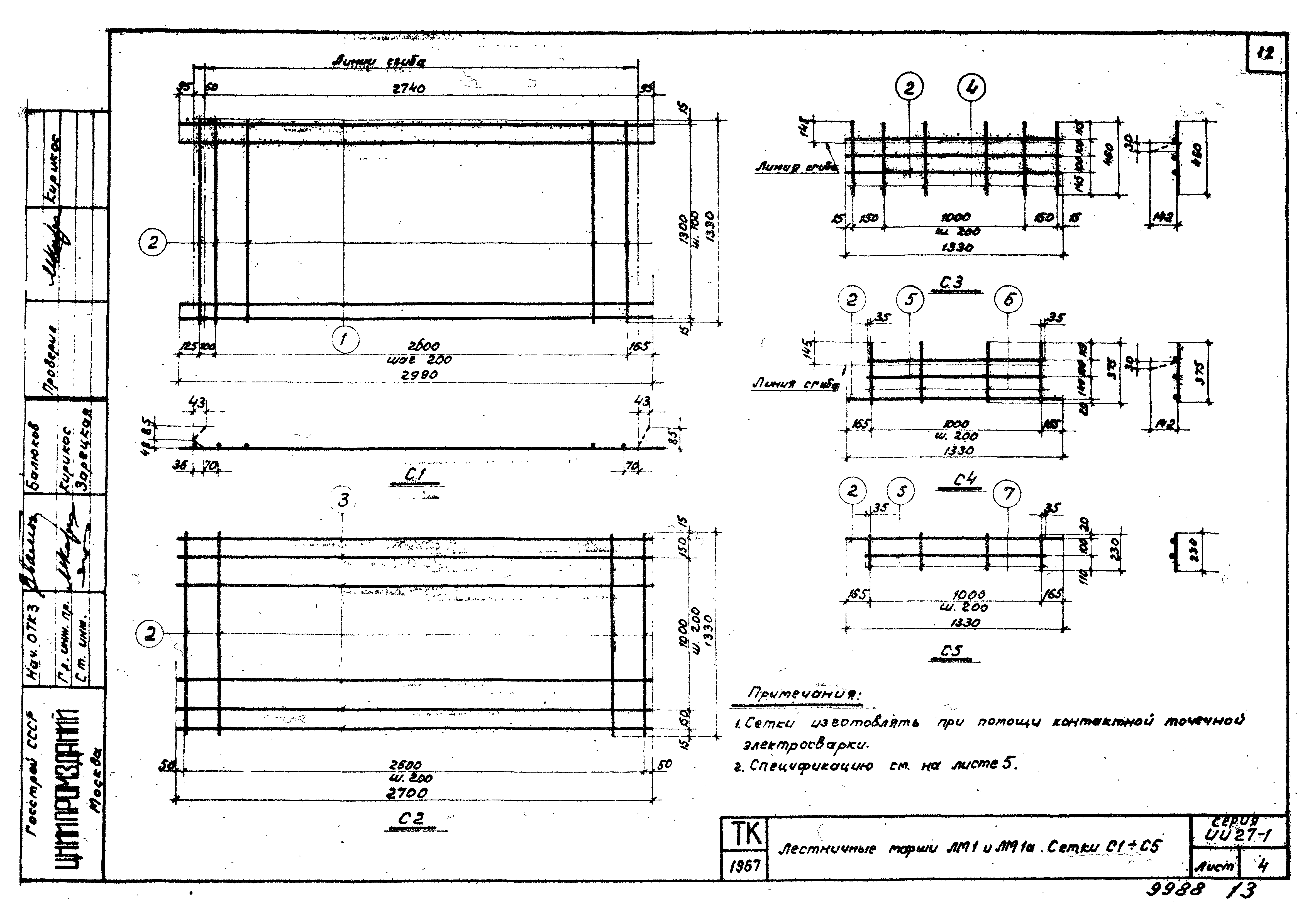
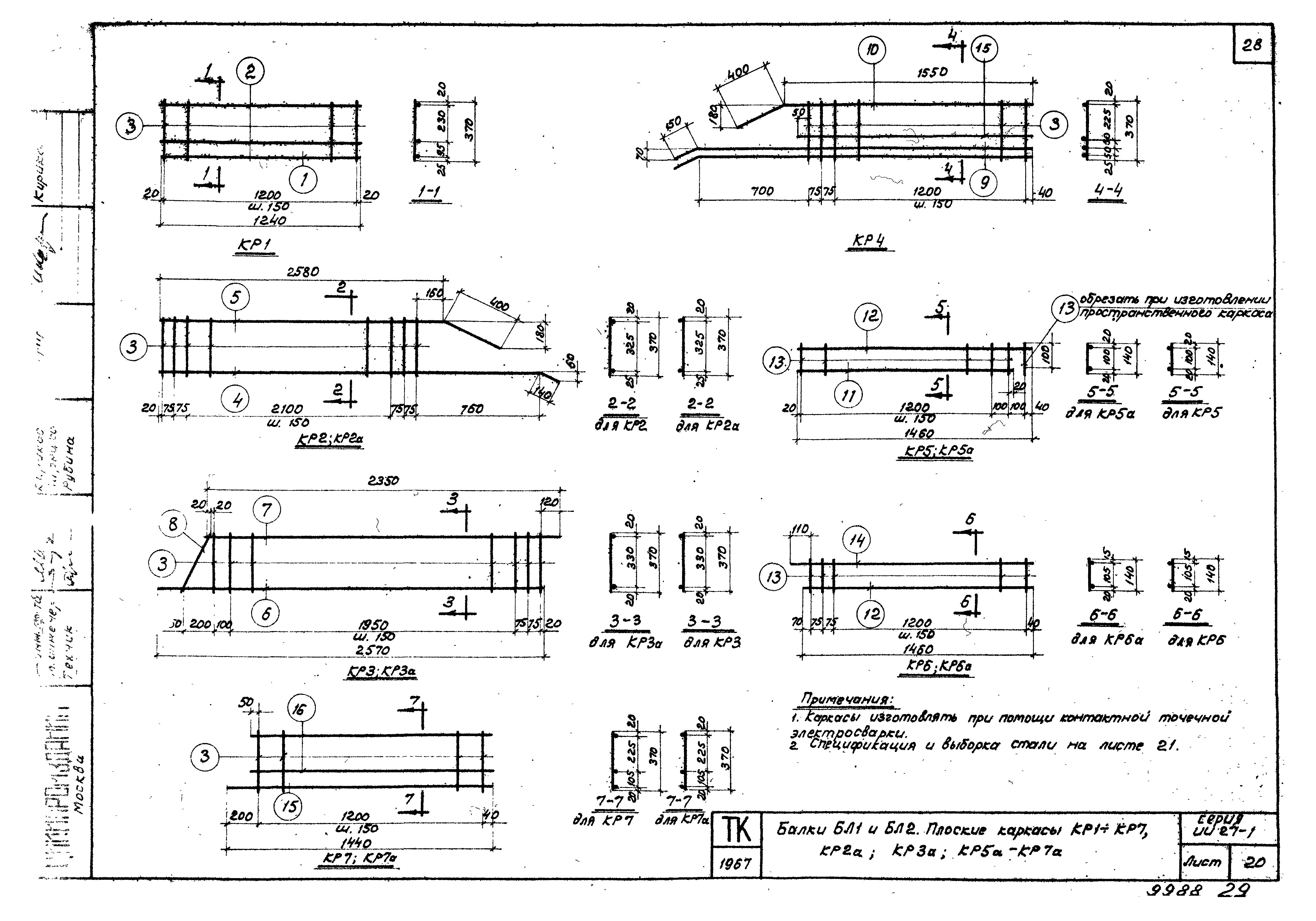
| Оглавление: | Пояснительная записка Лестничные марши ЛМ1 и ЛМ1а. Опалубочный чертеж и технико-экономические показатели Лестничные марши ЛМ1 и ЛМ1а. Армирование Лестничные марши ЛМ1 и ЛМ1а. Пространственный каркас КП-1 Лестничные марши ЛМ1 и ЛМ1а. Сетки С1 - С5 Лестничные марши ЛМ1 и ЛМ1а. Сетки С1 - С5. Спецификация Лестничные площадки ЛП1 и ЛП1а. Опалубочный чертеж. Технико-экономические показатели Лестничные площадки ЛП1 и ЛП1а. Армирование Лестничные площадки ЛП1 и ЛП1а. Детали армирования 1, 2, 3 Лестничные площадки ЛП1 и ЛП1а. Плоские каркасы и сетки Балка БЛ1. Опалубочный чертеж. Технико-экономические показатели Балка БЛ1. Армирование Балка БЛ1. Армирование. Детали 1 - 4 Балка БЛ1. Пространственный каркас КП-1 Балка БЛ1. Пространственный каркас КП-1. Разрез 8-8. Детали 1, 6. Спецификация Балка БЛ1. Пространственный каркас КП-1. Детали 2 - 5 Балка БЛ2. Опалубочный чертеж. Технико-экономические показатели Балка БЛ2. Армирование Балка БЛ2. Пространственный каркас КП-2 Балка БЛ2. Пространственный каркас КП-2. Разрез 8-8. Спецификация Балки БЛ1, БЛ2. Плоские каркасы КР1 - КР7, КР2а, КР3а, КР5а - КР7а Балки БЛ1 и БЛ2. Плоские каркасы КР1 - КР7, КР2а, КР3а, КР5а - КР7а. Спецификация и выборка стали Закладные элементы М1 - М9 Закладные элементы М1 - М9. Спецификация |
| Разработан: | ЦНИИпромзданий НИИЖБ |
| Утверждён: | 30.10.1968 Госстрой СССР (94) |
| Расположен в: |
































