Информационная система
«Ёшкин Кот»

Скачать базу одним архивом
Скачать обновления
История создания базы
Карта сайта

Скачать Типовой проект 411-2-179.86 Альбом III. Силовое электрооборудование. Электрическое освещение. Связь и сигнализация. Автоматизация отопления и вентиляции

Дата актуализации: 10.08.2017

Типовой проект 411-2-179.86

Альбом III. Силовое электрооборудование. Электрическое освещение. Связь и сигнализация. Автоматизация отопления и вентиляции

Обозначение: Типовой проект 411-2-179.86
Обозначение англ: 411-2-179.86
Статус:не определен законодательством
Название рус.:Альбом III. Силовое электрооборудование. Электрическое освещение. Связь и сигнализация. Автоматизация отопления и вентиляции
Дата добавления в базу:01.10.2014
Дата актуализации:05.05.2017
Дата введения:30.05.1986
Оглавление:Содержание альбома
Силовое электрооборудование
   Общие данные
   Расчет электрических нагрузок
   План на отм. 0.000 в осях 1 - 8; А - Г
   План на отм. 0.000 в осях 8 - 13; А - Г
   План на отм. 0.000 в осях 5 - 10; Г - Д. Молниезащита
   План на отм. 3.600 и 4.800
   План трасс управления приводами и блокировок на отм. 0.000 в осях 1 - 8; А - Г
   План трасс управления приводами и блокировок на отм. 0.000 в осях 8 - 13; А - Г
   План на отм. 0.000 в осях 5 - 9; Д - Е. План эстакад
   Фрагмент плана на отм. 3.600. Спецификация к листам ЭМ-9 - ЭМ-12
   Принципиальная схема распределительной сети 1ШР
   Принципиальная схема распределительной сети 2ШР, 12ШР
   Принципиальная схема распределительной сети 4ШР, 5ШР
   Принципиальная схема распределительной сети 6ШР, 10ШР
   Принципиальная схема распределительной сети 7ШР
   Принципиальная схема распределительной сети 8ШР
   Принципиальная схема распределительной сети 9ШР
   Принципиальная схема распределительной сети 11ШР
   Принципиальная схема распределительной сети 13ШР
   Буфет. План. Принципиальная схема распределительной сети 14ШР
   Схемы электропроводок поз. 21, 1, 40, 24
   Схемы электропроводок поз. 22, 23 линии ОТД
   Отключение вентсистем. Схема принципиальная управления. Схема подключений
   Отключение вентсистем. Сборка аппаратуры. Конструкция
   Принципиальная схема питающей сети
   Спецификация к листам ЭМ-5 - ЭМ-8
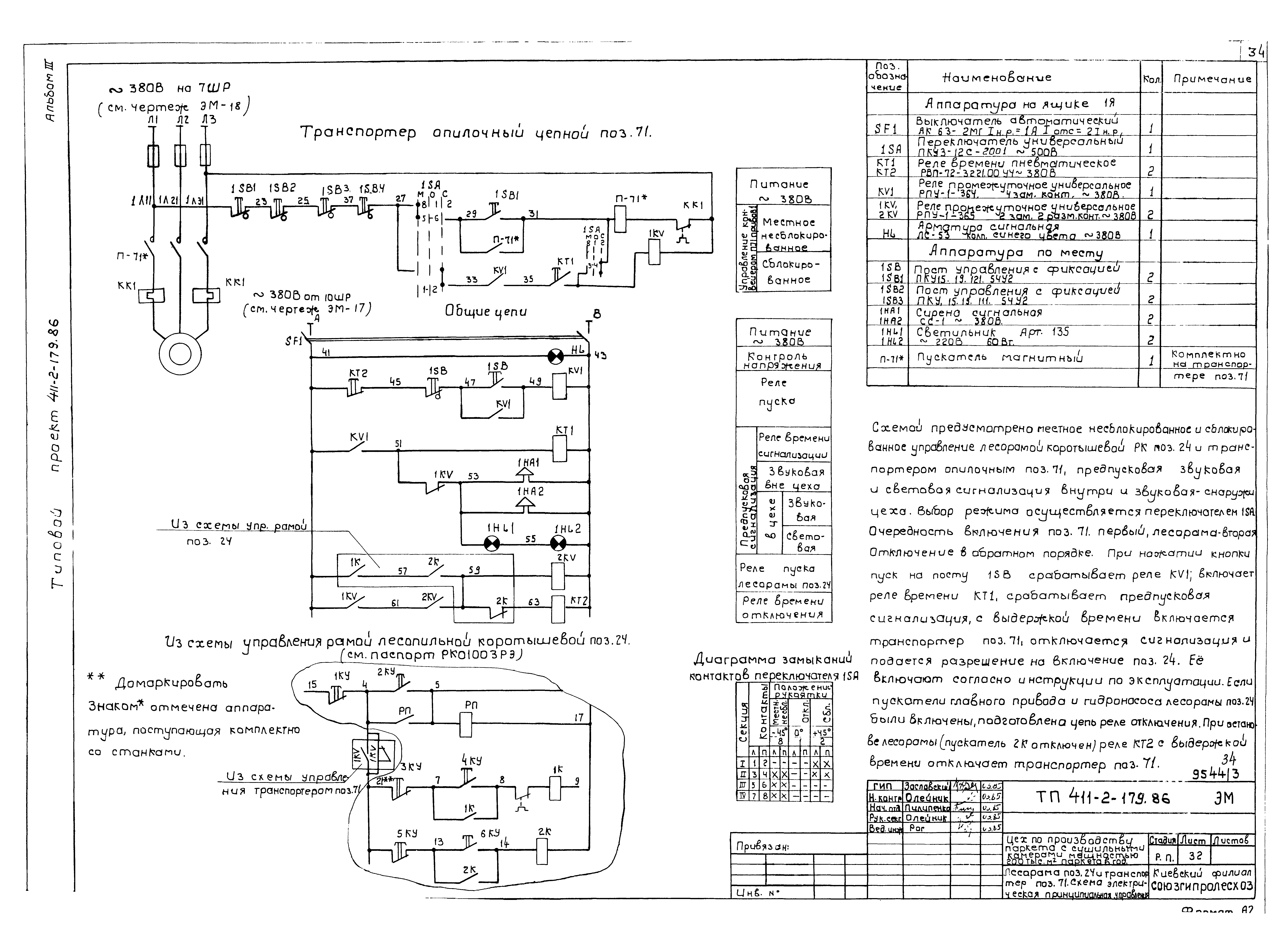
   Лесорама поз. 24 и транспортер поз. 71. Схема электрическая принципиальная управления
   Ленточные конвейеры поз. 72, 73, 74. Схема электрическая принципиальная управления
   Рольганг с перекладчиком поз. 29. Схема электрическая принципиальная управления
   Пневмотранспорт ПТ1. Схема электрическая принципиальная управления
   Пневмотранспорт ПТ2. Схема электрическая принципиальная управления
   Пневмотранспорт ПТ3, ПТ4. Схема электрическая принципиальная управления
   Пневмотранспорт ПТ5. Схема электрическая принципиальная управления
   Агрегат Р1, Р2 (Р3, Р4). Схема электрическая принципиальная управления
   Вентсистема В2 (В3, В4). Схема электрическая принципиальная управления
   Вентсистема В2 (В3, В4). Схема подключений
   Ящик 1Я. Схема подключений
   Ящик 2Я. Схема подключений
   Ящик 3Я. Схема подключений
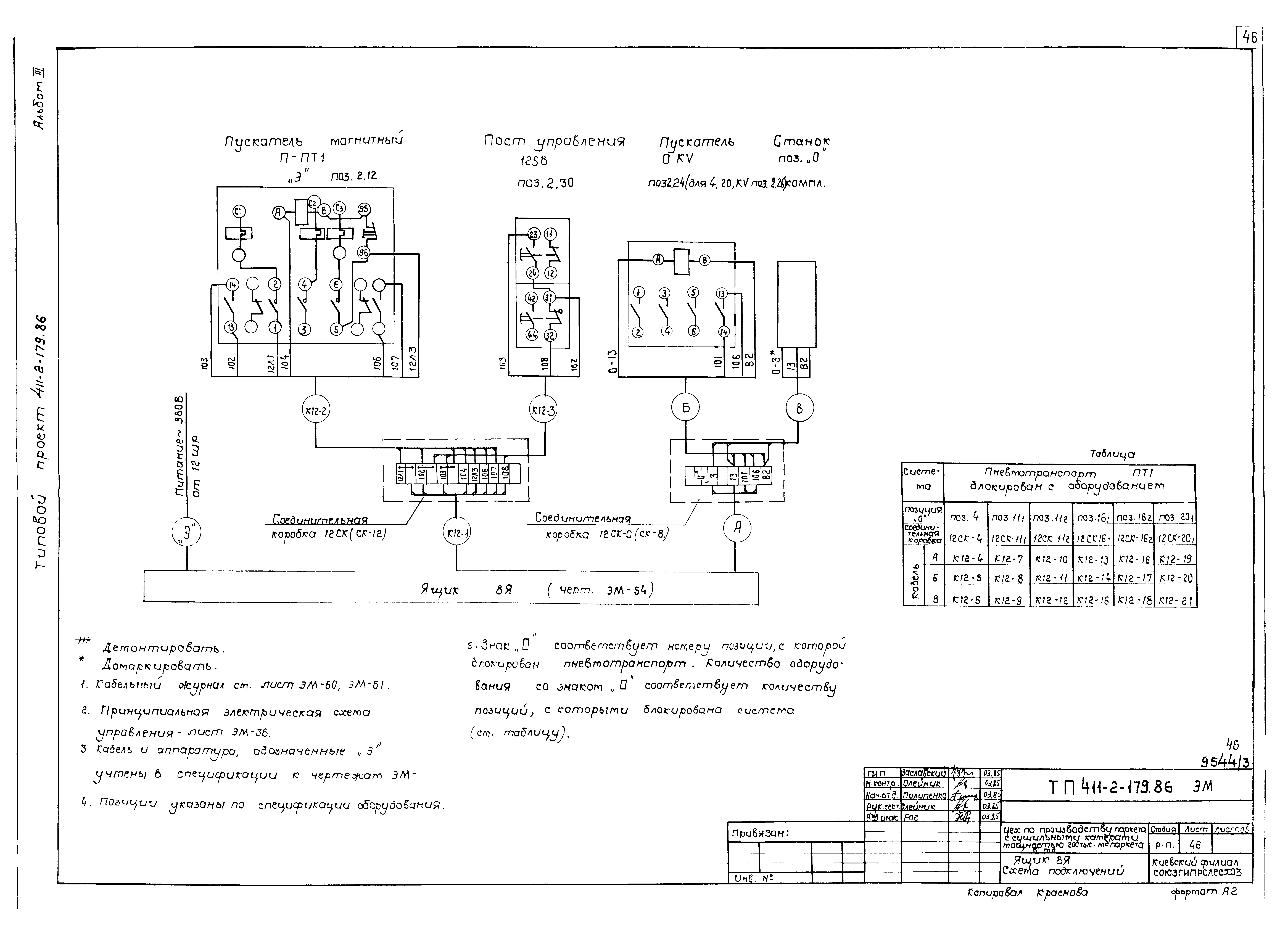
   Ящик 8Я. Схема подключений
   Ящик 9Я. Схема подключений
   Ящик 10Я. Схема подключений
   Ящик 11Я. Схема подключений
   Ящик 12Я(13Я). Схема подключений
   Ящик 1Я. Эскиз общего вида
   Ящик 2Я. Эскиз общего вида
   Ящик 3Я. Эскиз общего вида
   Ящик 8Я. Эскиз общего вида
   Ящик 9Я. Эскиз общего вида
   Ящик 10Я. Эскиз общего вида
   Ящик 11Я. Эскиз общего вида
   Ящик 12Я(13Я). Эскиз общего вида
   Кабельный журнал
   Ведомость объемов электромонтажных работ
   Ведомость изделий МЭЗ
Электрическое освещение
   Общие данные
   План на отм. 0.000 в осях 1 - 8; А - Г
   План на отм. 0.000 в осях 8 - 13; А - Г. План питающей сети
   План на отм. 0.000 в осях 5 - 10; Г - Е. Ведомость объемов электромонтажных работ
   План на отм. 3.600 и 4.800. Таблица щитков. Схема питающей сети
   Крепление кабеля и люминесцентных светильников на тросе
   Сводная спецификация
Связь и сигнализация
   Общие данные
   Радиофикация и телефонизация. План сетей. Скелетные схемы
   План на отм. 0.000
   План на отм. 4.800
   Скелетная схема пожарной сигнализации. Спецификация к чертежам 2, 3, 4
Автоматизация отопления и вентиляции
   Общие данные
   Приточная система П1(П2, П3). Вариант для tн = минус 20, минус 30 градусов Цельсия. Схема функциональная
   Приточная система П1(П2, П3). Вариант для tн = минус 40 градусов Цельсия. Схема функциональная
   Приточная система П4. Схема функциональная
   Приточная система П1(П2, П3, П4). Указания по привязке принципиальной электрической схемы управления
   Приточная система П1, П2, П3, П4. Схема подключений
   Приточная система П1(П2). Вариант для tн = минус 40 градусов Цельсия. Схема подключений
   Приточная система П1(П2, П3, П4). Щит управления 1ЩУВ (2ЩУВ, 3ЩУВ, 4ЩУВ). Клеммник
   Приточная система П1(П3). Щит управления 1ЩУВ (3ЩУВ). Опросный лист
   Приточная система П2. Щит управления 2ЩУВ. Опросный лист
   Приточная система П4. Щит управления 4ЩУВ. Опросный лист
   Вентсистема В7(В8, В9). Схема электрическая принципиальная управления
   Воздушная завеса У1(У2). Схема электрическая принципиальная управления
   Вентсистема В7(В8, В9). Схема подключений
   Воздушная завеса У1(У2). Схема подключений
   Кабельный журнал
   Приточные камеры П1 - П4. План трасс
   План трасс на отм. 0.000 в осях 1 - 8; А - Г
   Спецификация к листам АОВ-21, АОВ-22
   Теплопункт. Схема автоматизации функциональная
   Ведомость объемов электромонтажных работ
   Ведомость изделий МЭЗ
Разработан: Киевский филиал Союзгипролесхоз
Утверждён:28.02.1986 Гослесхоз СССР (USSR Gosleskhoz 12)
Расположен в:Техническая документация Строительство Справочные документы Типовые строительные конструкции, изделия и узлы Общероссийский строительный каталог Промышленные предприятия, здания и сооружения Предприятия, здания и сооружения промышленности и электроэнергетики Промышленность деревообрабатывающая Здания общего назначения
Типовой проект 411-2-179.86Типовой проект 411-2-179.86Типовой проект 411-2-179.86Типовой проект 411-2-179.86Типовой проект 411-2-179.86Типовой проект 411-2-179.86Типовой проект 411-2-179.86Типовой проект 411-2-179.86Типовой проект 411-2-179.86Типовой проект 411-2-179.86Типовой проект 411-2-179.86Типовой проект 411-2-179.86Типовой проект 411-2-179.86Типовой проект 411-2-179.86Типовой проект 411-2-179.86Типовой проект 411-2-179.86Типовой проект 411-2-179.86Типовой проект 411-2-179.86Типовой проект 411-2-179.86Типовой проект 411-2-179.86Типовой проект 411-2-179.86Типовой проект 411-2-179.86Типовой проект 411-2-179.86Типовой проект 411-2-179.86Типовой проект 411-2-179.86Типовой проект 411-2-179.86Типовой проект 411-2-179.86Типовой проект 411-2-179.86Типовой проект 411-2-179.86Типовой проект 411-2-179.86Типовой проект 411-2-179.86Типовой проект 411-2-179.86Типовой проект 411-2-179.86Типовой проект 411-2-179.86Типовой проект 411-2-179.86Типовой проект 411-2-179.86Типовой проект 411-2-179.86Типовой проект 411-2-179.86Типовой проект 411-2-179.86Типовой проект 411-2-179.86Типовой проект 411-2-179.86Типовой проект 411-2-179.86Типовой проект 411-2-179.86Типовой проект 411-2-179.86Типовой проект 411-2-179.86Типовой проект 411-2-179.86Типовой проект 411-2-179.86Типовой проект 411-2-179.86Типовой проект 411-2-179.86Типовой проект 411-2-179.86Типовой проект 411-2-179.86Типовой проект 411-2-179.86Типовой проект 411-2-179.86Типовой проект 411-2-179.86Типовой проект 411-2-179.86Типовой проект 411-2-179.86Типовой проект 411-2-179.86Типовой проект 411-2-179.86Типовой проект 411-2-179.86Типовой проект 411-2-179.86Типовой проект 411-2-179.86Типовой проект 411-2-179.86Типовой проект 411-2-179.86Типовой проект 411-2-179.86Типовой проект 411-2-179.86Типовой проект 411-2-179.86Типовой проект 411-2-179.86Типовой проект 411-2-179.86Типовой проект 411-2-179.86Типовой проект 411-2-179.86Типовой проект 411-2-179.86Типовой проект 411-2-179.86Типовой проект 411-2-179.86Типовой проект 411-2-179.86Типовой проект 411-2-179.86Типовой проект 411-2-179.86Типовой проект 411-2-179.86Типовой проект 411-2-179.86Типовой проект 411-2-179.86Типовой проект 411-2-179.86Типовой проект 411-2-179.86Типовой проект 411-2-179.86Типовой проект 411-2-179.86Типовой проект 411-2-179.86Типовой проект 411-2-179.86Типовой проект 411-2-179.86Типовой проект 411-2-179.86Типовой проект 411-2-179.86Типовой проект 411-2-179.86Типовой проект 411-2-179.86

© 2013 Ёшкин Кот :-) Карта сайта