Информационная система
«Ёшкин Кот»

Скачать базу одним архивом
Скачать обновления
История создания базы
Карта сайта

Скачать Типовой проект 411-2-179.86 Альбом II. Внутренние водопровод и канализация. Отопление и вентиляция

Дата актуализации: 10.08.2017

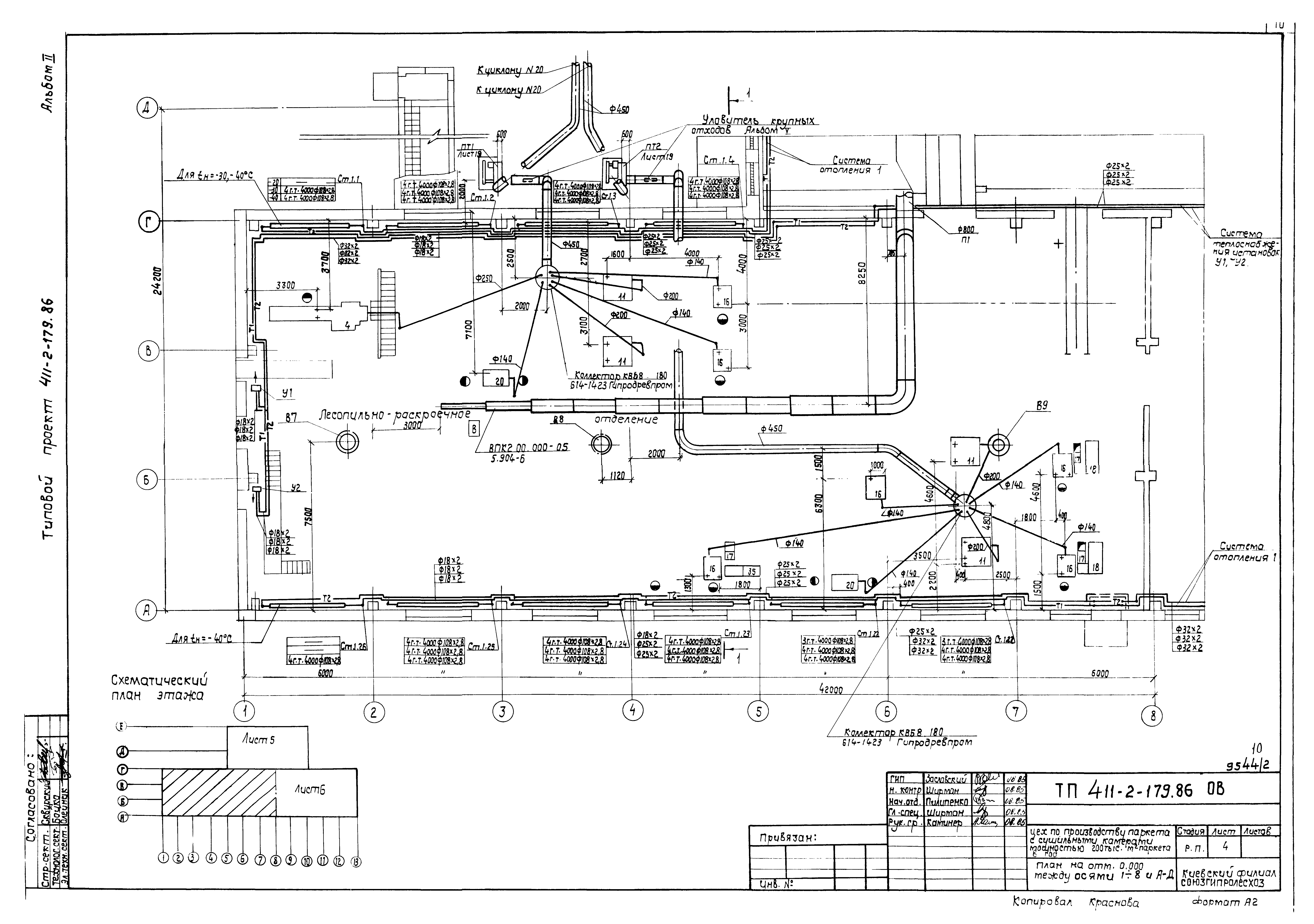
Типовой проект 411-2-179.86

Альбом II. Внутренние водопровод и канализация. Отопление и вентиляция

Обозначение: Типовой проект 411-2-179.86
Обозначение англ: 411-2-179.86
Статус:не определен законодательством
Название рус.:Альбом II. Внутренние водопровод и канализация. Отопление и вентиляция
Дата добавления в базу:01.10.2014
Дата актуализации:05.05.2017
Дата введения:30.05.1986
Оглавление:Содержание альбома
Водоснабжение и канализация
   Общие данные
   План на отм. 0.000
   План на отм. 3.600 и 4.800 между осями 5 - 10 и Г - Е
   Схемы системы Т3, В1, К1
Отопление и вентиляция
   Общие данные
   План на отм. 0.000 между осями 1 - 8 и А - Д
   План на отм. 0.000 между осями 5 - 10 и Г - Е
   План на отм. 0.000 между осями 8 - 13 и А - Г
   План на отм. 3.600 и 4.800 между осями 5 - 10 и Г - Е
   Разрез 1-1. Местные отсосы от технологического оборудования
   Система отопления 1
   Система отопления 2
   Система теплоснабжения установок П1 - П4. Схемы узлов установок П1, П2
   Система теплоснабжения установок У1, У2. Схемы узлов установок У1, У2, П3, П4
   Схемы систем П2, П3, П4, ПТ3, В2, В3, В4, В5, В6, У1, У2
   Схемы систем ПТ4, П1, В10, Р1, Р2, Р3, Р4, ВЕ1, ВЕ2
   Схемы систем ПТ1, ПТ2, ПТ5
   Установки систем П1, П3. План. Разрезы
   Установки систем П2, П4. План. Разрезы
   Спецификация отопительно-вентиляционных установок
   Установки систем ПТ1, ПТ2, ПТ3, ПТ4, ПТ5
   План расположения циклонов. Спецификация пневмотранспортных установок ПТ1 - ПТ5
   Теплопункт
   Бланк-заказ на приточные установки П1, П2, П3, П4
Разработан: Киевский филиал Союзгипролесхоз
Утверждён:28.02.1986 Гослесхоз СССР (USSR Gosleskhoz 12)
Расположен в:Техническая документация Строительство Справочные документы Типовые строительные конструкции, изделия и узлы Общероссийский строительный каталог Промышленные предприятия, здания и сооружения Предприятия, здания и сооружения промышленности и электроэнергетики Промышленность деревообрабатывающая Здания общего назначения
Типовой проект 411-2-179.86Типовой проект 411-2-179.86Типовой проект 411-2-179.86Типовой проект 411-2-179.86Типовой проект 411-2-179.86Типовой проект 411-2-179.86Типовой проект 411-2-179.86Типовой проект 411-2-179.86Типовой проект 411-2-179.86Типовой проект 411-2-179.86Типовой проект 411-2-179.86Типовой проект 411-2-179.86Типовой проект 411-2-179.86Типовой проект 411-2-179.86Типовой проект 411-2-179.86Типовой проект 411-2-179.86Типовой проект 411-2-179.86Типовой проект 411-2-179.86Типовой проект 411-2-179.86Типовой проект 411-2-179.86Типовой проект 411-2-179.86Типовой проект 411-2-179.86Типовой проект 411-2-179.86Типовой проект 411-2-179.86Типовой проект 411-2-179.86Типовой проект 411-2-179.86Типовой проект 411-2-179.86Типовой проект 411-2-179.86Типовой проект 411-2-179.86Типовой проект 411-2-179.86

© 2013 Ёшкин Кот :-) Карта сайта