Скачать Типовой проект 411-1-163.91 Альбом 1. Пояснительная записка. Технология производства. Архитектурные решения. Конструкции железобетонные. Внутренние водопровод и канализация. Отопление, вентиляция и кондиционирование воздуха. Силовое электрооборудование. Электрическое освещение. Связь и сигнализация. Автоматизация санитарно-технических систем. Конструкции железобетонных изделийДата актуализации: 10.08.2017 Типовой проект 411-1-163.91
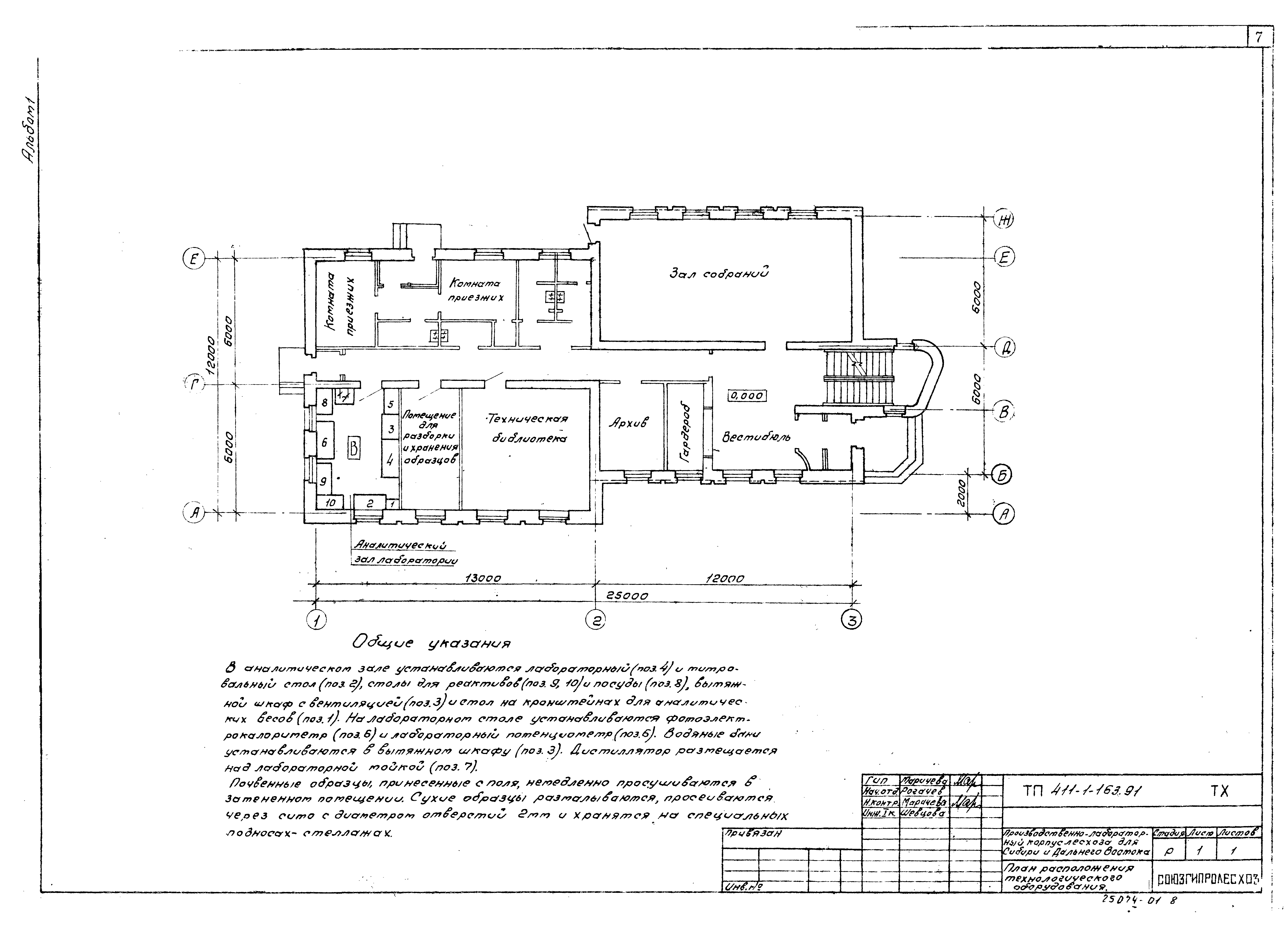
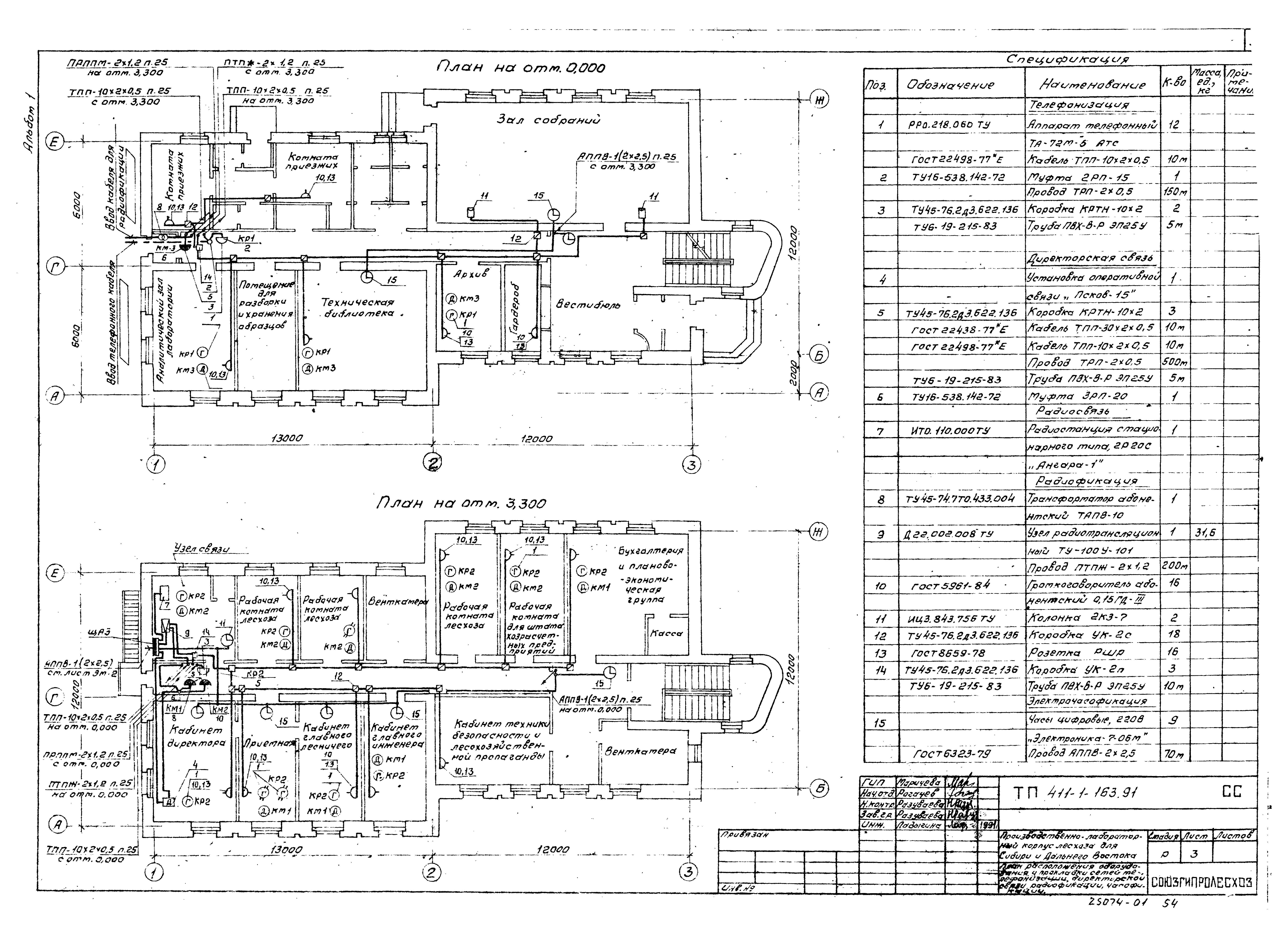
Альбом 1. Пояснительная записка. Технология производства. Архитектурные решения. Конструкции железобетонные. Внутренние водопровод и канализация. Отопление, вентиляция и кондиционирование воздуха. Силовое электрооборудование. Электрическое освещение. Связь и сигнализация. Автоматизация санитарно-технических систем. Конструкции железобетонных изделийОбозначение: | Типовой проект 411-1-163.91 | Обозначение англ: | 411-1-163.91 | Статус: | не определен законодательством | Название рус.: | Альбом 1. Пояснительная записка. Технология производства. Архитектурные решения. Конструкции железобетонные. Внутренние водопровод и канализация. Отопление, вентиляция и кондиционирование воздуха. Силовое электрооборудование. Электрическое освещение. Связь и сигнализация. Автоматизация санитарно-технических систем. Конструкции железобетонных изделий | Дата добавления в базу: | 01.10.2014 | Дата актуализации: | 05.05.2017 | Дата введения: | 17.09.1991 | Оглавление: | Содержание альбома Пояснительная записка Технология производства План расположения технологического оборудования Архитектурные решения Общие данные План на отм. 0.000 и - 2.400 План на отм. 3.300 Фрагменты 1 и 2, детали 1 - 3 Разрезы 1-1, 2-2, 3-3 Фасады 1 - 3 и 3 - 1. Фрагмент 3 Фасады Е - А и Б - Ж. Фрагменты 4, 5 и 6 Планы расположения отверстий и ниш на отм. 0.000 и 3.300 План кровли. Планы полов на отм. - 2.400; 0.000; 3.300. Экспликация полов Спецификация элементов заполнения проемов. Ведомость проемов дверей. Развертка вентиляционного канала Ведомость перемычек. Спецификация перемычек Конструкции железобетонные Общие данные Схема расположения сборных фундаментов Сечения 1-1 - 8-8 Раскладка блоков по осям "А", "Г", "Е", "1", "2" Раскладка блоков по осям "Б", "Д", "Ж", "З", "В" между осями "В - Д"; "Б - В" Схема расположения монолитных фундаментов (вариант) Сечения 1-1 - 8-8 (вариант) Схема расположения плит перекрытия на отм. 3.300 Схема расположения плит покрытия Схема расположения элементов лестницы. Сечения 1-1 - 4-4 Схема расположения элементов входа. Сечения 1-1 и 2-2 Схема расположения элементов лестницы ЛМ1 Схемы расположения подвесных потолков 1-го и 2-го этажей Внутренние водопровод и канализация Общие данные. Схемы систем В1, Т3, К1, К2 План на отм. 0.000 и - 2.500 с системами В1, Т3, К1, К2 План на отм. 3.300 с системами К1, К2 Отопление и вентиляция Общие данные Планы на отм. 0.000 и - 2.400 План на отм. 3.300 Схема систем отопления. Узел управления Схема систем теплоснабжения установки П1. Узел 1. Схемы систем П1, В1 - В3, ВЕ1 Установка систем П1, В1 - В3 Воздуховод асбестоцементный Силовое электрооборудование Общие данные Схема электрическая принципиальная питающей и распределительной сетей Планы расположения электрооборудования и прокладки электрических сетей Электрическое освещение Общие данные Планы расположения осветительного оборудования и прокладки электрических сетей на отм. 0.000 и - 2.500 Планы расположения осветительного оборудования и прокладки электрических сетей на отм. 3.300 Принципиальная схема питающей сети Связь и сигнализация Общие данные Планы расположения оборудования и прокладки сетей телефонизации, директорской связи, радиофикации, часофикации Телевидение. Скелетная схема Планы расположения оборудования и прокладки сетей пожарно-охранной сигнализации Схемы устройств связи и сигнализации Автоматизация отопления и вентиляции Общие данные Приточная система П1. Схема функциональная Приточная система П1. Схема электрическая принципиальная управления Приточная система П1. Схема внешних проводок. План расположения Узел управления теплового пункта. Схема функциональная. Схема трубных проводок Приточная система П1. Шкаф управления ШУ. Чертеж общего вида Приточная система П1. Шкаф управления ШУ. Технические данные аппаратов Приточная система П1. Шкаф управления ШУ. Перечень надписей Приточная система П1. Шкаф управления ШУ. Схема электрическая соединений Конструкции железобетонных изделий Технические условия Ступень ЛСМ1 Ступень ЛСМ2 Сетка С1 Петля П1 Изделие закладное ЗД-1 | Разработан: | Союзгипролесхоз
| Утверждён: | 06.09.1991 Госкомлес СССР (USSR Goskomles 7)
| Издан: | АПП ЦИТП (1991 г. )
| Расположен в: |
|
                                                                 
|