Информационная система
«Ёшкин Кот»

Скачать базу одним архивом
Скачать обновления
История создания базы
Карта сайта

Скачать Типовой проект 407-3-659.02 Альбом 2. Строительные изделия

Дата актуализации: 10.08.2017

Типовой проект 407-3-659.02

Альбом 2. Строительные изделия

Обозначение: Типовой проект 407-3-659.02
Обозначение англ: 407-3-659.02
Статус:не определен законодательством
Название рус.:Альбом 2. Строительные изделия
Дата добавления в базу:01.10.2014
Дата актуализации:05.05.2017
Дата введения:04.03.2002
Оглавление:407-3-659.02 АС.И-00 Содержание альбома
407-3-659.02 АС.И-ТУ Технические условия
407-3-659.02 АС.И-МК1 Марка МК1
407-3-659.02 АС.И-МК2 Марка МК2
407-3-659.02 АС.И-МН1 Изделие закладное МН1
407-3-659.02 АС.И-МН2 Изделие закладное МН2
407-3-659.02 АС.И-МН3 Изделие закладное МН3
407-3-659.02 АС.И-МС1 Соединительное изделие МС1
407-3-659.02 АС.И-МС2 Соединительное изделие МС2
407-3-659.02 АС.И-МС3 Соединительное изделие МС3
407-3-659.02 АС.И-ВЖ1 Вентиляционная жалюзийная решетка ВЖ1
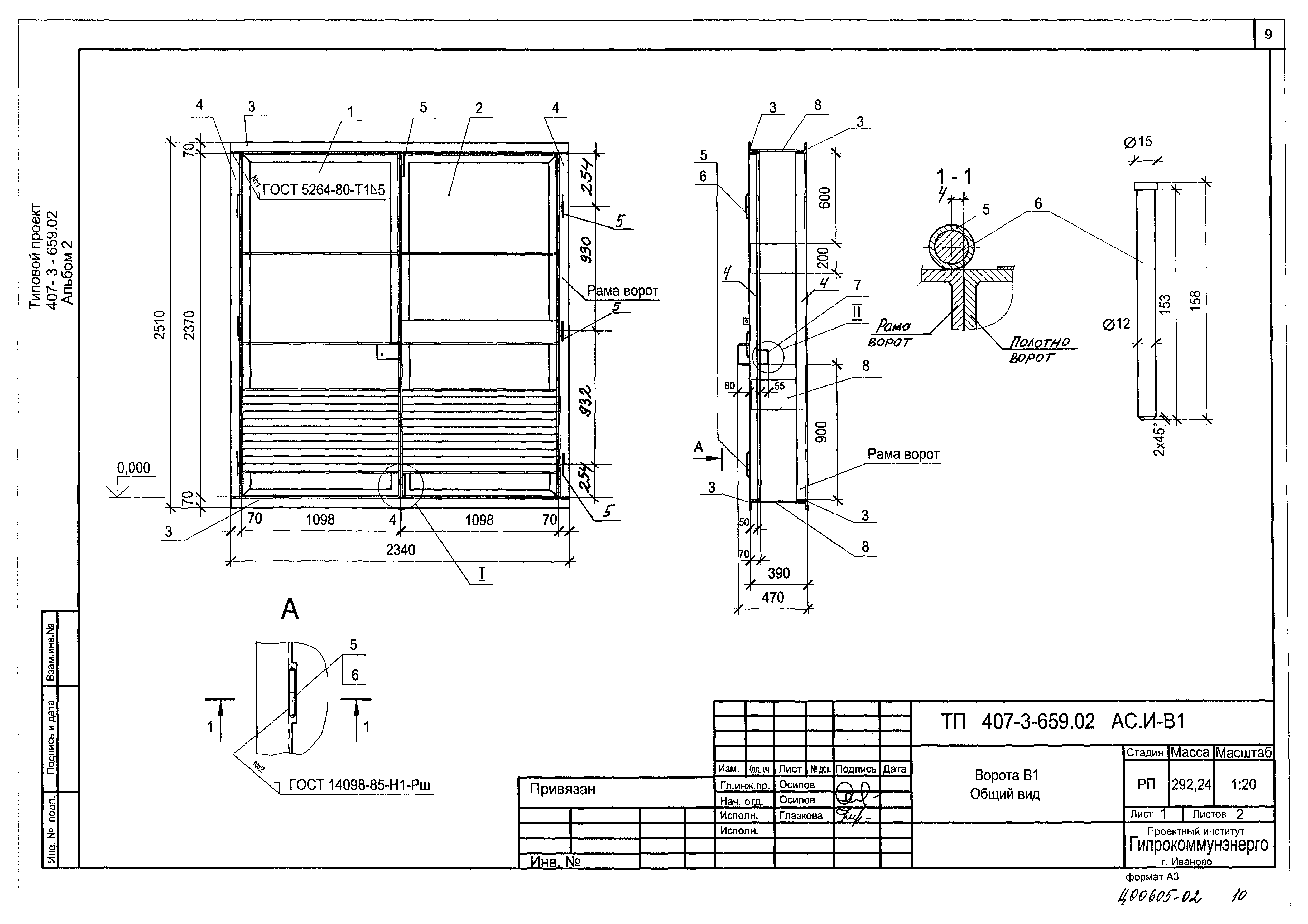
407-3-659.02 АС.И-В1 Ворота В1. Общий вид
407-3-659.02 АС.И-В1ПЛ Ворота В1. Полотно левое
407-3-659.02 АС.И-В1ПЛ Ворота В1. Полотно правое
407-3-659.02 АС.И-Д1 Дверной блок Д1. Общий вид
407-3-659.02 АС.И-Д1ПД Дверной блок Д1.Полотно дверное
Разработан: ОГУП ПИ Гипрокоммунэнерго
Утверждён:04.03.2002 ЗАО ПЗЭМИ (21)
Расположен в:Техническая документация Строительство Справочные документы Типовые строительные конструкции, изделия и узлы Общероссийский строительный каталог Промышленные предприятия, здания и сооружения Предприятия, здания и сооружения промышленности и электроэнергетики Электроэнергетика Устройства и подстанции распределительные
Типовой проект 407-3-659.02Типовой проект 407-3-659.02Типовой проект 407-3-659.02Типовой проект 407-3-659.02Типовой проект 407-3-659.02Типовой проект 407-3-659.02Типовой проект 407-3-659.02Типовой проект 407-3-659.02Типовой проект 407-3-659.02Типовой проект 407-3-659.02Типовой проект 407-3-659.02Типовой проект 407-3-659.02Типовой проект 407-3-659.02Типовой проект 407-3-659.02Типовой проект 407-3-659.02Типовой проект 407-3-659.02Типовой проект 407-3-659.02Типовой проект 407-3-659.02Типовой проект 407-3-659.02Типовой проект 407-3-659.02

© 2013 Ёшкин Кот :-) Карта сайта