Скачать Типовой проект 902-1-46 Альбом I. Технологические решения. Отопление и вентиляция. Внутренний водопровод и канализацияДата актуализации: 10.08.2017 Типовой проект 902-1-46
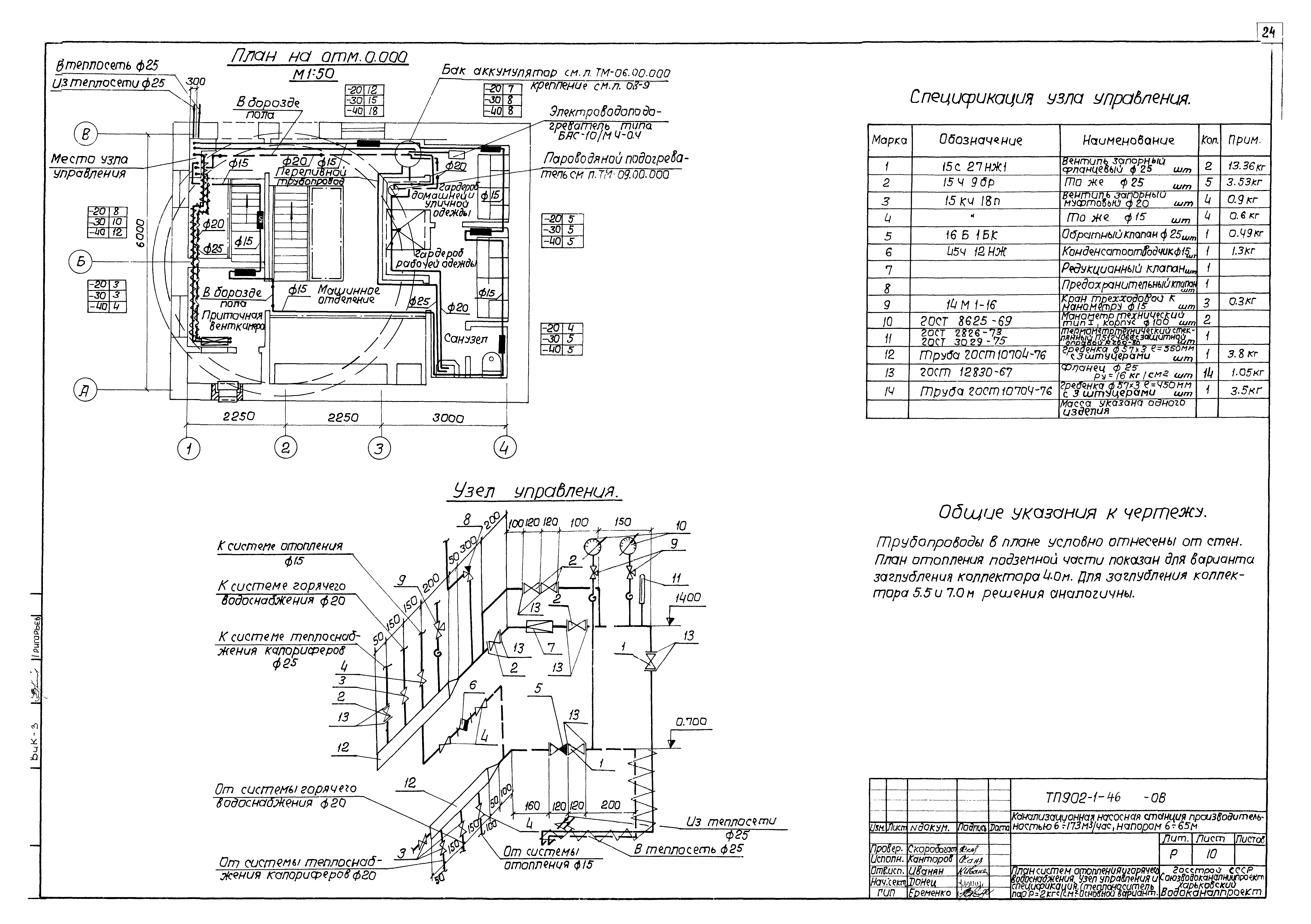
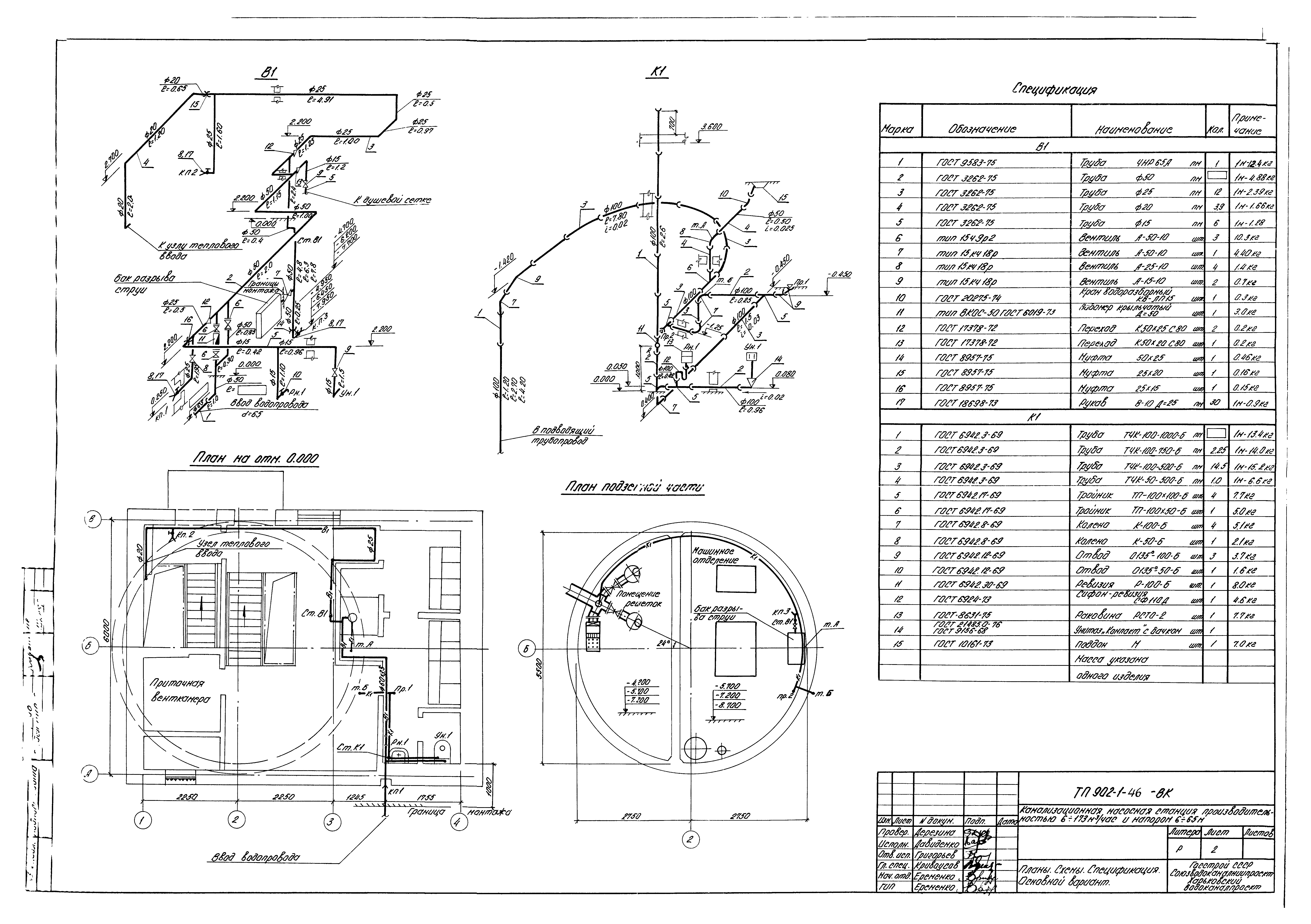
Альбом I. Технологические решения. Отопление и вентиляция. Внутренний водопровод и канализацияОбозначение: | Типовой проект 902-1-46 | Обозначение англ: | 902-1-46 | Статус: | заменен | Название рус.: | Альбом I. Технологические решения. Отопление и вентиляция. Внутренний водопровод и канализация | Дата добавления в базу: | 01.10.2014 | Дата актуализации: | 05.05.2017 | Дата введения: | 01.02.1985 | Оглавление: | Содержание альбома Технологические решения (НК) Общие данные. Ведомость чертежей основного комплекта. Пояснительная записка Сводная спецификация Примечания План. Спецификация. Таблица размеров, диаметров и фасонных частей трубопроводов Разрезы 1-1 и 2-2 План приемного резервуара. Разрез 1-1 Схема технологических трубопроводов Технологические трубопроводы. Спецификация Технический водопровод. План. Схема. Спецификация Отопление и вентиляция (ОВ) Общие данные. Основной вариант План вентиляции на отм. 0.000. Разрез 1-1. Основной вариант План вентиляции подземной части. Разрезы 2-2 и 3-3. Основной вариант Схемы систем П1, В1, В2, В3. Основной вариант Установки систем П1, В1. Планы. Разрезы 1-1, 2-2 и 3-3. Основной вариант План систем отопления и горячего водоснабжения. Узел управления и спецификация (теплоноситель - вода 150 - 70 градусов Цельсия). Основной вариант План систем отопления и горячего водоснабжения. Узел управления и спецификация (теплоноситель - пар 2 кгс/кв. см). Основной вариант Схемы систем отопления, теплоснабжения калориферов и горячего водоснабжения. Основной вариант Общие данные. Упрощенный вариант План вентиляции. Разрезы 1-1 и 2-2. Упрощенный вариант Схемы систем П1, В1, В2. Упрощенный вариант Установки систем П1, В1. Планы. Разрезы 1-1 и 2-2 (теплоноситель - вода 150 - 70 градусов Цельсия и пар 2 кгс/кв. см). Упрощенный вариант Установка системы П1. План отопления и спецификация (теплоноситель - электроэнергия). Упрощенный вариант План от отопления. Узел управления и спецификация (теплоноситель - вода 150 - 70 градусов Цельсия). Упрощенный вариант План от отопления. Узел управления и спецификация (теплоноситель - пар 2 кгс/кв. см). Упрощенный вариант Схемы систем отопления и теплоснабжения калориферов (теплоноситель - вода 150 - 70 градусов Цельсия и пар 2 кгс/кв. см). Упрощенный вариант Внутренний водопровод и канализация (ВК) Общие данные Планы. Схемы. Основной вариант Планы. Схемы. Упрощенный вариант | Разработан: | Харьковский Водоканалпроект
| Утверждён: | 08.12.1975 СоюзводоканалНИИпроект (SoyuzvodokanalNIIproject 105)
| Расположен в: |
| Заменяет собой: | | Чем заменён: |  Типовой проект 902-1-92.84 «Канализационная насосная станция производительностью 25 - 173 куб. м/ч, напором 6 - 65 м при глубине заложения подводящего коллектора 4,0 м (сборно-монолитный вариант)» Типовой проект 902-1-93.84 «Канализационная насосная станция производительностью 25 - 173 куб. м/ч, напором 6 - 65 м при глубине заложения подводящего коллектора 4,0 м (монолитный вариант)» Типовой проект 902-1-94.84 «Канализационная насосная станция производительностью 25 - 173 куб. м/ч, напором 6 - 65 м при глубине заложения подводящего коллектора 5,5 м (сборно-монолитный вариант)» Типовой проект 902-1-95.84 «Канализационная насосная станция производительностью 25 - 173 куб. м/ч, напором 6 - 65 м при глубине заложения подводящего коллектора 5,5 м (монолитный вариант)» Типовой проект 902-1-96.84 «Канализационная насосная станция производительностью 25 - 173 куб. м/ч, напором 6 - 65 м при глубине заложения подводящего коллектора 7,0 м»
|
                                     
|